ZENTRAL UND DOCH RUHIG – NEUBAUWOHNUNG MIT TERRASSE IN WATTENS
-
Erstbezug
-
2025
-
sofort
Beschreibung
Perfekt für Familien oder Paare, die Raum und Komfort schätzen.
Großzügige Räume, hochwertige Eiche-Holzböden und moderne Haustechnik verleihen dieser Wohnung ein besonders angenehmes Wohngefühl. EXCLUSIV WOHNEN in Wattens – ein Zuhause zum Ankommen und Wohlfühlen.
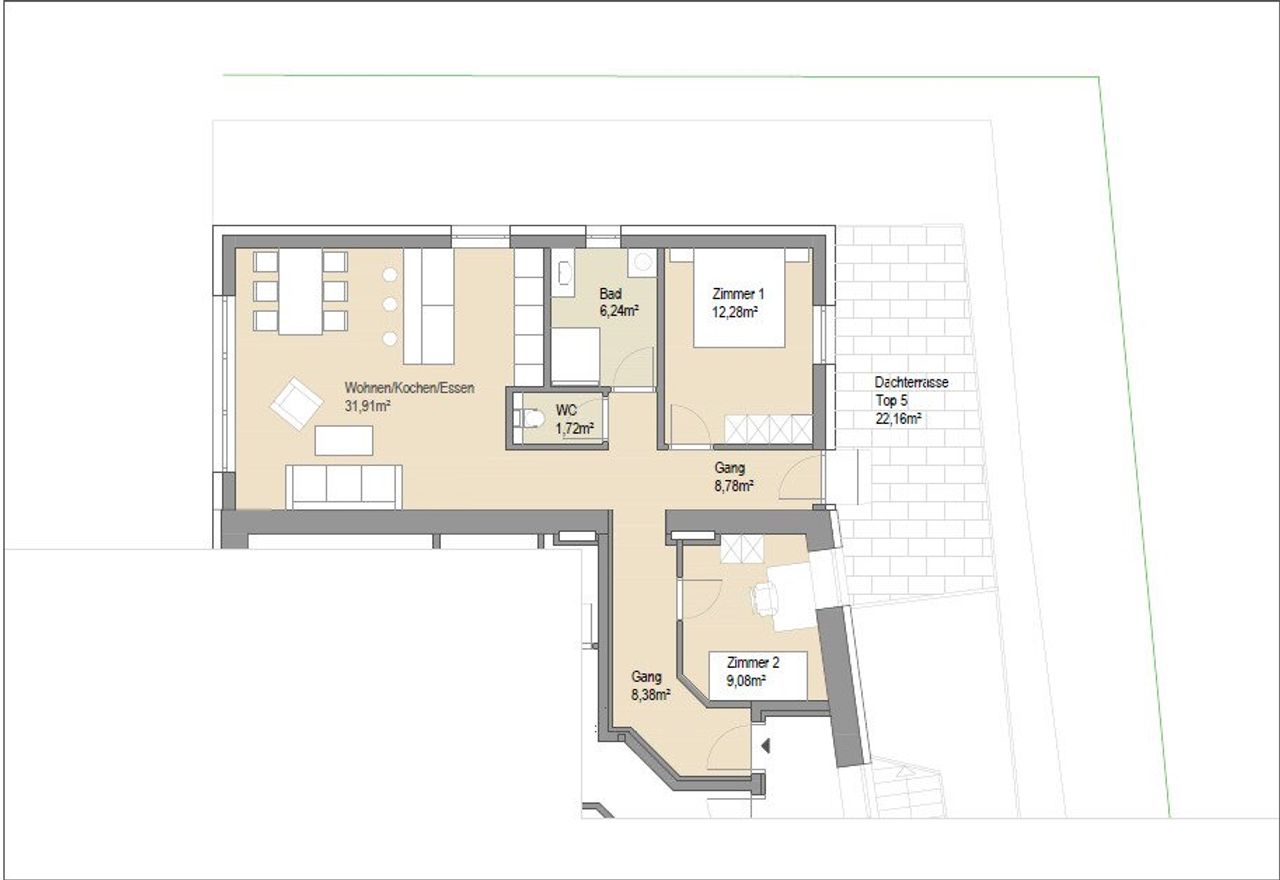
Wohnfläche: 78,99 m² Etage: 1. Obergeschoss
Raumaufteilung:
-
Großzügiger Eingangsbereich / Gang (ca. 8,62 m² und 8,78 m²)
-
Separates WC (1,72 m²)
-
Stilvolles Badezimmer (6,24 m²)
-
Zwei komfortable Zimmer (12,28 m² und 9,44 m²)
-
Offener Wohn-/Küchenbereich mit viel Tageslicht (31,91 m²)
Zusätzliche Highlights:
-
Großzügige Dachterrasse mit 22,16 m²
-
Eigener Kellerraum...
Perfekt für Familien oder Paare, die Raum und Komfort schätzen.
Großzügige Räume, hochwertige Eiche-Holzböden und moderne Haustechnik verleihen dieser Wohnung ein besonders angenehmes Wohngefühl. EXCLUSIV WOHNEN in Wattens – ein Zuhause zum Ankommen und Wohlfühlen.
Wohnfläche: 78,99 m²
Etage: 1. Obergeschoss
Raumaufteilung:
Großzügiger Eingangsbereich / Gang (ca. 8,62 m² und 8,78 m²)
Separates WC (1,72 m²)
Stilvolles Badezimmer (6,24 m²)
Zwei komfortable Zimmer (12,28 m² und 9,44 m²)
Offener Wohn-/Küchenbereich mit viel Tageslicht (31,91 m²)
Zusätzliche Highlights:
Großzügige Dachterrasse mit 22,16 m²
Eigener Kellerraum (8,71 m²)
Tiefgaragenplatz
(Die Miete für den Tiefgaragenplatz wird in den ersten drei Jahren vom Bauträger übernommen, anschließend kann der Stellplatz optional weitergemietet werden.)
Diese Wohnung überzeugt durch eine durchdachte Raumaufteilung, hochwertige Ausstattung und ein modernes Wohnkonzept – ideal für Paare oder Familien, die exklusives Wohnen in Wattens suchen.
Noch nichts gefunden? Wir informieren Sie über geeignete Immobilienangebote noch vor allen anderen.
Legen Sie jetzt Ihren individuellen Suchagenten unter folgendem Link an. Wir schicken Ihnen passende Immobilien exklusiv vorab zu.
Suchagent anlegen - https://reinhard-leutgeb.service.immo/registrieren/de
Infrastruktur / Entfernungen
Gesundheit
Arzt <500m
Apotheke <500m
Klinik <6.500m
Krankenhaus <6.000m
Kinder & Schulen
Schule <500m
Kindergarten <500m
Universität <6.000m
Nahversorgung
Supermarkt <500m
Bäckerei <500m
Sonstige
Bank <500m
Geldautomat <500m
Post <500m
Polizei <500m
Verkehr
Bus <500m
Autobahnanschluss <1.500m
Bahnhof <1.500m
Angaben Entfernung Luftlinie / Quelle: OpenStreetMap
Objektdaten
Ausstattung
- Kabel/SAT-TV
- DV Verkabelung
- Fahrradraum
- Rolladen
- Bad mit Dusche
- Bad mit Fenster
- Parkettboden
- Fernwärme Heizung
- Fußbodenheizung
- Solar
- Fern Befeuerung
- Ausrichtung Balkon/Terrasse - Nord
- Ausrichtung Balkon/Terrasse - Ost
- Ausrichtung Balkon/Terrasse - Nordost
- Walmdach
- Massiv Bauweise
- Neubaustandard
Zustand
- Zustand
- ERSTBEZUG
- Baujahr
- 2025
- Alter
- NEUBAU
- HWB
- 39.9 kWh/m² pro Jahr
- Klasse HWB
- B
- fGEE
- 0.77
- Klasse fGEE
- A
Flächen
- Anzahl der Zimmer
- 3
- Anzahl der Badezimmer
- 1
- Anzahl der sep. WCs
- 1
- Wohnfläche
- 79m²
Kosten
- Kaufpreis Brutto
- € 489.000,00
- Betriebskosten
- € 216,90
Verwaltung
- Verfügbar ab
- sofort
Wohnungen zum Kaufen im Umkreis von Wattens
Wohnungen zum Kaufen im Umkreis von Wattens
Wohnungen zum Kaufen in Österreich
Andere Besucher suchen nach...
- Grundstücke kaufen in 3400 Weidlingbach
- Wohnungen kaufen in 4663 Laakirchen
- Häuser in 7471 Rechnitz
- Wohnungen in 2410 Hainburg an der Donau
- Häuser kaufen in 2432 Schwadorf
- Wohnungen kaufen in 3002 Purkersdorf
- Häuser in 3150 Wilhelmsburg
- Wohnungen kaufen in 3470 Engelmannsbrunn
- Grundstücke kaufen im Bezirk Mattersburg
- Grundstücke kaufen im Bezirk Gmunden