Top Anlage! Sunshine Lodge - Ferienappartements an der Hohen Munde
-
2023
Beschreibung
Hier gelangen Sie zur Homepage: www.sunshinelodge-ferienwohnungen.at
Hier gelangen Sie zur Outside-Tour: http://tour.partner4immo.at/aOWW
Hier gelangen Sie zur Aussichts-Tour: http://tour.partner4immo.at/dh3F
Hier gelangen Sie zum Video: https://www.youtube.com/watch?v=3BnndlEJjhE
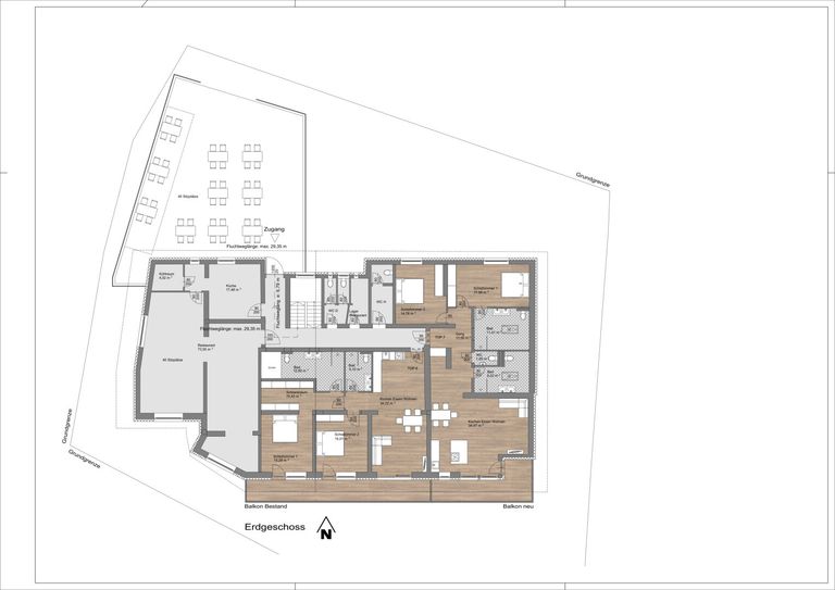
Am Hochplateau St. Veit/Lehen am Fusse der hohen Munde entsteht ein idyllisches Appartementhaus, eingebettet mitten in die Tiroler Bergwelt.
Das Haus ist ein ehemaliger Berggasthof mit Pension und wird komplett entkernt und kernsaniert.
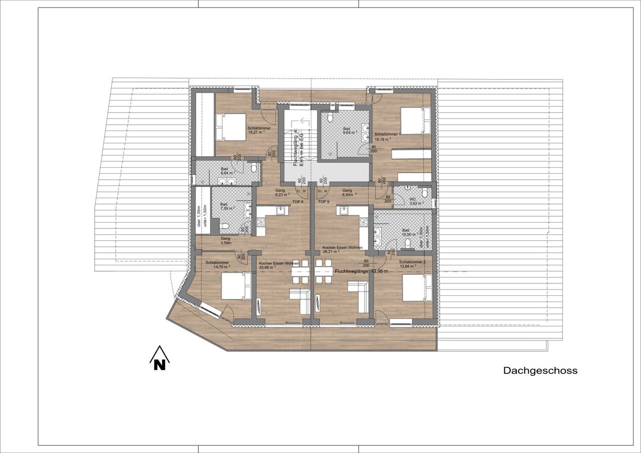
Es entstehen dabei 9 Neubauappartements zwischen 40m² und 104m² Wohnfläche. Das Restaurant bleibt erhalten und wird verkleinert. Ein neuer Pächter wird Ihre Urlaubsgäste mit kulinarischen Köstlichkeiten verwöhnen.
Die schlüsselfertigen Appartements verfügen...
Hier gelangen Sie zur Homepage: www.sunshinelodge-ferienwohnungen.at
Hier gelangen Sie zur Outside-Tour: http://tour.partner4immo.at/aOWW
Hier gelangen Sie zur Aussichts-Tour: http://tour.partner4immo.at/dh3F
Hier gelangen Sie zum Video: https://www.youtube.com/watch?v=3BnndlEJjhE
Am Hochplateau St. Veit/Lehen am Fusse der hohen Munde entsteht ein idyllisches Appartementhaus, eingebettet mitten in die Tiroler Bergwelt.
Das Haus ist ein ehemaliger Berggasthof mit Pension und wird komplett entkernt und kernsaniert.
Es entstehen dabei 9 Neubauappartements zwischen 40m² und 104m² Wohnfläche. Das Restaurant bleibt erhalten und wird verkleinert. Ein neuer Pächter wird Ihre Urlaubsgäste mit kulinarischen Köstlichkeiten verwöhnen.
Die schlüsselfertigen Appartements verfügen über eine Bodenheizung mittels Luftwärmepumpe sowie moderne Bäder mit eben begehbarer Regenwalddusche.
Ein moderner Skiraum mit Skischuhheizung, sowie ein Fahrradraum mit Vorrichtungen für E-Bikes runden das Angebot ab.
Weiters stehen Carports und Aussenabstellplätze zur Verfügung. Diese müssen separat je nach Appartementgröße dazu gekauft werden.
Optional kann eine begrenzte Anzahl an weitern Betten dazugekauft werden und diese können dann etwa in Form einer Schlafcouch legal an Gäste angeboten werden.
Die Appartements sind zur gewerblich touristischen Vermietung zugelassen! Es wird eine hohe Buchungsauslastung sowie dementsprechend hohe Rendite erwartet.
Die Firma partner4immo betreut und begleitet Sie durch die komplette Kaufabwicklung, den Bauprozess und berät Sie in allen erforderlichen Belangen für die Vermietung.
Unser Netzwerk an professionellen Dienstleistern wie Steuerberater, Finanzierungsexperte, Einrichtungshaus und Vermietservice steht Ihnen auf Wunsch vollumfänglich zur Seite.
Unsere langjährige Erfahrung in diesem Segment garantiert Ihnen ein sorgloses rundum Service sowie eine sorgenfreie und erfolgreiche Vermietung mit hoher Rendite!
Hinweis: Bei diesem Modell handelt es sich um kein By-to-let-, Investoren-, oder Betreibermodell. Der Eigentümer behält immer die volle Kontrolle über seine Vermietung und kann selbst vermieten oder vermieten lassen, unabhängig von anderen Eigentümern im Haus!
Die Wohnungen verfügen über KEINE Freizeitwohnsitzgenehmigung!
Das Ferienappartement Top 06 besteht aus einem großen Wohn- Küchenbereich, zwei geräumigen Schlafzimmern und zwei komplett ausgestatteten Badezimmern mit WC, Waschbecken, Waschbeckenunterschrank, LED Spiegel und eben begehbarer Rainshower-Dusche wovon ein Badezimmer en suite begehbar ist.
Ein Schlafzimmer verfügt zusätzlich über einen Schrankraum, oder der Möglichkeit eines privaten Wellnessbereichs mit z.b Infrarotkabine (nicht im KP enthalten).
Ein vom Wohnbereich und beiden Schlafzimmern begehbarer Balkon sorgt für eine Top Aussicht und die Möglichkeit eines Speiseplatzes.
Bodentiefe Fenster im Wohnzimmer sorgen für ein atemberaubendes Bergpanorama.
Das Appartement besticht durch seine hochwertige Ausstattung und noch individuelle Mitgestaltungsmöglichkeit.
Ein privater Kellerraum rundet das Angebot ab.
Die angegebenen Verkaufspreise verstehen sich netto zzgl. gesetzlicher MwSt.
Die MwSt. kann durch die gewerbliche Nutzung wieder zurückerstattet werden.
Sämtliche Kaufnebenkosten werden vom Bruttokaufpreis (Netto-KP zzgl. MwSt.) berechnet.
Hinweis gemäß Energieausweisvorlagegesetz: Ein Energieausweis wurde vom Eigentümer bzw. Verkäufer, nach unserer Aufklärung über die generell geltende Vorlagepflicht, sowie Aufforderung zu seiner Erstellung noch nicht vorgelegt. Daher gilt zumindest eine dem Alter und der Art des Gebäudes entsprechende Gesamtenergieeffizienz als vereinbart. Wir übernehmen keinerlei Gewähr oder Haftung für die tatsächliche Energieeffizienz der angebotenen Immobilie.
Infrastruktur / Entfernungen
Gesundheit
Arzt <1.325m
Apotheke <1.300m
Kinder & Schulen
Schule <1.375m
Kindergarten <825m
Höhere Schule <7.900m
Nahversorgung
Supermarkt <1.200m
Bäckerei <1.325m
Einkaufszentrum <2.025m
Sonstige
Bank <1.275m
Geldautomat <1.275m
Post <2.275m
Polizei <2.275m
Verkehr
Bus <375m
Autobahnanschluss <2.375m
Bahnhof <2.675m
Angaben Entfernung Luftlinie / Quelle: OpenStreetMap
Objektdaten
Ausstattung
- Fahrradraum
- Bad mit Dusche
- Fußbodenheizung
- Luftwärmepumpe
- Ausrichtung Balkon/Terrasse - Süd
- Hotelrestaurant
- Massiv Bauweise
- Holz Bauweise
Dokumente / Links
Zustand
- Zustand
- VOLL_SANIERT
- Baujahr
- 2023
- Alter
- NEUBAU
Flächen
- Anzahl der Zimmer
- 3.5
- Anzahl der Badezimmer
- 2
- Anzahl der sep. WCs
- 2
- Anzahl der Balkone
- 1
- Wohnfläche
- 93m²
Kosten
- Kaufpreis Brutto
- € 499.000,00
Verwaltung
- Ferienimmobilie
- Ja
Wohnungen zum Kaufen im Umkreis von Telfs
Wohnungen zum Kaufen im Umkreis von Telfs
Wohnungen zum Kaufen in Österreich
Andere Besucher suchen nach...
- Grundstücke kaufen in 3400 Weidlingbach
- Wohnungen kaufen in 4663 Laakirchen
- Häuser in 7471 Rechnitz
- Wohnungen in 2410 Hainburg an der Donau
- Häuser kaufen in 2432 Schwadorf
- Wohnungen kaufen in 3002 Purkersdorf
- Häuser in 3150 Wilhelmsburg
- Wohnungen kaufen in 3470 Engelmannsbrunn
- Grundstücke kaufen im Bezirk Mattersburg
- Grundstücke kaufen im Bezirk Gmunden