Sonnige 4-Zimmer-Wohnung in zentraler Lage mit Panoramablick
€ 785.000
€ 6.414 / m²
6020 Innsbruck
-
sofort
Beschreibung
SONNIGE 4-ZIMMER-WOHNUNG MIT PANORAMA-BLICK IN ZENTRALER LAGE Diese großzügige und sehr helle 4-Zimmer-Wohnung im 5. Obergeschoss der gepflegten Wohnanlage Mariahilfpark überzeugt durch ihre hervorragende Lage und einen beeindruckenden 180°-Panoramablick auf den Inn, die Innsbrucker Altstadt und die umliegende Bergwelt. Die Wohnung befindet sich in einer besonders gefragten Lage zwischen Universität, Universitätskliniken und dem historischen Stadtkern. Die Altstadt, zahlreiche kulturelle Einrichtungen, Restaurants, Einkaufsmöglichkeiten sowie Bildungseinrichtungen sind in wenigen Gehminuten erreichbar. Gleichzeitig sorgen die großzügigen Grünflächen der Anlage und die unmittelbare Nähe zur Innpromenade für eine angenehme Ruhe mitten in der Stadt. Die Wohnung bietet laut Plan rund 122 m² Wohnfläche und...
SONNIGE 4-ZIMMER-WOHNUNG MIT PANORAMA-BLICK IN ZENTRALER LAGE
Diese großzügige und sehr helle 4-Zimmer-Wohnung im 5. Obergeschoss der gepflegten Wohnanlage Mariahilfpark überzeugt durch ihre hervorragende Lage und einen beeindruckenden 180°-Panoramablick auf den Inn, die Innsbrucker Altstadt und die umliegende Bergwelt. Die Wohnung befindet sich in einer besonders gefragten Lage zwischen Universität, Universitätskliniken und dem historischen Stadtkern. Die Altstadt, zahlreiche kulturelle Einrichtungen, Restaurants, Einkaufsmöglichkeiten sowie Bildungseinrichtungen sind in wenigen Gehminuten erreichbar. Gleichzeitig sorgen die großzügigen Grünflächen der Anlage und die unmittelbare Nähe zur Innpromenade für eine angenehme Ruhe mitten in der Stadt.
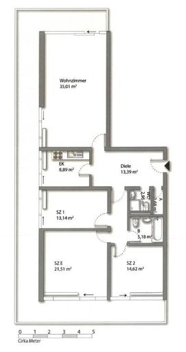
Die Wohnung bietet laut Plan rund 122 m² Wohnfläche und überzeugt durch eine sehr gute Raumaufteilung mit viel Tageslicht. Ein besonderes Highlight ist der großzügige Balkon mit ca. 53 m². Die Wohnung befindet sich in sehr gepflegtem Zustand und ist nach Westen, Süden und Osten ausgerichtet. Die Ausstattung umfasst unter anderem eine moderne, vollausgestattete Einbauküche, ein Badezimmer mit Badewanne, ein separates WC mit Dusche sowie elektrische Jalousien. Zur Wohnung gehören außerdem ein Kellerabteil und ein Tiefgaragen-Abstellplatz. In der Wohnanlage stehen den Bewohnern drei Lifte, Fahrradabstellräume, eine Waschküche sowie gepflegte Grünflächen zur Verfügung.
HIGHLIGHTS
• Ca. 122 m² Wohnfläche mit großzügiger Raumaufteilung
• Balkon mit rund 53 m² und 180° Panoramaausblick
• Zentrale Lage zwischen Altstadt, Universität und Klinik
• Tiefgaragenstellplatz inklusive
EINE SELTENE GELEGENHEIT FÜR ALLE, DIE GROSSZÜGIG UND DENNOCH ZENTRAL MIT PANORAMA-AUSSICHT WOHNEN MÖCHTEN.
Für nähere Informationen zur Immobilie fordern Sie bitte ein Exposé an.
Wir bitten Sie um Verständnis, dass wir unserer Nachweispflicht nachkommen müssen und wir Anfragen nur unter Angabe der vollständigen Kontaktdaten (Name, Adresse, Telefonnummer, Email) beantworten können! Nicht alle Immobilien sind auf der Webseite zu sehen. Sie können uns gerne Ihren Suchwunsch bekannt geben.
Im Falle eines Kaufabschlusses erlauben wir uns 3% des Kaufpreises zuzüglich der gesetzlichen MwSt. in Rechnung zu stellen.
Für weitere Informationen stehen wir Ihnen jederzeit gerne zur Verfügung.
Weitere interessante Objekte finden Sie unter http://www.remax-recon.at/
Diese großzügige und sehr helle 4-Zimmer-Wohnung im 5. Obergeschoss der gepflegten Wohnanlage Mariahilfpark überzeugt durch ihre hervorragende Lage und einen beeindruckenden 180°-Panoramablick auf den Inn, die Innsbrucker Altstadt und die umliegende Bergwelt. Die Wohnung befindet sich in einer besonders gefragten Lage zwischen Universität, Universitätskliniken und dem historischen Stadtkern. Die Altstadt, zahlreiche kulturelle Einrichtungen, Restaurants, Einkaufsmöglichkeiten sowie Bildungseinrichtungen sind in wenigen Gehminuten erreichbar. Gleichzeitig sorgen die großzügigen Grünflächen der Anlage und die unmittelbare Nähe zur Innpromenade für eine angenehme Ruhe mitten in der Stadt.
Die Wohnung bietet laut Plan rund 122 m² Wohnfläche und überzeugt durch eine sehr gute Raumaufteilung mit viel Tageslicht. Ein besonderes Highlight ist der großzügige Balkon mit ca. 53 m². Die Wohnung befindet sich in sehr gepflegtem Zustand und ist nach Westen, Süden und Osten ausgerichtet. Die Ausstattung umfasst unter anderem eine moderne, vollausgestattete Einbauküche, ein Badezimmer mit Badewanne, ein separates WC mit Dusche sowie elektrische Jalousien. Zur Wohnung gehören außerdem ein Kellerabteil und ein Tiefgaragen-Abstellplatz. In der Wohnanlage stehen den Bewohnern drei Lifte, Fahrradabstellräume, eine Waschküche sowie gepflegte Grünflächen zur Verfügung.
HIGHLIGHTS
• Ca. 122 m² Wohnfläche mit großzügiger Raumaufteilung
• Balkon mit rund 53 m² und 180° Panoramaausblick
• Zentrale Lage zwischen Altstadt, Universität und Klinik
• Tiefgaragenstellplatz inklusive
EINE SELTENE GELEGENHEIT FÜR ALLE, DIE GROSSZÜGIG UND DENNOCH ZENTRAL MIT PANORAMA-AUSSICHT WOHNEN MÖCHTEN.
Für nähere Informationen zur Immobilie fordern Sie bitte ein Exposé an.
Wir bitten Sie um Verständnis, dass wir unserer Nachweispflicht nachkommen müssen und wir Anfragen nur unter Angabe der vollständigen Kontaktdaten (Name, Adresse, Telefonnummer, Email) beantworten können! Nicht alle Immobilien sind auf der Webseite zu sehen. Sie können uns gerne Ihren Suchwunsch bekannt geben.
Im Falle eines Kaufabschlusses erlauben wir uns 3% des Kaufpreises zuzüglich der gesetzlichen MwSt. in Rechnung zu stellen.
Für weitere Informationen stehen wir Ihnen jederzeit gerne zur Verfügung.
| Angaben gemäß gesetzlichem Erfordernis: | |||
| Heizwärmebedarf: | 136.6 kWh/(m²a) | ||
| Klasse Heizwärmebedarf: | D | ||
| Faktor Gesamtenergieeffizienz: | 2.92 | ||
Weitere interessante Objekte finden Sie unter http://www.remax-recon.at/
Objektdaten
Ausstattung
- Unterkellert
- Zentralheizung
- Befeuerung mit Gas
- Personen Fahrstuhl
- Zentralheizung mit Gas
Zustand
- Baujahr
- ca. 1972
Flächen
- Anzahl der Zimmer
- 4
- Anzahl der Badezimmer
- 2
- Anzahl der sep. WCs
- 1
- Anzahl der Balkone
- 1
- Stellplätze
- 1
- Wohnfläche
- 122m²
Kosten
- Kaufpreis
- € 785.000,00
Verwaltung
- Verfügbar ab
- sofort
Wohnungen zum Kaufen in Österreich
Wohnungen zum Kaufen in Österreich
Wohnungen zum Kaufen in Österreich
Andere Besucher suchen nach...
- Grundstücke kaufen in 3400 Weidlingbach
- Wohnungen kaufen in 4663 Laakirchen
- Häuser in 7471 Rechnitz
- Wohnungen in 2410 Hainburg an der Donau
- Häuser kaufen in 2432 Schwadorf
- Wohnungen kaufen in 3002 Purkersdorf
- Häuser in 3150 Wilhelmsburg
- Wohnungen kaufen in 3470 Engelmannsbrunn
- Grundstücke kaufen im Bezirk Mattersburg
- Grundstücke kaufen im Bezirk Gmunden