Charmante Altbauwohnungmit Balkon und Garage in Brixen im Thale – Nähe Kitzbühel.
Beschreibung
Diese gepflegte Eigentumswohnung befindet sich in Brixen im Thale inmitten der Kitzbüheler Alpen. Sie bietet rund 85 m² Wohnfläche, verteilt auf drei gut geschnittene Zimmer. Besonders hervorzuheben sind der sonnige Westbalkon, ein Tiefgaragenstellplatz sowie der Ausblick ins Grüne und auf die umliegende Berglandschaft.
DIE VORTEILE DIESER WOHNUNG AUF EINEN BLICK:
- Ruhige Lage in Brixen im Thale mit hervorragender Infrastruktur
- Nur ca. 13 km bis zur Stadt Kitzbühel
- Ca. 85 m² Wohnfläche auf 3 Zimmer verteilt
- Westseitiger Balkon / Loggia mit Ausblick ins Grüne und auf die Berge
- Inklusive Kellerabteil mit ca. 8 m² Fläche
- Eigener Garagenplatz inklusive ...
Diese gepflegte Eigentumswohnung befindet sich in Brixen im Thale inmitten der Kitzbüheler Alpen. Sie bietet rund 85 m² Wohnfläche, verteilt auf drei gut geschnittene Zimmer. Besonders hervorzuheben sind der sonnige Westbalkon, ein Tiefgaragenstellplatz sowie der Ausblick ins Grüne und auf die umliegende Berglandschaft.
DIE VORTEILE DIESER WOHNUNG AUF EINEN BLICK:
- Ruhige Lage in Brixen im Thale mit hervorragender Infrastruktur
- Nur ca. 13 km bis zur Stadt Kitzbühel
- Ca. 85 m² Wohnfläche auf 3 Zimmer verteilt
- Westseitiger Balkon / Loggia mit Ausblick ins Grüne und auf die Berge
- Inklusive Kellerabteil mit ca. 8 m² Fläche
- Eigener Garagenplatz inklusive
- Gepflegter Zustand mit Potential zur individuellen Modernisierung
- Gas-Zentralheizung
- Gebäude mit Personenaufzug
- Nahversorgung, Schulen und Bahnhof in kurzer Distanz erreichbar
DIE WOHNUNG
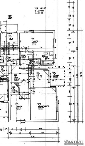
Die Wohnung verfügt über eine Wohnfläche von rund 85 m² und liegt im 1. Obergeschoss eines im Jahr 1986 errichteten Mehrparteienhauses. Der Zugang erfolgt über einen zentralen Vorraum, von dem aus alle Räume erschlossen sind.
Linker Hand befindet sich das erste Zimmer, ideal nutzbar als Schlafzimmer, Büro oder Gästezimmer. Geradeaus liegen das Badezimmer mit Fenster und Dusche sowie das separate WC.
Rechts entlang des Flurs gelangt man in die Küche sowie das daran anschließende Wohnzimmer – beide Räume bieten direkten Zugang zur westseitig ausgerichteten Loggia mit Blick ins Grüne und auf die Berge.
Am Ende des Flurs befinden sich ein praktischer Abstellraum sowie das zweite Schlafzimmer.
Die Wohnung weist eine funktionale und durchdachte Raumaufteilung ohne Durchgangszimmer auf. Zur Einheit gehören ein ca. 8 m² großes Kellerabteil sowie ein zugewiesener Stellplatz in der Tiefgarage. Die Nutzung des Gemeinschaftsgartens ist möglich.
ZUSTAND UND AUSSTATTUNG.
Die Wohnung befindet sich in einem gepflegten Zustand. Das Gebäude wurde 1986 in massiver Bauweise errichtet und verfügt über ein Satteldach sowie einen Personenaufzug.
Die Beheizung erfolgt über eine zentrale Gasheizung. Als Bodenbeläge sind Fliesen, Laminat und Parkett verlegt. Im Badezimmer ist eine Dusche vorhanden, ebenso ein Fenster für natürliche Belichtung und Belüftung. Die separate Küche ist mit einer Einbauküche ausgestattet. Die Fenster verfügen über Rollläden zur Beschattung.
Ein Kellerabteil mit ca. 8 m² Nutzfläche sowie ein Tiefgaragenstellplatz sind Teil des Kaufumfangs.
DIE BETRIEBSKOSTEN
Laut Jahresabrechnung 2024 ergeben sich für die Wohnung folgende monatliche Betriebskosten (inkl. Heizkosten und Rücklage) von ca. 290,39 €.
Zur Beantwortung weiterer Fragen sowie für Besichtigungstermine stehe ich Ihnen gerne täglich - auch am Wochenende - von 08:00 bis 22:00 Uhr zur Verfügung.
Ich freue mich über Ihre Kontaktaufnahme,
Wilhelm Rossmair
+43 664 54 24 481
w.rossmair@aktivit.org
Der Vermittler ist als Doppelmakler tätig.
Erteilen Sie uns ihren Suchauftrag und profitieren Sie von vielen Vorteilen und exklusiven Angeboten!
Ganz einfach und kostenlos unter: Jetzt Suchauftrag eingeben.
Infrastruktur / Entfernungen
Gesundheit
Arzt <1.500m
Apotheke <1.500m
Klinik <9.500m
Kinder & Schulen
Schule <1.500m
Kindergarten <1.500m
Höhere Schule <9.000m
Nahversorgung
Supermarkt <1.500m
Bäckerei <1.000m
Sonstige
Bank <1.500m
Geldautomat <1.500m
Post <1.000m
Polizei <4.000m
Verkehr
Bus <500m
Bahnhof <1.000m
Angaben Entfernung Luftlinie / Quelle: OpenStreetMap
Objektdaten
Ausstattung
- Gartennutzung
- Rolladen
- Gäste-WC
- Bad mit Dusche
- Bad mit Fenster
- Einbauküche
- Fliesenboden
- Parkettboden
- Laminatboden
- Zentralheizung
- Befeuerung mit Gas
- Personen Fahrstuhl
- Ausrichtung Balkon/Terrasse - West
- Satteldach
- Massiv Bauweise
Zustand
- Baujahr
- 1986
- Alter
- ALTBAU
- HWB
- 36.1 kWh/m² pro Jahr
- Klasse HWB
- B
- fGEE
- 1.6
- Klasse fGEE
- C
Flächen
- Anzahl der Zimmer
- 3
- Anzahl der Badezimmer
- 1
- Anzahl der sep. WCs
- 1
- Wohnfläche
- 85m²
- Nutzfläche
- 85m²
- Kellerfläche
- 8m²
Kosten
- Kaufpreis Brutto
- € 490.000,00
Wohnungen zum Kaufen im Umkreis von Brixen im Thale
Wohnungen zum Kaufen im Umkreis von Brixen im Thale
Wohnungen zum Kaufen in Österreich
Andere Besucher suchen nach...
- Grundstücke kaufen in 3400 Weidlingbach
- Wohnungen kaufen in 4663 Laakirchen
- Häuser in 7471 Rechnitz
- Wohnungen in 2410 Hainburg an der Donau
- Häuser kaufen in 2432 Schwadorf
- Wohnungen kaufen in 3002 Purkersdorf
- Häuser in 3150 Wilhelmsburg
- Wohnungen kaufen in 3470 Engelmannsbrunn
- Grundstücke kaufen im Bezirk Mattersburg
- Grundstücke kaufen im Bezirk Gmunden