Top-Lage in Klagenfurt: Großzügige 3,5-Zimmer-Wohnung mit Balkon und Loggia am Fuße des Kreuzbergls
-
sofort
Beschreibung
Top-Lage in Klagenfurt: Großzügige 3,5-Zimmer-Wohnung mit Balkon und Loggia am Fuße des Kreuzbergls
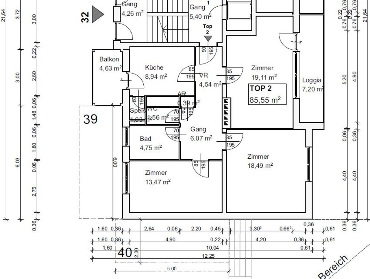
Diese charmante 3,5-Zimmer-Wohnung mit einer großzügigen Wohnfläche von ca. 77,96 m² befindet sich im Erdgeschoss eines gepflegten Wohnhauses mit Lift. Diese Immobilie bietet ein tolles Wohnambiente in begehrter Lage am Fuße des Kreuzbergls – genießen Sie die Natur und alle Annehmlichkeiten des urbanen Lebens in unmittelbarer Umgebung. Als Highlight verfügt die Wohnung über einen Balkon und eine Loggia.
Raumaufteilung:
• Küche – ca. 8,94 m² • (Wohn-)Zimmer – ca. 19,11 m² • Zimmer 1 – ca. 13,47 m² • Zimmer 2 – ca. 18,49 m² • Badezimmer...
Top-Lage in Klagenfurt: Großzügige 3,5-Zimmer-Wohnung mit Balkon und Loggia am Fuße des Kreuzbergls
Diese charmante 3,5-Zimmer-Wohnung mit einer großzügigen Wohnfläche von ca. 77,96 m² befindet sich im Erdgeschoss eines gepflegten Wohnhauses mit Lift. Diese Immobilie bietet ein tolles Wohnambiente in begehrter Lage am Fuße des Kreuzbergls – genießen Sie die Natur und alle Annehmlichkeiten des urbanen Lebens in unmittelbarer Umgebung. Als Highlight verfügt die Wohnung über einen Balkon und eine Loggia.
Raumaufteilung:
• Küche – ca. 8,94 m²
• (Wohn-)Zimmer – ca. 19,11 m²
• Zimmer 1 – ca. 13,47 m²
• Zimmer 2 – ca. 18,49 m²
• Badezimmer – ca. 4,75 m²
• WC – ca. 1,56 m²
• Speisekammer – ca. 1,03 m²
• Gang – ca. 6,07 m²
• Vorraum – ca. 4,54 m²
Die Freiflächen teilen sich wie folgt:
• Loggia – ca. 7,20 m²
• Balkon – ca. 4,63 m²
Die Wohnung erwartet Sie mit freundlichem Ambiente: Großzügige Fensterflächen schaffen eine offene, einladende Atmosphäre. Die hellen Wohnräume wirken weitläufig und bieten vielfältige Gestaltungsmöglichkeiten – ideal für Familien, Paare oder alle, die Wohnen mit Freiraum schätzen.
Besondere Highlights sind die Loggia, die vom Wohnzimmer aus zugänglich ist sowie der Balkon, der direkt von der Küche aus begehbar ist.
Die Böden in den Wohnräumen sind mit Parkett, im Gang und in der Küche mit Vinyl und im Badezimmer mit Fliesen gestaltet. Beheizt wird die Immobilie mittels Fernwärme.
1 PKW-Abstellplatz kann bei Bedarf für € 10.000,00 dazu gekauft werden.
Lage:
Sie haben die Natur vor der Haustüre, denn in kurzer Distanz befindet sich das Kreuzbergl mit seinen Waldwegen und Laufstrecken. Die Wohnung liegt in einer ruhigen, dennoch zentralen Lage. Durch die ausgezeichnete Anbindung an öffentliche Verkehrsmittel genießen Sie Flexibilität. Die lebendige Innenstadt befindet sich in fußläufiger Entfernung und bietet eine ausgezeichnete Infrastruktur, vielfältige Einkaufsmöglichkeiten, Gastronomie sowie ein breites Kultur- und Freizeitangebot. Der Wörthersee ist mit dem Auto in ca. 9 Minuten und mit dem Rad in ca. 15 Minuten zu erreichen. In unmittelbarer Nähe befinden sich Universität, Minimundus, Europa-Park und Strandbad Klagenfurt.
Diese Wohnung bietet eine ideale Gelegenheit, in einer der beliebtesten Gegenden Klagenfurts zu wohnen oder zu investieren.
Wir freuen uns auf Ihre Anfrage!
Benötigen Sie Unterstützung bei der Finanzierung der Wohnung? Wir kooperieren mit ausgewählten, unabhängigen Finanzierungsanbietern und können Ihnen gerne den Kontakt vermitteln, sodass Sie schnell, einfach und unverbindlich Finanzierungsvorschläge erhalten.
Für weitere Informationen stehen wir Ihnen jederzeit gerne zur Verfügung. Wir bitten um Ihr Verständnis, dass wir Besichtigungen nur mit Angabe Ihrer vollständigen Kontaktdaten vornehmen, da wir dem Abgeber gegenüber nachweisverpflichtet sind.
Alle Angaben laut Abgeber - Irrtümer vorbehalten.
Nebenkosten Kaufvertrag:
3,5 % Grunderwerbsteuer
1,1 % Grundbuchseintragungsgebühr
Kaufvertragserrichtung und Treuhandschaft lt. Tarifordnung des Vertragserrichters
Provision 3 % vom Kaufpreis zzgl. MwSt.
Dieses Angebot ist unverbindlich, freibleibend, Zwischenverwertung vorbehalten.
Wir weisen darauf hin, dass zwischen dem Vermittler und dem zu vermittelnden Dritten ein familiäres oder wirtschaftliches Naheverhältnis besteht.
Der Vermittler ist als Doppelmakler tätig.
Infrastruktur / Entfernungen
Gesundheit
Arzt <100m
Apotheke <150m
Krankenhaus <125m
Klinik <850m
Kinder & Schulen
Schule <200m
Kindergarten <125m
Universität <375m
Höhere Schule <1.050m
Nahversorgung
Supermarkt <100m
Bäckerei <150m
Einkaufszentrum <1.050m
Sonstige
Bank <100m
Geldautomat <100m
Post <925m
Polizei <750m
Verkehr
Bus <75m
Autobahnanschluss <2.400m
Bahnhof <1.225m
Flughafen <3.850m
Angaben Entfernung Luftlinie / Quelle: OpenStreetMap
Objektdaten
Ausstattung
- Gäste-WC
- Bad mit Badewanne
- Bad mit Fenster
- Fliesenboden
- Parkettboden
- Kunststoffboden
- Zentralheizung
- Fern Befeuerung
- Personen Fahrstuhl
- Ausrichtung Balkon/Terrasse - Ost
- Ausrichtung Balkon/Terrasse - West
Dokumente / Links
Zustand
- Baujahr
- 1962
- HWB
- 39 kWh/m² pro Jahr
- Klasse HWB
- B
- fGEE
- 0.95
- Klasse fGEE
- B
Flächen
- Anzahl der Zimmer
- 3.5
- Anzahl der Badezimmer
- 1
- Anzahl der sep. WCs
- 1
- Anzahl der Balkone
- 1
- Anzahl der Logia
- 1
- Stellplätze
- 1
- Wohnfläche
- 78m²
- Kellerfläche
- 9m²
Kosten
- Kaufpreis Brutto
- € 290.000,00
- Betriebskosten
- € 205,18
- Heizkosten
- € 66,52
- Sonstige Kosten
- € 20,04
Verwaltung
- Verfügbar ab
- sofort
Wohnungen zum Kaufen in Österreich
Wohnungen zum Kaufen in Österreich
Andere Besucher suchen nach...
- Immobilien kaufen in 2601 Sollenau
- Immobilien in 4951 Polling im Innkreis, Oberösterreich
- Immobilien in 4742 Pram, Oberösterreich kaufen oder mieten
- Häuser kaufen in 2340 Mödling, Niederösterreich
- Häuser kaufen in 9421 Gemmersdorf, Kärnten
- Wohnungen / Eigentumswohnungen kaufen in 9431 St. Stefan, Kärnten
- Häuser kaufen in Bruck an der Leitha, Niederösterreich
- Immobilien mieten in Krems an der Donau, Niederösterreich
- Häuser zum Kaufen im Bezirk St. Pölten Land, Niederösterreich
- Büro / Praxen mieten in Rohrbach, Oberösterreich