3-Zimmer Neubauwohnung auf 2 Etagen zu kaufen!
-
Erstbezug
-
2025
-
sofort
Beschreibung
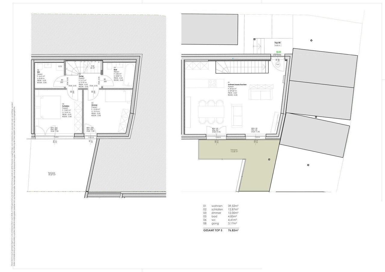
Exklusives Wohnerlebnis in Kundl – 3-Zimmer Neubauwohnung auf 2 Etagen! Diese außergewöhnliche 3-Zimmer-Neubau-Terrassenwohnung in der Wohnresidenz Kundl bietet eine einzigartige Architektur und moderne Wohnqualität: Auf 76,82 qm verteilt über zwei Etage bietet diese Wohnung einen harmonischen Mix aus stilvollem Design und komfortabler Funktionalität. - Großzügiger Wohnbereich: Der Zugang im Erdgeschoss führt direkt in die lichtdurchflutete 39,52 qm große Wohnküche – der ideale Ort für gesellige Stunden. Von der Küche aus betreten Sie die ca. 15 qm große Terrasse, die zu entspannten Momenten unter freiem Himmel einlädt. - Privater Rückzugsort: Eine stilvolle Treppe führt ins Untergeschoss, wo der Vorraum die beiden...
Exklusives Wohnerlebnis in Kundl – 3-Zimmer Neubauwohnung auf 2 Etagen!
Diese außergewöhnliche 3-Zimmer-Neubau-Terrassenwohnung in der Wohnresidenz Kundl bietet eine einzigartige Architektur und moderne Wohnqualität:
Auf 76,82 qm verteilt über zwei Etage bietet diese Wohnung einen harmonischen Mix aus stilvollem Design und komfortabler Funktionalität.
- Großzügiger Wohnbereich:
Der Zugang im Erdgeschoss führt direkt in die lichtdurchflutete 39,52 qm große Wohnküche – der ideale Ort für gesellige Stunden. Von der Küche aus betreten Sie die ca. 15 qm große Terrasse, die zu entspannten Momenten unter freiem Himmel einlädt.
- Privater Rückzugsort:
Eine stilvolle Treppe führt ins Untergeschoss, wo der Vorraum die beiden Schlafzimmer voneinander trennt – ein durchdachtes Layout für mehr Privatsphäre.
Das Badezimmer mit Badewanne und WC verspricht entspannende Wohlfühlmomente.
Nebenan befindet sich ein Abstellraum, welcher den Wohnkomfort abrundet.
Das exklusives Hauptschlafzimmer mit ca. 13 qm Wohnfläche und direktem Zugang zur zweiten ca. 20 qm großen Terrasse bietet es eine Oase der Ruhe.
- Praktischer Stauraum:
Ein externer Abstellraum gehört zur Wohnung, ideal für mehr Ordnung und Platz.
Ein Carport kann für 20.000 EUR erworben werden.
Diese Wohnung vereint Luxus, Komfort und Naturverbundenheit – ein Ort, der Sie willkommen heißt und zum Bleiben einlädt!
Kundl:
Einwohner: ca. 4.635
Seehöhe: ca. 526 m
Die Marktgemeinde Kundl befindet sich im Unterinntal auf einem Schwemmkegel der Wildschönauer Ache, zwischen den Kitzbüheler Alpen und dem Rofan Gebirge und ist Stützpunkt mehrerer namhafter internationaler Firmen.
Bekannt ist auch die Kundler Klamm, ein besonders sehenswerter Verbindungsweg zwischen dem Inntal und der Wildschönau mit einer beeindruckenden Schluchtenlandschaft, sowie die beiden Kirchen der Gemeinde Kundl.
In der Umgebung finden sich im Sommer zahlreiche sportliche und kulturelle Aktivitäten, idyllische Badeseen (Reintalersee, Berglsteinersee, Krummsee) und im Winter ist Kundl der perfekte Ausgangspunkt für die umliegenden Skigebiete Alpbachtal, Wildschönau und die „SkiWelt Wilder Kaiser-Brixental“.
In Kundl befinden sich Kindergarten, Volkschule und Neue Mittelschule, Ärzte, Apotheke, Banken, Konditorei und Bäckerei, diverse Lebensmittelgeschäfte und eine vielfältige Auswahl an Restaurants und Gasthöfen.
Öffentliche Verkehrsmittel vorhanden ( Bahn und Bus)
Wir weisen darauf hin, dass zwischen dem Vermittler und dem zu vermittelnden Dritten ein familiäres oder wirtschaftliches Naheverhältnis besteht.
Der Vermittler ist als Doppelmakler tätig.
Infrastruktur / Entfernungen
Gesundheit
Arzt <1.000m
Apotheke <1.000m
Klinik <5.500m
Kinder & Schulen
Schule <1.500m
Kindergarten <1.500m
Nahversorgung
Supermarkt <1.000m
Bäckerei <500m
Einkaufszentrum <5.500m
Sonstige
Bank <1.500m
Geldautomat <1.500m
Post <1.000m
Polizei <1.500m
Verkehr
Bus <500m
Autobahnanschluss <2.500m
Bahnhof <1.000m
Angaben Entfernung Luftlinie / Quelle: OpenStreetMap
Objektdaten
Ausstattung
- Fußbodenheizung
- Fern Befeuerung
Zustand
- Zustand
- ERSTBEZUG
- Baujahr
- 2025
- Alter
- NEUBAU
- HWB
- 34.5 kWh/m² pro Jahr
- Klasse HWB
- B
- fGEE
- 0.73
- Klasse fGEE
- A
Flächen
- Anzahl der Zimmer
- 3
- Anzahl der Badezimmer
- 1
- Anzahl der sep. WCs
- 1
- Anzahl der Terrassen
- 2
- Wohnfläche
- 77m²
- Terrassenfläche
- 2m²
Kosten
- Kaufpreis Brutto
- € 480.000,00
Verwaltung
- Verfügbar ab
- sofort
Wohnungen zum Kaufen im Umkreis von Kundl
Wohnungen zum Kaufen im Umkreis von Kundl
Wohnungen zum Kaufen in Österreich
Andere Besucher suchen nach...
- Grundstücke kaufen in 3400 Weidlingbach
- Wohnungen kaufen in 4663 Laakirchen
- Häuser in 7471 Rechnitz
- Wohnungen in 2410 Hainburg an der Donau
- Häuser kaufen in 2432 Schwadorf
- Wohnungen kaufen in 3002 Purkersdorf
- Häuser in 3150 Wilhelmsburg
- Wohnungen kaufen in 3470 Engelmannsbrunn
- Grundstücke kaufen im Bezirk Mattersburg
- Grundstücke kaufen im Bezirk Gmunden