Sonnige 5-Zimmer-Penthouse-Wohnung in Kundl zu kaufen!
-
Erstbezug
-
2025
-
sofort
Beschreibung
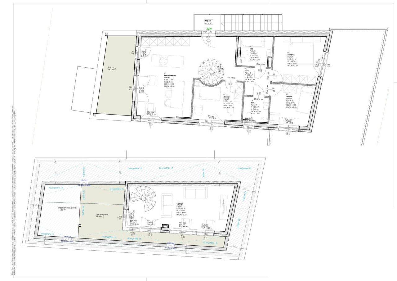
Exklusives Penthouse im Neubauprojekt "Wohnresidence Kundl" in Weitschön Erfüllen Sie sich Ihren Wohntraum! Diese moderne Penthouse im Herzen des Neubauprojekts ‚Wohnresidence Kundl‘ vereint exklusives Wohnen mit einer idyllischen, familiären Lage – abseits vom Trubel des Zentrums und eingebettet in Freiland. Highlights auf einen Blick: - Wohnfläche: 101,43 qm verteilt auf 2 Etagen mit 5 lichtdurchflutete Zimmer. - Großzügige Wohnküche: 33,41 qm, Zugang zum 14 qm großen Balkon. - Privaträume: 3 Schlafzimmer, darunter ein Hauptschlafzimmer (12,61 qm) und zwei zusätzliche Zimmer. - Komfortable Badezimmer: Gäste-WC mit Handwaschbecken und ein zusätzliches stilvolles Badezimmer mit WC und Badewanne. - Obergeschoss: Wohnraum mit 22,60...
Exklusives Penthouse im Neubauprojekt "Wohnresidence Kundl" in Weitschön
Erfüllen Sie sich Ihren Wohntraum! Diese moderne Penthouse im Herzen des Neubauprojekts ‚Wohnresidence Kundl‘ vereint exklusives Wohnen mit einer idyllischen, familiären Lage – abseits vom Trubel des Zentrums und eingebettet in Freiland.
Highlights auf einen Blick:
- Wohnfläche: 101,43 qm verteilt auf 2 Etagen mit 5 lichtdurchflutete Zimmer.
- Großzügige Wohnküche: 33,41 qm, Zugang zum 14 qm großen Balkon.
- Privaträume: 3 Schlafzimmer, darunter ein Hauptschlafzimmer (12,61 qm) und zwei zusätzliche Zimmer.
- Komfortable Badezimmer: Gäste-WC mit Handwaschbecken und ein zusätzliches stilvolles Badezimmer mit WC und Badewanne.
- Obergeschoss: Wohnraum mit 22,60 qm und Zugang zur herrlichen 20 qm großen Terrasse.
- Praktischer Abstellraum: 6 qm für zusätzlichen Stauraum im Untergeschß.
- Carportstellplätze: optional erhältlich für EUR 20.000 pro Stellplatz.
Die außergewöhnliche Architektur überzeugt mit einem durchdachten Layout und hochwertiger Ausstattung. Der Zugang zum Penthouse erfolgt über eine Außentreppe direkt in die großzügige Wohnküche – von hier erreicht man einen 14 qm großen Balkon, perfekt für gesellige Abende oder ruhige Momente. Im Vorraum bieten drei Schlafzimmer, ein Gäste-WC und das Badezimmer höchsten Komfort für Familien oder Paare.
Eine elegante Wendeltreppe führt ins Obergeschoss, wo Sie ein lichtdurchfluteter offener Wohnraum und eine sonnige Terrasse erwarten – ideal für Entspannung oder gesellige Anlässe im Freien.
Kundl:
Einwohner: ca. 4.635
Seehöhe: ca. 526 m
Die Marktgemeinde Kundl befindet sich im Unterinntal auf einem Schwemmkegel der Wildschönauer Ache, zwischen den Kitzbüheler Alpen und dem Rofan Gebirge und ist Stützpunkt mehrerer namhafter internationaler Firmen.
Bekannt ist auch die Kundler Klamm, ein besonders sehenswerter Verbindungsweg zwischen dem Inntal und der Wildschönau mit einer beeindruckenden Schluchtenlandschaft, sowie die beiden Kirchen der Gemeinde Kundl.
In der Umgebung finden sich im Sommer zahlreiche sportliche und kulturelle Aktivitäten, idyllische Badeseen (Reintalersee, Berglsteinersee, Krummsee) und im Winter ist Kundl der perfekte Ausgangspunkt für die umliegenden Skigebiete Alpbachtal, Wildschönau und die „SkiWelt Wilder Kaiser-Brixental“.
In Kundl befinden sich Kindergarten, Volkschule und Neue Mittelschule, Ärzte, Apotheke, Banken, Konditorei und Bäckerei, diverse Lebensmittelgeschäfte und eine vielfältige Auswahl an Restaurants und Gasthöfen.
Öffentliche Verkehrsmittel vorhanden ( Bahn und Bus)
Wir weisen darauf hin, dass zwischen dem Vermittler und dem zu vermittelnden Dritten ein familiäres oder wirtschaftliches Naheverhältnis besteht.
Der Vermittler ist als Doppelmakler tätig.
Infrastruktur / Entfernungen
Gesundheit
Arzt <1.000m
Apotheke <1.000m
Klinik <5.500m
Kinder & Schulen
Schule <1.500m
Kindergarten <1.500m
Nahversorgung
Supermarkt <1.000m
Bäckerei <500m
Einkaufszentrum <5.500m
Sonstige
Bank <1.500m
Geldautomat <1.500m
Post <1.000m
Polizei <1.500m
Verkehr
Bus <500m
Autobahnanschluss <2.500m
Bahnhof <1.000m
Angaben Entfernung Luftlinie / Quelle: OpenStreetMap
Objektdaten
Ausstattung
- Fußbodenheizung
- Fern Befeuerung
Zustand
- Zustand
- ERSTBEZUG
- Baujahr
- 2025
- Alter
- NEUBAU
- HWB
- 34.5 kWh/m² pro Jahr
- Klasse HWB
- B
- fGEE
- 0.73
- Klasse fGEE
- A
Flächen
- Anzahl der Zimmer
- 5
- Anzahl der Badezimmer
- 1
- Anzahl der sep. WCs
- 1
- Anzahl der Balkone
- 1
- Anzahl der Terrassen
- 1
- Wohnfläche
- 101m²
- Terrassenfläche
- 1m²
Kosten
- Kaufpreis Brutto
- € 737.300,00
Verwaltung
- Verfügbar ab
- sofort
Wohnungen zum Kaufen im Umkreis von Kundl
Wohnungen zum Kaufen im Umkreis von Kundl
Wohnungen zum Kaufen in Österreich
Andere Besucher suchen nach...
- Grundstücke kaufen in 3400 Weidlingbach
- Wohnungen kaufen in 4663 Laakirchen
- Häuser in 7471 Rechnitz
- Wohnungen in 2410 Hainburg an der Donau
- Häuser kaufen in 2432 Schwadorf
- Wohnungen kaufen in 3002 Purkersdorf
- Häuser in 3150 Wilhelmsburg
- Wohnungen kaufen in 3470 Engelmannsbrunn
- Grundstücke kaufen im Bezirk Mattersburg
- Grundstücke kaufen im Bezirk Gmunden