3 Zimmer Eigentumswohnung mit schöner Landhausküche und Tischherd
Beschreibung
Allgemeine Informationen
Willkommen in Ihrer neuen Eigentumswohnung in Trieben! Diese charmante 3-Zimmer-Wohnung befindet sich in der 1. Etage und überzeugt durch ihre sonnige Lage, die eine angenehme Atmosphäre und viel Tageslicht bietet. Ideal für Paare, Familien oder als Feriendomizil, bietet diese Wohnung den perfekten Rückzugsort.
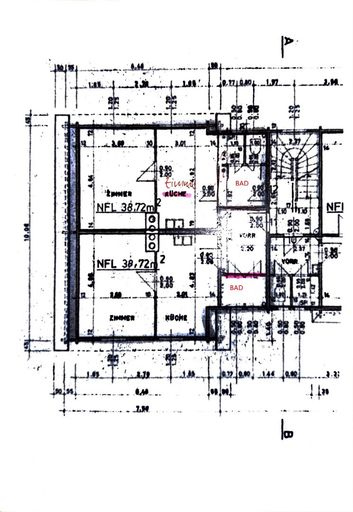
Raumaufteilung
Die durchdachte Raumaufteilung der Wohnung gestaltet sich wie folgt:
-
Vorraum: Der Vorraum bietet Ihnen Zugang zu den verschiedenen Räumen der Wohnung.
-
Wohnzimmer: Das helle Wohnzimmer ist der zentrale Treffpunkt der Wohnung und bietet Platz für Ihre individuellen Wohnideen.
-
Küche: Die schöne Landhausküche ist mit einem Tischherd ausgestattet, der...
Allgemeine Informationen
Willkommen in Ihrer neuen Eigentumswohnung in Trieben! Diese charmante 3-Zimmer-Wohnung befindet sich in der 1. Etage und überzeugt durch ihre sonnige Lage, die eine angenehme Atmosphäre und viel Tageslicht bietet. Ideal für Paare, Familien oder als Feriendomizil, bietet diese Wohnung den perfekten Rückzugsort.
Raumaufteilung
Die durchdachte Raumaufteilung der Wohnung gestaltet sich wie folgt:
Vorraum: Der Vorraum bietet Ihnen Zugang zu den verschiedenen Räumen der Wohnung.
Wohnzimmer: Das helle Wohnzimmer ist der zentrale Treffpunkt der Wohnung und bietet Platz für Ihre individuellen Wohnideen.
Küche: Die schöne Landhausküche ist mit einem Tischherd ausgestattet, der nicht nur für eine gemütliche Atmosphäre sorgt, sondern auch eine praktische Kochmöglichkeit bietet. Hier ist auch genug Platz für einen Essbereich, um gesellige Abende zu verbringen.
Schlafzimmer:
- Schlafzimmer 1: Geräumig und lichtdurchflutet, ideal für erholsame Nächte.
- Schlafzimmer 2: Ebenfalls großzügig geschnitten, bietet Platz für Ihre individuellen Einrichtungsideen.
Badezimmer 1: Nach Norden ausgerichtet, ausgestattet mit einer Whirlpooleckbadewanne, einem WC und einem Fenster, das für natürliches Licht sorgt.
Badezimmer 2: Nach Süden ausgerichtet, mit Dusche, WC und Fenster, bietet es zusätzlichen Komfort und Flexibilität.
Zusätzliche Ausstattung
Zur Wohnung gehören:
- 2 Kellerabteile: Bieten Ihnen zusätzlichen Stauraum für Ihre persönlichen Gegenstände.
- 2 Holzlagen: Ideal für die Lagerung von Holz und anderen Materialien.
Heizung
Die Wohnung wird durch eine Gas-Zentralheizung beheizt, zusätzlich sorgt der Tischherd in der Küche für wohlige Wärme und ein gemütliches Ambiente.
Lage
Das Zentrum sowie die Sportanlagen sind in wenigen Gehminuten erreichbar, was Ihnen eine optimale Erreichbarkeit von Einkaufsmöglichkeiten und Freizeitaktivitäten bietet. Zudem zeichnet sich Trieben durch eine sehr gute Verkehrsanbindung aus, sodass Sie schnell und bequem zu Ihren Zielen gelangen.
Die beliebten Skigebiete Hohentauern und Kaiserau sind nur etwa 15 Minuten mit dem Auto entfernt. Hier erwarten Sie bestens präparierte Pisten und vielfältige Freizeitmöglichkeiten im Winter. Für Wanderliebhaber bieten sich in der näheren Umgebung zahlreiche Wandergebiete mit abwechslungsreichen Routen und atemberaubenden Ausblicken in die umliegende Berglandschaft, die ebenfalls in kurzer Zeit erreichbar sind.
Zweitwohnsitzfähigkeit
Ein weiteres Highlight dieser Immobilie ist die Zweitwohnsitzfähigkeit, die Ihnen die Möglichkeit gibt, die Wohnung auch als Feriendomizil zu nutzen.
Lage
Das Zentrum sowie die Sportanlagen sind in ca. 2 Autominuten erreichbar, was Ihnen eine optimale Erreichbarkeit von Einkaufsmöglichkeiten und Freizeitaktivitäten bietet. Zudem zeichnet sich Trieben durch eine sehr gute Verkehrsanbindung aus, sodass Sie schnell und bequem zu Ihren Zielen gelangen.
Die beliebten Skigebiete Hohentauern und Kaiserau sind nur etwa 15 Minuten mit dem Auto entfernt. Hier erwarten Sie bestens präparierte Pisten und vielfältige Freizeitmöglichkeiten im Winter. Für Wanderliebhaber bieten sich in der näheren Umgebung zahlreiche Wandergebiete mit abwechslungsreichen Routen und atemberaubenden Ausblicken in die umliegende Berglandschaft, die ebenfalls in kurzer Zeit erreichbar sind.
Fazit
Diese 3-Zimmer Eigentumswohnung in Trieben bietet Ihnen eine hervorragende Gelegenheit, ein neues Zuhause in einer sonnigen Lage zu finden oder ein Feriendomizil zu schaffen. Wir freuen uns darauf, Ihnen diese Immobilie bei einer Besichtigung näher vorzustellen. Bei Fragen oder zur Vereinbarung eines Termins stehen wir Ihnen jederzeit gerne zur Verfügung!
Der Vermittler ist als Doppelmakler tätig.
Infrastruktur / Entfernungen
Gesundheit
Arzt <500m
Apotheke <1.000m
Krankenhaus <9.500m
Kinder & Schulen
Schule <1.000m
Kindergarten <1.000m
Nahversorgung
Supermarkt <1.000m
Bäckerei <1.000m
Sonstige
Bank <1.000m
Geldautomat <1.000m
Post <1.000m
Polizei <500m
Verkehr
Bus <500m
Autobahnanschluss <1.000m
Bahnhof <1.000m
Flughafen <1.500m
Angaben Entfernung Luftlinie / Quelle: OpenStreetMap
Objektdaten
Ausstattung
- Bad mit Dusche
- Bad mit Badewanne
- Bad mit Fenster
- Einbauküche
- Ofen
- Zentralheizung
- Befeuerung mit Gas
- Befeuerung mit Holz
Zustand
- Baujahr
- 1922
- Alter
- ALTBAU
- HWB
- 186.5 kWh/m² pro Jahr
- Klasse HWB
- E
- fGEE
- 2.64
- Klasse fGEE
- E
Flächen
- Anzahl der Zimmer
- 3
- Anzahl der Badezimmer
- 2
- Anzahl der sep. WCs
- 2
- Wohnfläche
- 77m²
Kosten
- Kaufpreis Brutto
- € 98.000,00
- Betriebskosten
- € 221,34
- Sonstige Kosten
- € 85,74
Verwaltung
- Verfügbar ab
- Nach Vereinbarung
- Ferienimmobilie
- Ja
Wohnungen zum Kaufen im Umkreis von Trieben
Wohnungen zum Kaufen im Umkreis von Trieben
Wohnungen zum Kaufen in Österreich
Andere Besucher suchen nach...
- Grundstücke kaufen in 3400 Weidlingbach
- Wohnungen kaufen in 4663 Laakirchen
- Häuser in 7471 Rechnitz
- Wohnungen in 2410 Hainburg an der Donau
- Häuser kaufen in 2432 Schwadorf
- Wohnungen kaufen in 3002 Purkersdorf
- Häuser in 3150 Wilhelmsburg
- Wohnungen kaufen in 3470 Engelmannsbrunn
- Grundstücke kaufen im Bezirk Mattersburg
- Grundstücke kaufen im Bezirk Gmunden