4 Zimmer Eigentumswohnung im Hochparterre mit südseitiger Loggia und Garage
Beschreibung
Objektbeschreibung
Diese helle Eigentumswohnung mit einer großzügigen Fläche von ca. 106 m² befindet sich in einer sonnigen und ruhigen Lage in Stainach, ideal für Familien und Paare, die eine harmonische Wohnatmosphäre suchen. Die Wohnung liegt im Hochparterre eines Mehrfamilienhauses und bietet durch ihre südseitige Loggia optimale Lichtverhältnisse und Ausblick ins Grüne. Eine Garage rundet das Angebot ab und sorgt für zusätzlichen Komfort.
Raumaufteilung
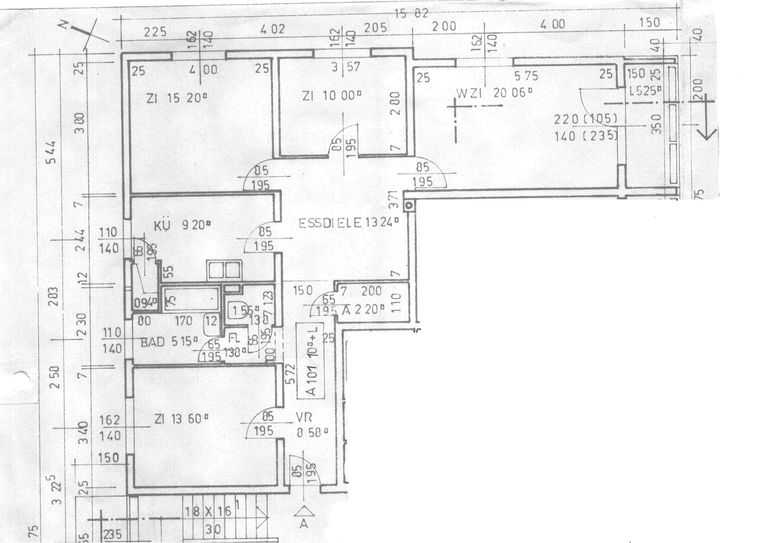
Die Wohnung besticht durch ihre durchdachte Raumaufteilung, die sowohl Funktionalität als auch Gemütlichkeit vereint. Folgende Räume stehen Ihnen zur Verfügung:
- Speis: Praktischer Stauraum für Ihre Vorräte.
- Abstellraum: Zusätzlicher Platz für Haushaltsgegenstände.
- Küche: Die moderne Küche...
Objektbeschreibung
Diese helle Eigentumswohnung mit einer großzügigen Fläche von ca. 106 m² befindet sich in einer sonnigen und ruhigen Lage in Stainach, ideal für Familien und Paare, die eine harmonische Wohnatmosphäre suchen. Die Wohnung liegt im Hochparterre eines Mehrfamilienhauses und bietet durch ihre südseitige Loggia optimale Lichtverhältnisse und Ausblick ins Grüne. Eine Garage rundet das Angebot ab und sorgt für zusätzlichen Komfort.
Raumaufteilung
Die Wohnung besticht durch ihre durchdachte Raumaufteilung, die sowohl Funktionalität als auch Gemütlichkeit vereint. Folgende Räume stehen Ihnen zur Verfügung:
- Speis: Praktischer Stauraum für Ihre Vorräte.
- Abstellraum: Zusätzlicher Platz für Haushaltsgegenstände.
- Küche: Die moderne Küche bietet ausreichend Platz zum Kochen und Zubereiten von Mahlzeiten.
- Essdiele: Ein einladender Raum für gemeinsame Mahlzeiten mit Familie und Freunden.
- Vorraum: Der Eingangsbereich heißt Sie und Ihre Gäste herzlich willkommen.
- 3 Schlafzimmer: Ideal für eine Familie oder als Gästezimmer, Homeoffice etc.
- Wohnzimmer: Heller und geräumiger Raum mit Zugang zur südseitigen Loggia, perfekt für entspannte Stunden.
- Flur: Vom Flur aus gelangen Sie direkt in das Badezimmer sowie das separate WC.
- Badezimmer: Ausgestattet mit Dusche und Fenster, bietet es sowohl Funktionalität als auch Tageslicht.
- WC: Separates WC für zusätzlichen Komfort.
- Kellerabteil: Bietet zusätzlichen Stauraum.
Renovierungen und Ausstattung
Im Jahr 2015 wurde die Wohnung umfassend renoviert, einschließlich der Modernisierung des Badezimmers und der restlichen Räume. Zudem erhielt das Mehrfamilienwohnhaus im selben Jahr einen Vollwärmeschutz, was die Energieeffizienz der Wohnung erhöht. Die Fenster wurden 1998 mit praktischen Innenjalousien ausgestattet, die für zusätzlichen Sichtschutz und Verdunkelung sorgen.
Lage
Die ruhige Lage der Wohnung ermöglicht eine entspannte Wohnatmosphäre, während gleichzeitig alle wichtigen Einrichtungen des täglichen Bedarfs in der Nähe sind. Die gute Anbindung an öffentliche Verkehrsmittel sowie die Nähe zu Schulen, Einkaufsmöglichkeiten und Freizeitangeboten machen diesen Standort besonders attraktiv.
Stainach besticht durch seine zentrale und zugleich naturnahe Lage.
Freizeitmöglichkeiten:
Besuchen Sie das schöne Schloss Trautenfels, das für seine beeindruckende Architektur und den herrlichen Ausblick bekannt ist. Die Ortschaft Pürgg, auch bekannt als „Das Kripperl von der Steiermark“, ist ebenfalls in der Nähe und lädt zu gemütlichen Spaziergängen ein.
Distanz zu beliebten Ausflugszielen:
Den wärmsten Alpenmoorsee der Steiermark, den Putterersee, erreichen Sie in ca. 8 Minuten. Die wunderschönen Seen des Salzkammerguts sind von hier aus leicht erreichbar. Der Altausseer See ist nur etwa 15 Minuten mit dem Auto entfernt, der Grundlsee liegt in rund 20 Minuten Entfernung und zum Toplitzsee gelangen Sie in etwa 25 Minuten . Diese traumhaften Seen laden in den Sommertagen zum Baden, Segeln und Wandern ein und bieten im Winter zahlreiche Freizeitmöglichkeiten.
Die schneesicheren Skigebiete Tauplitz, Riesneralm und Planneralm sind nur 15 bis 30 Autominuten entfernt. Der Hauser Kaibling und das bekannte Skigebiet Schladming sind ebenfalls schnell erreichbar und bieten erstklassige Pisten für Winter- und Skiurlauber.
Darüber hinaus sind der Golf & Landclub Ennstal und der Golf & Countryclub Schloss Pichlarn in nur etwa 12 Minuten erreichbar.
Für die warmen Monate steht Ihnen in Stainach ein Freibad zur Verfügung, das ideale Bedingungen zum Schwimmen und Entspannen bietet.
Fazit
Diese helle Eigentumswohnung mit ca. 106 m² und einer sonnigen Loggia bietet ein ideales Zuhause für Familien und Paare, die Wert auf eine ruhige Wohnlage und eine moderne Ausstattung legen. Die durchdachte Raumaufteilung, die umfangreichen Renovierungen und der zusätzliche Komfort einer Garage machen dieses Objekt zu einer attraktiven Wahl. Lassen Sie sich diese Chance nicht entgehen, und vereinbaren Sie einen Besichtigungstermin, um sich persönlich von der Qualität und dem Charme dieser Wohnung zu überzeugen
Der Vermittler ist als Doppelmakler tätig.
Infrastruktur / Entfernungen
Gesundheit
Arzt <500m
Apotheke <500m
Kinder & Schulen
Schule <500m
Kindergarten <3.500m
Nahversorgung
Supermarkt <500m
Bäckerei <3.000m
Sonstige
Bank <500m
Geldautomat <500m
Post <1.000m
Polizei <500m
Verkehr
Bus <500m
Bahnhof <500m
Flughafen <2.500m
Angaben Entfernung Luftlinie / Quelle: OpenStreetMap
Objektdaten
Ausstattung
- Bad mit Dusche
- Bad mit Fenster
- Einbauküche
- Elektrische Befeuerung
- Ausrichtung Balkon/Terrasse - Süd
Zustand
- Baujahr
- 1975
- Alter
- NEUBAU
- HWB
- 54.14 kWh/m² pro Jahr
- Klasse HWB
- C
- fGEE
- 1.41
- Klasse fGEE
- C
Flächen
- Anzahl der Zimmer
- 4
- Anzahl der Badezimmer
- 1
- Anzahl der sep. WCs
- 1
- Nutzfläche
- 106m²
Kosten
- Kaufpreis Brutto
- € 239.000,00
- Betriebskosten
- € 130,02
- Sonstige Kosten
- € 138,20
Verwaltung
- Verfügbar ab
- Nach Vereinbarung
Wohnungen zum Kaufen im Umkreis von Stainach-Pürgg
Wohnungen zum Kaufen im Umkreis von Stainach-Pürgg
Wohnungen zum Kaufen in Österreich
Andere Besucher suchen nach...
- Grundstücke kaufen in 3400 Weidlingbach
- Wohnungen kaufen in 4663 Laakirchen
- Häuser in 7471 Rechnitz
- Wohnungen in 2410 Hainburg an der Donau
- Häuser kaufen in 2432 Schwadorf
- Wohnungen kaufen in 3002 Purkersdorf
- Häuser in 3150 Wilhelmsburg
- Wohnungen kaufen in 3470 Engelmannsbrunn
- Grundstücke kaufen im Bezirk Mattersburg
- Grundstücke kaufen im Bezirk Gmunden