TRAUN: Gepflegte 2-Zimmer-Wohnung im EG mit Grünblick, Parkplatz und WG-geeignet – attraktive Betriebskosten
-
sofort
Beschreibung
Gepflegte 2-Zimmer-Wohnung in 4050 Traun – Wohnen mit Grünblick
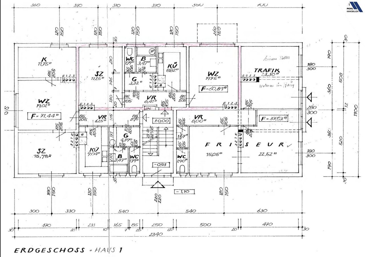
Diese selten verfügbare Wohnung im Erdgeschoss mit Halbstock überzeugt auf ca. 60,81 m² mit einem optimalen Grundriss und einem angenehmen Wohnambiente. Der schöne Grünblick sorgt für Ruhe und Lebensqualität – ideal für Singles, Paare oder auch als WG.
Obwohl die Wohnung bereits etwas in die Jahre gekommen ist, wurde sie laufend instand gehalten. Die Fassade wurde 2004 erneuert, und die Böden wurden bereits modernisiert. Eine Einbauküche, ein helles Badezimmer mit Fenster und Dusche sowie ein separates WC bieten hohen Wohnkomfort.
Die Raumaufteilung ist wie folgt: 1 Schlafzimmer, Wohnzimmer, Küche mit Essplatz,...
Gepflegte 2-Zimmer-Wohnung in 4050 Traun – Wohnen mit Grünblick
Diese selten verfügbare Wohnung im Erdgeschoss mit Halbstock überzeugt auf ca. 60,81 m² mit einem optimalen Grundriss und einem angenehmen Wohnambiente. Der schöne Grünblick sorgt für Ruhe und Lebensqualität – ideal für Singles, Paare oder auch als WG.
Obwohl die Wohnung bereits etwas in die Jahre gekommen ist, wurde sie laufend instand gehalten. Die Fassade wurde 2004 erneuert, und die Böden wurden bereits modernisiert. Eine Einbauküche, ein helles Badezimmer mit Fenster und Dusche sowie ein separates WC bieten hohen Wohnkomfort.
Die Raumaufteilung ist wie folgt: 1 Schlafzimmer, Wohnzimmer, Küche mit Essplatz, WC, Dusche und Vorraum.
Ein schöner, großer Garten steht zur allgemeinen Nutzung bereit und bietet zusätzlichen Raum zur Erholung und Freizeitgestaltung. Die nahegelegenen Traunauen sowie der Waldfriedhof laden zu entspannten Spaziergängen und erholsamen Stunden in der Natur ein.
Kabel- und Satellitenanschlüsse sind vorhanden. Parkplätze vor dem Haus sowie ein Fahrradraum ergänzen das Angebot perfekt.
Auch für Anleger ist diese Wohnung attraktiv: Die gute Lage und die solide Substanz gewährleisten eine stabile Vermietbarkeit und langfristige Wertsteigerung.
Vereinbaren Sie noch heute einen Besichtigungstermin und überzeugen Sie sich selbst von dieser tollen Gelegenheit!
Sabine Pickl | Immobilienmaklerin
+43 699 123 884 24
www.immobilien-pickl.at
Sonstiges:
Hinweise: Die angegebenen Informationen sind nach bestem Wissen erstellt. Für Angaben, Auskünfte und
Flächen, die uns von Eigentümerseite und Dritten zur Verfügung gestellt wurden, können wir keine Haftung
übernehmen. Der guten Ordnung halber erlauben wir uns darauf hinzuweisen, dass nur im Abschlussfalle
ein Vermittlungshonorar in der Höhe von 3 % des Kaufpreises bzw. 3 Bruttomonatsmieten (bei Wohnungen
1 bzw. 2 Bruttomonatsmieten) zuzüglich 20 % Ust. für unsere Verdienstlichkeit in Rechnung gestellt wird,
sofern im Angebot nichts anderes vermerkt ist. Dieses Angebot ist freibleibend. Gemäß § 5 Absatz 3
Maklergesetz wird darauf hingewiesen, dass Immobilien Pickl als Doppelmakler tätig ist und zwischen dem
Vermittler & dem Eigentümer ein wirtschaftliches Naheverhältnis besteht. Im Falle der Nichtvorlage des
Energieausweises gemäß EAVG seitens des Verkäufers gilt zumindest eine dem Alter und der Art des
Gebäudes entsprechende Gesamtenergieeffizienz als vereinbart. Unsere Geschäftsbedingungen /
Impressum sowie unsere Datenschutzerklärung und unsere AGB finden sie auf unserer Homepage unter
www.immobilien-pickl.at. DATENSCHUTZ: Wir machen darauf aufmerksam, dass wir Ihnen möglicherweise
Informationen über gleichwertige Objekte per elektronischer Post zusenden werden. Wenn Sie dies nicht
wollen, geben Sie uns bitte Bescheid!
Der Vermittler ist als Doppelmakler tätig.
Infrastruktur / Entfernungen
Gesundheit
Arzt <500m
Apotheke <1.500m
Krankenhaus <6.500m
Klinik <500m
Kinder & Schulen
Kindergarten <500m
Schule <500m
Universität <4.500m
Höhere Schule <8.500m
Nahversorgung
Supermarkt <500m
Bäckerei <1.000m
Einkaufszentrum <2.000m
Sonstige
Bank <1.000m
Geldautomat <1.000m
Post <2.000m
Polizei <2.000m
Verkehr
Bus <500m
Straßenbahn <2.000m
Bahnhof <1.000m
Autobahnanschluss <3.000m
Flughafen <5.000m
Angaben Entfernung Luftlinie / Quelle: OpenStreetMap
Objektdaten
Ausstattung
- WG geeignet
- Gartennutzung
- Teilmöbliert
- Kabel/SAT-TV
- Fahrradraum
- Rolladen
- Bad mit Dusche
- Bad mit Fenster
- Einbauküche
- Befeuerung mit Gas
- Massiv Bauweise
Dokumente / Links
Zustand
- Zustand
- GEPFLEGT
- Baujahr
- 1968
- HWB
- 56 kWh/m² pro Jahr
- Klasse HWB
- C
- fGEE
- 1.14
- Klasse fGEE
- C
Flächen
- Anzahl der Badezimmer
- 1
- Anzahl der sep. WCs
- 1
- Wohnfläche
- 61m²
- Nutzfläche
- 61m²
Kosten
- Kaufpreis Brutto
- € 169.000,00
- Betriebskosten
- € 102,69
- Heizkosten
- € 70,00
- Sonstige Kosten
- € 60,00
Verwaltung
- Verfügbar ab
- sofort
Wohnungen zum Kaufen im Umkreis von Traun
Wohnungen zum Kaufen im Umkreis von Traun
Wohnungen zum Kaufen in Österreich
Andere Besucher suchen nach...
- Grundstücke kaufen in 3400 Weidlingbach
- Wohnungen kaufen in 4663 Laakirchen
- Häuser in 7471 Rechnitz
- Wohnungen in 2410 Hainburg an der Donau
- Häuser kaufen in 2432 Schwadorf
- Wohnungen kaufen in 3002 Purkersdorf
- Häuser in 3150 Wilhelmsburg
- Wohnungen kaufen in 3470 Engelmannsbrunn
- Grundstücke kaufen im Bezirk Mattersburg
- Grundstücke kaufen im Bezirk Gmunden