helle großzügige Dachgeschoßwohnung - großzügiger Grundriss
€ 235.500
€ 3.317 / m²
4020 Linz
-
sofort
Beschreibung
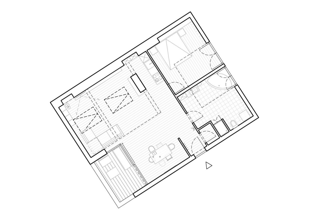
W 08 Diese Wohnung liegt am Andreas Hofer Park mit Blick auf den Park. Die Infrastruktur ist hervorragend. Fußläufig sind Einkaufsmöglichkeiten, Apotheke und der öffentliche Verkehr sowie Ärzte erreichbar. Diese zum Verkauf stehende Dachgeschoßwohnung befindet sich in einem älteren Wohnhaus im 3. OG und wurde 1998 neu errichtet. Folgende Highlights: - Das Dach und die Dachflächenfenster wurden 2024 komplett erneuert. - moderner Grundriss - ein großzügiges Wohnesszimmer mit offener Küche und einer vorglagerten, westseitigen Terrasse. - Das Schlafzimmer ist ostseitig situiert,mit Blick in den begrünten Innenhof. - Das Schlafzimmer ist mit Bett und modernem großen Kasten möbliert. - Das Badezimmer...
W 08
Diese Wohnung liegt am Andreas Hofer Park mit Blick auf den Park.
Die Infrastruktur ist hervorragend. Fußläufig sind Einkaufsmöglichkeiten, Apotheke und der öffentliche Verkehr sowie Ärzte erreichbar.
Diese zum Verkauf stehende Dachgeschoßwohnung befindet sich in einem älteren Wohnhaus im 3. OG und wurde 1998 neu errichtet.
Folgende Highlights:
- Das Dach und die Dachflächenfenster wurden 2024 komplett erneuert.
- moderner Grundriss
- ein großzügiges Wohnesszimmer mit offener Küche und einer vorglagerten, westseitigen Terrasse.
- Das Schlafzimmer ist ostseitig situiert,mit Blick in den begrünten Innenhof.
- Das Schlafzimmer ist mit Bett und modernem großen Kasten möbliert.
- Das Badezimmer / WC ist sehr groß und hat eine Badewanne, eine Dusche inkl. vorhandener Waschmaschine und Einbaumöbel.
- Ein Abstellraum
- Im Wohnzimmer ist ein offener Blick in das Dach gegeben und ist hier eine hohe Raumhöhe vorhanden.
- die Küche ist möbliert
Bei Anmeldung des Hauptwohnsitzes ist derzeit eine Ersparnis von 1,1 % Grundeintragungsgebühr usw. unter bestimmten Voraussetzungen, möglich (dzt. gültig bis 1.7.26).
Bei Interessen wenden Sie sich bitte an
Frau Claudia Stummer MBA
Tel: 0676 52 19 484
office@domo-immobilien.at
Diese Wohnung liegt am Andreas Hofer Park mit Blick auf den Park.
Die Infrastruktur ist hervorragend. Fußläufig sind Einkaufsmöglichkeiten, Apotheke und der öffentliche Verkehr sowie Ärzte erreichbar.
Diese zum Verkauf stehende Dachgeschoßwohnung befindet sich in einem älteren Wohnhaus im 3. OG und wurde 1998 neu errichtet.
Folgende Highlights:
- Das Dach und die Dachflächenfenster wurden 2024 komplett erneuert.
- moderner Grundriss
- ein großzügiges Wohnesszimmer mit offener Küche und einer vorglagerten, westseitigen Terrasse.
- Das Schlafzimmer ist ostseitig situiert,mit Blick in den begrünten Innenhof.
- Das Schlafzimmer ist mit Bett und modernem großen Kasten möbliert.
- Das Badezimmer / WC ist sehr groß und hat eine Badewanne, eine Dusche inkl. vorhandener Waschmaschine und Einbaumöbel.
- Ein Abstellraum
- Im Wohnzimmer ist ein offener Blick in das Dach gegeben und ist hier eine hohe Raumhöhe vorhanden.
- die Küche ist möbliert
Bei Anmeldung des Hauptwohnsitzes ist derzeit eine Ersparnis von 1,1 % Grundeintragungsgebühr usw. unter bestimmten Voraussetzungen, möglich (dzt. gültig bis 1.7.26).
Bei Interessen wenden Sie sich bitte an
Frau Claudia Stummer MBA
Tel: 0676 52 19 484
office@domo-immobilien.at
Objektdaten
Ausstattung
- Teilmöbliert
- Kabel/SAT-TV
- Unterkellert
- Etage Heizung
- Befeuerung mit Gas
- Aussichtslage
- Aussichtslage Unverbaubar
- Bus
- Eisenbahn
- Gasetagenheizung
- Gegensprechanlage
- Geschirrspüler
- Glaskeramikfeld
- Kabel/SAT-TV
- Sonstiges
- Ruhe Lage
- Sonnenschutz
- Sonnige Lage
- Stadtzentrum
- Straßenbahn
- Teilmöbliert
- U-Bahn
- Waschmaschine
Zustand
- Zustand
- GEPFLEGT
- Baujahr
- ca. 1998
- Alter
- ALTBAU
Flächen
- Anzahl der Zimmer
- 2.5
- Anzahl der Schlafzimmer
- 1
- Anzahl der Badezimmer
- 1
- Anzahl der sep. WCs
- 1
- Anzahl der Terrassen
- 1
- Wohnfläche
- 71m²
- Kellerfläche
- 5m²
- Terrassenfläche
- 1m²
Kosten
- Kaufpreis
- € 235.500,00
- Nebenkosten
- € 125,04
- Betriebskosten Brutto
- € 60,68
Verwaltung
- Verfügbar ab
- sofort
Wohnungen zum Kaufen in Österreich
Wohnungen zum Kaufen in Österreich
Wohnungen zum Kaufen in Österreich
Andere Besucher suchen nach...
- Grundstücke kaufen in 3400 Weidlingbach
- Wohnungen kaufen in 4663 Laakirchen
- Häuser in 7471 Rechnitz
- Wohnungen in 2410 Hainburg an der Donau
- Häuser kaufen in 2432 Schwadorf
- Wohnungen kaufen in 3002 Purkersdorf
- Häuser in 3150 Wilhelmsburg
- Wohnungen kaufen in 3470 Engelmannsbrunn
- Grundstücke kaufen im Bezirk Mattersburg
- Grundstücke kaufen im Bezirk Gmunden