Quartier am Park: Mit modernster Technik ausgestattete Familienwohnung mit 122 m² Eigengarten + 59 m² Terrasse
-
Erstbezug
-
2025
-
Dezember 2025
Beschreibung
Smart wohnen mit grünem Gewissen
Am Mörikeweg trifft nachhaltige Technik auf modernes Design: Wohnungen zwischen 53,73 m² und 96,75 m² mit Balkon, Garten oder Dachterrasse, smarte Energie durch PV, Wärmepumpe und Deckenkühlung – komfortabel, klimafreundlich und zukunftssicher.
Mit Tiefgarage und E-Lade-Vorbereitung startklar für morgen.
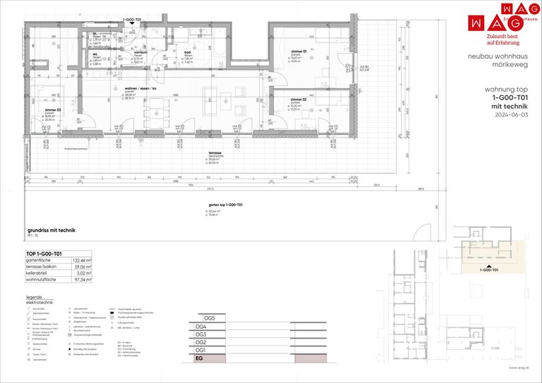
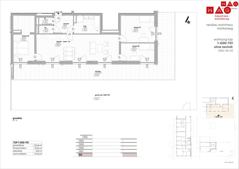
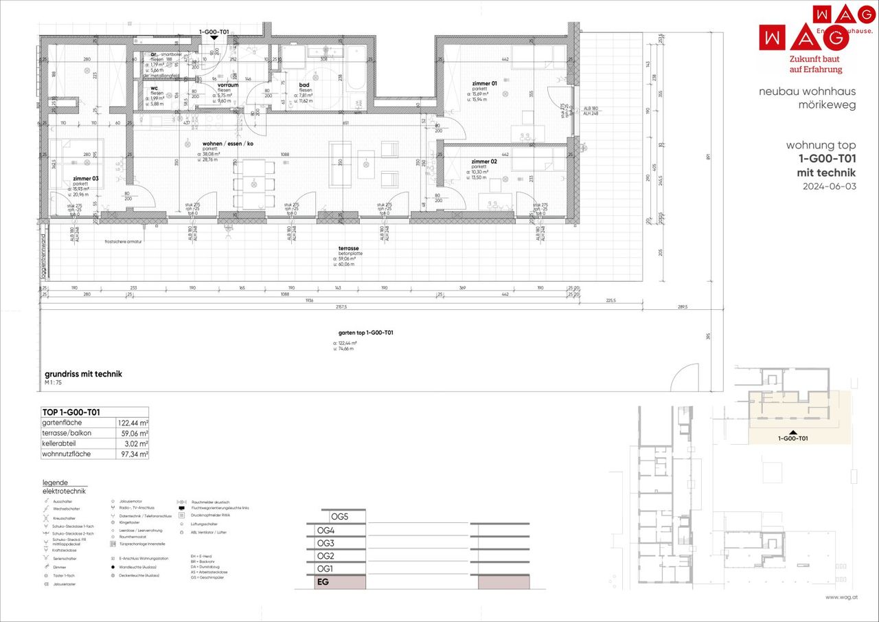
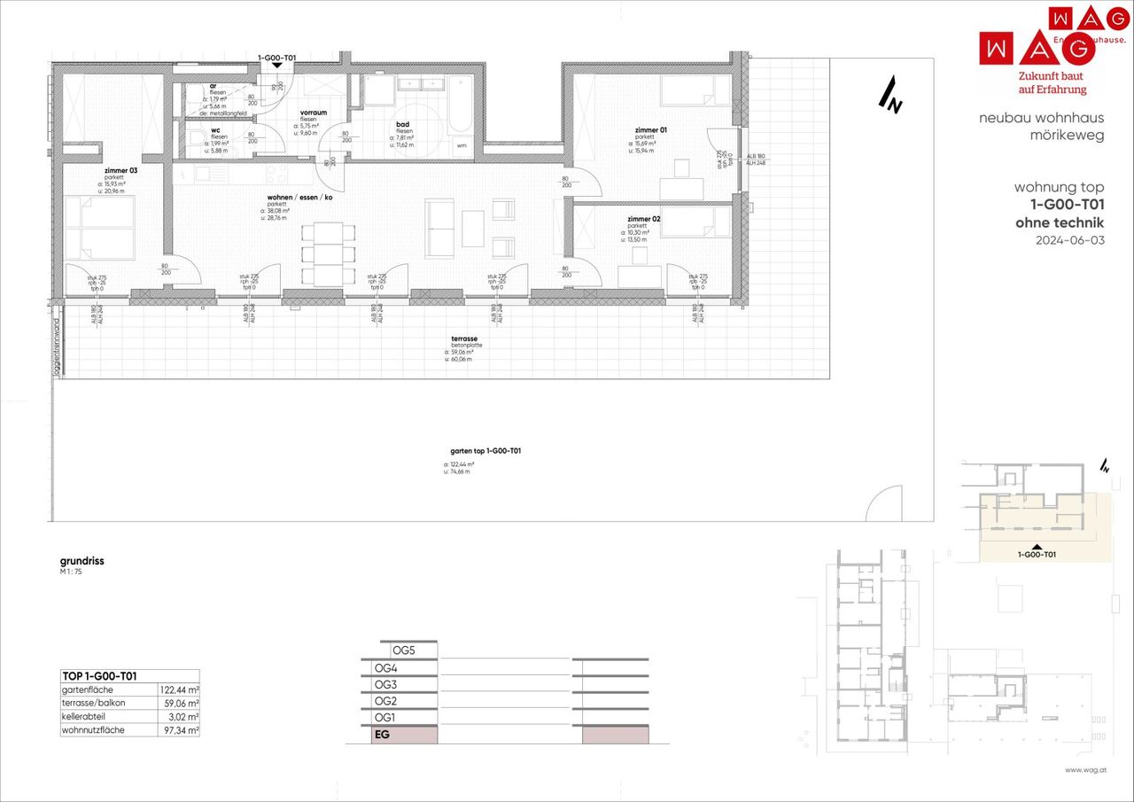
Alle Daten zu dieser Wohnung auf einen Blick:
- Wohnfläche 97,34 m² und 59,06 m² Terrasse + Eigengarten 122,44 m²
- 3 geräumige Schlafzimmer mit Zugang auf die Terrasse und in den Sonnengarten (1 Schlafzimmer mit Schrankraum)
- heller Wohn - Ess - Küchenbereich mit Zugang zur Terrasse und Garten
- Badezimmer mit Wanne und Dusche sowie einem...
Smart wohnen mit grünem Gewissen
Am Mörikeweg trifft nachhaltige Technik auf modernes Design: Wohnungen zwischen 53,73 m² und 96,75 m² mit Balkon, Garten oder Dachterrasse, smarte Energie durch PV, Wärmepumpe und Deckenkühlung – komfortabel, klimafreundlich und zukunftssicher.
Mit Tiefgarage und E-Lade-Vorbereitung startklar für morgen.
Alle Daten zu dieser Wohnung auf einen Blick:
- Wohnfläche 97,34 m² und 59,06 m² Terrasse + Eigengarten 122,44 m²
- 3 geräumige Schlafzimmer mit Zugang auf die Terrasse und in den Sonnengarten (1 Schlafzimmer mit Schrankraum)
- heller Wohn - Ess - Küchenbereich mit Zugang zur Terrasse und Garten
- Badezimmer mit Wanne und Dusche sowie einem Doppelwaschbecken
- WC mit Handwaschbecken
- Abstellraum
- Kellerabteil
- Fixpreisgarantie
- Barrierefreiheit
- elektrische Rollläden mit Fernbedienung
Kaufpreis Wohnung: € 558.950,00 (Beachten Sie unser beigefügtes Finanzierungsangebot)
Kaufpreis Tiefgaragenplatz: € 27.500,00
Monatliche Kosten für die Wohnung inkl. Instandhaltungsbeitrag, Betriebskosten, Aufzug, Verwaltungskosten, Kabel-TV und Ust. ca. € 357,09
Monatliche Heizkostenpauschale inkl. Ust.: ca. € 70,08
Monatliche Kosten für den Tiefgaragenstellplatz inkl. Instandhaltungsbeitrag, Betriebskosten, Verwaltungskosten und Ust. ca. € 30,60
Bei diesen Positionen handelt es sich größtenteils um Akonto Zahlungen und diese werden daher jährlich nach tatsächlichen Aufwand/Verbrauch mittels Jahresabrechnung abgerechnet.
Für weitere Informationen stehen Ihnen Frau Eder und Frau Sonntagbauer unter 050 338-6018 oder team.verkauf3@wag.at gerne zur Verfügung!
Sie sind an weiteren Wohnungs- bzw. Gewerbeangeboten interessiert? Ein vielfältiges Angebot finden Sie auf unserer Website.
Zur WAG-Immobiliensuche: SUCHE
Zur WAG-Wohnungsanmeldung: Wohnungsanmeldung
Gerne beraten wir Sie persönlich über unser vielfältiges Angebot, rufen Sie uns einfach an! Und das natürlich ohne Vermittlungsgebühren und provisionsfrei!
Angaben sind ohne Gewähr auf Richtigkeit und Vollständigkeit. Druckfehler vorbehalten.
Infrastruktur / Entfernungen
Gesundheit
Arzt <250m
Apotheke <500m
Klinik <2.750m
Krankenhaus <1.500m
Kinder & Schulen
Kindergarten <750m
Schule <750m
Universität <2.250m
Höhere Schule <4.000m
Nahversorgung
Supermarkt <500m
Bäckerei <250m
Einkaufszentrum <1.000m
Sonstige
Bank <250m
Geldautomat <250m
Post <500m
Polizei <2.000m
Verkehr
Bus <250m
Straßenbahn <1.750m
Bahnhof <1.500m
Autobahnanschluss <250m
Flughafen <4.500m
Angaben Entfernung Luftlinie / Quelle: OpenStreetMap
Objektdaten
Ausstattung
- Gartennutzung
- Kabel/SAT-TV
- Barrierefrei
- Wasch-/Trockenraum
- Fahrradraum
- Rolladen
- Bad mit Dusche
- Bad mit Badewanne
- Fliesenboden
- Fertigparkettboden
- Fußbodenheizung
- Solar
- Erdwärme
- Fern Befeuerung
- Wasserelektro Befeuerung
- Personen Fahrstuhl
- Ausrichtung Balkon/Terrasse - Südost
- Flachdach
- Massiv Bauweise
- Schlüsselfertig mit Keller
- Klimatisiert
Dokumente / Links
- Folder_Mörikeweg_web.pdf
- Bau und Ausstattungsbeschreibung
- Homepage
- Projektvideo Mörikeweg
- WAG Smart Energy
Zustand
- Zustand
- ERSTBEZUG
- Baujahr
- 2025
- Alter
- NEUBAU
- HWB
- 35 kWh/m² pro Jahr
- fGEE
- 0.69
Flächen
- Anzahl der Zimmer
- 4
- Anzahl der Badezimmer
- 1
- Anzahl der sep. WCs
- 1
- Anzahl der Terrassen
- 1
- Stellplätze
- 1
- Wohnfläche
- 97m²
- Grundstücksfläche
- 122m²
- Gartenfläche
- 122m²
- Kellerfläche
- 3m²
- Terrassenfläche
- 1m²
Kosten
- Kaufpreis Brutto
- € 558.950,00
- Betriebskosten
- € 204,51
- Sonstige Kosten
- € 125,43
Verwaltung
- Verfügbar ab
- Dezember 2025
Wohnungen zum Kaufen in Österreich
Wohnungen zum Kaufen in Österreich
Wohnungen zum Kaufen in Österreich
Andere Besucher suchen nach...
- Grundstücke kaufen in 3400 Weidlingbach
- Wohnungen kaufen in 4663 Laakirchen
- Häuser in 7471 Rechnitz
- Wohnungen in 2410 Hainburg an der Donau
- Häuser kaufen in 2432 Schwadorf
- Wohnungen kaufen in 3002 Purkersdorf
- Häuser in 3150 Wilhelmsburg
- Wohnungen kaufen in 3470 Engelmannsbrunn
- Grundstücke kaufen im Bezirk Mattersburg
- Grundstücke kaufen im Bezirk Gmunden