ERSTBEZUG: Großzügige 2 Raumwohnung mit Balkon - top saniert mit Traumbadezimmer, tolle ÖFFI Anbindung, provisionsfrei und sofort beziehbar
-
sofort
Beschreibung
Urfahr / Pragerstraße 13 : Ideale Wohnung für Single / Pärchen oder kleine Familie mit sehr guter Infrastruktur in generalsaniertem Haus! Stau befreit und entspannt die Unabhängigkeit vom Auto genießen! Diese Wohnung wurde nicht nur renoviert, sondern auch der Grundriss wurde den heutigen Wünschen angepasst. Die Räume sind lichtdurchflutet und bieten den Bewohnern genügend Lebensraum. Das gesamte Gebäude wurde generalsaniert (Wärmedämmung, Dach, Lift, Balkonerweiterung,….). Die Wohnung liegt im 2. Stock und ist mittels Lift mit schweren Einkäufen sehr gut erreichbar. Vom Flur erreicht man das Wohnzimmer mit sonnigen Balkon, die großzügige Küche mit Platz für den Esstisch, Badezimmer mit Wanne...
Urfahr / Pragerstraße 13 :
Ideale Wohnung für Single / Pärchen oder kleine Familie mit sehr guter Infrastruktur in generalsaniertem Haus!
Stau befreit und entspannt die Unabhängigkeit vom Auto genießen!
Diese Wohnung wurde nicht nur renoviert, sondern auch der Grundriss wurde den heutigen Wünschen angepasst. Die Räume sind lichtdurchflutet und bieten den Bewohnern genügend Lebensraum. Das gesamte Gebäude wurde generalsaniert (Wärmedämmung, Dach, Lift, Balkonerweiterung,….).
Die Wohnung liegt im 2. Stock und ist mittels Lift mit schweren Einkäufen sehr gut erreichbar.
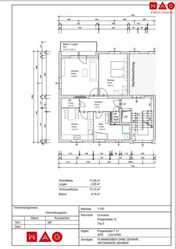
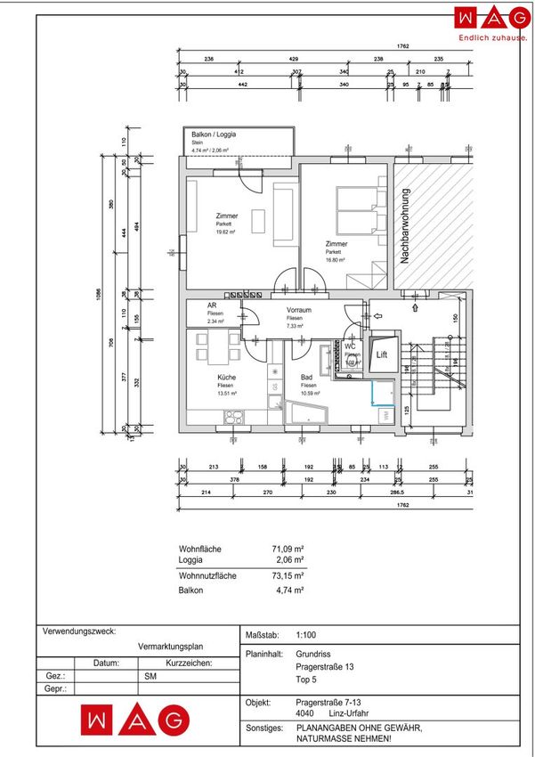
Vom Flur erreicht man das Wohnzimmer mit sonnigen Balkon, die großzügige Küche mit Platz für den Esstisch, Badezimmer mit Wanne und Dusche, separates WC , das Schlafzimmer und den Abstellraum. In allen Wohnräumen sind Parkettböden verlegt und die Fenster sind mit elektrischen Rollläden ausgestattet. Der Vorraum, Badezimmer und WC sind mit modernen Fliesen ausgestattet.
Alle Daten auf einem Blick:
Wohnfläche ca. 71,09 m² und ca. 6,80 m² Balkon
- Flurbereich
- 2 Räume
- große Küche
- Badezimmer mit Dusche, Badewanne, Doppelwaschbecken und Fenster
- WC
- Abstellraum
- großes Kellerabteil
Kaufpreis: € 310.000,00
Energiekennzahl : HWB 39, fGee 0,80
Heizung und Warmwasser nach Verbrauch (Fernwärme)
Aktuelle Betriebskosten inkl. Verwaltungskosten, laufende Instandhaltung und Aufzug: € 224,40 (inkl. MwSt.)
Mtl. Rückzahlung gefördertes Sanierungsdarlehen: € 149,98
Laufzeit bis 2032 (Förderungswürdigkeit vorausgesetzt).
Sie sind an weiteren Wohnungs- bzw. Gewerbeangeboten interessiert? Ein vielfältiges Angebot finden Sie auf unserer Website.
Zur WAG-Immobiliensuche: SUCHE
Zur WAG-Wohnungsanmeldung: Wohnungsanmeldung
Gerne beraten wir Sie persönlich über unser vielfältiges Angebot, rufen Sie uns einfach an! Und das natürlich ohne Vermittlungsgebühren und provisionsfrei!
Angaben sind ohne Gewähr auf Richtigkeit und Vollständigkeit. Druckfehler vorbehalten.
Infrastruktur / Entfernungen
Gesundheit
Arzt <225m
Apotheke <350m
Klinik <1.600m
Krankenhaus <1.800m
Kinder & Schulen
Kindergarten <275m
Schule <300m
Universität <1.050m
Höhere Schule <1.750m
Nahversorgung
Supermarkt <275m
Bäckerei <275m
Einkaufszentrum <375m
Sonstige
Bank <250m
Geldautomat <250m
Post <1.025m
Polizei <1.425m
Verkehr
Bus <125m
Straßenbahn <275m
Bahnhof <300m
Autobahnanschluss <350m
Flughafen <4.050m
Angaben Entfernung Luftlinie / Quelle: OpenStreetMap
Objektdaten
Ausstattung
- Kabel/SAT-TV
- Fahrradraum
- Rolladen
- Bad mit Dusche
- Bad mit Badewanne
- Bad mit Fenster
- Fliesenboden
- Parkettboden
- Zentralheizung
- Fernwärme Heizung
- Fern Befeuerung
- Personen Fahrstuhl
- Ausrichtung Balkon/Terrasse - Südost
- Massiv Bauweise
Dokumente / Links
Zustand
- Zustand
- VOLL_SANIERT
- Alter
- NEUBAU
- HWB
- 39 kWh/m² pro Jahr
- fGEE
- 0.8
Flächen
- Anzahl der Zimmer
- 2
- Anzahl der Badezimmer
- 1
- Anzahl der sep. WCs
- 1
- Anzahl der Balkone
- 1
- Wohnfläche
- 73m²
Kosten
- Kaufpreis Brutto
- € 310.000,00
- Betriebskosten
- € 128,03
- Sonstige Kosten
- € 77,63
Verwaltung
- Verfügbar ab
- sofort
Wohnungen zum Kaufen in Österreich
Wohnungen zum Kaufen in Österreich
Wohnungen zum Kaufen in Österreich
Andere Besucher suchen nach...
- Grundstücke kaufen in 3400 Weidlingbach
- Wohnungen kaufen in 4663 Laakirchen
- Häuser in 7471 Rechnitz
- Wohnungen in 2410 Hainburg an der Donau
- Häuser kaufen in 2432 Schwadorf
- Wohnungen kaufen in 3002 Purkersdorf
- Häuser in 3150 Wilhelmsburg
- Wohnungen kaufen in 3470 Engelmannsbrunn
- Grundstücke kaufen im Bezirk Mattersburg
- Grundstücke kaufen im Bezirk Gmunden