GROSSARTIGE FÜNFZIMMERWOHNUNG MIT SÜDBALKON
Beschreibung
LICHTDURCHFLUTETE BALKONWOHNUNG
mit 4 getrennt begehbaren Zimmern mit zentraler Wohnküche, 2 Bädern, 2 WCs, mit 2 separaten Zugängen und PKW Stellplatz in Laa an der Thaya
Vielfältige Nutzbarkeit - Kombination Wohnung-Büro - Mehrgeneratationenwohnung - diverse Wohngemeinschaftsformen
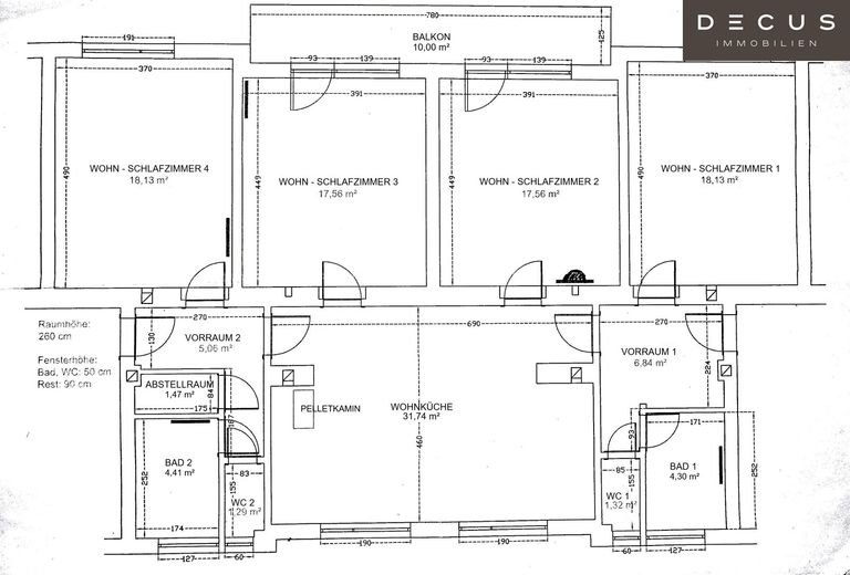
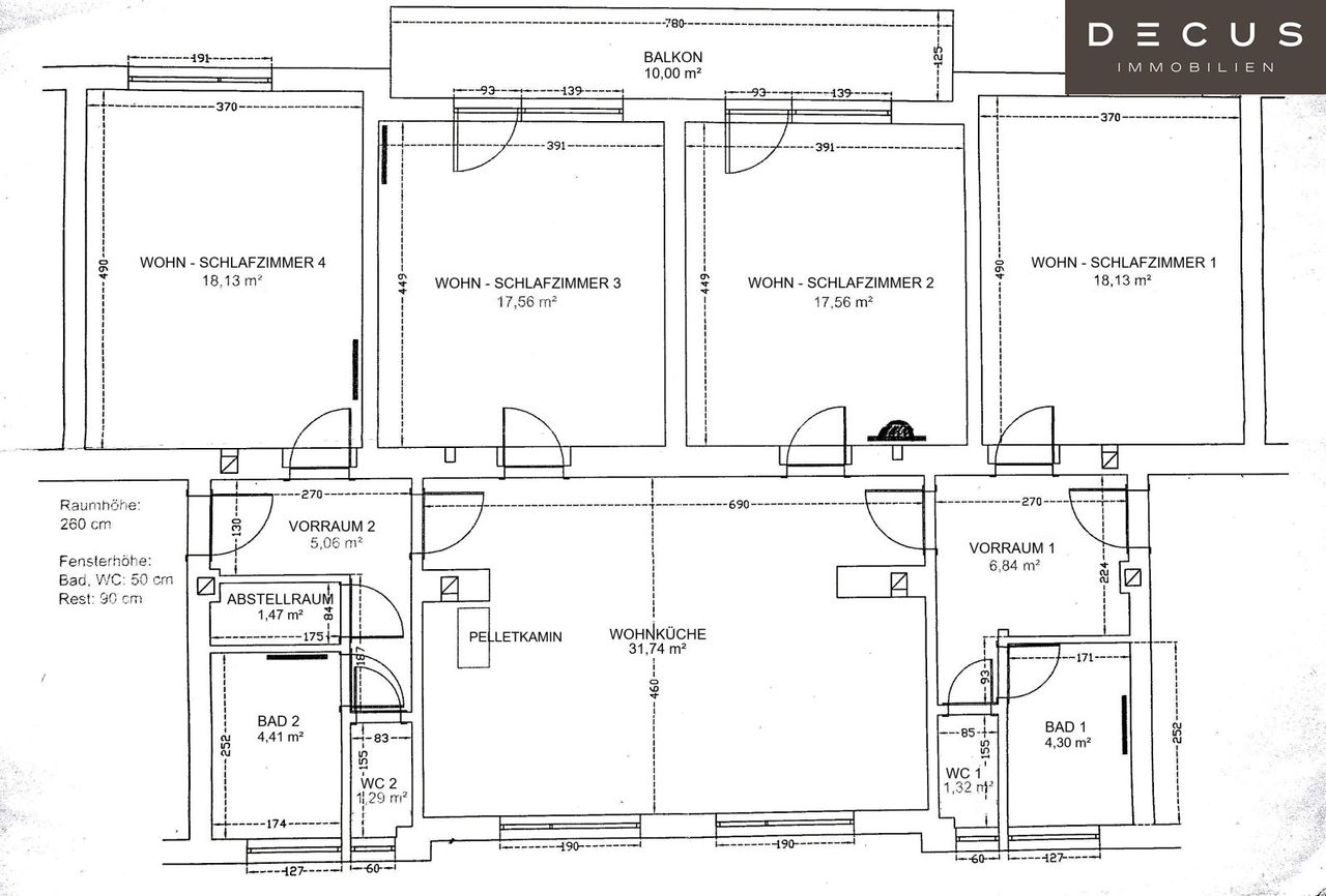
siehe auch: virtelle Begehung (auch in der Homepage) Grundriss (nach den Fotos angeordnet)
Objekt und Ausstattung Diese geräumige, gut eingeteilte Eigentumswohnung ist in einem gepflegten Neubauobjekt, Bj.1966, generalsaniert und thermisch isoliert im Jahr 2007, im 1 Stock situiert. (es sind 1,5 Stockwerke). Die 4 Wohn-Schlafzimmer befinden sich in hofseitiger, südöstlicher Grünlage, mit einem aus zwei Zimmern begehbaren, 10 m² großen Balkon. Die...
LICHTDURCHFLUTETE BALKONWOHNUNG
mit 4 getrennt begehbaren Zimmern
mit zentraler Wohnküche, 2 Bädern, 2 WCs,
mit 2 separaten Zugängen und PKW Stellplatz
in Laa an der Thaya
Vielfältige Nutzbarkeit
- Kombination Wohnung-Büro
- Mehrgeneratationenwohnung
- diverse Wohngemeinschaftsformen
siehe auch:
virtelle Begehung (auch in der Homepage)
Grundriss (nach den Fotos angeordnet)
Objekt und Ausstattung
Diese geräumige, gut eingeteilte Eigentumswohnung ist
in einem gepflegten Neubauobjekt, Bj.1966,
generalsaniert und thermisch isoliert im Jahr 2007,
im 1 Stock situiert. (es sind 1,5 Stockwerke).
Die 4 Wohn-Schlafzimmer befinden sich in hofseitiger, südöstlicher Grünlage,
mit einem aus zwei Zimmern begehbaren, 10 m² großen Balkon.
Die zentrale, große Wohnküche und die Nebenräume
sind nordwestlich, straßenseitig orientiert.
Die Wohnung wurde durch Wohnungszusammenlegung umgestaltet,
und ist hiedurch aus zwei Stiegenhäusern erschlossen,
sie verfügt über 2 Vorzimmer, 2 Bäder, 2 separate WCs und einen Abstellraum.
Alle Zimmer und Nebenräume sind über die große zentrale Wohnküche
und über die zwei Vorzimmer getrennt begehbar.
Die Küche ist mit einer kompletter Einbauküche ausgestattet.
Die Badezimmer haben Fenster, Waschbecken und Badewanne.
Die WCs sind separat. Ein Abstellraum ist vorhanden.
Die Heizung erfolgt mittels Etagenheizung mit Pelletkamin, der händisch befüllt wird,
mittels eines zentralen und gemütlichen Ofens mit sichtbarer Flamme. :)
Die Warmwasserbereitung geschieht über einen Warmwasserboiler.
2 Kellerabteile mit je 7 m² gehören zur Wohnung.
Den Bewohnern des Hauses stehen gartenseitig kostenlose Parkplätze zur Verfügung.
Raumaufteilung
- Vorraum
- Bad mit Wanne, mit Fenster
- Abstellraum
- separates WC mit Fenster
- zentrale Wohnküche ( ca 32m²)
mit kompletter Einbauküche
- 4 Wohn-Schlafzimmer
- Bad mit Wanne, mit Fenster
- separates WC mit Fenster
- Vorraum
Preis
Kaufpreis: € 245.000
Provision: 3% + USt
monatliche Kosten:
BK € 235,98 (inkl USt)
RepFonds € 200,38
Eine Reparaturdarlehenstilgung
läuft vorassichtlich im Jahr 26 aus.
Lage und Umfeld
Die Stadtgemeinde Laa an der Thaya liegt im Norden des Weinviertels
und hat sich zum Zentrum des oberen Weinviertels entwickelt.
Durch die zentrale Lage der Wohnung in Laa
ist die infrastukurellere Versorgung optimal.
Der nächste Supermarkt ist in 5 Minuten erreichbar.
Optimal ist auch die öffentliche Verkehrsanbindung!
In ca 5-6 Minuten fußläufiger Entfernung zur Wohnung ist der Bahnhof situiert.
Von Wien nach Laa verkehrt die Schnellbahn-Linie S2
mindestens einmal stündlich. :)
Der Vermittler ist als Doppelmakler tätig.
DECUS Immobilien GmbH – Wir beleben Räume
Für weitere Informationen und Besichtigungen steht Ihnen gerne Herr Elemér Szüts unter der Mobilnummer +43 664 11 888 16 und per E-Mail unter szuets@decus.at persönlich zur Verfügung.
www.decus.at | office@decus.at
Wichtige Informationen
Bitte beachten Sie, dass per 13.06.2014 eine neue Richtlinie für Fernabsatz- und Auswärtsgeschäfte in Kraft getreten ist.
Ab 1.4.2024 entfallen die Grundbuchs- und Pfandrechtseintragungsgebühren vorübergehend für Eigenheime bis zu einer Bemessungsgrundlage von EUR 500.000,-. Voraussetzung ist das dringende Wohnbedürfnis, ausgenommen davon sind vererbte oder geschenkte Immobilien. Die Befreiung ist jedoch für den Einzelfall zu prüfen, DECUS Immobilien übernimmt hierzu keine Haftung.
Ab 01.07.2023 gilt das Erstauftraggeber-Prinzip bei Wohnungsmietverträgen, ausgenommen davon sind Dienst-/Natural-/Werkswohnungen. Wir dürfen gem. § 17 Maklergesetz darauf hinweisen, dass wir auf die Doppelmaklertätigkeit gem. § 5 Maklergesetz bei Wohnungsmietverträgen verzichten und nur noch einseitig tätig sind (bei den restlichen Vermittlungsarten nicht) und ein wirtschaftliches Naheverhältnis zu unseren Auftraggebern besteht.
Im Falle eines Abschlusses mit Ihnen oder einem von Ihnen namhaft gemachten Dritten bzw. bei beidseitiger Willensübereinstimmung beträgt unser Honorar (lt. Honorarverordnung für Immobilienmakler) 2 Bruttomonatsmieten (BMM) bei Dienst-/Natural-/Werkwohnungen sowie Suchaufträgen, 3 BMM bei Gewerbe-, PKW-, Keller- und Lagermietverträgen sowie bei Kaufobjekten 3 % des Kaufpreises, zuzüglich der gesetzlichen Umsatzsteuer.
Dieses Objekt wird Ihnen unverbindlich und freibleibend angeboten. Oben angeführte Angaben basieren auf Informationen und Unterlagen des Eigentümers und sind unsererseits ohne Gewähr.
Nähere Informationen sowie unsere AGBs und die Nebenkostenübersichtsblatt finden Sie auf unserer Homepage www.decus.at unter "Service" - "Rechtliches zum FAGG" sowie im Anhang der zugesendeten Objekt-Exposés!
Infrastruktur / Entfernungen
Gesundheit
Arzt <8.000m
Apotheke <1.250m
Kinder & Schulen
Schule <500m
Kindergarten <500m
Nahversorgung
Supermarkt <250m
Bäckerei <500m
Einkaufszentrum <1.750m
Sonstige
Geldautomat <1.250m
Bank <1.250m
Polizei <1.500m
Post <1.250m
Verkehr
Bus <250m
Bahnhof <500m
Angaben Entfernung Luftlinie / Quelle: OpenStreetMap
Objektdaten
Ausstattung
- Gartennutzung
- Kabel/SAT-TV
- Gäste-WC
- Bad mit Badewanne
- Bad mit Fenster
- Einbauküche
- Offene Küche
- Fliesenboden
- Parkettboden
- Etage Heizung
- Wasserelektro Befeuerung
- Ausrichtung Balkon/Terrasse - Südost
Dokumente / Links
Zustand
- Zustand
- VOLL_SANIERT
- Baujahr
- 1964
- Alter
- NEUBAU
- HWB
- 50.3 kWh/m² pro Jahr
- Klasse HWB
- C
- fGEE
- 1.58
- Klasse fGEE
- C
Flächen
- Anzahl der Zimmer
- 5
- Anzahl der Badezimmer
- 2
- Anzahl der sep. WCs
- 2
- Stellplätze
- 1
- Wohnfläche
- 130m²
- Nutzfläche
- 140m²
- Gesamtfläche
- 130m²
- Kellerfläche
- 14m²
Kosten
- Kaufpreis Brutto
- € 245.000,00
- Betriebskosten
- € 214,53
- Sonstige Kosten
- € 200,38
Verwaltung
- Verfügbar ab
- nach Vereinbarung
Wohnungen zum Kaufen im Umkreis von Laa an der Thaya
Wohnungen zum Kaufen im Umkreis von Laa an der Thaya
Wohnungen zum Kaufen in Österreich
Andere Besucher suchen nach...
- Grundstücke kaufen in 3400 Weidlingbach
- Wohnungen kaufen in 4663 Laakirchen
- Häuser in 7471 Rechnitz
- Wohnungen in 2410 Hainburg an der Donau
- Häuser kaufen in 2432 Schwadorf
- Wohnungen kaufen in 3002 Purkersdorf
- Häuser in 3150 Wilhelmsburg
- Wohnungen kaufen in 3470 Engelmannsbrunn
- Grundstücke kaufen im Bezirk Mattersburg
- Grundstücke kaufen im Bezirk Gmunden