Gemütliche 2-Zimmer-Wohnung ca 58 m2 mit Loggia im Herzen von Zeltweg
Beschreibung
Charmante Eigentumswohnung mit Loggia in zentraler Lage von Zeltweg
Lage: Diese gemütliche Eigentumswohnung befindet sich im 1. Stock eines gepflegten Mehrparteienhauses in Zeltweg – bequem erreichbar über einen Personenlift. Die Lage überzeugt durch ihre hervorragende Infrastruktur: Der Bahnhof, die Apotheke, Polizeit (100m) diverse Einkaufsmöglichkeiten sowie das Zentrum von Zeltweg sind in wenigen Gehminuten erreichbar. Auch Schulen, Ärzte und Gastronomie befinden sich in unmittelbarer Nähe.
Wohnfläche: Ca. 58 m² – ideal für Singles, Paare oder als Anlageobjekt.
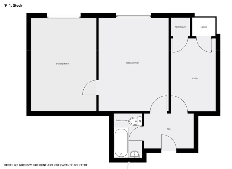
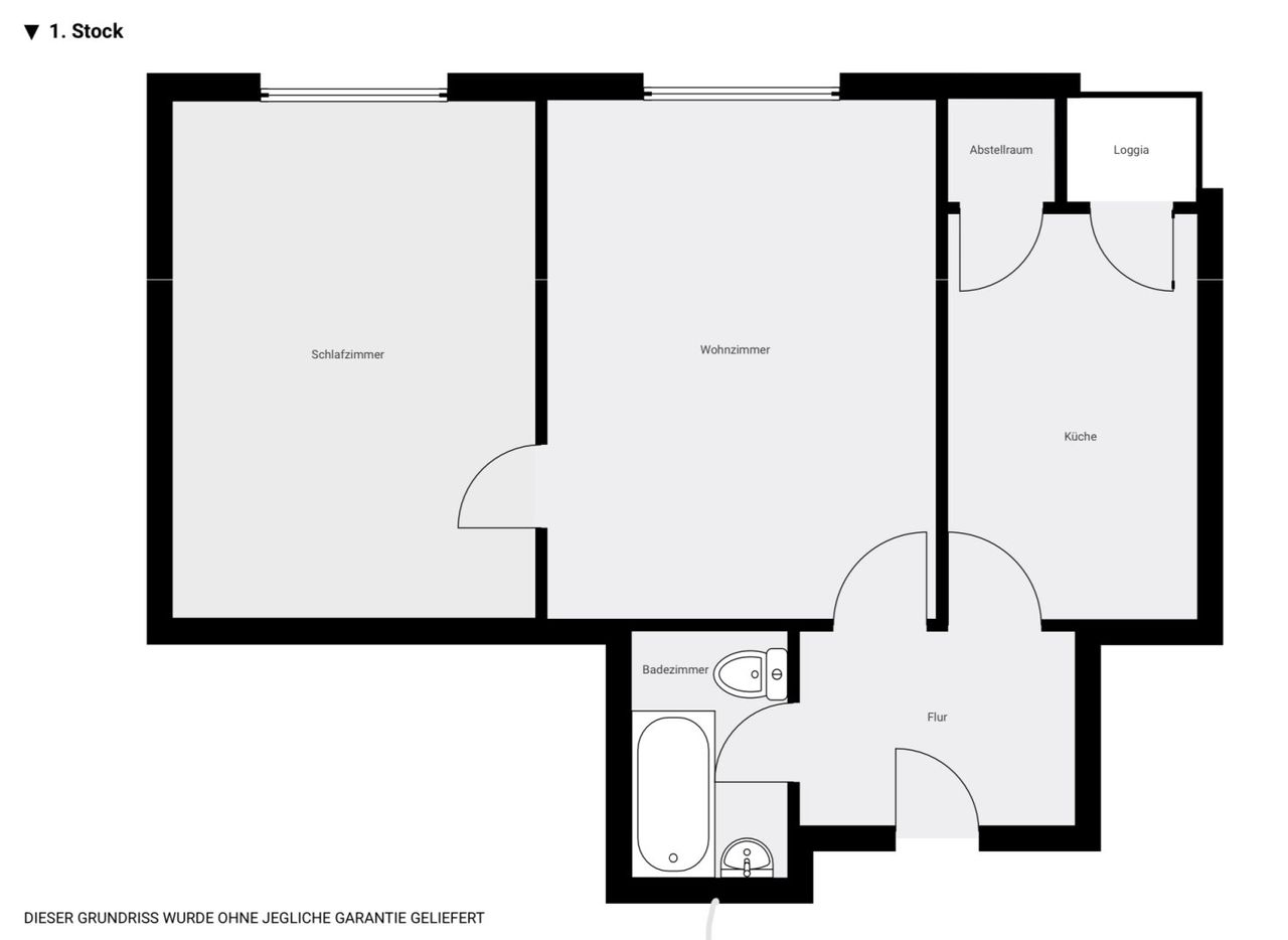
Raumaufteilung:
-
Vorraum
-
Badezimmer mit Badewanne und WC ( 180 lt Heißwasserboiler betrieben mit Nachtstrom)
-
Küche mit Zugang zu...
Charmante Eigentumswohnung mit Loggia in zentraler Lage von Zeltweg
Lage:
Diese gemütliche Eigentumswohnung befindet sich im 1. Stock eines gepflegten Mehrparteienhauses in Zeltweg – bequem erreichbar über einen Personenlift. Die Lage überzeugt durch ihre hervorragende Infrastruktur: Der Bahnhof, die Apotheke, Polizeit (100m) diverse Einkaufsmöglichkeiten sowie das Zentrum von Zeltweg sind in wenigen Gehminuten erreichbar. Auch Schulen, Ärzte und Gastronomie befinden sich in unmittelbarer Nähe.
Wohnfläche:
Ca. 58 m² – ideal für Singles, Paare oder als Anlageobjekt.
Raumaufteilung:
Vorraum
Badezimmer mit Badewanne und WC ( 180 lt Heißwasserboiler betrieben mit Nachtstrom)
Küche mit Zugang zu einer kleinen, überdachten Loggia und praktischer Speis
Geräumiges Wohnzimmer
Schlafzimmer (vom Wohnzimmer aus begehbar)
Ausstattung:
Vollwärmeschutz am Gebäude (ca. 2016)
3-fach verglaste Fenster für gute Energieeffizienz
Ölheizung in der Wohnung mit eigenem 300-Liter-Tank
Gasanschluss im Haus – ein Umstieg auf Gas ist möglich
Zusätzlich: Holz- bzw Kohleherd in der Küche für alternative Beheizung oder Kochen
Glasfaser-Internetanschluss vorhanden
KFZ-Abstellplatz im Innenhof (nicht fix zugeteilt)
Charakter:
Die Wohnung befindet sich in einem gepflegten, dem Baujahr entsprechenden Zustand und ist traditionell eingerichtet, was ihren klassischen und charmanten Charakter unterstreicht. Mit etwas persönlicher Gestaltung lässt sich hier ein behagliches Zuhause mit besonderem Flair schaffen.
aushaftendes Darlehen: es ist mit Stichtag 30.11.2025 ein Darlehen in der Höhe von € 7.253,59 offen und zu übernehmen. Die Darlehensannuitäten werden über die Rücklage getilgt, d.h. es werden monatlich keine Zusatzkosten verechnet. Eine vorzeitige Rückzahlung ist daher nicht möglich.
Fazit:
Eine gut aufgeteilte Wohnung in zentrumsnaher Lage – ideal für alle, die Wert auf eine gute Infrastruktur und funktionale Raumaufteilung legen.
Der Vermittler ist als Doppelmakler tätig.
Infrastruktur / Entfernungen
Gesundheit
Arzt <250m
Apotheke <750m
Krankenhaus <1.000m
Kinder & Schulen
Schule <250m
Kindergarten <250m
Nahversorgung
Supermarkt <500m
Bäckerei <250m
Einkaufszentrum <500m
Sonstige
Bank <250m
Geldautomat <250m
Post <250m
Polizei <4.250m
Verkehr
Bus <250m
Autobahnanschluss <2.500m
Bahnhof <250m
Flughafen <1.750m
Angaben Entfernung Luftlinie / Quelle: OpenStreetMap
Objektdaten
Ausstattung
- Bad mit Badewanne
- Einbauküche
- Ofen
- Befeuerung mit Öl
- Personen Fahrstuhl
Zustand
- HWB
- 150.8 kWh/m² pro Jahr
- Klasse HWB
- E
- fGEE
- 2.51
- Klasse fGEE
- E
Flächen
- Wohnfläche
- 58m²
Kosten
- Kaufpreis Brutto
- € 64.900,00
- Betriebskosten
- € 167,75
- Sonstige Kosten
- € 107,39
Wohnungen zum Kaufen im Umkreis von Zeltweg
Wohnungen zum Kaufen im Umkreis von Zeltweg
Wohnungen zum Kaufen in Österreich
Andere Besucher suchen nach...
- Grundstücke kaufen in 3400 Weidlingbach
- Wohnungen kaufen in 4663 Laakirchen
- Häuser in 7471 Rechnitz
- Wohnungen in 2410 Hainburg an der Donau
- Häuser kaufen in 2432 Schwadorf
- Wohnungen kaufen in 3002 Purkersdorf
- Häuser in 3150 Wilhelmsburg
- Wohnungen kaufen in 3470 Engelmannsbrunn
- Grundstücke kaufen im Bezirk Mattersburg
- Grundstücke kaufen im Bezirk Gmunden