Appartement in den Bergen – ruhig, modern, besonders
-
Jahresende 2026
Beschreibung
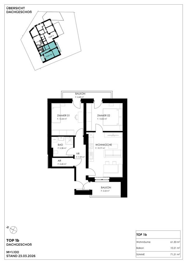
Dachgeschosswohnung mit zwei Balkonen in Hohentauern
Lichtdurchflutetes Wohnen mit Ausblick
Diese attraktive Eigentumswohnung im Dachgeschoss überzeugt mit ca. 61 m² Wohnfläche und einem durchdachten Grundriss. Zwei Balkone mit ca. 4,68 m² und ca. 5,53 m² bieten zusätzliche Freiräume und laden dazu ein, die umliegende Natur in vollen Zügen zu genießen.
Der Vorraum bildet den zentralen Eingangsbereich und erschließt alle Räume der Wohnung. Neben einem praktischen Abstellraum und einem Badezimmer mit WC verfügt die Einheit über zwei vielseitig nutzbare Zimmer, die beide Zugang zu einem Balkon bieten. Die Wohnküche mit Ausgang auf den zweiten Balkon schafft einen offenen, einladenden Lebensmittelpunkt.
...Dachgeschosswohnung mit zwei Balkonen in Hohentauern
Lichtdurchflutetes Wohnen mit Ausblick
Diese attraktive Eigentumswohnung im Dachgeschoss überzeugt mit ca. 61 m² Wohnfläche und einem durchdachten Grundriss. Zwei Balkone mit ca. 4,68 m² und ca. 5,53 m² bieten zusätzliche Freiräume und laden dazu ein, die umliegende Natur in vollen Zügen zu genießen.
Der Vorraum bildet den zentralen Eingangsbereich und erschließt alle Räume der Wohnung. Neben einem praktischen Abstellraum und einem Badezimmer mit WC verfügt die Einheit über zwei vielseitig nutzbare Zimmer, die beide Zugang zu einem Balkon bieten. Die Wohnküche mit Ausgang auf den zweiten Balkon schafft einen offenen, einladenden Lebensmittelpunkt.
Raumaufteilung im Überblick:
Vorraum | Abstellraum | Bad mit WC | 2 Zimmer mit Balkonzugang (4,68 m²) | Wohnküche mit Balkonzugang (5,53 m²)
Beheizt wird die Wohnung mittels moderner Pelletsheizung in Kombination mit Fußbodenheizung und Radiatoren, was für ein angenehmes und nachhaltiges Wohnklima sorgt.
Diese Wohnung eignet sich sowohl für Eigennutzer als auch für Anleger: Sie ist zweitwohnsitzfähig und bietet die Möglichkeit der touristischen Vermietung – eine attraktive Kombination aus Lebensqualität und Investment.
Sichern Sie sich diese besondere Immobilie und verwirklichen Sie Ihren Wohntraum oder Ihre Investitionsidee in bester Lage.
Der Vermittler ist als Doppelmakler tätig.
Infrastruktur / Entfernungen
Gesundheit
Arzt <2.000m
Apotheke <7.000m
Kinder & Schulen
Schule <6.500m
Kindergarten <7.000m
Nahversorgung
Supermarkt <7.000m
Bäckerei <6.500m
Sonstige
Bank <2.500m
Geldautomat <2.500m
Polizei <7.000m
Post <2.500m
Verkehr
Bus <1.000m
Autobahnanschluss <7.500m
Bahnhof <7.000m
Flughafen <7.500m
Angaben Entfernung Luftlinie / Quelle: OpenStreetMap
Objektdaten
Ausstattung
- Bad mit Dusche
- Zentralheizung
- Fußbodenheizung
- Ausrichtung Balkon/Terrasse - Nord
- Ausrichtung Balkon/Terrasse - Süd
Zustand
- HWB
- 83.6 kWh/m² pro Jahr
- Klasse HWB
- C
- fGEE
- 0.83
- Klasse fGEE
- A
Flächen
- Anzahl der Zimmer
- 3
- Anzahl der Badezimmer
- 1
- Anzahl der sep. WCs
- 1
- Anzahl der Balkone
- 2
- Stellplätze
- 1
- Wohnfläche
- 61m²
Kosten
- Kaufpreis Brutto
- € 239.000,00
Verwaltung
- Verfügbar ab
- Jahresende 2026
- Ferienimmobilie
- Ja
Wohnungen zum Kaufen im Umkreis von Hohentauern
Wohnungen zum Kaufen im Umkreis von Hohentauern
Wohnungen zum Kaufen in Österreich
Andere Besucher suchen nach...
- Grundstücke kaufen in 3400 Weidlingbach
- Wohnungen kaufen in 4663 Laakirchen
- Häuser in 7471 Rechnitz
- Wohnungen in 2410 Hainburg an der Donau
- Häuser kaufen in 2432 Schwadorf
- Wohnungen kaufen in 3002 Purkersdorf
- Häuser in 3150 Wilhelmsburg
- Wohnungen kaufen in 3470 Engelmannsbrunn
- Grundstücke kaufen im Bezirk Mattersburg
- Grundstücke kaufen im Bezirk Gmunden