Appartement in den Bergen – ruhig, modern, besonders
-
Jahresende 2026
Beschreibung
Gartenwohnung mit großzügigem Außenbereich in Hohentauern
Wohnen mit viel Platz und direktem Zugang ins Grüne
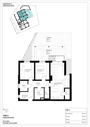
Diese attraktive Eigentumswohnung im Erdgeschoss bietet auf ca. 88 m² Wohnfläche ein großzügiges Raumkonzept und überzeugt durch ihre weitläufige Terrasse mit ca. 29 m² sowie einen privaten Garten mit rund 40 m² – ideal, um entspannte Stunden im Freien zu genießen.
Der durchdachte Grundriss sorgt für ein angenehmes Wohngefühl: Ein Vorraum bildet den Eingangsbereich und führt zu den Räumlichkeiten. Neben einem Hauswirtschaftsraum, einem Badezimmer und einem separaten WC stehen zwei vielseitig nutzbare Zimmer zur Verfügung. Das Herzstück der Wohnung ist der offene Wohn-, Ess-...
Gartenwohnung mit großzügigem Außenbereich in Hohentauern
Wohnen mit viel Platz und direktem Zugang ins Grüne
Diese attraktive Eigentumswohnung im Erdgeschoss bietet auf ca. 88 m² Wohnfläche ein großzügiges Raumkonzept und überzeugt durch ihre weitläufige Terrasse mit ca. 29 m² sowie einen privaten Garten mit rund 40 m² – ideal, um entspannte Stunden im Freien zu genießen.
Der durchdachte Grundriss sorgt für ein angenehmes Wohngefühl: Ein Vorraum bildet den Eingangsbereich und führt zu den Räumlichkeiten. Neben einem Hauswirtschaftsraum, einem Badezimmer und einem separaten WC stehen zwei vielseitig nutzbare Zimmer zur Verfügung. Das Herzstück der Wohnung ist der offene Wohn-, Ess- und Küchenbereich mit Zugang zur Terrasse und in den eigenen Garten.
Raumaufteilung im Überblick:
Vorraum | Hauswirtschaftsraum | Badezimmer | WC | Gang | 2 Zimmer | Wohn-Ess-Küche mit Zugang zu Terrasse und Garten
Beheizt wird die Wohnung mittels moderner Pelletsheizung in Kombination mit Fußbodenheizung und Radiatoren, was für ein angenehmes und nachhaltiges Wohnklima sorgt.
Diese Wohnung ist sowohl für Eigennutzer als auch für Investoren interessant: Dank Zweitwohnsitzfähigkeit und der Möglichkeit zur touristischen Vermietung bietet sie eine ideale Verbindung aus persönlicher Nutzung und attraktiver Rendite.
Nutzen Sie diese Gelegenheit und sichern Sie sich Ihr neues Zuhause mit Garten oder eine wertbeständige Anlage in naturnaher Lage.
Der Vermittler ist als Doppelmakler tätig.
Infrastruktur / Entfernungen
Gesundheit
Arzt <2.000m
Apotheke <7.000m
Kinder & Schulen
Schule <6.500m
Kindergarten <7.000m
Nahversorgung
Supermarkt <7.000m
Bäckerei <6.500m
Sonstige
Bank <2.500m
Geldautomat <2.500m
Polizei <7.000m
Post <2.500m
Verkehr
Bus <1.000m
Autobahnanschluss <7.500m
Bahnhof <7.000m
Flughafen <7.500m
Angaben Entfernung Luftlinie / Quelle: OpenStreetMap
Objektdaten
Ausstattung
- Offene Küche
- Zentralheizung
- Fußbodenheizung
- Ausrichtung Balkon/Terrasse - Nordost
Zustand
- HWB
- 83.6 kWh/m² pro Jahr
- Klasse HWB
- C
- fGEE
- 0.83
- Klasse fGEE
- A
Flächen
- Anzahl der Zimmer
- 3
- Anzahl der Badezimmer
- 1
- Anzahl der sep. WCs
- 1
- Anzahl der Terrassen
- 1
- Stellplätze
- 1
- Wohnfläche
- 88m²
- Gartenfläche
- 40m²
- Terrassenfläche
- 1m²
Kosten
- Kaufpreis Brutto
- € 335.000,00
Verwaltung
- Verfügbar ab
- Jahresende 2026
- Ferienimmobilie
- Ja
Wohnungen zum Kaufen im Umkreis von Hohentauern
Wohnungen zum Kaufen im Umkreis von Hohentauern
Wohnungen zum Kaufen in Österreich
Andere Besucher suchen nach...
- Grundstücke kaufen in 3400 Weidlingbach
- Wohnungen kaufen in 4663 Laakirchen
- Häuser in 7471 Rechnitz
- Wohnungen in 2410 Hainburg an der Donau
- Häuser kaufen in 2432 Schwadorf
- Wohnungen kaufen in 3002 Purkersdorf
- Häuser in 3150 Wilhelmsburg
- Wohnungen kaufen in 3470 Engelmannsbrunn
- Grundstücke kaufen im Bezirk Mattersburg
- Grundstücke kaufen im Bezirk Gmunden