Dachgeschossappartement mit Terrasse in ruhiger Naturlage
Beschreibung
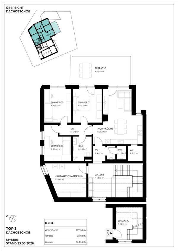
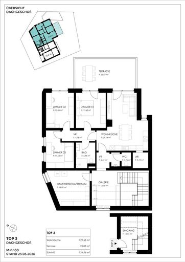
Großzügige Dachgeschosswohnung mit Terrasse
Weitläufiges Wohnen mit besonderem Wohnkomfort
Diese beeindruckende Eigentumswohnung im Dachgeschoss bietet mit ca. 130 m² Wohnfläche ein außergewöhnlich großzügiges Raumangebot und überzeugt durch eine rund 25 m² große Terrasse – perfekt, um die Ruhe und den Ausblick in vollen Zügen zu genießen.
Die Raumaufteilung schafft ein harmonisches Zusammenspiel aus Offenheit und privaten Rückzugsbereichen: Ein Vorraum erschließt die Wohnung und bietet Zugang zu den weiteren Räumlichkeiten. Der weitläufigen Wohn-, Ess- und Küchenbereich mit Zugang zur Terrasse bildet das Herzstück der Immobilie. Ergänzt wird das Raumangebot durch drei Zimmer, ein Badezimmer, ein separates WC, einen weiteren Vorraum sowie...
Großzügige Dachgeschosswohnung mit Terrasse
Weitläufiges Wohnen mit besonderem Wohnkomfort
Diese beeindruckende Eigentumswohnung im Dachgeschoss bietet mit ca. 130 m² Wohnfläche ein außergewöhnlich großzügiges Raumangebot und überzeugt durch eine rund 25 m² große Terrasse – perfekt, um die Ruhe und den Ausblick in vollen Zügen zu genießen.
Die Raumaufteilung schafft ein harmonisches Zusammenspiel aus Offenheit und privaten Rückzugsbereichen: Ein Vorraum erschließt die Wohnung und bietet Zugang zu den weiteren Räumlichkeiten. Der weitläufigen Wohn-, Ess- und Küchenbereich mit Zugang zur Terrasse bildet das Herzstück der Immobilie. Ergänzt wird das Raumangebot durch drei Zimmer, ein Badezimmer, ein separates WC, einen weiteren Vorraum sowie einen praktischen Abstellraum.
Ein zusätzlicher Mehrwert ist der ca. 17 m² große Hauswirtschaftsraum, der sich direkt neben der Wohnung befindet und zusätzlichen Stauraum sowie funktionale Nutzungsmöglichkeiten bietet.
Raumaufteilung im Überblick:
Vorraum | WC | Badezimmer | Vorraum | 3 Zimmer | Wohn-Ess-Küche mit Terrassenzugang | Abstellraum | Hauswirtschaftsraum
Diese Immobilie eignet sich gleichermaßen zur Eigennutzung wie auch als attraktive Anlageobjektlösung, da sie zweitwohnsitzfähig ist und eine touristische Vermietung ermöglicht wird.
Nutzen Sie diese besondere Gelegenheit und verwirklichen Sie Ihr Wohn- oder Investmentprojekt in dieser einzigartigen Dachgeschosswohnung in naturnaher Lage.
Der Vermittler ist als Doppelmakler tätig.
Infrastruktur / Entfernungen
Gesundheit
Arzt <2.000m
Apotheke <7.000m
Kinder & Schulen
Schule <6.500m
Kindergarten <7.000m
Nahversorgung
Supermarkt <7.000m
Bäckerei <6.500m
Sonstige
Bank <2.500m
Geldautomat <2.500m
Polizei <7.000m
Post <2.500m
Verkehr
Bus <1.000m
Autobahnanschluss <7.500m
Bahnhof <7.000m
Flughafen <7.500m
Angaben Entfernung Luftlinie / Quelle: OpenStreetMap
Objektdaten
Ausstattung
- Bad mit Dusche
- Offene Küche
- Zentralheizung
- Fußbodenheizung
- Ausrichtung Balkon/Terrasse - Nordost
Zustand
- HWB
- 83.6 kWh/m² pro Jahr
- fGEE
- 0.83
Flächen
- Anzahl der Zimmer
- 4
- Anzahl der Badezimmer
- 1
- Anzahl der sep. WCs
- 1
- Anzahl der Terrassen
- 1
- Stellplätze
- 1
- Wohnfläche
- 130m²
- Terrassenfläche
- 1m²
Kosten
- Kaufpreis Brutto
- € 375.000,00
Verwaltung
- Ferienimmobilie
- Ja
Wohnungen zum Kaufen im Umkreis von Hohentauern
Wohnungen zum Kaufen im Umkreis von Hohentauern
Wohnungen zum Kaufen in Österreich
Andere Besucher suchen nach...
- Grundstücke kaufen in 3400 Weidlingbach
- Wohnungen kaufen in 4663 Laakirchen
- Häuser in 7471 Rechnitz
- Wohnungen in 2410 Hainburg an der Donau
- Häuser kaufen in 2432 Schwadorf
- Wohnungen kaufen in 3002 Purkersdorf
- Häuser in 3150 Wilhelmsburg
- Wohnungen kaufen in 3470 Engelmannsbrunn
- Grundstücke kaufen im Bezirk Mattersburg
- Grundstücke kaufen im Bezirk Gmunden