Moderne 3-Zimmer-Wohnung mit Loggia in Ruhelage von Ternitz – Ideal für Familien oder als flexibles Investment.
Beschreibung
Moderne 3-Zimmer-Wohnung mit Loggia in Ruhelage von Ternitz – Ideal für Familien oder als flexibles Investment.
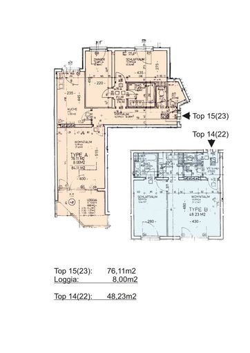
Diese freundliche Eigentumswohnung im 3. Stock überzeugt mit einer Wohnfläche von ca. 76,11 m² und einer zusätzlichen, sonnigen Loggia von 8,00 m². Die Gesamtnutzfläche beträgt großzügige 84,11 m².
-
Raumwunder: Die Einheit verfügt über einen Wohnraum (ca. 20,50 m²), ein Schlafzimmer (ca. 12,24 m²) und ein weiteres Zimmer (ca. 10,89 m²), die sich ideal als Kinderzimmer oder Homeoffice eignen.
-
Komfort: Eine separate Küche, ein Bad, ein WC, ein Vorraum sowie ein Flur runden das durchdachte Raumkonzept ab.
-
Lage-Vorteil:...
Moderne 3-Zimmer-Wohnung mit Loggia in Ruhelage von Ternitz – Ideal für Familien oder als flexibles Investment.
Diese freundliche Eigentumswohnung im 3. Stock überzeugt mit einer Wohnfläche von ca. 76,11 m² und einer zusätzlichen, sonnigen Loggia von 8,00 m². Die Gesamtnutzfläche beträgt großzügige 84,11 m².
Raumwunder: Die Einheit verfügt über einen Wohnraum (ca. 20,50 m²), ein Schlafzimmer (ca. 12,24 m²) und ein weiteres Zimmer (ca. 10,89 m²), die sich ideal als Kinderzimmer oder Homeoffice eignen.
Komfort: Eine separate Küche, ein Bad, ein WC, ein Vorraum sowie ein Flur runden das durchdachte Raumkonzept ab.
Lage-Vorteil: Die Wohnung liegt in einer ruhigen, gepflegten Wohnhausanlage in Ternitz mit guter Infrastruktur – Einkaufsmöglichkeiten, Schulen und der Bahnhof sind schnell erreichbar.
Besonderheit: Ein zugehöriger Stellplatz und Kellerabteil sind vorhanden.
Haben Sie Interesse? Kontaktieren Sie uns gerne für einen persönlichen Besichtigungstermin – wir freuen uns, Ihnen diese großartige Immobilie zu präsentieren!
Infrastruktur / Entfernungen
Gesundheit
Arzt <500m
Apotheke <1.500m
Krankenhaus <5.500m
Kinder & Schulen
Kindergarten <500m
Schule <500m
Nahversorgung
Supermarkt <1.500m
Bäckerei <1.500m
Einkaufszentrum <1.500m
Sonstige
Bank <1.500m
Geldautomat <1.500m
Polizei <500m
Post <1.500m
Verkehr
Bus <500m
Autobahnanschluss <4.500m
Bahnhof <1.500m
Angaben Entfernung Luftlinie / Quelle: OpenStreetMap
Objektdaten
Ausstattung
- Gartennutzung
- Fahrradraum
- Einbauküche
- Fernwärme Heizung
- Fußbodenheizung
- Massiv Bauweise
Zustand
- Baujahr
- 1986
- HWB
- 84.5 kWh/m² pro Jahr
- Klasse HWB
- C
- fGEE
- 1.48
- Klasse fGEE
- C
Flächen
- Anzahl der Badezimmer
- 1
- Anzahl der sep. WCs
- 1
- Anzahl der Logia
- 1
- Stellplätze
- 1
- Wohnfläche
- 76m²
Kosten
- Kaufpreis Brutto
- € 125.900,00
Wohnungen zum Kaufen im Umkreis von Ternitz
Wohnungen zum Kaufen im Umkreis von Ternitz
Wohnungen zum Kaufen in Österreich
Andere Besucher suchen nach...
- Grundstücke kaufen in 3400 Weidlingbach
- Wohnungen kaufen in 4663 Laakirchen
- Häuser in 7471 Rechnitz
- Wohnungen in 2410 Hainburg an der Donau
- Häuser kaufen in 2432 Schwadorf
- Wohnungen kaufen in 3002 Purkersdorf
- Häuser in 3150 Wilhelmsburg
- Wohnungen kaufen in 3470 Engelmannsbrunn
- Grundstücke kaufen im Bezirk Mattersburg
- Grundstücke kaufen im Bezirk Gmunden