Gemütliche ca. 46 m² - Wohnung mit Balkon
Beschreibung
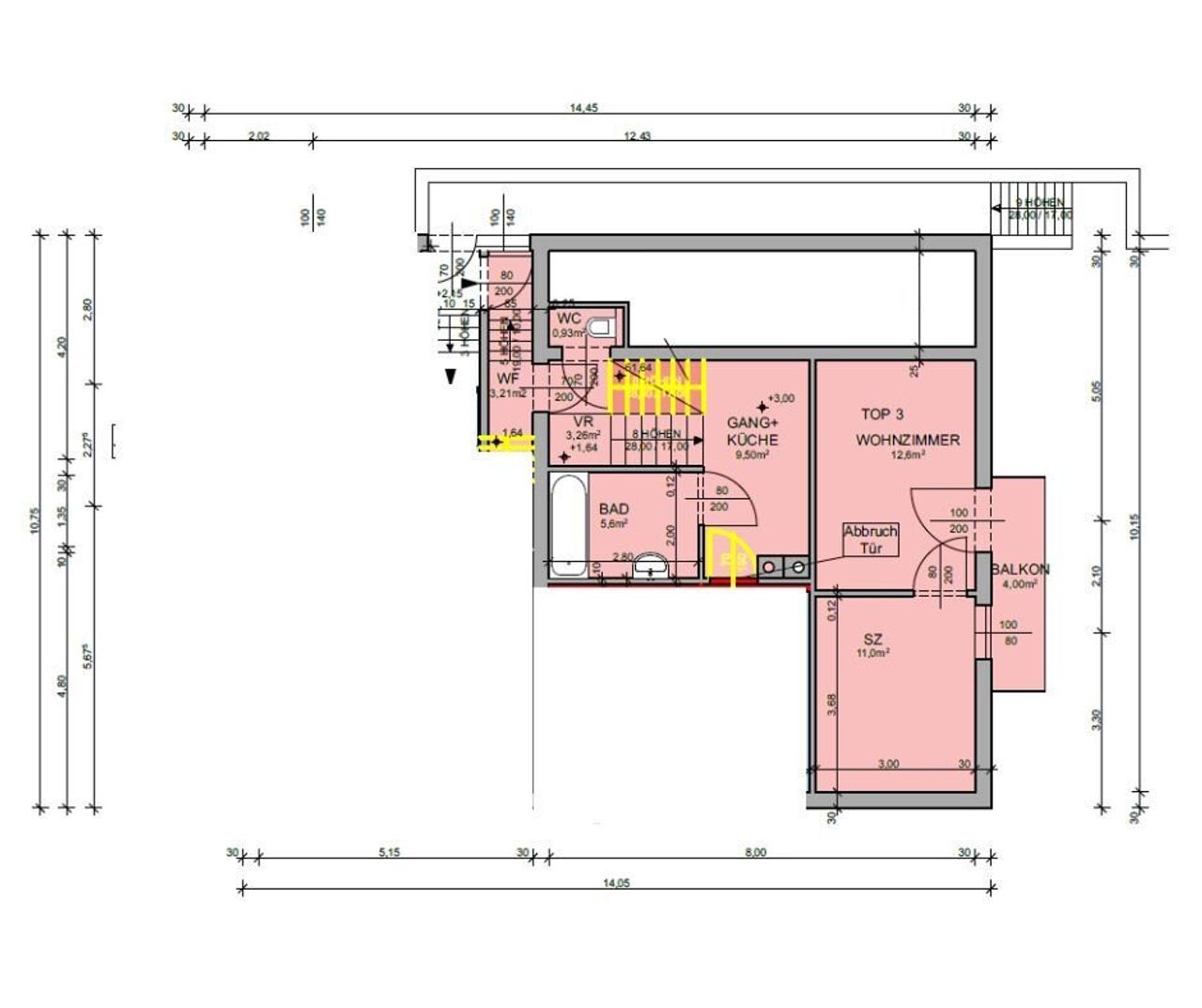
Klein, aber fein! Diese charmante 45,44 m² große Wohnung bietet alles, was Sie für ein gemütliches Zuhause oder eine lukrative Investition suchen. Ob als idealer Rückzugsort für Singles oder als renditestarke Langzeit/ Kurzzeit- und Ferienvermietung – hier haben Sie alle Möglichkeiten!
Die frisch renovierten Räume erstrahlen in modernem Look, während die zentrale Ölheizung für eine angenehme Wärme sorgt. Dank der cleveren Raumaufteilung wird jeder Quadratmeter optimal genutzt.
🏡 Attraktive Lage mit vielfältigen Möglichkeiten! Die Wohnung liegt in einer begehrten Umgebung, die sich ideal für den Eigenbedarf, aber auch für die Ferienvermietung eignet. Dank guter Verkehrsanbindung und Freizeitmöglichkeiten in...
Klein, aber fein! Diese charmante 45,44 m² große Wohnung bietet alles, was Sie für ein gemütliches Zuhause oder eine lukrative Investition suchen. Ob als idealer Rückzugsort für Singles oder als renditestarke Langzeit/ Kurzzeit- und Ferienvermietung – hier haben Sie alle Möglichkeiten!
Die frisch renovierten Räume erstrahlen in modernem Look, während die zentrale Ölheizung für eine angenehme Wärme sorgt. Dank der cleveren Raumaufteilung wird jeder Quadratmeter optimal genutzt.
🏡 Attraktive Lage mit vielfältigen Möglichkeiten!
Die Wohnung liegt in einer begehrten Umgebung, die sich ideal für den Eigenbedarf, aber auch für die Ferienvermietung eignet. Dank guter Verkehrsanbindung und Freizeitmöglichkeiten in der Nähe bietet sie ein hohes Potenzial für attraktive Renditen.
💡 Warum diese Wohnung?
✅ Perfekt für Singles, Eigennutzer oder als Kapitalanlage
✅ Modern renoviert – sofort einziehen oder vermieten!
✅ Ideal für Ferienvermietung oder langfristige Vermietung
📞 Interesse geweckt? Vereinbaren Sie noch heute einen Besichtigungstermin mit Herrn Armin Hohenschläger unter +43 699 1308 0972.
ACHTUNG: Die Wohnung wird unmöbliert übergeben. Die eingerichteten Fotos dienen nur zur Visualisierung und sind Beispielfotos.
Wir weisen darauf hin, dass zwischen dem Vermittler und dem zu vermittelnden Dritten ein familiäres oder wirtschaftliches Naheverhältnis besteht.
Der Vermittler ist als Doppelmakler tätig.
Infrastruktur / Entfernungen
Gesundheit
Arzt <1.500m
Apotheke <7.000m
Klinik <8.500m
Kinder & Schulen
Schule <1.500m
Kindergarten <1.500m
Nahversorgung
Supermarkt <1.000m
Bäckerei <4.500m
Einkaufszentrum <10.000m
Sonstige
Bank <1.000m
Geldautomat <1.000m
Post <1.000m
Polizei <4.000m
Verkehr
Bus <1.000m
Bahnhof <500m
Angaben Entfernung Luftlinie / Quelle: OpenStreetMap
Objektdaten
Ausstattung
- Befeuerung mit Öl
Zustand
- Baujahr
- 1960
- HWB
- 140.2 kWh/m² pro Jahr
- Klasse HWB
- E
- fGEE
- 2.22
- Klasse fGEE
- D
Flächen
- Anzahl der Balkone
- 1
- Wohnfläche
- 45m²
Kosten
- Kaufpreis Brutto
- € 62.900,00
Wohnungen zum Kaufen im Umkreis von Grünbach am Schneeberg
Wohnungen zum Kaufen im Umkreis von Grünbach am Schneeberg
Wohnungen zum Kaufen in Österreich
Andere Besucher suchen nach...
- Grundstücke kaufen in 3400 Weidlingbach
- Wohnungen kaufen in 4663 Laakirchen
- Häuser in 7471 Rechnitz
- Wohnungen in 2410 Hainburg an der Donau
- Häuser kaufen in 2432 Schwadorf
- Wohnungen kaufen in 3002 Purkersdorf
- Häuser in 3150 Wilhelmsburg
- Wohnungen kaufen in 3470 Engelmannsbrunn
- Grundstücke kaufen im Bezirk Mattersburg
- Grundstücke kaufen im Bezirk Gmunden