BEZUGSFERTIG: NEUBAU 3 Zi. WHG. MIT SÜD-BALKON IN TOPLAGE
-
Erstbezug
-
2024
Beschreibung
Das Neubauprojekt mit insgesamt nur 7 Einheiten, ist bereits fertiggestellt. Es zeichnet sich durch ein gut durchdachtes Gesamtkonzept aus und verfügt über eine hochwertige Ausstattung. Das Objekt wird in exklusiver und solidester Baumeisterqualität ausgeführt.
Bewährte massive Bauweise, z.B. roter Ziegel, Vollwärmeschutz, voll unterkellert, massiver Zimmermannsdachstuhl, Kunststofffenster mit 3-fach Isolierverglasung, Photovoltaikanlage kombiniert mit einer effizienten Wasser-Wasser-Wärmepumpe sowie die exklusive Ausstattung wie beispielsweise die hochwertigen Fußböden, geschmackvolle Fliesen und Sanitärgegenstände, weiße Innentüren mit Fertigholzzargen und noch vieles mehr wird Sie begeistern.
Die Lage ist nahezu perfekt, am Stadtrand ruhig gelegen. In unmittelbarer Nähe hat man ein wunderschönes Naherholungsgebiet an der Saalach....
Das Neubauprojekt mit insgesamt nur 7 Einheiten, ist bereits fertiggestellt. Es zeichnet sich durch ein gut durchdachtes Gesamtkonzept aus und verfügt über eine hochwertige Ausstattung. Das Objekt wird in exklusiver und solidester Baumeisterqualität ausgeführt.
Bewährte massive Bauweise, z.B. roter Ziegel, Vollwärmeschutz, voll unterkellert, massiver Zimmermannsdachstuhl, Kunststofffenster mit 3-fach Isolierverglasung, Photovoltaikanlage kombiniert mit einer effizienten Wasser-Wasser-Wärmepumpe sowie die exklusive Ausstattung wie beispielsweise die hochwertigen Fußböden, geschmackvolle Fliesen und Sanitärgegenstände, weiße Innentüren mit Fertigholzzargen und noch vieles mehr wird Sie begeistern.
Die Lage ist nahezu perfekt, am Stadtrand ruhig gelegen. In unmittelbarer Nähe hat man ein wunderschönes Naherholungsgebiet an der Saalach. Die Öffentliche Busverbindung mit direkter Anbindung in die Stadt Salzburg, erreicht man mit nur wenigen Schritten.
Übersicht:
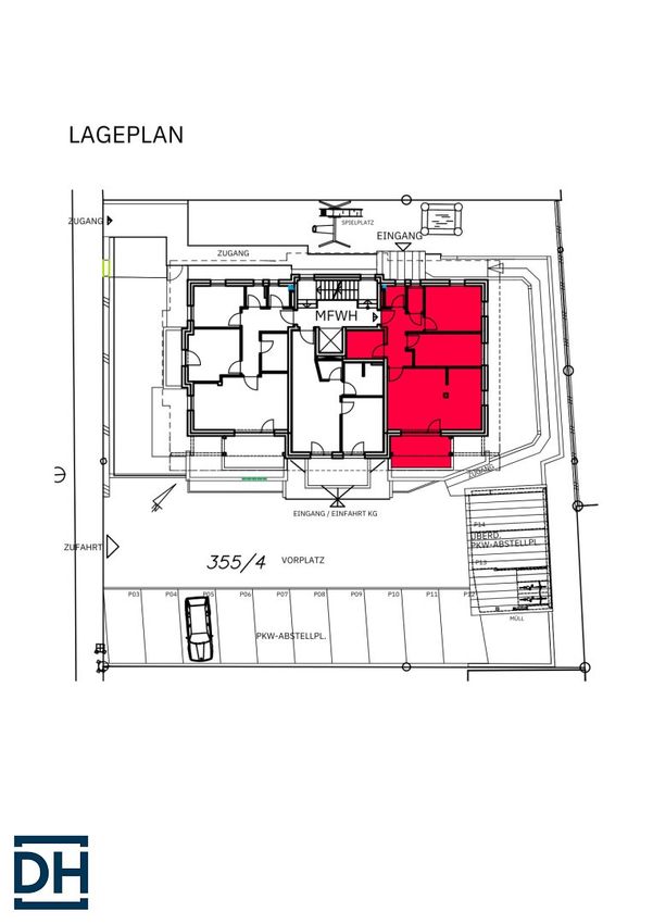
- 3 Zimmerwohnung im 1. Stock
- 65,19m² Wohnfläche
- Süd-Balkon mit 8,59m² Fläche
- Personenaufzug
- Kellerabteil inkl.
- Kostengünstige Wasser-Wasser Wärmepumpe
- Fußbodenheizung
- PV Anlage
- Kaufpreis Wohnung € 545.000.-
- Kaufpreis PKW Stellplatz € 12.000.-
- Provision 3% vom Kaufpreis zzgl. 20% MwSt.
Zusammengefasst überzeugt diese schöne Immobilie durch die hochwertige Bauweise und Austattung, sowie der perfekten ruhigen Stadtrandlage.
Weitere Details, sowie die genaue Lage, erfahren sie auf Anfrage im Expose.
Für Fragen oder Besichtigungen, steht Ihnen Herr Andreas Dietmann gerne zur Verfügung.
Irrtum und Änderungen vorbehalten!
Alle Angaben sind ohne Gewähr und basieren ausschließlich auf Informationen, die uns von unserem Auftraggeber bzw. Kooperationspartner übermittelt wurden.
Wir übernehmen keine Gewähr für die Vollständigkeit, Richtigkeit und Aktualität dieser Angaben. Zwischenverkauf bleibt vorbehalten.
Noch nichts gefunden? Wir informieren Sie über geeignete Immobilienangebote noch vor allen anderen.
Legen Sie jetzt Ihren individuellen Suchagenten unter folgendem Link an. Wir schicken Ihnen passende Immobilien exklusiv vorab zu.
Suchagent anlegen - https://d-h.service.immo/registrieren/de
Infrastruktur / Entfernungen
Gesundheit
Arzt <2.000m
Apotheke <1.500m
Klinik <5.000m
Krankenhaus <5.500m
Kinder & Schulen
Schule <1.000m
Kindergarten <500m
Universität <6.000m
Höhere Schule <6.000m
Nahversorgung
Supermarkt <1.000m
Bäckerei <1.000m
Einkaufszentrum <4.000m
Sonstige
Bank <1.000m
Geldautomat <1.000m
Polizei <1.500m
Post <1.500m
Verkehr
Bus <500m
Bahnhof <1.000m
Autobahnanschluss <2.000m
Flughafen <3.500m
Angaben Entfernung Luftlinie / Quelle: OpenStreetMap
Objektdaten
Ausstattung
- Barrierefrei
- Bad mit Badewanne
- Parkettboden
- Fußbodenheizung
- Solar
- Personen Fahrstuhl
- Ausrichtung Balkon/Terrasse - Südwest
Zustand
- Zustand
- ERSTBEZUG
- Baujahr
- 2024
- Alter
- NEUBAU
- HWB
- 27 kWh/m² pro Jahr
- fGEE
- 0.65
Flächen
- Anzahl der Zimmer
- 3
- Anzahl der Badezimmer
- 1
- Anzahl der sep. WCs
- 1
- Anzahl der Balkone
- 1
- Stellplätze
- 1
- Wohnfläche
- 65m²
Kosten
- Kaufpreis Brutto
- € 545.000,00
Wohnungen zum Kaufen im Umkreis von Wals-Siezenheim
Wohnungen zum Kaufen im Umkreis von Wals-Siezenheim
Wohnungen zum Kaufen in Österreich
Andere Besucher suchen nach...
- Grundstücke kaufen in 3400 Weidlingbach
- Wohnungen kaufen in 4663 Laakirchen
- Häuser in 7471 Rechnitz
- Wohnungen in 2410 Hainburg an der Donau
- Häuser kaufen in 2432 Schwadorf
- Wohnungen kaufen in 3002 Purkersdorf
- Häuser in 3150 Wilhelmsburg
- Wohnungen kaufen in 3470 Engelmannsbrunn
- Grundstücke kaufen im Bezirk Mattersburg
- Grundstücke kaufen im Bezirk Gmunden