Eigentumswohnung mit Platz für Alt und Jung
€ 210.000
€ 1.680 / m²
3264 Gresten
Beschreibung
Große Eigentumswohnung in ruhiger, zentraler Lage! Die aus 2 Einheiten bestehende, zusammengelegt im Erdgeschoss der Wohnhausanlage gelegene Wohnung besticht durch ihr großzügiges Raumangebot. Gleich 2 nach Süden ausgerichtete Terrassen laden vor allem im Sommer zum Chillen und Seelebaden ein. Auch sonst bietet das geräumige Heim viele Vorzüge für ein Zusammenwohnen von Alt und Jung. Wohnen, Leben aber auch die Nutzung eines Büroraumes oder Einrichtung von Hobbyräumen sind durch das vorhandene Platzangebot verwirklichbar. Das Raumkonzept: 2 Eingänge mit Vorräumen, 2 Bäder, 2 WC, 2 Küchen, 2 Terrassen, 5 Zimmer sowie 2 Abstellräume im 1. Stock Die Wohneinheit ist an das Netz...
Große Eigentumswohnung in ruhiger, zentraler Lage!
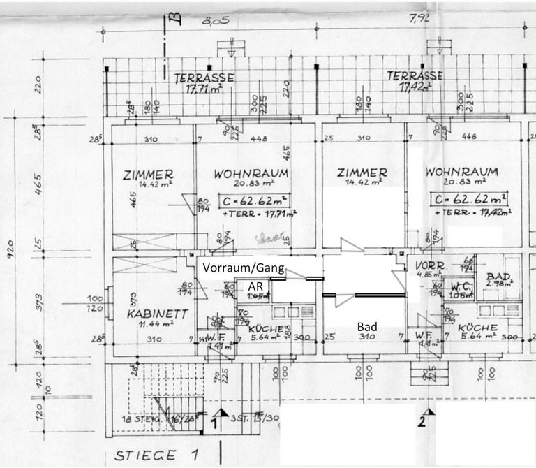
Die aus 2 Einheiten bestehende, zusammengelegt im Erdgeschoss der Wohnhausanlage gelegene Wohnung besticht durch ihr großzügiges Raumangebot. Gleich 2 nach Süden ausgerichtete Terrassen laden vor allem im Sommer zum Chillen und Seelebaden ein. Auch sonst bietet das geräumige Heim viele Vorzüge für ein Zusammenwohnen von Alt und Jung. Wohnen, Leben aber auch die Nutzung eines Büroraumes oder Einrichtung von Hobbyräumen sind durch das vorhandene Platzangebot verwirklichbar.
Das Raumkonzept:
2 Eingänge mit Vorräumen, 2 Bäder, 2 WC, 2 Küchen, 2 Terrassen, 5 Zimmer sowie 2 Abstellräume im 1. Stock
Die Wohneinheit ist an das Netz der Fernwärme angeschlossen wobei die Aufbereitung des Warmwassers elektrisch erfolgt. Zusätzlich sind auch noch 2 Kaminanschlüsse vorhanden, welche jedoch derzeit nicht genutzt werden. Zum Abstellen des/der eigenen KFZ sind im Umfeld eine ausreichende Anzahl von öffentlichen Parkplätzen vorhanden.
Durch die zentrale Lage sind das Ortszentrum, Kindergarten, Schule, Ärzte, Einkaufsmärkte sowie Sport- und Freizeiteinrichtungen fußläufig in 10 bis 15 Minuten erreichbar. Auch für Wanderungen bzw. Radtouren kann auf das Auto verzichtet werden, da für beide Aktivitäten Gresten als Ausgangspunkt genutzt werden kann. Als Arbeitssuchende/r findet man in Gresten immer wieder Stellenangebote der heimischen Wirtschaft, welche für gut ausgebildete Fachkräfte, Hilfskräfte aber auch Lehrstellensuchende oft Angebote bereitstellt. Das rege Vereinsleben bietet zudem eine Vielfalt an Möglichkeiten sich sportlich aber auch kulturell zu betätigen.
Für weitere Informationen und Besichtigungen steht Ihnen Herr Mag. (FH) Harald Bittermann gerne unter +43 681 814 423 00 zur Verfügung.
Wünschen Sie die Zusendung detaillierter Unterlagen zu dieser Immobilie benötigen wir bitte Ihre vollständigen Kontaktdaten. Ihre Daten werden nicht an Dritte weitergegeben und nach den Bestimmungen des Datenschutzgesetzes streng vertraulich behandelt.
Finden Sie uns unter: www.immobilien-moertl.at, https://www.facebook.com/ImmobilienMoertl/ und https://www.instagram.com/immobilien.moertl/
IMMOBILIEN MÖRTL - Wir verkaufen Ihre Immobilie in Wien und NÖ!
https://www.immobilien-moertl.at/1182743/Immobilienverkauf
Fragen Sie unverbindlich Ihr Finanzierungsmodell an: https://www.immobilien-moertl.at/finanzierung
Die aus 2 Einheiten bestehende, zusammengelegt im Erdgeschoss der Wohnhausanlage gelegene Wohnung besticht durch ihr großzügiges Raumangebot. Gleich 2 nach Süden ausgerichtete Terrassen laden vor allem im Sommer zum Chillen und Seelebaden ein. Auch sonst bietet das geräumige Heim viele Vorzüge für ein Zusammenwohnen von Alt und Jung. Wohnen, Leben aber auch die Nutzung eines Büroraumes oder Einrichtung von Hobbyräumen sind durch das vorhandene Platzangebot verwirklichbar.
Das Raumkonzept:
2 Eingänge mit Vorräumen, 2 Bäder, 2 WC, 2 Küchen, 2 Terrassen, 5 Zimmer sowie 2 Abstellräume im 1. Stock
Die Wohneinheit ist an das Netz der Fernwärme angeschlossen wobei die Aufbereitung des Warmwassers elektrisch erfolgt. Zusätzlich sind auch noch 2 Kaminanschlüsse vorhanden, welche jedoch derzeit nicht genutzt werden. Zum Abstellen des/der eigenen KFZ sind im Umfeld eine ausreichende Anzahl von öffentlichen Parkplätzen vorhanden.
Durch die zentrale Lage sind das Ortszentrum, Kindergarten, Schule, Ärzte, Einkaufsmärkte sowie Sport- und Freizeiteinrichtungen fußläufig in 10 bis 15 Minuten erreichbar. Auch für Wanderungen bzw. Radtouren kann auf das Auto verzichtet werden, da für beide Aktivitäten Gresten als Ausgangspunkt genutzt werden kann. Als Arbeitssuchende/r findet man in Gresten immer wieder Stellenangebote der heimischen Wirtschaft, welche für gut ausgebildete Fachkräfte, Hilfskräfte aber auch Lehrstellensuchende oft Angebote bereitstellt. Das rege Vereinsleben bietet zudem eine Vielfalt an Möglichkeiten sich sportlich aber auch kulturell zu betätigen.
Für weitere Informationen und Besichtigungen steht Ihnen Herr Mag. (FH) Harald Bittermann gerne unter +43 681 814 423 00 zur Verfügung.
Wünschen Sie die Zusendung detaillierter Unterlagen zu dieser Immobilie benötigen wir bitte Ihre vollständigen Kontaktdaten. Ihre Daten werden nicht an Dritte weitergegeben und nach den Bestimmungen des Datenschutzgesetzes streng vertraulich behandelt.
Finden Sie uns unter: www.immobilien-moertl.at, https://www.facebook.com/ImmobilienMoertl/ und https://www.instagram.com/immobilien.moertl/
IMMOBILIEN MÖRTL - Wir verkaufen Ihre Immobilie in Wien und NÖ!
https://www.immobilien-moertl.at/1182743/Immobilienverkauf
Fragen Sie unverbindlich Ihr Finanzierungsmodell an: https://www.immobilien-moertl.at/finanzierung
| Angaben gemäß gesetzlichem Erfordernis: | |||
| Heizwärmebedarf: | 119.2 kWh/(m²a) | ||
| Klasse Heizwärmebedarf: | D | ||
| Faktor Gesamtenergieeffizienz: | 1.96 | ||
| Klasse Faktor Gesamtenergieeffizienz: | D | ||
Objektdaten
Ausstattung
- Vollmöbliert
- Zentralheizung
- Fern Befeuerung
- Vollmöbliert
- Zentralheizung mit Fernwärme
Zustand
- Zustand
- GEPFLEGT
- Baujahr
- ca. 1969
Flächen
- Anzahl der Zimmer
- 5
- Anzahl der Schlafzimmer
- 3
- Anzahl der Badezimmer
- 2
- Anzahl der sep. WCs
- 2
- Anzahl der Terrassen
- 2
- Wohnfläche
- 125m²
- Terrassenfläche
- 2m²
Kosten
- Kaufpreis
- € 210.000,00
Verwaltung
- Verfügbar ab
- nach Vereinbarung
Wohnungen zum Kaufen in Österreich
Wohnungen zum Kaufen in Österreich
Wohnungen zum Kaufen in Österreich
Andere Besucher suchen nach...
- Grundstücke kaufen in 3400 Weidlingbach
- Wohnungen kaufen in 4663 Laakirchen
- Häuser in 7471 Rechnitz
- Wohnungen in 2410 Hainburg an der Donau
- Häuser kaufen in 2432 Schwadorf
- Wohnungen kaufen in 3002 Purkersdorf
- Häuser in 3150 Wilhelmsburg
- Wohnungen kaufen in 3470 Engelmannsbrunn
- Grundstücke kaufen im Bezirk Mattersburg
- Grundstücke kaufen im Bezirk Gmunden