Investieren am Ötscher - 2-Zimmer-Wohnung mit Blick ins Grüne.
-
Sofort
Beschreibung
Diese rund 44 m² große, möblierte Wohnung befindet sich im zweiten Obergeschoss eines modernisierten Wohnhauses in Lackenhof am Ötscher. Mit einem eigenen Balkon, Kellerabteil sowie einem Parkplatz direkt beim Haus eignet sich die Einheit ideal für die touristische Vermietung oder als persönlicher Rückzugsort in den Bergen.
DIE VORTEILE DIESER WOHNUNG AUF EINEN BLICK:
- Ruhige Mikrolage in Lackenhof
- Ca. 150 Meter zur Skiliftstation
- Ca. 44,3 m² Wohnfläche
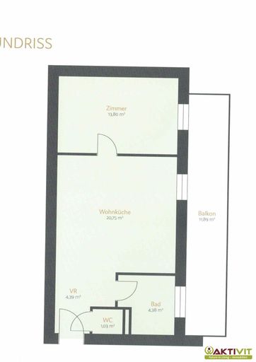
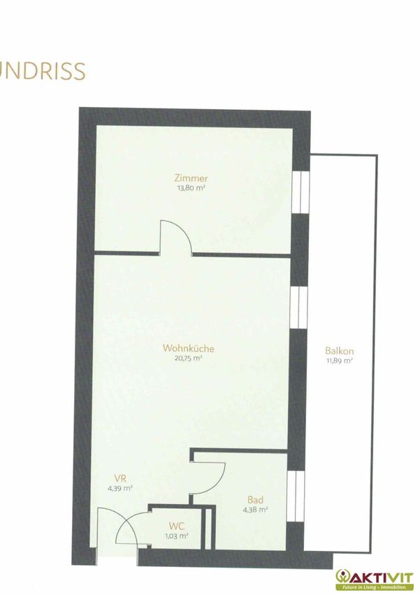
- Eigener Balkon mit ca. 12 m², begehbar vom Wohnzimmer
- Eigenes Kellerabteil mit ca. 4,6 m²
- Küche und Badezimmermöblierung inkludiert
- Sehr guter Zustand – sofort beziehbar
- Eignet sich für Ferienvermietung oder Eigennutzung ...
Diese rund 44 m² große, möblierte Wohnung befindet sich im zweiten Obergeschoss eines modernisierten Wohnhauses in Lackenhof am Ötscher. Mit einem eigenen Balkon, Kellerabteil sowie einem Parkplatz direkt beim Haus eignet sich die Einheit ideal für die touristische Vermietung oder als persönlicher Rückzugsort in den Bergen.
DIE VORTEILE DIESER WOHNUNG AUF EINEN BLICK:
- Ruhige Mikrolage in Lackenhof
- Ca. 150 Meter zur Skiliftstation
- Ca. 44,3 m² Wohnfläche
- Eigener Balkon mit ca. 12 m², begehbar vom Wohnzimmer
- Eigenes Kellerabteil mit ca. 4,6 m²
- Küche und Badezimmermöblierung inkludiert
- Sehr guter Zustand – sofort beziehbar
- Eignet sich für Ferienvermietung oder Eigennutzung
- PKW-Stellplatz direkt beim Haus
- Haus generalsaniert im Jahr 2022
DIE WOHNUNG:
Top 09 befindet sich im zweiten Obergeschoss und verfügt über eine Wohnfläche von ca. 44,3 m². Die Raumaufteilung umfasst einen Vorraum, eine Wohnküche, ein separates WC, ein Badezimmer mit Fenster und Dusche sowie ein Schlafzimmer. Der rund 12 m² große Balkon ist direkt vom Wohnzimmer aus zugänglich und bietet Platz für entspannte Stunden mit Aussicht auf die umliegende Natur. Zur Wohnung gehört ein eigenes Kellerabteil mit etwa 4,6 m² sowie ein PKW-Stellplatz beim Haus.
Zusätzlich besteht die Möglichkeit, eine zweite nahezu identische Wohnung im selben Haus zu erwerben – auch als Paketlösung denkbar für private oder gewerbliche Nutzung.
ZUSTAND UND AUSSTATTUNG:
Das Wohnhaus wurde 2022 einer umfassenden Modernisierung unterzogen. Die Wohnung selbst ist in sehr gutem Zustand und sofort bezugsfertig. Ausgestattet mit Fliesen- und Parkettböden, einer Einbauküche sowie einem möblierten Badezimmer ist sie funktional und geschmackvoll eingerichtet. Die Beheizung erfolgt mittels Infrarotheizung. Kabel- bzw. Satelliten-TV ist vorbereitet. Die Lage in absoluter Ruhelage mit Ausblick ins Grüne unterstreicht das entspannte Wohngefühl.
DIE BETRIEBSKOSTEN:
Derzeit liegen keine detaillierten Angaben zu Betriebskosten oder Rücklagen vor. Diese Informationen werden bei konkretem Interesse gerne zur Verfügung gestellt.
Zur Beantwortung weiterer Fragen sowie für Besichtigungstermine stehe ich Ihnen gerne täglich - auch am Wochenende - von 08:00 bis 22:00 Uhr zur Verfügung.
Ich freue mich über Ihre Kontaktaufnahme,
Wilhelm Rossmair
+43 664 54 24 481
w.rossmair@aktivit.org
Der Vermittler ist als Doppelmakler tätig.
Erteilen Sie uns ihren Suchauftrag und profitieren Sie von vielen Vorteilen und exklusiven Angeboten!
Ganz einfach und kostenlos unter: Jetzt Suchauftrag eingeben.
Infrastruktur / Entfernungen
Gesundheit
Arzt <9.000m
Apotheke <9.000m
Kinder & Schulen
Schule <8.500m
Universität <7.500m
Kindergarten <8.500m
Höhere Schule <9.000m
Nahversorgung
Supermarkt <1.000m
Bäckerei <9.000m
Sonstige
Bank <9.000m
Polizei <9.000m
Geldautomat <9.000m
Post <9.000m
Verkehr
Bus <500m
Bahnhof <9.000m
Angaben Entfernung Luftlinie / Quelle: OpenStreetMap
Objektdaten
Ausstattung
- Kabel/SAT-TV
- Gäste-WC
- Bad mit Dusche
- Bad mit Fenster
- Einbauküche
- Fliesenboden
- Elektrische Befeuerung
- Ausrichtung Balkon/Terrasse - Ost
- Satteldach
- Massiv Bauweise
Zustand
- Zustand
- MODERNISIERT
- Alter
- ALTBAU
Flächen
- Anzahl der Zimmer
- 2
- Anzahl der Badezimmer
- 1
- Anzahl der sep. WCs
- 1
- Anzahl der Balkone
- 1
- Stellplätze
- 1
- Wohnfläche
- 44m²
- Kellerfläche
- 5m²
Kosten
- Kaufpreis Brutto
- € 165.000,00
Verwaltung
- Verfügbar ab
- Sofort
Wohnungen zum Kaufen im Umkreis von Gaming
Wohnungen zum Kaufen im Umkreis von Gaming
Wohnungen zum Kaufen in Österreich
Andere Besucher suchen nach...
- Grundstücke kaufen in 3400 Weidlingbach
- Wohnungen kaufen in 4663 Laakirchen
- Häuser in 7471 Rechnitz
- Wohnungen in 2410 Hainburg an der Donau
- Häuser kaufen in 2432 Schwadorf
- Wohnungen kaufen in 3002 Purkersdorf
- Häuser in 3150 Wilhelmsburg
- Wohnungen kaufen in 3470 Engelmannsbrunn
- Grundstücke kaufen im Bezirk Mattersburg
- Grundstücke kaufen im Bezirk Gmunden