BEZUGSFERTIG. Neubau-Wohnung mit Panoramablick.
-
Erstbezug
-
2025
-
ab sofort
Beschreibung
BEZUGSFERTIG. Wohnen mit Bergblick, wo Natur und Komfort eins werden.
In Finkenstein am Faaker See auf einer leichten sonnigen Anhöhe im Ortsteil St. Stefan befindet sich SERENA. Ein südlich ausgerichtetes Premium Neubau-Wohnhaus mit nur sechs Wohnungen zwischen 75 m² und 86 m².
Ein fertiggestelltes Neubau-Projekt, das die Essenz von Wohnen neu interpretiert: reduziert auf das Wesentliche, angereichert mit Qualität und eingebettet in eine einmalige Landschaft. Nur sechs Neubau-Wohnungen eröffnen hier die Möglichkeit, in einem Umfeld zu leben, das Privatsphäre, Stil und Ruhe in den Mittelpunkt stellt. Neben dieser Wohnung erwarten Sie im Projekt SERENA noch weitere exklusive 2-...
BEZUGSFERTIG. Wohnen mit Bergblick, wo Natur und Komfort eins werden.
In Finkenstein am Faaker See auf einer leichten sonnigen Anhöhe im Ortsteil St. Stefan befindet sich SERENA. Ein südlich ausgerichtetes Premium Neubau-Wohnhaus mit nur sechs Wohnungen zwischen 75 m² und 86 m².
Ein fertiggestelltes Neubau-Projekt, das die Essenz von Wohnen neu interpretiert: reduziert auf das Wesentliche, angereichert mit Qualität und eingebettet in eine einmalige Landschaft. Nur sechs Neubau-Wohnungen eröffnen hier die Möglichkeit, in einem Umfeld zu leben, das Privatsphäre, Stil und Ruhe in den Mittelpunkt stellt. Neben dieser Wohnung erwarten Sie im Projekt SERENA noch weitere exklusive 2- und 3-Zimmer-Wohnungen, wahlweise mit privatem Garten oder großzügiger Terrasse.
Die Lage ist ein Geschenk: Umgeben von Wiesen und Feldern genießen Sie den weiten Blick auf die Karawanken und den imposanten Mittagskogel, während der türkisblau funkelnde Faaker See in unmittelbarer Nähe liegt. Hier verbinden sich Natur, Gelassenheit und moderner Komfort zu einem Wohngefühl, das nachhaltig wirkt.
SERENA steht für zeitlose Architektur, großzügige Freiflächen und Materialien, die Wertigkeit spürbar machen. Kombiniert mit durchdachten Grundrissen, nachhaltiger Haustechnik und eleganten Details entsteht ein Zuhause, das mehr ist als ein Ort zum Wohnen – es ist ein Ort zum Ankommen und Aufatmen. Das Projekt ist fertiggestellt und die Wohnungen sind sofort bezugsbereit.
Eine Musterwohnung ist bereits fertiggestellt und eine Besichtigung jederzeit möglich. Dort erleben Sie die qualitätsvollen Materialien direkt vor Ort, von edlen Parkettböden über moderne Fliesen bis hin zur durchdachten Ausstattung und spürbaren Bauqualität.
Durchdacht bis ins Detail...
Musterwohnung fertiggestellt, überzeugen Sie sich jederzeit von Qualität, Materialien und Ausstattung
Massivbauweise mit energieeffizienter Wärmedämmung
Kunststoff-Aluminium-Fenster mit 3-fach Isolier-Verglasung
Hebeschiebetüren mit schwellenlosem Übergang
Elektrisch steuerbare Sonnenschutz Raffstores
Fußbodenheizung mit nachhaltiger Wasser-Luft-Wärmepumpe (inkl. Kühlfunktion im Sommer)
Dezentrale Lüftungsanlage für frische Luft und angenehmes Raumklima
Warmwasserbereitung über IDM Hygienik Speicher
Qualitätsvolle Ausstattung: Parkettböden, moderne Fliesen, Armaturen von Hansgrohe, WCs von Villeroy & Boch
Barrierefreier Zugang per Aufzug
Wartungsfreie Wasser-Entkalkungsanlage von AQUON PUR
Private Kellerabteile, KFZ Carports, Vorbereitung für E-Auto-Ladestationen, private E-Bike-Ladestation
Hinweis: Der Kaufpreis pro KFZ-Carport Abstellplatz beträgt EUR 14.900,00.
Der Vermittler ist als Doppelmakler tätig.
Infrastruktur / Entfernungen
Gesundheit
Arzt <3.000m
Apotheke <3.500m
Klinik <3.500m
Krankenhaus <4.500m
Kinder & Schulen
Schule <1.000m
Kindergarten <1.000m
Universität <5.000m
Höhere Schule <5.000m
Nahversorgung
Supermarkt <1.500m
Bäckerei <3.000m
Einkaufszentrum <4.000m
Sonstige
Geldautomat <1.500m
Bank <1.500m
Post <3.500m
Polizei <3.500m
Verkehr
Bus <1.000m
Autobahnanschluss <2.500m
Bahnhof <500m
Angaben Entfernung Luftlinie / Quelle: OpenStreetMap
Objektdaten
Ausstattung
- Klimatisiert
- Barrierefrei
- Fahrradraum
- Bad mit Dusche
- Bad mit Badewanne
- Bad mit Fenster
- Offene Küche
- Fliesenboden
- Parkettboden
- Fußbodenheizung
- Luftwärmepumpe
- Personen Fahrstuhl
- Ausrichtung Balkon/Terrasse - Südwest
- Flachdach
- Massiv Bauweise
- Niedrigenergie
- Neubaustandard
Zustand
- Zustand
- ERSTBEZUG
- Baujahr
- 2025
- Alter
- NEUBAU
- HWB
- 36 kWh/m² pro Jahr
- Klasse HWB
- B
- fGEE
- 0.66
- Klasse fGEE
- A+
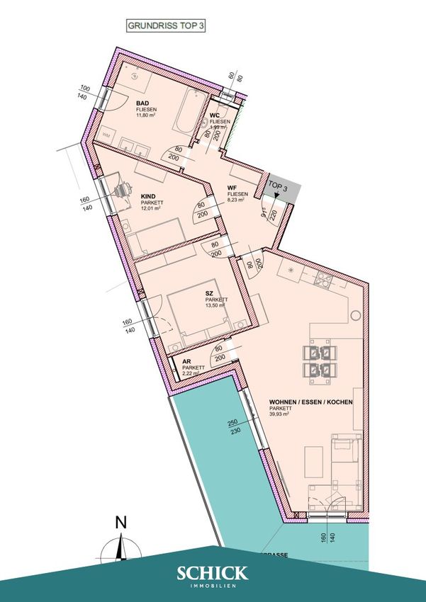
Flächen
- Anzahl der Zimmer
- 3
- Anzahl der Badezimmer
- 1
- Anzahl der sep. WCs
- 1
- Anzahl der Terrassen
- 1
- Stellplätze
- 2
- Wohnfläche
- 90m²
- Kellerfläche
- 3m²
- Terrassenfläche
- 1m²
Kosten
- Kaufpreis Brutto
- € 487.700,00
Verwaltung
- Verfügbar ab
- ab sofort
Wohnungen zum Kaufen im Umkreis von Finkenstein am Faaker See
Wohnungen zum Kaufen im Umkreis von Finkenstein am Faaker See
Wohnungen zum Kaufen in Österreich
Andere Besucher suchen nach...
- Grundstücke kaufen in 3400 Weidlingbach
- Wohnungen kaufen in 4663 Laakirchen
- Häuser in 7471 Rechnitz
- Wohnungen in 2410 Hainburg an der Donau
- Häuser kaufen in 2432 Schwadorf
- Wohnungen kaufen in 3002 Purkersdorf
- Häuser in 3150 Wilhelmsburg
- Wohnungen kaufen in 3470 Engelmannsbrunn
- Grundstücke kaufen im Bezirk Mattersburg
- Grundstücke kaufen im Bezirk Gmunden