Thermalwasser, Natur und Architektur prägen ein neues Zuhause
-
Erstbezug
-
2027
-
31.12.2027
Beschreibung
Wohnen neu gedacht – mit der Kraft des Thermalwassers
Park’s Warmbad bringt moderne Architektur und die Kraft des Thermalwassers in eine klare, zeitgemäße Form. Am Fuß des Naturparks Dobratsch und nur wenige Minuten vom Zentrum Villachs entsteht ein Wohnort, der Ruhe, Natur und urbanen Komfort präzise verbindet.
Spazierwege, das Maibachl und die KärntenTherme liegen direkt vor der Tür. Licht, Raum und natürliche Materialien prägen ein Wohngefühl, das auf Qualität und Klarheit ausgerichtet ist.
Park’s Warmbad steht für Wohnen mit Substanz – modern, wertbeständig und in einer Lage, die heute überzeugt und morgen Bestand hat.
KEY INFORMATION
- 107 Wohneinheiten mit...
Wohnen neu gedacht – mit der Kraft des Thermalwassers
Park’s Warmbad bringt moderne Architektur und die Kraft des Thermalwassers in eine klare, zeitgemäße Form. Am Fuß des Naturparks Dobratsch und nur wenige Minuten vom Zentrum Villachs entsteht ein Wohnort, der Ruhe, Natur und urbanen Komfort präzise verbindet.
Spazierwege, das Maibachl und die KärntenTherme liegen direkt vor der Tür. Licht, Raum und natürliche Materialien prägen ein Wohngefühl, das auf Qualität und Klarheit ausgerichtet ist.
Park’s Warmbad steht für Wohnen mit Substanz – modern, wertbeständig und in einer Lage, die heute überzeugt und morgen Bestand hat.
KEY INFORMATION
- 107 Wohneinheiten mit Wohnflachen von 30 bis 118 m2
- 1 bis 4- Zimmer Einheiten
- Indoor- & Outdoor-Pool mit Thermalwasser – einzigartig in der Region
- Eigener Fitnessraum im Haus
- Spabereich mit Sauna
- E-Ladestationen
Fertigstellung: Winter 2027
Architektur & Ausstattung
Die Wohnungen überzeugen durch offene Grundrisse, großzügige Fensterflächen und hochwertige Materialien. Terrassen, Balkone oder private Gärten schaffen direkten Zugang ins Grüne.
Exklusive Highlights für Bewohner:
- Indoor- & Outdoor-Pool mit Thermalwasser - einzigartig in Kärnten
- Eigener Fitnessraum & Sauna im Haus
- E-Ladestation für Bewohner und Gäste
Ein Konzept, das Wellness, Mobilität und Nachhaltigkeit perfekt verbindet.
Nature, Wellbeing & Urban Ease.
- eingebettet zwischen Alpen und Seen – am Fuß des Naturparks Dobratsch
- Thermalquellen, Spazierwege und Heilwasser als Teil des täglichen Lebens
- ruhiges Wohnumfeld mit direkter Nähe zur Stadt Villach
- perfekte Balance aus Natur, Gesundheit und Architektur
- wenige Minuten zu den Kärnten Thermen, Golfplätzen und alpinen Wanderwegen
- ausgezeichnete Anbindung an Italien, Slowenien, die Kärtnerseen und Skigebiete
Wir weisen darauf hin, dass zwischen dem Vermittler und dem zu vermittelnden Dritten ein familiäres oder wirtschaftliches Naheverhältnis besteht.
Infrastruktur / Entfernungen
Gesundheit
Arzt <500m
Apotheke <1.500m
Klinik <500m
Krankenhaus <500m
Kinder & Schulen
Schule <500m
Kindergarten <1.000m
Universität <5.000m
Höhere Schule <5.000m
Nahversorgung
Supermarkt <1.000m
Bäckerei <1.000m
Einkaufszentrum <1.000m
Sonstige
Geldautomat <500m
Bank <500m
Post <1.000m
Polizei <1.000m
Verkehr
Bus <500m
Autobahnanschluss <2.000m
Bahnhof <500m
Angaben Entfernung Luftlinie / Quelle: OpenStreetMap
Objektdaten
Ausstattung
- Sauna
- Swimmingpool
- Wellnessbereich
- Fahrradraum
- Fliesenboden
- Parkettboden
- Fußbodenheizung
- Personen Fahrstuhl
- Flachdach
- Schlüsselfertig mit Keller
Zustand
- Zustand
- ERSTBEZUG
- Baujahr
- 2027
- Alter
- NEUBAU
Flächen
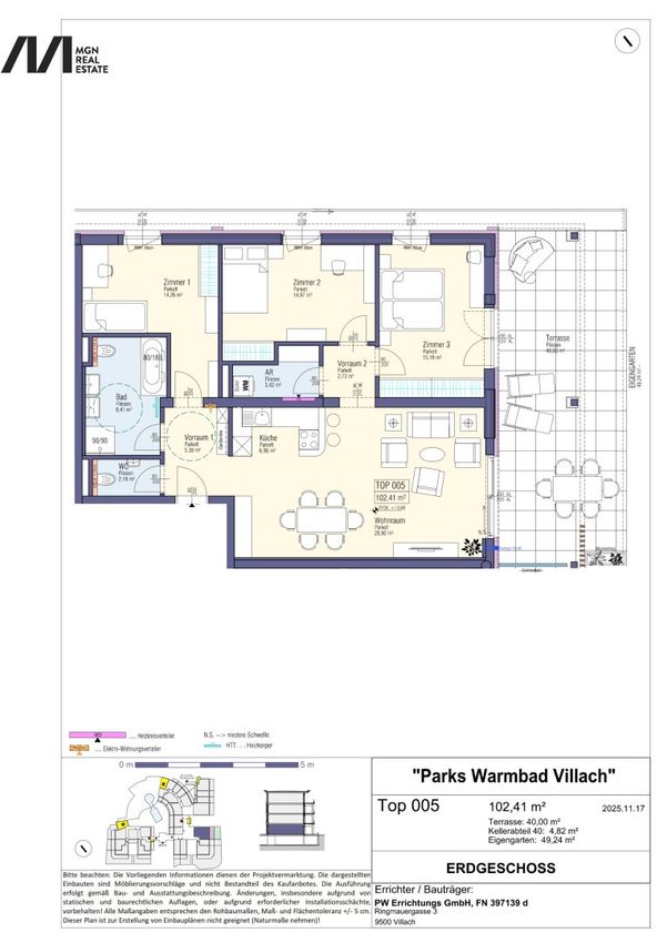
- Anzahl der Zimmer
- 4
- Anzahl der Badezimmer
- 1
- Anzahl der sep. WCs
- 2
- Anzahl der Terrassen
- 1
- Wohnfläche
- 102m²
- Nutzfläche
- 102m²
- Gartenfläche
- 49m²
- Kellerfläche
- 5m²
- Terrassenfläche
- 1m²
Kosten
- Kaufpreis Brutto
- € 638.000,00
Verwaltung
- Verfügbar ab
- 31.12.2027
Wohnungen zum Kaufen in Österreich
Wohnungen zum Kaufen in Österreich
Wohnungen zum Kaufen in Österreich
Andere Besucher suchen nach...
- Grundstücke kaufen in 3400 Weidlingbach
- Wohnungen kaufen in 4663 Laakirchen
- Häuser in 7471 Rechnitz
- Wohnungen in 2410 Hainburg an der Donau
- Häuser kaufen in 2432 Schwadorf
- Wohnungen kaufen in 3002 Purkersdorf
- Häuser in 3150 Wilhelmsburg
- Wohnungen kaufen in 3470 Engelmannsbrunn
- Grundstücke kaufen im Bezirk Mattersburg
- Grundstücke kaufen im Bezirk Gmunden