LETZTE GARTENWOHNUNG im Zentrum von Vöcklabruck - NEUBAU - bezugsfertig - optional auch mit Dachgarten
€ 396.748
€ 5.246 / m²
4840 Vöcklabruck
-
Erstbezug
-
ca. 2024
-
sofort
Beschreibung
LETZTE GARTENWOHNUNG im ZENTRUM - Optional auch mit Dachgarten PROVISIONSFREI und JETZT mit der neuen Verordnung zusätzlich GELD SPAREN. Unter bestimmten Voraussetzungen vom ENTFALL der GRUNDBUCHEINTRAGUNGSGEBÜHREN profitieren. Weitere Details gerne auf Anfrage oder im Informationsblatt. Der GRUNDRISS der provisonsfreien 3-Zimmer-Wohnung A02 befindet sich im Baukörper A und verfügt über einen ca. 93 m² großen Eigengarten. Die großzügige Familien-Wohnung bietet Ihnen super viel Platz und ein ansprechend geplantes Wohnzimmer mit Wohnküche und Kochinsel. ALLGEMEINES ZUM PROJEKT: In unmittelbarer Nähe zum Vöcklabrucker Stadtplatz wurden, in Massivbauweise, 41 hochwertige Eigentumswohnungen, errichtet. Die perfekt angelegte Wohnanlage besteht aus 3 Baukörpern inkl. darunter liegender, zweistöckiger...
LETZTE GARTENWOHNUNG im ZENTRUM - Optional auch mit Dachgarten
PROVISIONSFREI und JETZT mit der neuen Verordnung zusätzlich GELD SPAREN. Unter bestimmten Voraussetzungen vom ENTFALL der GRUNDBUCHEINTRAGUNGSGEBÜHREN profitieren. Weitere Details gerne auf Anfrage oder im Informationsblatt.
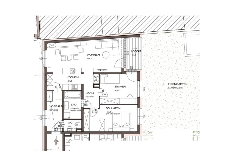
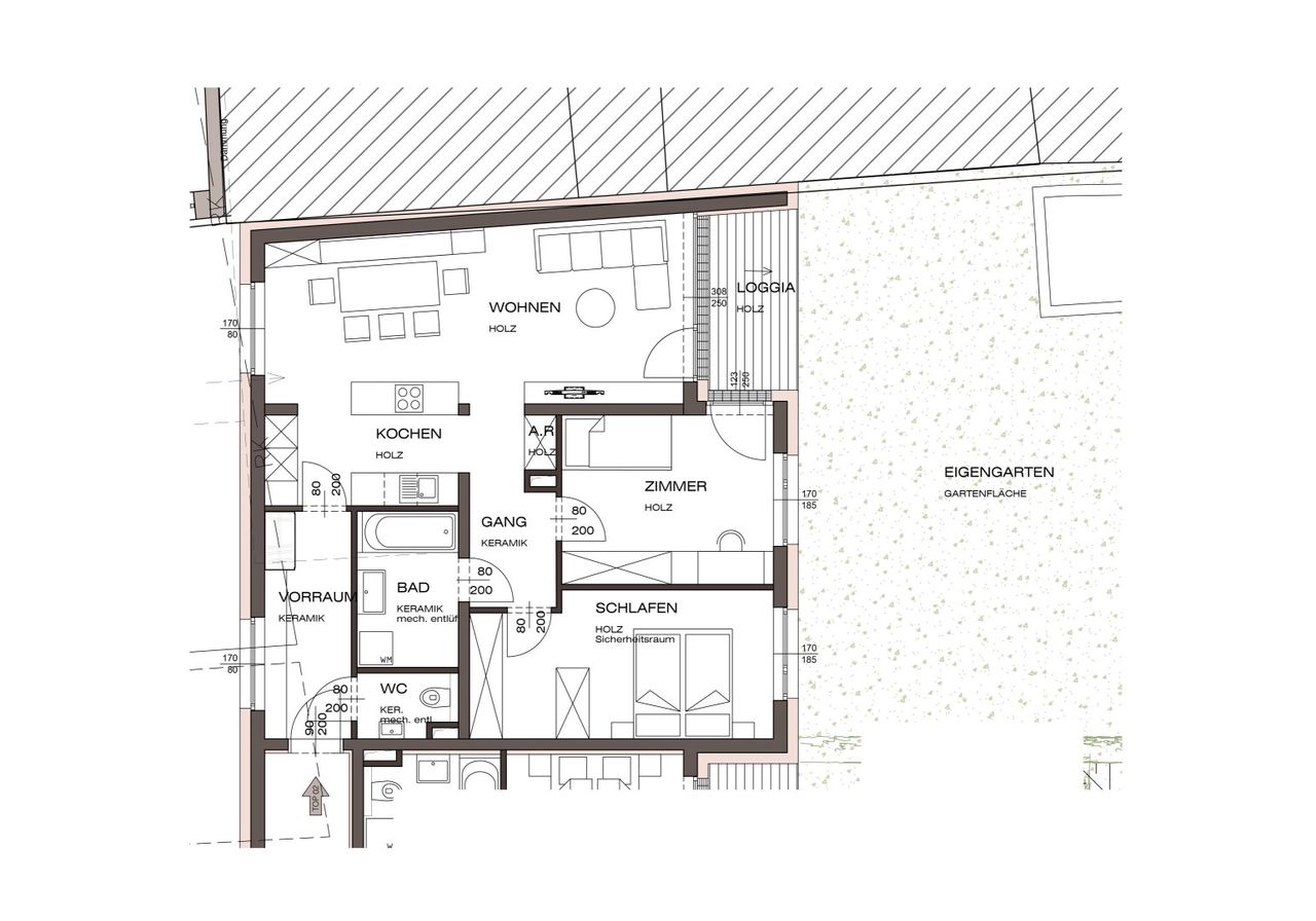
Der GRUNDRISS der provisonsfreien 3-Zimmer-Wohnung A02 befindet sich im Baukörper A und verfügt über einen ca. 93 m² großen Eigengarten. Die großzügige Familien-Wohnung bietet Ihnen super viel Platz und ein ansprechend geplantes Wohnzimmer mit Wohnküche und Kochinsel.
ALLGEMEINES ZUM PROJEKT:
In unmittelbarer Nähe zum Vöcklabrucker Stadtplatz wurden, in Massivbauweise, 41 hochwertige Eigentumswohnungen, errichtet. Die perfekt angelegte Wohnanlage besteht aus 3 Baukörpern inkl. darunter liegender, zweistöckiger Tiefgarage. Die Wohneinheiten sind in hochwertiger Qualität ausgeführt. Das betrifft sowohl die Architektur sowie die Innenausstattung.
Attraktive Architektur und eine barrierefreie Konzeption mit breiten Fluren und großzügigen Liftanlagen sorgen für ansprechenden Wohnkomfort in unmittelbarer Nähe zur historischen Altstadt.
Die wunderschönen 2-4 Zimmer-Eigentumswohnungen teilen sich auf in Wohnungen im Erdgeschoss mit Garten oder Terrasse/Loggia, in den Zwischengeschossen Wohnungen mit Loggien/Balkonen/Terrassen und im Dachgeschoss eindrucksvolle Wohnungen mit Aussicht und begrünter Dachterrasse!
Ein echtes Highlight der Anlage stellen die Penthouse-Wohnungen B34 und B38 dar, die neben geräumigen Loggien teilweise auch über begrünte Dachgärten und Dachterrassen verfügen. Ein herrlicher Ausblick über die Dächer von Vöcklabruck wird geboten!
Die LAGE der Immobilie bietet alle Annehmlichkeiten für urbanes Leben und eine optimale Erreichbarkeit des Naherholungsgebietes Traunsee bzw. Salzkammergut.
Die Wohnungen eignen sich, auf Grund der Lage und hochwertigen Bauweise, bestens für ENDVERBAUCHER und ANLEGER bzw. zur Altersvorsorge. Beim Kauf einer ANLEGER-Wohnung übernehmen wir die Vermarktung bzw. Vermittlung der ERSTVERMIETUNG kostenlos.
PROVISIONSFREI.
Der Tiefgaragenplatz ist zum Kaufpreis hinzuzurechnen.
Die Wohnungen sind bezugsfertig.
Bester Werterhalt dank hochwertiger Ausführung und zentraler Stadtlage.
OPTIONAL kann jeder Wohnung, solange verfügbar, ein herrlicher Dachgarten mit Dachterrasse zugeordnet werden!
Kosten Dachgarten Endverbraucher: EUR 68.000,00
Kosten Dachgarten Anleger: EUR 59.859,15 zzgl. 20 % USt.
Gerne übermitteln wir Ihnen die DETAILUNTERLAGEN mit allen verfügbaren Grundrissen, der Bau- und Ausstattungsbeschreibung und die Preisliste. Weitere Impressionen finden Sie auch gerne auf der Projektwebseite: https://www.voecklabruck-wohnung.at
FAKTEN:
zentrale Lage
ausgezeichnete Infrastruktur
2- bis 4-Zimmer
Wohnfläche ca. zw. 42 m² und 108 m²
Terrassen / Balkone / Loggien ca. zw. 10 m² - 56 m²
Gärten / Dachgärten ca. zw. 16 m² und 96 m²
Fußbodenheizung
Fernwärme
Lift
Tiefgarage
Kaufpreise Wohnungen ENDVERBRAUCHER ab EUR 185.000.-
Kaufpreise Wohnungen ANLEGER netto ab EUR 162.800.- zzgl. 20 % USt.
Kaufpreis Tiefgaragenplatz ENDVERBRAUCHER EUR 22.900.-
Kaufpreis Tiefgaragenplatz ANLEGER netto EUR 20.150.- zzgl. 20 % USt.
AUFTEILUNG Wohnung A02:
Vorraum
Gang
Wohnen / Essen
Schlafzimmer
Zimmer / Büro
Bad mit Badewanne
WC mit Waschbecken
Abstellniesche
Loggia
Eigengarten
Kellerabteil mit Steckdose
Tiefgaragenplatz optional gegen Aufpreis
ALLGEMEINE FLÄCHEN:
Waschküche / Trockenraum
Fahrradraum / Kinderwagenraum
LAGE - INFRASTRUKTUR:
Einwohneranzahl: ca. 12.500
Kindergarten: ca. 100 m
Volksschule: ca. 200 m
Gymnasium / Hort: ca. 100 m
Apotheke: ca. 250 m
Kinderarzt: ca. 100 m
Bipa: ca. 250 m
Nahversorger: ca. 500 m
Bank: ca. 250 m
Zentrum Stadtplatz: ca. 280 m
Freizeitpark Vöcklabruck: ca. 600 m
Bahnanschluss: ca. 800 m
VARENA Einkaufspark: ca. 1,2 km
Erholungsgebiet Salzkammergut: ca. 17 km
Autobahnanschluss: ca. 9 km
Mitten in Vöcklabruck und trotzdem ruhig gelegen. Dank Tiefgarage ohne Parkplatzsorgen, dafür mit einem vielseitigen kulinarischen Angebot in der näheren Umgebung. Der Stadtplatz ist in nur einer Minute zu erreichen – dort findet man unter anderem das Café Licht&i, das von morgens bis abends ein schönes zweites Wohnzimmer darstellt, das Lokal Brooklyn und viele mehr.
Auf Wunsch stellen wir gerne einen Kontakt zu einem renommiertem Finanzierungsexperten her.
Dieser findet anhand Ihrer Wunschimmobilie die optimale Bank mit der besten Finanzierung.
Alle m² Angaben sind ca. Angaben.
Kaufpreise zzgl. Kaufnebenkosten.
AKTUELLE IMMOBILIEN-EMPFEHLUNGEN: Neubauwohnungen für Endverbraucher und Anleger in Gmunden, Altmünster und Graz verfügbar. Chalets in Kitzbühel. Stadthaus mit Entwicklungspotenzial in Linz (VERKAUFT). 18 ha Landwirtschaft in Altmünster. Einmalige Seeliegenschaft am Attersee und Traunsee mit direktem Seezugang, Steg und Bootshaus. Weitere Off-Market Immobilien - Wohnbauprojekte, Hotels und Gewerbeimmobilien - verfügbar!
PROVISIONSFREI und JETZT mit der neuen Verordnung zusätzlich GELD SPAREN. Unter bestimmten Voraussetzungen vom ENTFALL der GRUNDBUCHEINTRAGUNGSGEBÜHREN profitieren. Weitere Details gerne auf Anfrage oder im Informationsblatt.
Der GRUNDRISS der provisonsfreien 3-Zimmer-Wohnung A02 befindet sich im Baukörper A und verfügt über einen ca. 93 m² großen Eigengarten. Die großzügige Familien-Wohnung bietet Ihnen super viel Platz und ein ansprechend geplantes Wohnzimmer mit Wohnküche und Kochinsel.
ALLGEMEINES ZUM PROJEKT:
In unmittelbarer Nähe zum Vöcklabrucker Stadtplatz wurden, in Massivbauweise, 41 hochwertige Eigentumswohnungen, errichtet. Die perfekt angelegte Wohnanlage besteht aus 3 Baukörpern inkl. darunter liegender, zweistöckiger Tiefgarage. Die Wohneinheiten sind in hochwertiger Qualität ausgeführt. Das betrifft sowohl die Architektur sowie die Innenausstattung.
Attraktive Architektur und eine barrierefreie Konzeption mit breiten Fluren und großzügigen Liftanlagen sorgen für ansprechenden Wohnkomfort in unmittelbarer Nähe zur historischen Altstadt.
Die wunderschönen 2-4 Zimmer-Eigentumswohnungen teilen sich auf in Wohnungen im Erdgeschoss mit Garten oder Terrasse/Loggia, in den Zwischengeschossen Wohnungen mit Loggien/Balkonen/Terrassen und im Dachgeschoss eindrucksvolle Wohnungen mit Aussicht und begrünter Dachterrasse!
Ein echtes Highlight der Anlage stellen die Penthouse-Wohnungen B34 und B38 dar, die neben geräumigen Loggien teilweise auch über begrünte Dachgärten und Dachterrassen verfügen. Ein herrlicher Ausblick über die Dächer von Vöcklabruck wird geboten!
Die LAGE der Immobilie bietet alle Annehmlichkeiten für urbanes Leben und eine optimale Erreichbarkeit des Naherholungsgebietes Traunsee bzw. Salzkammergut.
Die Wohnungen eignen sich, auf Grund der Lage und hochwertigen Bauweise, bestens für ENDVERBAUCHER und ANLEGER bzw. zur Altersvorsorge. Beim Kauf einer ANLEGER-Wohnung übernehmen wir die Vermarktung bzw. Vermittlung der ERSTVERMIETUNG kostenlos.
PROVISIONSFREI.
Der Tiefgaragenplatz ist zum Kaufpreis hinzuzurechnen.
Die Wohnungen sind bezugsfertig.
Bester Werterhalt dank hochwertiger Ausführung und zentraler Stadtlage.
OPTIONAL kann jeder Wohnung, solange verfügbar, ein herrlicher Dachgarten mit Dachterrasse zugeordnet werden!
Kosten Dachgarten Endverbraucher: EUR 68.000,00
Kosten Dachgarten Anleger: EUR 59.859,15 zzgl. 20 % USt.
Gerne übermitteln wir Ihnen die DETAILUNTERLAGEN mit allen verfügbaren Grundrissen, der Bau- und Ausstattungsbeschreibung und die Preisliste. Weitere Impressionen finden Sie auch gerne auf der Projektwebseite: https://www.voecklabruck-wohnung.at
FAKTEN:
zentrale Lage
ausgezeichnete Infrastruktur
2- bis 4-Zimmer
Wohnfläche ca. zw. 42 m² und 108 m²
Terrassen / Balkone / Loggien ca. zw. 10 m² - 56 m²
Gärten / Dachgärten ca. zw. 16 m² und 96 m²
Fußbodenheizung
Fernwärme
Lift
Tiefgarage
Kaufpreise Wohnungen ENDVERBRAUCHER ab EUR 185.000.-
Kaufpreise Wohnungen ANLEGER netto ab EUR 162.800.- zzgl. 20 % USt.
Kaufpreis Tiefgaragenplatz ENDVERBRAUCHER EUR 22.900.-
Kaufpreis Tiefgaragenplatz ANLEGER netto EUR 20.150.- zzgl. 20 % USt.
AUFTEILUNG Wohnung A02:
Vorraum
Gang
Wohnen / Essen
Schlafzimmer
Zimmer / Büro
Bad mit Badewanne
WC mit Waschbecken
Abstellniesche
Loggia
Eigengarten
Kellerabteil mit Steckdose
Tiefgaragenplatz optional gegen Aufpreis
ALLGEMEINE FLÄCHEN:
Waschküche / Trockenraum
Fahrradraum / Kinderwagenraum
LAGE - INFRASTRUKTUR:
Einwohneranzahl: ca. 12.500
Kindergarten: ca. 100 m
Volksschule: ca. 200 m
Gymnasium / Hort: ca. 100 m
Apotheke: ca. 250 m
Kinderarzt: ca. 100 m
Bipa: ca. 250 m
Nahversorger: ca. 500 m
Bank: ca. 250 m
Zentrum Stadtplatz: ca. 280 m
Freizeitpark Vöcklabruck: ca. 600 m
Bahnanschluss: ca. 800 m
VARENA Einkaufspark: ca. 1,2 km
Erholungsgebiet Salzkammergut: ca. 17 km
Autobahnanschluss: ca. 9 km
Mitten in Vöcklabruck und trotzdem ruhig gelegen. Dank Tiefgarage ohne Parkplatzsorgen, dafür mit einem vielseitigen kulinarischen Angebot in der näheren Umgebung. Der Stadtplatz ist in nur einer Minute zu erreichen – dort findet man unter anderem das Café Licht&i, das von morgens bis abends ein schönes zweites Wohnzimmer darstellt, das Lokal Brooklyn und viele mehr.
Auf Wunsch stellen wir gerne einen Kontakt zu einem renommiertem Finanzierungsexperten her.
Dieser findet anhand Ihrer Wunschimmobilie die optimale Bank mit der besten Finanzierung.
Alle m² Angaben sind ca. Angaben.
Kaufpreise zzgl. Kaufnebenkosten.
AKTUELLE IMMOBILIEN-EMPFEHLUNGEN: Neubauwohnungen für Endverbraucher und Anleger in Gmunden, Altmünster und Graz verfügbar. Chalets in Kitzbühel. Stadthaus mit Entwicklungspotenzial in Linz (VERKAUFT). 18 ha Landwirtschaft in Altmünster. Einmalige Seeliegenschaft am Attersee und Traunsee mit direktem Seezugang, Steg und Bootshaus. Weitere Off-Market Immobilien - Wohnbauprojekte, Hotels und Gewerbeimmobilien - verfügbar!
| Angaben gemäß gesetzlichem Erfordernis: | |||
| Heizwärmebedarf: | 33.0 kWh/(m²a) | ||
| Klasse Heizwärmebedarf: | B | ||
| Faktor Gesamtenergieeffizienz: | 0.74 | ||
| Klasse Faktor Gesamtenergieeffizienz: | A | ||
Objektdaten
Ausstattung
- Unterkellert
- Zentralheizung
- Fern Befeuerung
- Personen Fahrstuhl
- Stadtzentrum
- Zentralheizung mit Fernwärme
Dokumente / Links
- Grundriss A02
- INFOBLATT Entfall Grundbucheintragungsgebühren
- Projektwebseite
- Video-Impressionen zum Projekt
Zustand
- Zustand
- ERSTBEZUG
- Baujahr
- ca. 2024
Flächen
- Anzahl der Zimmer
- 3
- Anzahl der Badezimmer
- 1
- Anzahl der sep. WCs
- 1
- Stellplätze
- 1
- Wohnfläche
- 76m²
- Gartenfläche
- 93m²
Kosten
- Kaufpreis
- € 396.748,28
Verwaltung
- Verfügbar ab
- sofort
Wohnungen zum Kaufen im Umkreis von Vöcklabruck
Wohnungen zum Kaufen im Umkreis von Vöcklabruck
Wohnungen zum Kaufen in Österreich
Andere Besucher suchen nach...
- Grundstücke kaufen in 3400 Weidlingbach
- Wohnungen kaufen in 4663 Laakirchen
- Häuser in 7471 Rechnitz
- Wohnungen in 2410 Hainburg an der Donau
- Häuser kaufen in 2432 Schwadorf
- Wohnungen kaufen in 3002 Purkersdorf
- Häuser in 3150 Wilhelmsburg
- Wohnungen kaufen in 3470 Engelmannsbrunn
- Grundstücke kaufen im Bezirk Mattersburg
- Grundstücke kaufen im Bezirk Gmunden