Helle 3-Zimmer-Eigentumswohnung in beliebter Wohngegend von Vöcklabruck
-
sofort
Beschreibung
In ruhiger und dennoch sehr zentraler Lage von Vöcklabruck befindet sich diese gepflegte und gut geschnittene 3-Zimmer-Eigentumswohnung mit einer Wohnfläche von ca. 74 m². Die Wohnung liegt in einem Mehrparteienhaus in der Tegetthoffstraße und bietet nicht nur ein angenehmes Wohnklima, sondern auch eine sehr gute Infrastruktur und ausgezeichnete Anbindung an das Stadtzentrum.
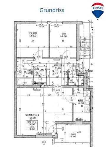
Bereits beim Betreten der Wohnung vermittelt der praktische Grundriss ein Gefühl von Großzügigkeit und Behaglichkeit. Das Herzstück der Wohnung bildet der helle und freundlich gestaltete Wohn- und Essbereich, der ausreichend Platz für gesellige Stunden mit Familie und Freunden bietet. Von hier aus gelangen Sie direkt auf die gemütliche...
In ruhiger und dennoch sehr zentraler Lage von Vöcklabruck befindet sich diese gepflegte und gut geschnittene 3-Zimmer-Eigentumswohnung mit einer Wohnfläche von ca. 74 m². Die Wohnung liegt in einem Mehrparteienhaus in der Tegetthoffstraße und bietet nicht nur ein angenehmes Wohnklima, sondern auch eine sehr gute Infrastruktur und ausgezeichnete Anbindung an das Stadtzentrum.
Bereits beim Betreten der Wohnung vermittelt der praktische Grundriss ein Gefühl von Großzügigkeit und Behaglichkeit. Das Herzstück der Wohnung bildet der helle und freundlich gestaltete Wohn- und Essbereich, der ausreichend Platz für gesellige Stunden mit Familie und Freunden bietet. Von hier aus gelangen Sie direkt auf die gemütliche Loggia mit rund 7 m² – ein Außenbereich, der sich ideal zum Entspannen bei Sonnenschein oder einem Kaffee am Nachmittag eignet.
Die separate Küche ist funktional ausgestattet und bietet genügend Stauraum für den täglichen Bedarf. Auch das Badezimmer ist in gepflegtem Zustand und verfügt über eine Badewanne. Das WC ist separat angeordnet. Zwei zusätzliche Zimmer lassen sich flexibel als Schlaf-, Kinder- oder Arbeitszimmer nutzen und bieten ausreichend Platz für individuelle Gestaltungsmöglichkeiten.
Ein eigener Abstellraum innerhalb der Wohnung sorgt für Ordnung und Stauraum. Besonders attraktiv ist auch der zur Wohnung gehörende Tiefgaragenstellplatz mit ca. 13 m², der Ihnen das lästige Parkplatzsuchen erspart und Ihr Fahrzeug sicher und geschützt unterbringt.
Die Wohnung befindet sich in einem gepflegten Gesamtzustand und kann jederzeit bezogen werden. Ob als neues Zuhause für Singles, Paare oder kleine Familien – oder auch als attraktive Anlageimmobilie: Diese Wohnung bietet zahlreiche Nutzungsmöglichkeiten.
Die Umgebung punktet mit kurzen Wegen zu Einkaufsmöglichkeiten, Schulen, Kindergärten, Ärzten sowie zum Bahnhof. Gleichzeitig lädt die grüne Umgebung zu Spaziergängen und sportlichen Aktivitäten ein – die ideale Kombination aus Stadtnähe und naturnahem Wohnen.
Wenn Sie auf der Suche nach einer ruhigen, gut geschnittenen Wohnung in einer beliebten Lage von Vöcklabruck sind, sollten Sie sich dieses Angebot nicht entgehen lassen. Vereinbaren Sie gerne einen Besichtigungstermin und überzeugen Sie sich selbst vom Wohnwert dieser Immobilie.
Der Vermittler ist als Doppelmakler tätig.
Infrastruktur / Entfernungen
Gesundheit
Arzt <500m
Apotheke <500m
Krankenhaus <1.000m
Kinder & Schulen
Schule <500m
Kindergarten <500m
Höhere Schule <500m
Nahversorgung
Supermarkt <500m
Bäckerei <500m
Einkaufszentrum <2.000m
Sonstige
Bank <500m
Geldautomat <1.000m
Polizei <1.000m
Post <2.000m
Verkehr
Bus <500m
Bahnhof <2.000m
Autobahnanschluss <5.000m
Angaben Entfernung Luftlinie / Quelle: OpenStreetMap
Objektdaten
Ausstattung
- Bad mit Badewanne
- Personen Fahrstuhl
Dokumente / Links
Zustand
- HWB
- 76 kWh/m² pro Jahr
- Klasse HWB
- C
- fGEE
- 1.44
- Klasse fGEE
- C
Flächen
- Anzahl der Zimmer
- 3
- Anzahl der Badezimmer
- 1
- Anzahl der sep. WCs
- 1
- Anzahl der Logia
- 1
- Wohnfläche
- 74m²
Kosten
- Kaufpreis Brutto
- € 255.000,00
Verwaltung
- Verfügbar ab
- sofort
Wohnungen zum Kaufen im Umkreis von Vöcklabruck
Wohnungen zum Kaufen im Umkreis von Vöcklabruck
Wohnungen zum Kaufen in Österreich
Andere Besucher suchen nach...
- Grundstücke kaufen in 3400 Weidlingbach
- Wohnungen kaufen in 4663 Laakirchen
- Häuser in 7471 Rechnitz
- Wohnungen in 2410 Hainburg an der Donau
- Häuser kaufen in 2432 Schwadorf
- Wohnungen kaufen in 3002 Purkersdorf
- Häuser in 3150 Wilhelmsburg
- Wohnungen kaufen in 3470 Engelmannsbrunn
- Grundstücke kaufen im Bezirk Mattersburg
- Grundstücke kaufen im Bezirk Gmunden