Sanierungsbedürftige Eigentumswohnung in Thomasroith!
€ 59.000
€ 871 / m²
4901 Ottnang
-
ab sofort
Beschreibung
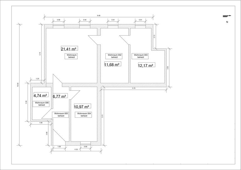
Die Wohnung verfügt über vier Zimmer, einen Vorraum sowie ein Badezimmer. Besonders praktisch ist der separate Außenaufgang, der einen eigenständigen Zugang ermöglicht und für zusätzliche Privatsphäre sorgt. Die Liegenschaft wird in Eigenverwaltung geführt, wodurch sich die laufenden Betriebskosten sehr niedrig halten. Für Wärme sorgt ein Anschluss an die örtliche Fernwärmeversorgung. Ein eigener Parkplatz direkt bei der Wohnanlage ist im Eigentum enthalten und rundet das Angebot ab. Die Wohnung befindet sich in einem sanierungsbedürftigen Zustand, was künftigen Eigentümerinnen und Eigentümern die Möglichkeit gibt, das Objekt ganz nach den eigenen Vorstellungen zu renovieren und zu gestalten. Die ruhige Lage, die praktische Raumaufteilung...
Die Wohnung verfügt über vier Zimmer, einen Vorraum sowie ein Badezimmer. Besonders praktisch ist der separate Außenaufgang, der einen eigenständigen Zugang ermöglicht und für zusätzliche Privatsphäre sorgt.
Die Liegenschaft wird in Eigenverwaltung geführt, wodurch sich die laufenden Betriebskosten sehr niedrig halten. Für Wärme sorgt ein Anschluss an die örtliche Fernwärmeversorgung. Ein eigener Parkplatz direkt bei der Wohnanlage ist im Eigentum enthalten und rundet das Angebot ab.
Die Wohnung befindet sich in einem sanierungsbedürftigen Zustand, was künftigen Eigentümerinnen und Eigentümern die Möglichkeit gibt, das Objekt ganz nach den eigenen Vorstellungen zu renovieren und zu gestalten.
Die ruhige Lage, die praktische Raumaufteilung und die solide Grundstruktur machen diese Wohnung zu einer attraktiven Option für alle, die ein leistbares Eigenheim suchen.
Sichern Sie sich gleich Ihren persönlichen Besichtigungstermin! Gerne senden wir Ihnen vorab ein kostenloses Detailangebot mit weiteren Informationen unverbindlich zu!
Wir bitten um Verständnis, dass wir aufgrund der Nachweispflicht nur Anfragen mit vollständiger Angabe Ihrer Daten (Name, Postanschrift, Telefonnummer und E-Mail- Adresse) bearbeiten können!
Für weitere Fragen und Terminvereinbarungen steht Ihnen Frau Gorica Nikolic unter der Mobilnummer +43 660 7031332 gerne zur Verfügung.
Weitere interessante Angebote finden Sie auf www.signitas.at
Die Liegenschaft wird in Eigenverwaltung geführt, wodurch sich die laufenden Betriebskosten sehr niedrig halten. Für Wärme sorgt ein Anschluss an die örtliche Fernwärmeversorgung. Ein eigener Parkplatz direkt bei der Wohnanlage ist im Eigentum enthalten und rundet das Angebot ab.
Die Wohnung befindet sich in einem sanierungsbedürftigen Zustand, was künftigen Eigentümerinnen und Eigentümern die Möglichkeit gibt, das Objekt ganz nach den eigenen Vorstellungen zu renovieren und zu gestalten.
Die ruhige Lage, die praktische Raumaufteilung und die solide Grundstruktur machen diese Wohnung zu einer attraktiven Option für alle, die ein leistbares Eigenheim suchen.
Sichern Sie sich gleich Ihren persönlichen Besichtigungstermin! Gerne senden wir Ihnen vorab ein kostenloses Detailangebot mit weiteren Informationen unverbindlich zu!
Wir bitten um Verständnis, dass wir aufgrund der Nachweispflicht nur Anfragen mit vollständiger Angabe Ihrer Daten (Name, Postanschrift, Telefonnummer und E-Mail- Adresse) bearbeiten können!
Für weitere Fragen und Terminvereinbarungen steht Ihnen Frau Gorica Nikolic unter der Mobilnummer +43 660 7031332 gerne zur Verfügung.
Weitere interessante Angebote finden Sie auf www.signitas.at
Objektdaten
Ausstattung
- Zentralheizung
- Fern Befeuerung
Zustand
- Baujahr
- 1900
- HWB
- 167.30 kWh/m² pro Jahr
- Klasse HWB
- E
- fGEE
- 1.96
- Klasse fGEE
- D
Flächen
- Anzahl der Zimmer
- 4
- Anzahl der Badezimmer
- 1
- Anzahl der sep. WCs
- 1
- Stellplätze
- 1
- Wohnfläche
- 68m²
Kosten
- Kaufpreis
- € 59.000,00
Verwaltung
- Verfügbar ab
- ab sofort
Wohnungen zum Kaufen im Umkreis von Ottnang am Hausruck
Wohnungen zum Kaufen im Umkreis von Ottnang am Hausruck
Wohnungen zum Kaufen in Österreich
Andere Besucher suchen nach...
- Grundstücke kaufen in 3400 Weidlingbach
- Wohnungen kaufen in 4663 Laakirchen
- Häuser in 7471 Rechnitz
- Wohnungen in 2410 Hainburg an der Donau
- Häuser kaufen in 2432 Schwadorf
- Wohnungen kaufen in 3002 Purkersdorf
- Häuser in 3150 Wilhelmsburg
- Wohnungen kaufen in 3470 Engelmannsbrunn
- Grundstücke kaufen im Bezirk Mattersburg
- Grundstücke kaufen im Bezirk Gmunden