Wohnung zur Kernsanierung. - Vielfältiges Potential zentral in Köflach. - Hauptplatz und Bahnhof fußläufig.
Beschreibung
Diese Wohnung mit umfassenden Sanierungspotential befindet sich in zentraler Lage in Köflach. Die Wohnung befindet sich im 1. OG und inkludiert den Dachboden. Hier bietet sich die Möglichkeit zur Gestaltung nach eigenen Vorstellungen, die Bausubstanz in Massiv-Bauweise bildet hierfür die Basis.
Das Besondere an diesem Objekt:
- Zentrale Wohnlage mit Infrastruktur fußläufig.
- Bestand mit großem Potential zum kleinen Preis.
- Rohdachboden inklusive.
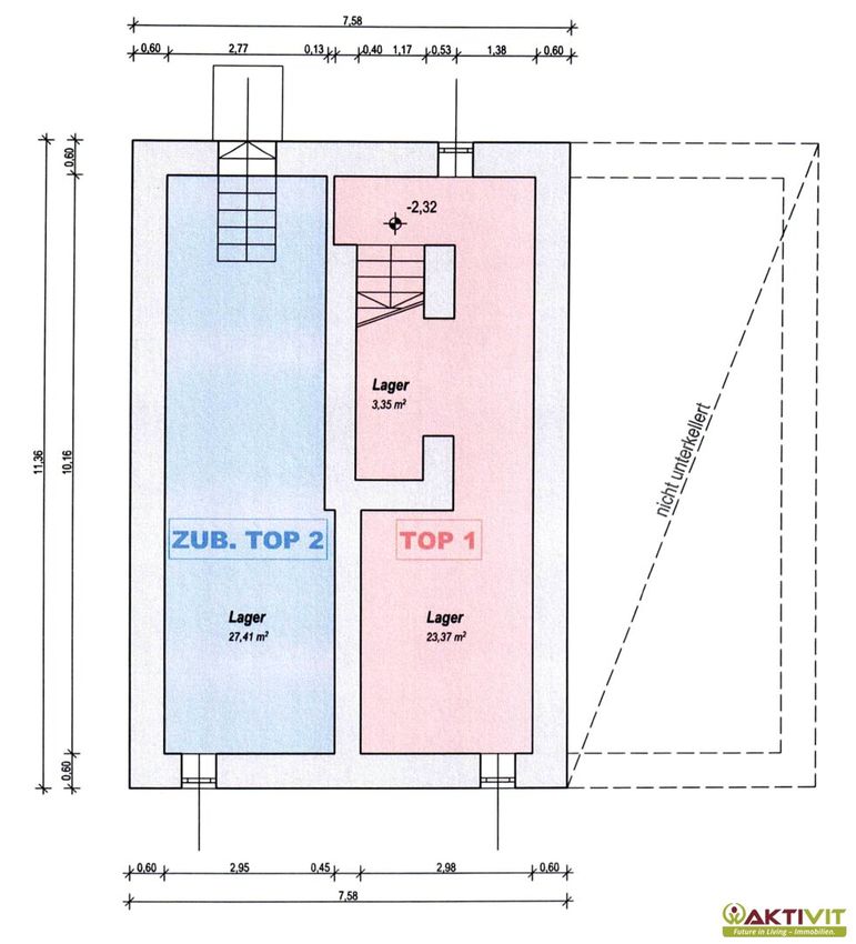
- Kelleranteil mit weiterem Stauraum.
DIE WOHNUNG.
Die Wohnung im 1. OG verfügt über rund 107 m² Nutzfläche. Hinzu kommen die Flächen des Rohdachbodens * und des Kellers. Aktuell ist die Wohnung in 3,5 Räume unterteilt,...
Diese Wohnung mit umfassenden Sanierungspotential befindet sich in zentraler Lage in Köflach.
Die Wohnung befindet sich im 1. OG und inkludiert den Dachboden. Hier bietet sich die Möglichkeit zur Gestaltung nach eigenen Vorstellungen, die Bausubstanz in Massiv-Bauweise bildet hierfür die Basis.
Das Besondere an diesem Objekt:
- Zentrale Wohnlage mit Infrastruktur fußläufig.
- Bestand mit großem Potential zum kleinen Preis.
- Rohdachboden inklusive.
- Kelleranteil mit weiterem Stauraum.
DIE WOHNUNG.
Die Wohnung im 1. OG verfügt über rund 107 m² Nutzfläche. Hinzu kommen die Flächen des Rohdachbodens * und des Kellers.
Aktuell ist die Wohnung in 3,5 Räume unterteilt, wobei eine neue Raumteilung im Rahmen einer Kernsanierung gut vorstellbar ist.
Die Wohnung ist durch einen eigenen Eingang direkt von außen zugänglich.
In dem Haus befindet sich lediglich eine weitere Wohneinheit.
DIE BAULICHKEIT UND AUSSTATTUNG.
Das Haus wurde in Massiv-Bauweise errichtet und bietet eine solide Substanz für eine umfassende Sanierung.
Das genaue Baujahr des Hauses wird noch erhoben, der Bestand ist jedoch über 100 Jahre alt und somit als Altbau einzustufen.
Derzeit ist im Obergeschoß keine Heizung installiert. Die Böden sind mit Holzdielen ausgeführt.
Zur Beantwortung weiterer Fragen sowie für Besichtigungstermine stehe ich Ihnen gerne täglich - auch am Wochenende - von 08:00 bis 22:00 Uhr zur Verfügung.
Ich freue mich über Ihre Kontaktaufnahme,
Wilhelm Rossmair
+43 664 54 24 481
w.rossmair@aktivit.org
Hinweis gemäß Energieausweisvorlagegesetz: Ein Energieausweis wurde vom Eigentümer bzw. Verkäufer, nach unserer Aufklärung über die generell geltende Vorlagepflicht, sowie Aufforderung zu seiner Erstellung noch nicht vorgelegt. Daher gilt zumindest eine dem Alter und der Art des Gebäudes entsprechende Gesamtenergieeffizienz als vereinbart. Wir übernehmen keinerlei Gewähr oder Haftung für die tatsächliche Energieeffizienz der angebotenen Immobilie.
Der Vermittler ist als Doppelmakler tätig.
Erteilen Sie uns ihren Suchauftrag und profitieren Sie von vielen Vorteilen und exklusiven Angeboten!
Ganz einfach und kostenlos unter: Jetzt Suchauftrag eingeben.
Infrastruktur / Entfernungen
Gesundheit
Arzt <500m
Apotheke <500m
Klinik <2.500m
Krankenhaus <4.500m
Kinder & Schulen
Schule <500m
Kindergarten <500m
Nahversorgung
Supermarkt <500m
Bäckerei <500m
Einkaufszentrum <3.500m
Sonstige
Geldautomat <500m
Bank <500m
Post <1.000m
Polizei <500m
Verkehr
Bus <500m
Bahnhof <500m
Angaben Entfernung Luftlinie / Quelle: OpenStreetMap
Objektdaten
Ausstattung
- Parkettboden
- Satteldach
- Massiv Bauweise
Zustand
- Zustand
- BAUFAELLIG
Flächen
- Anzahl der Zimmer
- 3
- Wohnfläche
- 108m²
- Nutzfläche
- 108m²
- Gesamtfläche
- 108m²
- Kellerfläche
- 27m²
Kosten
- Kaufpreis Brutto
- € 50.000,00
Wohnungen zum Kaufen im Umkreis von Köflach
Wohnungen zum Kaufen im Umkreis von Köflach
Wohnungen zum Kaufen in Österreich
Andere Besucher suchen nach...
- Grundstücke kaufen in 3400 Weidlingbach
- Wohnungen kaufen in 4663 Laakirchen
- Häuser in 7471 Rechnitz
- Wohnungen in 2410 Hainburg an der Donau
- Häuser kaufen in 2432 Schwadorf
- Wohnungen kaufen in 3002 Purkersdorf
- Häuser in 3150 Wilhelmsburg
- Wohnungen kaufen in 3470 Engelmannsbrunn
- Grundstücke kaufen im Bezirk Mattersburg
- Grundstücke kaufen im Bezirk Gmunden