EXKLUSIVES WOHNEN IM HERZEN DER INNENSTADT
€ 3.500.000
€ 17.554 / m²
1010 Wien
-
sofort
Beschreibung
EXKLUSIVES WOHNEN IM HERZEN DER INNENSTADT Stilvolle Altbauwohnung mit kleinem Balkon – komplett saniert In einem prachtvollen Wiener Gründerzeithaus in Bestlage der Inneren Stadt präsentiert sich diese außergewöhnliche Altbauwohnung als seltene Symbiose aus historischer Eleganz und zeitgemäßem Wohnkomfort. Die Liegenschaft überzeugt durch ihre ruhige, zugleich urbane Lage unweit von Schottenring, Freyung und dem Servitenviertel. Die Wohnung befindet sich im 3. Liftstock und wurde umfassend und hochwertig saniert. Klassische Altbaumerkmale wie großzügige Raumhöhen, elegante Flügeltüren, Fischgrätparkett und fein ausgearbeitete Stuckelemente treffen auf moderne Technik, maßgefertigte Einbauten und ein durchdachtes Lichtkonzept. WOHNEN AUF HÖCHSTEM NIVEAU – DER GRUNDRISS Mit einer Nutzfläche von...
EXKLUSIVES WOHNEN IM HERZEN DER INNENSTADT
Stilvolle Altbauwohnung mit kleinem Balkon – komplett saniert
In einem prachtvollen Wiener Gründerzeithaus in Bestlage der Inneren Stadt präsentiert sich diese außergewöhnliche Altbauwohnung als seltene Symbiose aus historischer Eleganz und zeitgemäßem Wohnkomfort. Die Liegenschaft überzeugt durch ihre ruhige, zugleich urbane Lage unweit von Schottenring, Freyung und dem Servitenviertel.
Die Wohnung befindet sich im 3. Liftstock und wurde umfassend und hochwertig saniert. Klassische Altbaumerkmale wie großzügige Raumhöhen, elegante Flügeltüren, Fischgrätparkett und fein ausgearbeitete Stuckelemente treffen auf moderne Technik, maßgefertigte Einbauten und ein durchdachtes Lichtkonzept.
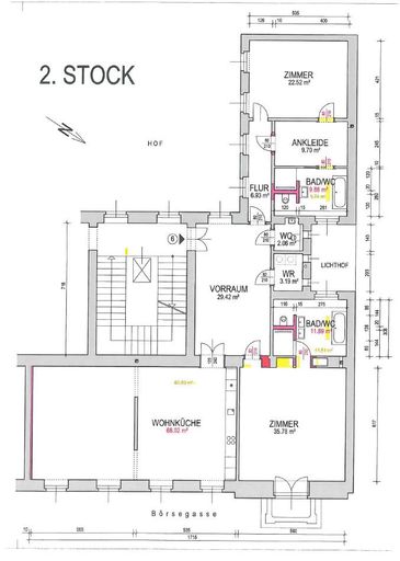
WOHNEN AUF HÖCHSTEM NIVEAU – DER GRUNDRISS
Mit einer Nutzfläche von ca. 199 m² bietet die Wohnung ein beeindruckendes Raumangebot und eine klare, repräsentative Struktur:
Zentrale Wohnküche – ca. 68 m²
Herzstück der Wohnung ist die außergewöhnlich großzügige Wohnküche mit mehreren straßenseitigen Fenstern.
Sie vereint Kochen, Essen und Wohnen auf elegante Weise und eignet sich ideal für gesellschaftliche Anlässe wie auch für den stilvollen Alltag.
Die maßgefertigte Designküche mit Kochinsel ist hochwertig ausgestattet und fügt sich architektonisch harmonisch in den Raum ein. Der offene Grundriss erlaubt dennoch eine klare Zonierung von Wohn- und Essbereich.
Der Balkon erweitert den Wohnraum ins Freie und bietet einen seltenen Rückzugsort mitten in der Stadt.
Repräsentativer Vorraum – ca. 29 m²
Der weitläufige Vorraum bildet eine elegante Empfangssituation und erschließt die Wohnung zentral. Von hier aus sind sämtliche Hauptbereiche separat begehbar – ein klassisches Altbau-Layout mit moderner Funktionalität.
Private Rückzugsbereiche
Zimmer 1: ca. 35,8 m² – ideal als Master Bedroom oder repräsentativer Salon
Zimmer 2: ca. 22,5 m² – perfekt als weiteres Schlafzimmer, Arbeits- oder Gästezimmer
Ankleide: ca. 9,7 m², direkt einem Schlafzimmer zugeordnet, massives Zedernholz
Bäder & Nebenräume
2 hochwertige Bäder mit moderner Ausstattung
Separates WC
Abstell- / Wirtschaftsraum
Sinnvoll proportionierte Flurflächen
AUSSTATTUNG & QUALITÄT
Edler Fischgrätparkett in allen Wohnräumen
Originale bzw. stilgetreu erneuerte Altbaudetails
Indirekte Beleuchtung und stimmungsvolle Lichtführung
Moderne Haustechnik (Fernwärme) - Fußbodenheizung und Klimaanlage
Maßanfertigungen & hochwertige Materialien
Lift im Haus
Balkon in Innenstadtlage
FAZIT
Die Kombination aus komplett sanierter Altbauwohnung, großzügigem Grundriss und Balkon in Bestlage macht dieses Objekt zu einer absoluten Seltenheit im 1. Bezirk.
Stilvolle Altbauwohnung mit kleinem Balkon – komplett saniert
In einem prachtvollen Wiener Gründerzeithaus in Bestlage der Inneren Stadt präsentiert sich diese außergewöhnliche Altbauwohnung als seltene Symbiose aus historischer Eleganz und zeitgemäßem Wohnkomfort. Die Liegenschaft überzeugt durch ihre ruhige, zugleich urbane Lage unweit von Schottenring, Freyung und dem Servitenviertel.
Die Wohnung befindet sich im 3. Liftstock und wurde umfassend und hochwertig saniert. Klassische Altbaumerkmale wie großzügige Raumhöhen, elegante Flügeltüren, Fischgrätparkett und fein ausgearbeitete Stuckelemente treffen auf moderne Technik, maßgefertigte Einbauten und ein durchdachtes Lichtkonzept.
WOHNEN AUF HÖCHSTEM NIVEAU – DER GRUNDRISS
Mit einer Nutzfläche von ca. 199 m² bietet die Wohnung ein beeindruckendes Raumangebot und eine klare, repräsentative Struktur:
Zentrale Wohnküche – ca. 68 m²
Herzstück der Wohnung ist die außergewöhnlich großzügige Wohnküche mit mehreren straßenseitigen Fenstern.
Sie vereint Kochen, Essen und Wohnen auf elegante Weise und eignet sich ideal für gesellschaftliche Anlässe wie auch für den stilvollen Alltag.
Die maßgefertigte Designküche mit Kochinsel ist hochwertig ausgestattet und fügt sich architektonisch harmonisch in den Raum ein. Der offene Grundriss erlaubt dennoch eine klare Zonierung von Wohn- und Essbereich.
Der Balkon erweitert den Wohnraum ins Freie und bietet einen seltenen Rückzugsort mitten in der Stadt.
Repräsentativer Vorraum – ca. 29 m²
Der weitläufige Vorraum bildet eine elegante Empfangssituation und erschließt die Wohnung zentral. Von hier aus sind sämtliche Hauptbereiche separat begehbar – ein klassisches Altbau-Layout mit moderner Funktionalität.
Private Rückzugsbereiche
Zimmer 1: ca. 35,8 m² – ideal als Master Bedroom oder repräsentativer Salon
Zimmer 2: ca. 22,5 m² – perfekt als weiteres Schlafzimmer, Arbeits- oder Gästezimmer
Ankleide: ca. 9,7 m², direkt einem Schlafzimmer zugeordnet, massives Zedernholz
Bäder & Nebenräume
2 hochwertige Bäder mit moderner Ausstattung
Separates WC
Abstell- / Wirtschaftsraum
Sinnvoll proportionierte Flurflächen
AUSSTATTUNG & QUALITÄT
Edler Fischgrätparkett in allen Wohnräumen
Originale bzw. stilgetreu erneuerte Altbaudetails
Indirekte Beleuchtung und stimmungsvolle Lichtführung
Moderne Haustechnik (Fernwärme) - Fußbodenheizung und Klimaanlage
Maßanfertigungen & hochwertige Materialien
Lift im Haus
Balkon in Innenstadtlage
FAZIT
Die Kombination aus komplett sanierter Altbauwohnung, großzügigem Grundriss und Balkon in Bestlage macht dieses Objekt zu einer absoluten Seltenheit im 1. Bezirk.
Objektdaten
Ausstattung
- Teilmöbliert
- Fußbodenheizung
- Fußbodenheizung
- Teilmöbliert
Dokumente / Links
Zustand
- Zustand
- GEPFLEGT
Flächen
- Anzahl der Balkone
- 1
- Wohnfläche
- 199m²
Kosten
- Kaufpreis
- € 3.500.000,00
Verwaltung
- Verfügbar ab
- sofort
Wohnungen zum Kaufen in Österreich
Wohnungen zum Kaufen in Österreich
Wohnungen zum Kaufen in Österreich
Andere Besucher suchen nach...
- Grundstücke kaufen in 3400 Weidlingbach
- Wohnungen kaufen in 4663 Laakirchen
- Häuser in 7471 Rechnitz
- Wohnungen in 2410 Hainburg an der Donau
- Häuser kaufen in 2432 Schwadorf
- Wohnungen kaufen in 3002 Purkersdorf
- Häuser in 3150 Wilhelmsburg
- Wohnungen kaufen in 3470 Engelmannsbrunn
- Grundstücke kaufen im Bezirk Mattersburg
- Grundstücke kaufen im Bezirk Gmunden