Luftige Freiheit - Eine tolle Wohnung mit 2 Balkone und Weitblick in der City
€ 995.000
€ 11.706 / m²
1010 Wien, Innere Stadt
-
Erstbezug
-
sofort
Beschreibung
Luftige Freiheit - Eine ganz tolle Wohnung mit 2 Balkone und Weitblick in der City. Diese herrliche Terrassenwohnung befindet sich in einem sehr angenehmen Neubau in der Nähe des Laurenzerberg und bietet eine moderne, sehr exklusive und innovative Ausstattung. Enthalten sind unter anderem eine komplette, sehr hochwertige Möblierung aller Zimmer, eine neuwertige Einbauküche mit allen Geräten, ein sehr schickes Badezimmer mit Wanne und Dusche und einiges mehr. Das großzügige Raumkonzept ermöglicht ein herrliches, unkompliziertes Wohnen in der Stadt. Die ruhige Lage ist attraktiv für Käufer/Innen die in der Stadt leben möchten und die Natur direkt vor der Haustüre genießen möchten....
Luftige Freiheit - Eine ganz tolle Wohnung mit 2 Balkone und Weitblick in der City.
Diese herrliche Terrassenwohnung befindet sich in einem sehr angenehmen Neubau in der Nähe des Laurenzerberg und bietet eine moderne, sehr exklusive und innovative Ausstattung. Enthalten sind unter anderem eine komplette, sehr hochwertige Möblierung aller Zimmer, eine neuwertige Einbauküche mit allen Geräten, ein sehr schickes Badezimmer mit Wanne und Dusche und einiges mehr. Das großzügige Raumkonzept ermöglicht ein herrliches, unkompliziertes Wohnen in der Stadt.
Die ruhige Lage ist attraktiv für Käufer/Innen die in der Stadt leben möchten und die Natur direkt vor der Haustüre genießen möchten.
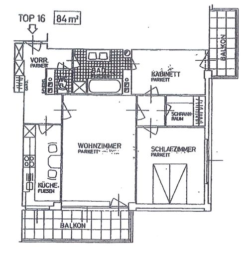
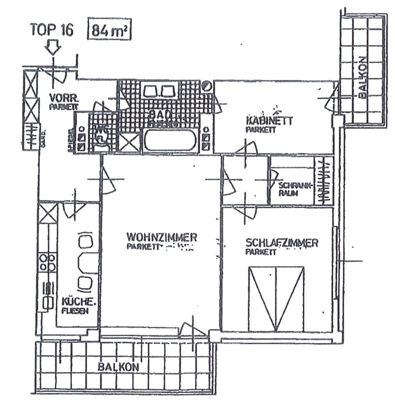
Diese traumhafte Wohnung besteht aus:
- einem sehr großzügigen Wohnbereich mit Ausgang auf die eine Terrasse - herrlicher Weitblick über die Stadt.
- eine bequeme, komplett möblierte Einbauküche, vom Wohnzimmer zu erreichen.
- zwei sehr geräumige Schlafzimmer, Ausgang von einem Schlafzimmer auf die zweite Terrasse.
- Badezimmer mit Badewanne/Dusche und dem mittig angeordneten Waschtisch, Waschmaschine.
- Abstellraum.
- Toilette.
- Vorraum.
- Praktisches Kellerabteil.
Die innovative und energieeffiziente Haustechnik überzeugt mit einer modernen Hauszentralheizung in Kombination mit wirtschaftlichen Radiatoren.
Die beste Infrastruktur ist gegeben.
In unmittelbarer Umgebung befinden sich diverse Einkaufsmöglichkeiten, Apotheke, Banken und gute Kindergärten und Schulen.
Die nahegelegenen Grünanlagen, trendige Gastronomie sowie der Prater bieten zahlreiche Erholungs- und Freizeitmöglichkeiten.
Ebenso ausgezeichnet ist die öffentliche Verkehrsanbindung:
- u.A.: U1 und U4, sozusagen fast vor der Haustüre.
Sehr gerne steht Ihnen Herr Martin Wicho für weitere Informationen und einer Besichtigung unter 0660 / 160 60 00 oder unter wicho@dimagimmobilien.at zur Verfügung.
Fotos und Pläne und Verkaufsunterlagen übermitteln wir Ihnen sehr gerne auf Anfrage.
Vielen Dank.
Diese herrliche Terrassenwohnung befindet sich in einem sehr angenehmen Neubau in der Nähe des Laurenzerberg und bietet eine moderne, sehr exklusive und innovative Ausstattung. Enthalten sind unter anderem eine komplette, sehr hochwertige Möblierung aller Zimmer, eine neuwertige Einbauküche mit allen Geräten, ein sehr schickes Badezimmer mit Wanne und Dusche und einiges mehr. Das großzügige Raumkonzept ermöglicht ein herrliches, unkompliziertes Wohnen in der Stadt.
Die ruhige Lage ist attraktiv für Käufer/Innen die in der Stadt leben möchten und die Natur direkt vor der Haustüre genießen möchten.
Diese traumhafte Wohnung besteht aus:
- einem sehr großzügigen Wohnbereich mit Ausgang auf die eine Terrasse - herrlicher Weitblick über die Stadt.
- eine bequeme, komplett möblierte Einbauküche, vom Wohnzimmer zu erreichen.
- zwei sehr geräumige Schlafzimmer, Ausgang von einem Schlafzimmer auf die zweite Terrasse.
- Badezimmer mit Badewanne/Dusche und dem mittig angeordneten Waschtisch, Waschmaschine.
- Abstellraum.
- Toilette.
- Vorraum.
- Praktisches Kellerabteil.
Die innovative und energieeffiziente Haustechnik überzeugt mit einer modernen Hauszentralheizung in Kombination mit wirtschaftlichen Radiatoren.
Die beste Infrastruktur ist gegeben.
In unmittelbarer Umgebung befinden sich diverse Einkaufsmöglichkeiten, Apotheke, Banken und gute Kindergärten und Schulen.
Die nahegelegenen Grünanlagen, trendige Gastronomie sowie der Prater bieten zahlreiche Erholungs- und Freizeitmöglichkeiten.
Ebenso ausgezeichnet ist die öffentliche Verkehrsanbindung:
- u.A.: U1 und U4, sozusagen fast vor der Haustüre.
Sehr gerne steht Ihnen Herr Martin Wicho für weitere Informationen und einer Besichtigung unter 0660 / 160 60 00 oder unter wicho@dimagimmobilien.at zur Verfügung.
Fotos und Pläne und Verkaufsunterlagen übermitteln wir Ihnen sehr gerne auf Anfrage.
Vielen Dank.
| Angaben gemäß gesetzlichem Erfordernis: | |||
| Heizwärmebedarf: | 32.9 kWh/(m²a) | ||
| Klasse Heizwärmebedarf: | B | ||
Objektdaten
Ausstattung
- WG geeignet
- Klimatisiert
- Kabel/SAT-TV
- Wasch-/Trockenraum
- Unterkellert
- Zentralheizung
- Personen Fahrstuhl
- Alarmanlage
- Massiv Bauweise
- Neubaustandard
- Aussichtslage
- Aussichtslage Unverbaubar
- Zeigelmassiv
- Bus
- Gegensprechanlage
- Geschirrspüler
- Glaskeramikfeld
- Zentralheizung
- Kabel/SAT-TV
- Küche Möbliert
- Sonstiges
- Ruhe Lage
- Kabel/SAT-TV
- Alarmanlage
- Sicherheitsdienst
- Sonnenschutz
- Sonnige Lage
- Stadtzentrum
- Straßenbahn
- U-Bahn
- Waschmaschine
- Zentralheizung
- Kabel/SAT-TV
- Kabel/SAT-TV
- Alarmanlage
Zustand
- Zustand
- ERSTBEZUG
- Baujahr
- ca. 1964
- Altlasten
- lastenfreie Übergabe durch Treuhänder
- Alter
- NEUBAU
Flächen
- Anzahl der Zimmer
- 3
- Anzahl der Schlafzimmer
- 2
- Anzahl der Badezimmer
- 1
- Anzahl der sep. WCs
- 1
- Anzahl der Terrassen
- 2
- Wohnfläche
- 85m²
- Kellerfläche
- 4m²
- Terrassenfläche
- 2m²
Kosten
- Kaufpreis
- € 995.000,00
- Nebenkosten
- € 143,22
- Betriebskosten Brutto
- € 143,22
Verwaltung
- Verfügbar ab
- sofort
Wohnungen zum Kaufen im Umkreis von Gemeindebezirk Innere Stadt
- Bezirk Gemeindebezirk Innere Stadt
- Bezirk Gemeindebezirk Innere Stadt
- Bezirk Gemeindebezirk Innere Stadt
- Bezirk Gemeindebezirk Wieden
- Bezirk Gemeindebezirk Wieden
- Bezirk Gemeindebezirk Wieden
- Bezirk Gemeindebezirk Landstrasse
- Bezirk Gemeindebezirk Landstrasse
- Bezirk Gemeindebezirk Landstrasse
- Bezirk Gemeindebezirk Neubau
Wohnungen zum Kaufen im Umkreis von Gemeindebezirk Innere Stadt
Wohnungen zum Kaufen in Österreich
Andere Besucher suchen nach...
- Grundstücke kaufen in 3400 Weidlingbach
- Wohnungen kaufen in 4663 Laakirchen
- Häuser in 7471 Rechnitz
- Wohnungen in 2410 Hainburg an der Donau
- Häuser kaufen in 2432 Schwadorf
- Wohnungen kaufen in 3002 Purkersdorf
- Häuser in 3150 Wilhelmsburg
- Wohnungen kaufen in 3470 Engelmannsbrunn
- Grundstücke kaufen im Bezirk Mattersburg
- Grundstücke kaufen im Bezirk Gmunden