++NEU++ großartige 2-Zimmer Altbauwohnung mit Loggia (Erstbezug) - TOPLAGE!
-
Erstbezug
Beschreibung
Tolle 2-Zimmer-Altbauwohnung mit Loggia in Bestlage des 2. Wiener Gemeindebezirks
Zum Verkauf gelangt diese generalsanierte, ca. 66 m² große 2-Zimmer Altbauwohnung in absoluter Bestlage des 2. Bezirks. Die Wohnung überzeugt durch ihren klassischen Charme und ihre hervorragende Lage.
Besichtigungstermin
Bitte senden Sie uns unbedingt eine schriftliche Anfrage, um einen Besichtigungstermin zu vereinbaren. Wir antworten verlässlich am selben Tag!
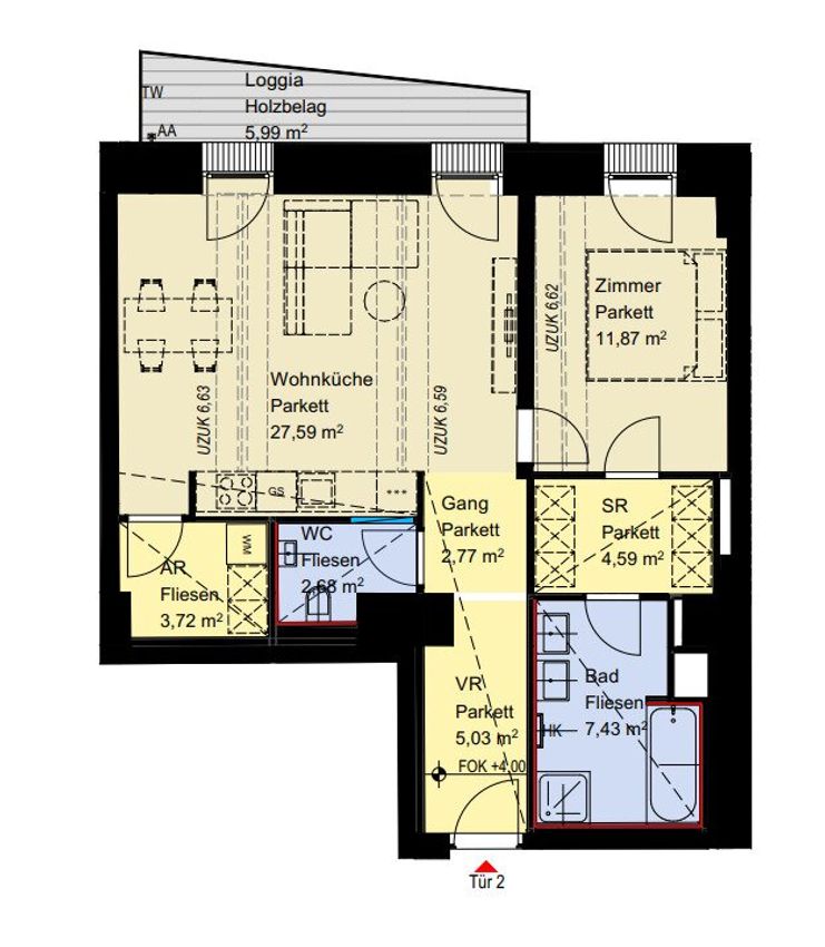
Raumaufteilung
- Vorraum
- Badezimmer mit Badewanne und Dusche
- getrenntes WC
- Wohnküche mit Abstellraum
- Zimmer mit Schrankraum
- Loggia
(siehe Grundriss und aktuelle Fotos)
Zustand
Bei der Wohnung handelt es sich um einen generalsanierten Erstbezug.
Ausstattungsdetails:
...Tolle 2-Zimmer-Altbauwohnung mit Loggia in Bestlage des 2. Wiener Gemeindebezirks
Zum Verkauf gelangt diese generalsanierte, ca. 66 m² große 2-Zimmer Altbauwohnung in absoluter Bestlage des 2. Bezirks. Die Wohnung überzeugt durch ihren klassischen Charme und ihre hervorragende Lage.
Besichtigungstermin
Bitte senden Sie uns unbedingt eine schriftliche Anfrage, um einen Besichtigungstermin zu vereinbaren. Wir antworten verlässlich am selben Tag!
Raumaufteilung
- Vorraum
- Badezimmer mit Badewanne und Dusche
- getrenntes WC
- Wohnküche mit Abstellraum
- Zimmer mit Schrankraum
- Loggia
(siehe Grundriss und aktuelle Fotos)
Zustand
Bei der Wohnung handelt es sich um einen generalsanierten Erstbezug.
Ausstattungsdetails:
- Moderne Fußbodenheizung
- Hochwertiger Parkettboden
- Elegante und hochwertig ausgestattete Sanitärräume
- Erstbezug
- 4.OG - 7.OG Klimaanlage inklusive, EG - 3.OG Klimaanlage gegen Aufpreis (Preis wird noch bekanntgegeben)
Das Haus
Die Wohnung befindet sich im 1. Stock (Altbau) mit Lift eines in Projektierung befindlichen Altbaus. EG bis 2. Stock sind generalsanierte Altbauwohnungen, ab dem 3. Stock handelt es sich um neugeschaffene Einheiten.
Lage
Die Alliiertenstraße 13 befindet sich im 2. Wiener Gemeindebezirk, der Leopoldstadt, in unmittelbarer Nähe zum Augarten, einer der ältesten und bedeutendsten Parkanlagen Wiens. Die Umgebung zeichnet sich durch eine Mischung aus Wohngebieten und historischen Grünflächen aus.
Öffentliche Verkehrsanbindung:
Straßenbahn: Die nächstgelegene Haltestelle ist "Am Tabor", die von den Linien 2 und 5 bedient wird und etwa 3 Gehminuten entfernt liegt.
Bus: Die Haltestellen "Am Tabor" und "Volkertplatz" sind jeweils etwa 4 Gehminuten entfernt und werden von den Buslinien 5B und 82A angefahren.
U-Bahn: Die U-Bahn-Linie U2 ist in der Nähe verfügbar, wobei die genaue Entfernung zur nächstgelegenen Station vom spezifischen Standort abhängt.
Umgebung:
In der Alliiertenstraße und den angrenzenden Straßen finden Sie eine Vielzahl von Geschäften, Restaurants und Cafés, die den täglichen Bedarf decken. Der nahegelegene Augarten lädt zu Spaziergängen und Freizeitaktivitäten ein. Historisch betrachtet war die Alliiertenstraße in den 1930er Jahren ein lebendiges Viertel mit zahlreichen kleinen Betrieben, darunter Wirtshäuser, Greißlereien und Handwerksbetriebe.
Freizeit:
- Der Augarten sowie der Grüne Prater liegen nur wenige Gehminuten entfernt und bieten vielseitige Möglichkeiten für Freizeitaktivitäten.
- Auch die Donauinsel und der Wiener Prater sind dank der guten Anbindung schnell erreichbar.
Preis
Der Kaufpreis für diese wunderschöne Altbauwohnung beträgt:
EUR 499.000,-
- Sonstiges:
- Die endgültige Wohnungsgröße kann noch leicht abweichen, da das Objekt derzeit noch nicht naturvermessen ist.
- Betriebskosten: ca. € 2,50/m² (exkl. Reparaturrücklage und Aufzug).
Vertragserrichtung und Abwicklung
- Rechtsanwalt: Mag. Markus Wieneroiter
- Kosten: Kosten der Vertragserrichtung und grundbücherlichen Durchführung + Treuhandschaft belaufen sich - im Falle keiner Inanspruchnahme einer Fremdfinanzierung - auf 1,75% des Kaufpreises + Barauslagen + 20% Ust
Zur Vereinbarung eines Besichtigungstermins lassen Sie uns bitte jedenfalls eine E-Mailanfrage zukommen!
Der IMMY ist die renommierteste Auszeichnung für Wiener Makler- und Verwalterbetriebe im Bereich Wohnimmobilien. Wir sind stolz den goldenen IMMY für das Jahr 2019 gewonnen zu haben!
Vielen Dank vor allem an unsere Kunden! Unser Unternehmen wurde auch zum Besten Start Up und in den Jahren 2015, 2018, 2019 und 2020 als Qualitätsmakler ausgezeichnet!
Bitte achten Sie darauf, dass Sie diese Immobilie, nach Ihrer Anfrage bei Adonia Immobilien, nicht auch bei einem anderen Immobilienmaklerbüro anfragen! Vielen Dank!
Nicht alle unsere Immobilien finden Sie auf den gängigen Plattformen. Wir freuen uns auf Ihren Besuch auf unserer Homepage unter adonia.at
Wir weisen ausdrücklich auf unser wirtschaftliches Naheverhältnis mit dem Abgeber/ der Abgeberin hin! Unsere gesetzlichen Pflichten als Doppelmakler werden dadurch jedoch nicht beeinträchtigt. Irrtum und Änderungen vorbehalten.
Alle hier veröffentlichen Informationen basieren auf den uns von dem Abgeber/ der Abgeberin zur Verfügung gestellten Informationen und wurden nicht selbst erhoben.
Unsere Allgemeinen Geschäftsbedingungen können Sie sowohl in dem Ihnen zugesandten Expose einsehen als auch auf unserer Homepage. Wir weisen ausdrücklich darauf hin, dass diese AGBs Vertragsinhalt werden.
Der Schutz von personenbezogenen Daten ist uns wichtig und auch gesetzlich gefordert. Die Verarbeitung Ihrer personenbezogenen Daten erfolgt nach den datenschutzrechtlichen Bestimmungen. Auf unserer Homepage (unter Datenschutzinformation) finden Sie eine Übersicht die Sie über die wichtigsten Aspekte der Verarbeitung personenbezogener Daten informieren soll.
Wir weisen darauf hin, dass zwischen dem Vermittler und dem zu vermittelnden Dritten ein familiäres oder wirtschaftliches Naheverhältnis besteht.
Der Vermittler ist als Doppelmakler tätig.
Infrastruktur / Entfernungen
Gesundheit
Arzt <500m
Apotheke <500m
Klinik <1.000m
Krankenhaus <1.500m
Kinder & Schulen
Schule <500m
Kindergarten <500m
Universität <1.500m
Höhere Schule <1.500m
Nahversorgung
Supermarkt <500m
Bäckerei <500m
Einkaufszentrum <2.000m
Sonstige
Geldautomat <1.000m
Bank <500m
Post <500m
Polizei <1.000m
Verkehr
Bus <500m
U-Bahn <1.000m
Straßenbahn <500m
Bahnhof <1.000m
Autobahnanschluss <2.000m
Angaben Entfernung Luftlinie / Quelle: OpenStreetMap
Objektdaten
Ausstattung
- Bad mit Dusche
- Bad mit Badewanne
- Fliesenboden
- Parkettboden
- Estrichboden
- Fußbodenheizung
- Luftwärmepumpe
- Personen Fahrstuhl
- Ausrichtung Balkon/Terrasse - Süd
Zustand
- Zustand
- ERSTBEZUG
- Alter
- ALTBAU
- HWB
- 29.7 kWh/m² pro Jahr
- fGEE
- 0.7
Flächen
- Anzahl der Zimmer
- 2
- Anzahl der Badezimmer
- 1
- Anzahl der sep. WCs
- 1
- Anzahl der Logia
- 1
- Wohnfläche
- 66m²
Kosten
- Kaufpreis Brutto
- € 499.000,00
Wohnungen zum Kaufen in Österreich
- Bezirk Gemeindebezirk Leopoldstadt
- Bezirk Gemeindebezirk Leopoldstadt
- Bezirk Gemeindebezirk Leopoldstadt
- Bezirk Gemeindebezirk Landstrasse
- Bezirk Gemeindebezirk Landstrasse
- Bezirk Gemeindebezirk Landstrasse
- Bezirk Gemeindebezirk Innere Stadt
- Bezirk Gemeindebezirk Innere Stadt
- Bezirk Gemeindebezirk Innere Stadt
- Bezirk Gemeindebezirk Wieden
Wohnungen zum Kaufen in Österreich
Wohnungen zum Kaufen in Österreich
Andere Besucher suchen nach...
- Grundstücke kaufen in 3400 Weidlingbach
- Wohnungen kaufen in 4663 Laakirchen
- Häuser in 7471 Rechnitz
- Wohnungen in 2410 Hainburg an der Donau
- Häuser kaufen in 2432 Schwadorf
- Wohnungen kaufen in 3002 Purkersdorf
- Häuser in 3150 Wilhelmsburg
- Wohnungen kaufen in 3470 Engelmannsbrunn
- Grundstücke kaufen im Bezirk Mattersburg
- Grundstücke kaufen im Bezirk Gmunden