++NEU++ sanierungsbedürftige 2-Zimmer-Wohnung in sehr guter Lage!
Beschreibung
Sanierungsbedürftige 2-Zimmer-Altbauwohnung in zentraler Lage des 2. Bezirks
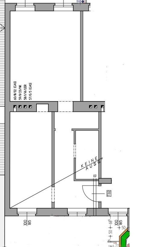
Zum Verkauf steht eine ca. 39 m² große Altbauwohnung mit 2 Zimmern, gelegen im 3. Stock eines charmanten Gebäudes in der Engerthstraße.
Besichtigung
Zur Vereinbarung eines Besichtigungstermins bitten wir Sie, uns unbedingt eine schriftliche Anfrage zukommen zu lassen. Wir antworten verlässlich am selben Tag!
Wohnungsdetails
- Lage: 3. Stock (mit Lift)
- Räumlichkeiten:
- Vorraum
- Badezimmer
- Kabinett
- Zimmer
(Siehe Fotodokumentation und Grundriss.)
- Zustand: Das Objekt ist sanierungsbedürftig und wird im aktuellen Zustand verkauft. (Details siehe Fotos)
Das Gebäude
Das Objekt befindet sich...
Sanierungsbedürftige 2-Zimmer-Altbauwohnung in zentraler Lage des 2. Bezirks
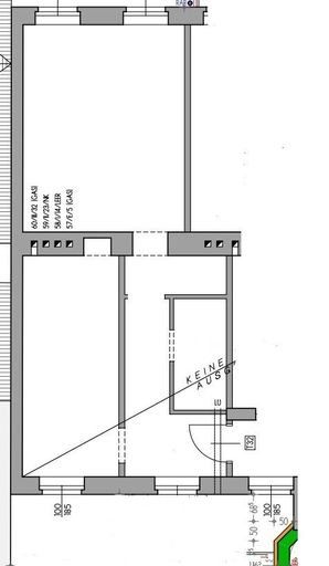
Zum Verkauf steht eine ca. 39 m² große Altbauwohnung mit 2 Zimmern, gelegen im 3. Stock eines charmanten Gebäudes in der Engerthstraße.
Besichtigung
Zur Vereinbarung eines Besichtigungstermins bitten wir Sie, uns unbedingt eine schriftliche Anfrage zukommen zu lassen. Wir antworten verlässlich am selben Tag!
Wohnungsdetails
- Lage: 3. Stock (mit Lift)
- Räumlichkeiten:
- Vorraum
- Badezimmer
- Kabinett
- Zimmer
(Siehe Fotodokumentation und Grundriss.)
- Zustand:
Das Objekt ist sanierungsbedürftig und wird im aktuellen Zustand verkauft. (Details siehe Fotos)
Das Gebäude
Das Objekt befindet sich in einem klassischen Altbau. Das Dachgeschoss ist ausgebaut und ein Personenaufzug eingebaut.
Lage
Die Wohnung ist im 2. Wiener Gemeindebezirk Leopoldstadt gelegen, einem urbanen und dynamisch gewachsenen Teil Wiens mit hoher Lebensqualität und umfassender Infrastruktur.
Die Lage ist verkehrsgünstig und bestens an das Wiener Verkehrsnetz angebunden. In fußläufiger Entfernung befinden sich unter anderem die U-Bahn-Station Vorgartenstraße (U1), welche schnelle Verbindungen sowohl in die Innenstadt als auch zu anderen wichtigen Stadtteilen ermöglicht.
Preis
Preis: 199.900 € (FIX-Preis)
Vertragserrichter: Mag. Georg Kampas (1,5% + Barauslagen + 20% USt)
Wir weisen darauf hin, dass zwischen dem Vermittler und dem zu vermittelnden Dritten ein familiäres oder wirtschaftliches Naheverhältnis besteht.
Der Vermittler ist als Doppelmakler tätig.
Infrastruktur / Entfernungen
Gesundheit
Arzt <500m
Apotheke <500m
Klinik <1.000m
Krankenhaus <1.500m
Kinder & Schulen
Schule <500m
Kindergarten <500m
Universität <500m
Höhere Schule <2.000m
Nahversorgung
Supermarkt <500m
Bäckerei <500m
Einkaufszentrum <2.000m
Sonstige
Geldautomat <500m
Bank <500m
Post <1.000m
Polizei <500m
Verkehr
Bus <500m
U-Bahn <500m
Straßenbahn <500m
Bahnhof <500m
Autobahnanschluss <2.000m
Angaben Entfernung Luftlinie / Quelle: OpenStreetMap
Objektdaten
Ausstattung
- Bad mit Dusche
- Parkettboden
- Befeuerung mit Gas
- Personen Fahrstuhl
Zustand
- Zustand
- SANIERUNGSBEDUERFTIG
- Alter
- ALTBAU
- HWB
- 155.7 kWh/m² pro Jahr
- fGEE
- 3.21
Flächen
- Anzahl der Zimmer
- 2
- Anzahl der Badezimmer
- 1
- Anzahl der sep. WCs
- 1
- Wohnfläche
- 39m²
Kosten
- Kaufpreis Brutto
- € 199.900,00
Wohnungen zum Kaufen in Österreich
- Bezirk Gemeindebezirk Leopoldstadt
- Bezirk Gemeindebezirk Leopoldstadt
- Bezirk Gemeindebezirk Leopoldstadt
- Bezirk Gemeindebezirk Landstrasse
- Bezirk Gemeindebezirk Landstrasse
- Bezirk Gemeindebezirk Landstrasse
- Bezirk Gemeindebezirk Innere Stadt
- Bezirk Gemeindebezirk Innere Stadt
- Bezirk Gemeindebezirk Innere Stadt
- Bezirk Gemeindebezirk Wieden
Wohnungen zum Kaufen in Österreich
Wohnungen zum Kaufen in Österreich
Andere Besucher suchen nach...
- Grundstücke kaufen in 3400 Weidlingbach
- Wohnungen kaufen in 4663 Laakirchen
- Häuser in 7471 Rechnitz
- Wohnungen in 2410 Hainburg an der Donau
- Häuser kaufen in 2432 Schwadorf
- Wohnungen kaufen in 3002 Purkersdorf
- Häuser in 3150 Wilhelmsburg
- Wohnungen kaufen in 3470 Engelmannsbrunn
- Grundstücke kaufen im Bezirk Mattersburg
- Grundstücke kaufen im Bezirk Gmunden