DEMOOBJEKT! Hochwertige Familienvilla mit Flair
Beschreibung
DEMOOBJEKT! Bitte nicht anfragen! 30 km von Wien entfernt, 1Min. vom Bahnhof mit uneinsichtigem Garten und Traumaussicht auf den Wienerwald in neuwertigem Zustand bietet Erholung und hochwertiges Wohnen: dieses günstige Einfamilienhaus sollte man gesehen haben! Im Erdgeschoss: Riesenwohnraum mit Veranda und 4 Ausgänge in den Garten. Eingangsbereich mit WC, voll ausgestattete Küche. Marmorfliesen. Überall hell und grün. Über die Marmorstiege in den 1. Stock: 3 Schlafräume, Parkettböden mit großer Terrasse Wienerwaldblick, Bad, Dusche und WC. Der ausgebaute Dachboden bietet einen beeindruckenden Rundumblick in den sanfthügeligen Wienerwald. Keller: 2 Souterrainräume, Abstellraum, Heizraum und Waschküche, Dusche und WC Im uneinsichtigen Garten findet...
DEMOOBJEKT! Bitte nicht anfragen!
30 km von Wien entfernt, 1Min. vom Bahnhof mit uneinsichtigem Garten und Traumaussicht auf den Wienerwald in neuwertigem Zustand bietet Erholung und hochwertiges Wohnen: dieses günstige Einfamilienhaus sollte man gesehen haben!
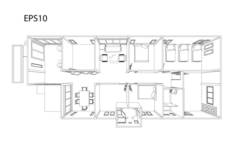
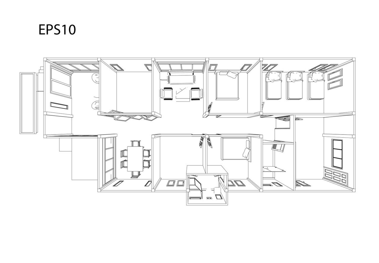
Im Erdgeschoss: Riesenwohnraum mit Veranda und 4 Ausgänge in den Garten. Eingangsbereich mit WC, voll ausgestattete Küche. Marmorfliesen. Überall hell und grün.
Über die Marmorstiege in den 1. Stock: 3 Schlafräume, Parkettböden mit großer Terrasse Wienerwaldblick, Bad, Dusche und WC.
Der ausgebaute Dachboden bietet einen beeindruckenden Rundumblick in den sanfthügeligen Wienerwald.
Keller: 2 Souterrainräume, Abstellraum, Heizraum und Waschküche, Dusche und WC
Im uneinsichtigen Garten findet man mehrere lauschige Plätzchen z. B. mit Grill., eine automatische Bewässerungsanlage.
1 Garage, 1 Gartenraum.
30 km von Wien entfernt, 1Min. vom Bahnhof mit uneinsichtigem Garten und Traumaussicht auf den Wienerwald in neuwertigem Zustand bietet Erholung und hochwertiges Wohnen: dieses günstige Einfamilienhaus sollte man gesehen haben!
Im Erdgeschoss: Riesenwohnraum mit Veranda und 4 Ausgänge in den Garten. Eingangsbereich mit WC, voll ausgestattete Küche. Marmorfliesen. Überall hell und grün.
Über die Marmorstiege in den 1. Stock: 3 Schlafräume, Parkettböden mit großer Terrasse Wienerwaldblick, Bad, Dusche und WC.
Der ausgebaute Dachboden bietet einen beeindruckenden Rundumblick in den sanfthügeligen Wienerwald.
Keller: 2 Souterrainräume, Abstellraum, Heizraum und Waschküche, Dusche und WC
Im uneinsichtigen Garten findet man mehrere lauschige Plätzchen z. B. mit Grill., eine automatische Bewässerungsanlage.
1 Garage, 1 Gartenraum.
Noch nichts gefunden? Wir informieren Sie über geeignete Immobilienangebote noch vor allen anderen.
Legen Sie jetzt Ihren individuellen Suchagenten unter folgendem Link an. Wir schicken Ihnen passende Immobilien exklusiv vorab zu.
Suchagent anlegen - https://remax-4you.service.immo/registrieren/de
Infrastruktur / Entfernungen
Gesundheit
Arzt <500m
Apotheke <500m
Klinik <500m
Krankenhaus <500m
Kinder & Schulen
Schule <500m
Kindergarten <500m
Universität <500m
Höhere Schule <1.000m
Nahversorgung
Supermarkt <500m
Bäckerei <500m
Einkaufszentrum <500m
Sonstige
Geldautomat <500m
Bank <500m
Post <500m
Polizei <500m
Verkehr
Bus <500m
U-Bahn <500m
Straßenbahn <500m
Bahnhof <500m
Autobahnanschluss <2.500m
Angaben Entfernung Luftlinie / Quelle: OpenStreetMap
Objektdaten
Ausstattung
- Kabel/SAT-TV
- Bad mit Dusche
- Bad mit Badewanne
- Bad mit Fenster
- Bad mit Bidet
- Fliesenboden
- Dielenboden
- Ofen
- Zentralheizung
- Solar
- Ausrichtung Balkon/Terrasse - Nord
- Ausrichtung Balkon/Terrasse - Süd
Zustand
- Baujahr
- 1998
- Alter
- NEUBAU
- HWB
- 88 kWh/m² pro Jahr
- Klasse HWB
- C
- fGEE
- 2.1
- Klasse fGEE
- D
Flächen
- Anzahl der Zimmer
- 6
- Anzahl der Badezimmer
- 1
- Anzahl der sep. WCs
- 2
- Anzahl der Terrassen
- 2
- Wohnfläche
- 219m²
- Grundstücksfläche
- 400m²
- Kellerfläche
- 40m²
- Terrassenfläche
- 2m²
Kosten
- Kaufpreis Brutto
- € 539.400,00
- enth. Umsatzsteuer
- € 89.900,00
- Betriebskosten
- € 150,00
Wohnungen zum Kaufen in Österreich
- Bezirk Gemeindebezirk Landstrasse
- Bezirk Gemeindebezirk Landstrasse
- Bezirk Gemeindebezirk Landstrasse
- Bezirk Gemeindebezirk Wieden
- Bezirk Gemeindebezirk Wieden
- Bezirk Gemeindebezirk Wieden
- Bezirk Gemeindebezirk Innere Stadt
- Bezirk Gemeindebezirk Innere Stadt
- Bezirk Gemeindebezirk Innere Stadt
- Bezirk Gemeindebezirk Leopoldstadt
Wohnungen zum Kaufen in Österreich
Wohnungen zum Kaufen in Österreich
Andere Besucher suchen nach...
- Grundstücke kaufen in 3400 Weidlingbach
- Wohnungen kaufen in 4663 Laakirchen
- Häuser in 7471 Rechnitz
- Wohnungen in 2410 Hainburg an der Donau
- Häuser kaufen in 2432 Schwadorf
- Wohnungen kaufen in 3002 Purkersdorf
- Häuser in 3150 Wilhelmsburg
- Wohnungen kaufen in 3470 Engelmannsbrunn
- Grundstücke kaufen im Bezirk Mattersburg
- Grundstücke kaufen im Bezirk Gmunden