Lage, Lage, Lage - Wohnung(en) mit Entwicklungspotenzial & sehr guter Anbindung
-
sofort
Beschreibung
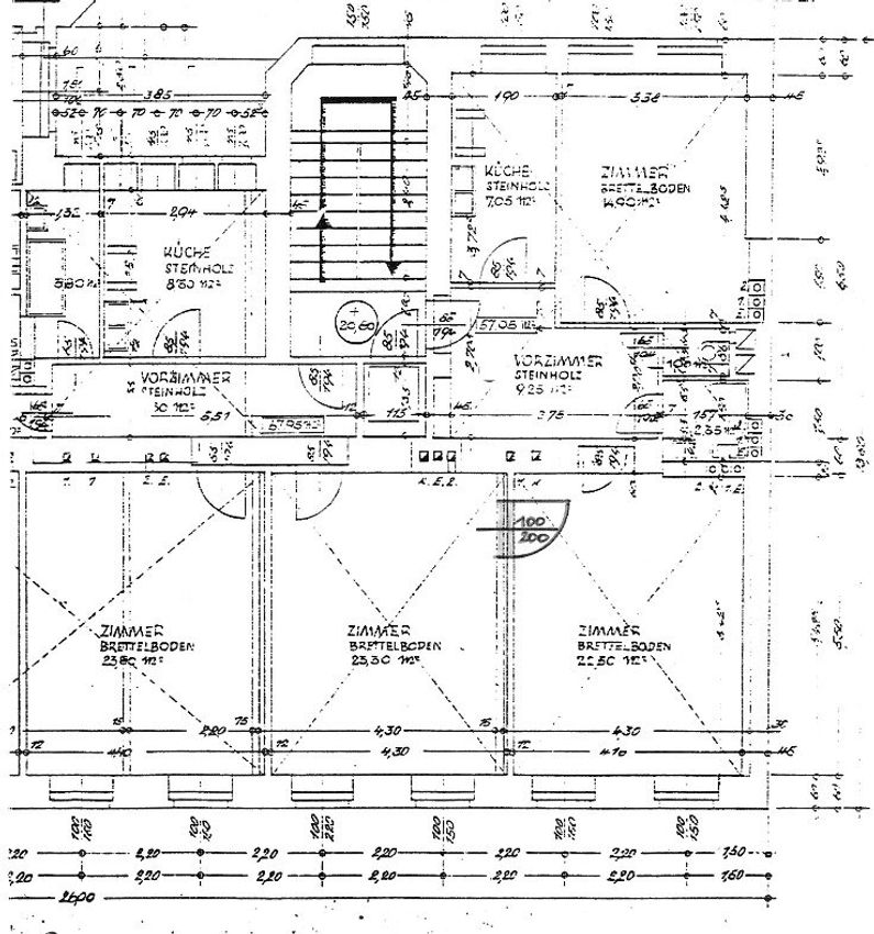
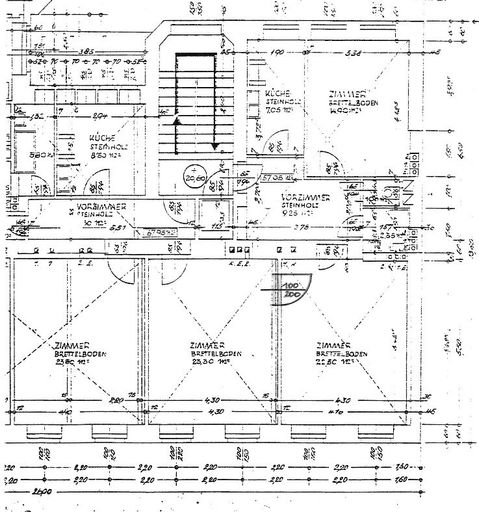
Diese teilrenovierte ca. 125 m² große Wohnung befindet sich im 2. Stock eines Wohnhauses aus ca. 1955 mit Lift und besteht grundbücherlich aus zwei separaten Wohnungen, die durch einen Durchbruch miteinander verbunden wurden. Besonders hervorzuheben ist, dass sich auf dieser Etage auf der betreffenden Stiege ausschließlich diese beiden Wohnungen befinden.
Die Wohnung verfügt über zwei separate Eingänge, insgesamt fünf Zimmer, eine Küche, zwei Bäder sowie zwei WCs. Ein Zimmer war ursprünglich als Küche vorgesehen und verfügt noch über verdeckte Küchenanschlüsse, was zusätzliche Flexibilität in der Grundrissgestaltung ermöglicht. Ein Badezimmer befindet sich in gutem Zustand, das zweite ist sanierungsbedürftig und bietet...
Diese teilrenovierte ca. 125 m² große Wohnung befindet sich im 2. Stock eines Wohnhauses aus ca. 1955 mit Lift und besteht grundbücherlich aus zwei separaten Wohnungen, die durch einen Durchbruch miteinander verbunden wurden. Besonders hervorzuheben ist, dass sich auf dieser Etage auf der betreffenden Stiege ausschließlich diese beiden Wohnungen befinden.
Die Wohnung verfügt über zwei separate Eingänge, insgesamt fünf Zimmer, eine Küche, zwei Bäder sowie zwei WCs. Ein Zimmer war ursprünglich als Küche vorgesehen und verfügt noch über verdeckte Küchenanschlüsse, was zusätzliche Flexibilität in der Grundrissgestaltung ermöglicht. Ein Badezimmer befindet sich in gutem Zustand, das zweite ist sanierungsbedürftig und bietet Raum für individuelle Anpassungen. Ergänzt wird das Raumangebot durch zwei Kellerabteile.
Die Beheizung erfolgt derzeit über Infrarot-Paneele, die 2025 installiert wurden. Ein Rückwechsel auf eine Gas-Etagenheizung ist grundsätzlich möglich; hierzu wurde im Jahr 2025 bereits ein Angebot eingeholt, das den relevanten Unterlagen im Exposé beiliegt. Die Elektrik wurde im Stiegenhaus (ca. 2023) auf den aktuellen Stand der Technik gebracht und die Fassade wurde straßenseitig thermisch saniert (ca. 2023). Das Wohnhaus verfügt über zwei Stiegenhäuser sowie einen versperrbaren Fahrradabstellraum als Allgemeinfläche.
Die Lage überzeugt durch eine sehr gute urbane Anbindung und kurze Wege im Alltag. Supermärkte, Bäckereien, Drogeriemärkte etc. sind fußläufig erreichbar, das Herz-Jesu-Krankenhaus in rund vier Minuten zu Fuß. Die U3-Station Kardinal-Nagl-Platz liegt ca. sechs Gehminuten entfernt, die U3 Station Schlachthausgasse etwa acht Gehminuten. Auch Bildungseinrichtungen wie die HTL Rennweg und das Biologiezentrum der Universität Wien sind in rund acht Minuten zu Fuß erreichbar. Die Klinik Landstraße liegt etwa 13 Gehminuten entfernt, das Schloss Belvedere ist mit dem Auto in weniger als zehn Minuten erreichbar. Der Rochusmarkt ist ebenfalls in wenigen Stationen mit dem Autobus 74a erreichbar.
Die Wohnung ist ab sofort beziehbar und richtet sich an Käuferinnen und Käufer, die den Mehrwert einer zusammengelegten Einheit erkennen (ideal für Paare mit Kindern) – sei es für großzügiges Wohnen, Arbeiten und Wohnen unter einem Dach oder als Basis für eine zukünftige Neuaufteilung in zwei eigenständige Wohnungen. Eine Immobilie mit Substanz, Flexibilität und Entwicklungspotenzial in gut angebundener Lage.
DIGITALE BESICHTIGUNG
Unter folgenden Link können Sie eine digitale Besichtigung durchführen und sich Schritt für Schritt durch die Wohnung bewegen: https://my.matterport.com/show/?m=bhZKVboAFnA
Nähere Details, mehr Bilder sowie einen persönlichen Besichtigungstermin erhalten Sie gerne auf Anfrage.
HINWEIS ZUR PROVISION
Ein Provisionsanspruch entsteht erst mit Unterzeichnung eines Miet- oder Kaufanbots. Besichtigungen und Auskünfte sind selbstverständlich unverbindlich und kostenlos.
NOCH NICHTS GEFUNDEN?
Wir informieren Sie über geeignete Immobilienangebote noch vor allen anderen.
Legen Sie sich Ihren individuellen Suchagenten unter folgendem Link an. Wir schicken Ihnen passende Immobilien exklusiv vorab zu. Suchagent anlegen - https://resch-homes.service.immo/registrieren/de
Der Vermittler ist als Doppelmakler tätig.
Objektdaten
Ausstattung
- Fliesenboden
- Parkettboden
- Kunststoffboden
- Personen Fahrstuhl
Dokumente / Links
Zustand
- Baujahr
- 1955
- Alter
- NEUBAU
- HWB
- 87.7 kWh/m² pro Jahr
- Klasse HWB
- C
- fGEE
- 1.44
- Klasse fGEE
- C
Flächen
- Anzahl der Zimmer
- 5
- Anzahl der Badezimmer
- 1
- Anzahl der sep. WCs
- 2
- Wohnfläche
- 125m²
Kosten
- Kaufpreis Brutto
- € 560.000,00
- Betriebskosten
- € 239,68
- Sonstige Kosten
- € 351,18
Verwaltung
- Verfügbar ab
- sofort
Wohnungen zum Kaufen in Österreich
- Bezirk Gemeindebezirk Landstrasse
- Bezirk Gemeindebezirk Landstrasse
- Bezirk Gemeindebezirk Landstrasse
- Bezirk Gemeindebezirk Innere Stadt
- Bezirk Gemeindebezirk Innere Stadt
- Bezirk Gemeindebezirk Innere Stadt
- Bezirk Gemeindebezirk Leopoldstadt
- Bezirk Gemeindebezirk Leopoldstadt
- Bezirk Gemeindebezirk Leopoldstadt
- Bezirk Gemeindebezirk Wieden
Wohnungen zum Kaufen in Österreich
Wohnungen zum Kaufen in Österreich
Andere Besucher suchen nach...
- Grundstücke kaufen in 3400 Weidlingbach
- Wohnungen kaufen in 4663 Laakirchen
- Häuser in 7471 Rechnitz
- Wohnungen in 2410 Hainburg an der Donau
- Häuser kaufen in 2432 Schwadorf
- Wohnungen kaufen in 3002 Purkersdorf
- Häuser in 3150 Wilhelmsburg
- Wohnungen kaufen in 3470 Engelmannsbrunn
- Grundstücke kaufen im Bezirk Mattersburg
- Grundstücke kaufen im Bezirk Gmunden