WUNDERSCHÖNES PENTHOUSE - 2 GROSSE TERRASSEN - ELITÄRES WOHNEN - 4 ZIMMER- GARAGENPLATZ ZUR ANMIETUNG
Beschreibung
Die 4 -Zimmer-Maisonettewohnung in der Nähe des Schloss Belvedere verfügt über ca.179 m2 Wohnfläche, sowie 2 hofseitige Terrassen mit ca. 104 m2
DER GRUNDRISS gliedert sich wie folgt:-
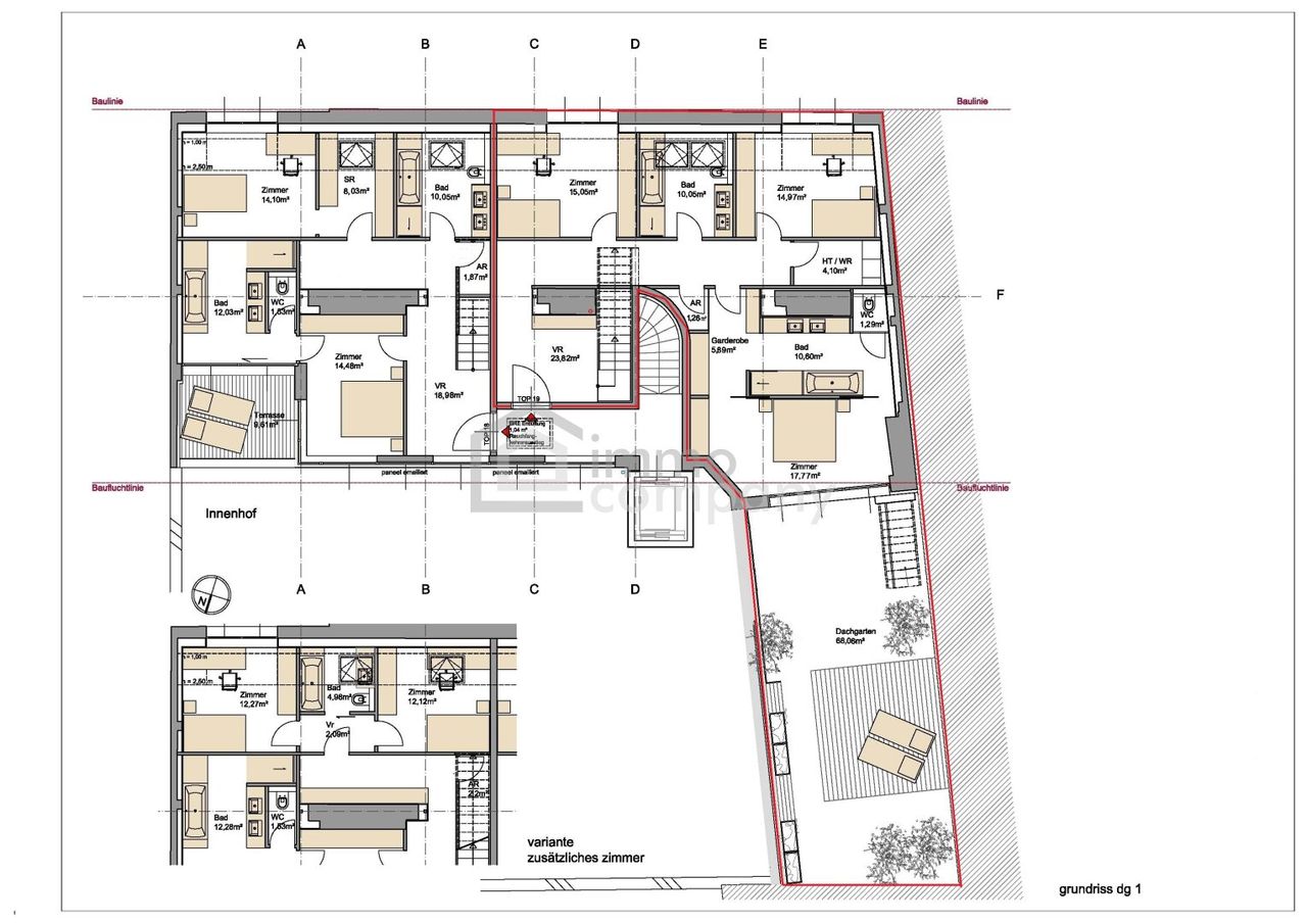
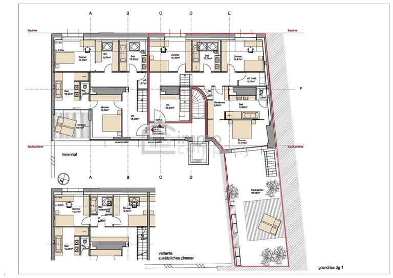
1 DG Ebene:
Im 1. DG kommen Sie von einem großzügigen Vorraum aus direkt zu dem 1. und 2. geräumigen Schlafzimmer, welche in der Mitte durch ein schönes, top ausgestattetes Badezimmer mit einer Badewanne, einer Toilette und zwei Waschbecken verfügt. Weiters befindet sich im 1. DG das Master-Schlafzimmer, mit Bad en Suite. In diesem Badezimmer gibt es eine Duschkabine, eine extra verschließbare Toilette und ein Bidet. Aus dem Master-Schlafzimmer hat man einen...
Die 4 -Zimmer-Maisonettewohnung in der Nähe des Schloss Belvedere verfügt über ca.179 m2 Wohnfläche, sowie 2 hofseitige Terrassen mit ca. 104 m2
DER GRUNDRISS gliedert sich wie folgt:-
1 DG Ebene:
Im 1. DG kommen Sie von einem großzügigen Vorraum aus direkt zu dem 1. und 2. geräumigen Schlafzimmer, welche in der Mitte durch ein schönes, top ausgestattetes Badezimmer mit einer Badewanne, einer Toilette und zwei Waschbecken verfügt. Weiters befindet sich im 1. DG das Master-Schlafzimmer, mit Bad en Suite. In diesem Badezimmer gibt es eine Duschkabine, eine extra verschließbare Toilette und ein Bidet. Aus dem Master-Schlafzimmer hat man einen Zugang zur ersten Terrasse mit ca. 33 m2, und es bietet alle erforderlichen Anschlüsse sowie viel Potenzial zur Umgestaltung. Des weiteren gibt es im 1 DG 2 Abstellräume. -
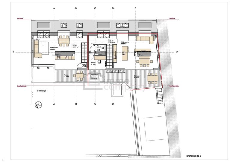
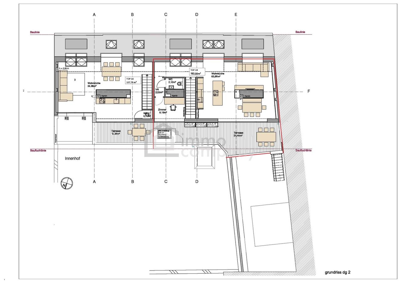
2. Ebene:
Im 2. DG ist ein kleines Büro vorhanden, welches jedoch auch in ein weiteres Schlafzimmer umgestaltet werden kann. Dieses hat den Zugang zur zweiten Terrasse (mit ca. 71 m2) mit einem wunderschönen Ausblick. Abgesehen davon, befinden sich im 2. DG ein geräumiges Wohn-Esszimmer mit einer wunderschönen Küche, von wo Sie auch noch einen weiteren Zugang auf die zweite Terrasse (im DG2) haben. Die Terrassen von DG1 und DG 2 sind auch von außen miteinander verbunden.
Es besteht die Möglichkeit einen Garagenplatz für €205/ Monat anzumieten!
Es wäre mir eine große Freude, Ihnen diese wunderschöne Wohnung präsentieren zu dürfen.
Hierfür können sie mich, Herrn Stefan Dorak unter +43 699 18410052 jederzeit anrufen.
Der Vermittler ist als Doppelmakler tätig.
Nutzen Sie die einmalige Gelegenheit, diese Immobilie zu besichtigen – sehen und erleben ist sehr viel eindrucksvoller!
Eine Besichtigung ist kostenfrei und unverbindlich, und gibt Ihnen einen unverfälschten Eindruck von der Immobilie.
Gerne unterstütze ich Sie auch bei der Finanzierung sowie beim Verkauf/Vermietung Ihrer Immobilie.
Infrastruktur / Entfernungen
Gesundheit
Arzt <500m
Apotheke <500m
Klinik <500m
Krankenhaus <1.000m
Kinder & Schulen
Schule <500m
Kindergarten <500m
Universität <1.000m
Höhere Schule <1.000m
Nahversorgung
Supermarkt <500m
Bäckerei <500m
Einkaufszentrum <1.000m
Sonstige
Geldautomat <500m
Bank <500m
Post <1.000m
Polizei <1.000m
Verkehr
Bus <500m
U-Bahn <500m
Straßenbahn <500m
Bahnhof <500m
Autobahnanschluss <2.500m
Angaben Entfernung Luftlinie / Quelle: OpenStreetMap
Objektdaten
Ausstattung
- Klimatisiert
- Kabel/SAT-TV
- Gäste-WC
- Kabelkanäle
- Bad mit Dusche
- Bad mit Badewanne
- Bad mit Fenster
- Einbauküche
- Offene Küche
- Fliesenboden
- Parkettboden
- Fußbodenheizung
- Fern Befeuerung
- Personen Fahrstuhl
- Ausrichtung Balkon/Terrasse - Südwest
- Alarmanlage
- Massiv Bauweise
Zustand
- Zustand
- GEPFLEGT
- Baujahr
- 1838
- Alter
- NEUBAU
- HWB
- 99.7 kWh/m² pro Jahr
- Klasse HWB
- D
- fGEE
- 1.98
- Klasse fGEE
- D
Flächen
- Anzahl der Zimmer
- 4
- Anzahl der Badezimmer
- 2
- Anzahl der sep. WCs
- 3
- Anzahl der Terrassen
- 2
- Stellplätze
- 1
- Wohnfläche
- 180m²
- Nutzfläche
- 180m²
- Freifläche
- 104m²
- Kellerfläche
- 10m²
- Terrassenfläche
- 2m²
Kosten
- Kaufpreis Brutto
- € 2.300.000,00
Verwaltung
- Verfügbar ab
- nach vereinbarung
Wohnungen zum Kaufen in Österreich
- Bezirk Gemeindebezirk Wieden
- Bezirk Gemeindebezirk Wieden
- Bezirk Gemeindebezirk Wieden
- Bezirk Gemeindebezirk Margareten
- Bezirk Gemeindebezirk Margareten
- Bezirk Gemeindebezirk Margareten
- Bezirk Gemeindebezirk Mariahilf
- Bezirk Gemeindebezirk Mariahilf
- Bezirk Gemeindebezirk Mariahilf
- Bezirk Gemeindebezirk Innere Stadt
Wohnungen zum Kaufen in Österreich
Wohnungen zum Kaufen in Österreich
Andere Besucher suchen nach...
- Grundstücke kaufen in 3400 Weidlingbach
- Wohnungen kaufen in 4663 Laakirchen
- Häuser in 7471 Rechnitz
- Wohnungen in 2410 Hainburg an der Donau
- Häuser kaufen in 2432 Schwadorf
- Wohnungen kaufen in 3002 Purkersdorf
- Häuser in 3150 Wilhelmsburg
- Wohnungen kaufen in 3470 Engelmannsbrunn
- Grundstücke kaufen im Bezirk Mattersburg
- Grundstücke kaufen im Bezirk Gmunden