Anlagewohnung mit bestehendem Mietverhältnis – befristet bis 31.01.2032
Beschreibung
Diese Wohnung befindet sich in einer sehr guten und gefragten Wohnlage – in der Sankt-Johann-Gasse, einer ruhigen Seitengasse der Schönbrunner Straße im 5. Wiener Gemeindebezirk. Die öffentliche Anbindung ist ausgezeichnet: U4 Margaretengürtel, die Straßenbahnlinien 6 und 18 sowie die Buslinie 12A sind in wenigen Minuten zu Fuß erreichbar.
Die Wohnung ist aktuell vermietet. Der Mietvertrag ist befristet bis 31.01.2032, eine Eigennutzung ist daher vor diesem Datum nicht möglich. Es handelt sich um ein klassisches Investmentobjekt mit langfristiger Einnahmensicherheit.
Eckdaten der Vermietung:
-
Nettomiete: € 941,63
-
USt (10 %): € 94,16
-
Bruttomiete (gesamt): € 1.213,44 /...
Diese Wohnung befindet sich in einer sehr guten und gefragten Wohnlage – in der Sankt-Johann-Gasse, einer ruhigen Seitengasse der Schönbrunner Straße im 5. Wiener Gemeindebezirk. Die öffentliche Anbindung ist ausgezeichnet: U4 Margaretengürtel, die Straßenbahnlinien 6 und 18 sowie die Buslinie 12A sind in wenigen Minuten zu Fuß erreichbar.
Die Wohnung ist aktuell vermietet. Der Mietvertrag ist befristet bis 31.01.2032, eine Eigennutzung ist daher vor diesem Datum nicht möglich. Es handelt sich um ein klassisches Investmentobjekt mit langfristiger Einnahmensicherheit.
Eckdaten der Vermietung:
Nettomiete: € 941,63
USt (10 %): € 94,16
Bruttomiete (gesamt): € 1.213,44 / Monat
Kaution: 3 Bruttomonatsmieten
Vertrag befristet bis: 31.01.2032
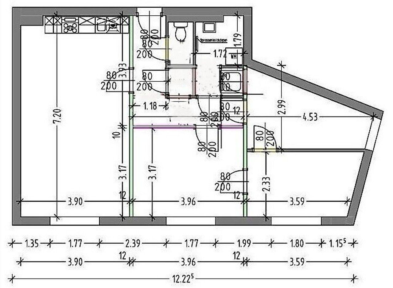
Die Wohnung im Überblick:
Die Wohnung wurde komplett saniert, mit hochwertiger Ausstattung versehen (moderne Küche inkl. Markengeräten, Echtholzparkett, elegante Fliesen) und befindet sich im 3. Obergeschoss (mit Lift) eines gepflegten Neubaus. Sie ist sehr hell und gut geschnitten:
Vorraum
Abstellraum
Badezimmer mit Dusche und Waschmaschinenanschluss
Separates WC
Großzügige Wohnküche
Drei Schlafzimmer
Garagenplätze im Erdgeschoss sind vorhanden und können separat angemietet werden.
Infrastruktur & Lagevorteile:
U-Bahn U4 ca. 150 m
Straßenbahnlinien 6 & 18 ca. 180 m
Bus ca. 150 m
Nahversorger (Billa) ca. 105 m
Kindergarten ca. 90 m
Schulen ca. 130 m
Arzt ca. 95 m
Parks, Wientalterrassen, der Wienflussweg, das Raimundtheater und die Nähe zur Mariahilfer Straße bieten eine hohe Lebensqualität. Mit der Erweiterung der U2 ist zusätzliches Entwicklungspotenzial gegeben.
Hinweis:
Es besteht ein wirtschaftliches Naheverhältnis zum Verkäufer.
Weitere Informationen und Unterlagen erhalten Sie auf Anfrage gegen vollständige Angabe Ihrer Kontaktdaten (Name, Adresse).
Wir weisen darauf hin, dass zwischen dem Vermittler und dem zu vermittelnden Dritten ein familiäres oder wirtschaftliches Naheverhältnis besteht.
Der Vermittler ist als Doppelmakler tätig.
Objektdaten
Ausstattung
- WG geeignet
- Kabel/SAT-TV
- UMTS Empfang
- Fahrradraum
- Bad mit Dusche
- Einbauküche
- Fliesenboden
- Parkettboden
- Personen Fahrstuhl
- Massiv Bauweise
- Fernwärme Heizung
Zustand
- Zustand
- GEPFLEGT
- Baujahr
- 1967
- Alter
- NEUBAU
- HWB
- 95 kWh/m² pro Jahr
- Klasse HWB
- C
- fGEE
- 2.23
- Klasse fGEE
- D
Flächen
- Anzahl der Zimmer
- 3
- Anzahl der Badezimmer
- 1
- Anzahl der sep. WCs
- 1
- Wohnfläche
- 75m²
- Kellerfläche
- 4m²
Kosten
- Kaufpreis Brutto
- € 350.000,00
- Betriebskosten
- € 101,85
- Heizkosten
- € 41,02
- Sonstige Kosten
- € 96,94
Verwaltung
- Mietdauer
- bis 10,0 Jahre
Wohnungen zum Kaufen in Österreich
- Bezirk Gemeindebezirk Margareten
- Bezirk Gemeindebezirk Margareten
- Bezirk Gemeindebezirk Margareten
- Bezirk Gemeindebezirk Mariahilf
- Bezirk Gemeindebezirk Mariahilf
- Bezirk Gemeindebezirk Mariahilf
- Bezirk Gemeindebezirk Neubau
- Bezirk Gemeindebezirk Neubau
- Bezirk Gemeindebezirk Neubau
- Bezirk Gemeindebezirk Rudolfsheim-Fünfhaus
Wohnungen zum Kaufen in Österreich
Wohnungen zum Kaufen in Österreich
Andere Besucher suchen nach...
- Grundstücke kaufen in 3400 Weidlingbach
- Wohnungen kaufen in 4663 Laakirchen
- Häuser in 7471 Rechnitz
- Wohnungen in 2410 Hainburg an der Donau
- Häuser kaufen in 2432 Schwadorf
- Wohnungen kaufen in 3002 Purkersdorf
- Häuser in 3150 Wilhelmsburg
- Wohnungen kaufen in 3470 Engelmannsbrunn
- Grundstücke kaufen im Bezirk Mattersburg
- Grundstücke kaufen im Bezirk Gmunden