Helle generalsanierte Altbauwohnung im 4. OG mit Lift nahe Wiedner Hauptstraße
-
ab sofort
Beschreibung
Diese charmante Altbauwohnung liegt in einem gepflegten Gründerzeithaus in unmittelbarer Nähe der Wiedner Hauptstraße im beliebten 5. Wiener Gemeindebezirk.
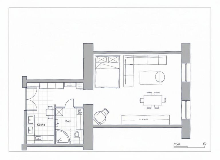
Die Wohnung verfügt über eine Wohnfläche von ca. 34 m² und befindet sich im 4. Liftstock. Hohe Räume und klassische Altbaudetails verleihen ihr den typischen Altbaucharakter und schaffen ein angenehmes Wohnambiente.
Die Raumaufteilung umfasst einen Vorraum mit maßgefertigten Einbauschränken und viel Stauraum, ein Badezimmer mit Dusche, WC und Waschmaschinenanschluss, eine voll ausgestattete moderne Küche sowie einen Wohn- und Schlafraum.
Im Zuge einer umfassenden Generalsanierung im Jahr 2018 wurden sämtliche Leitungen (Strom und Wasser), die Heizungsanlage sowie Böden und Fliesen erneuert. Darüber...
Diese charmante Altbauwohnung liegt in einem gepflegten Gründerzeithaus in unmittelbarer Nähe der Wiedner Hauptstraße im beliebten 5. Wiener Gemeindebezirk.
Die Wohnung verfügt über eine Wohnfläche von ca. 34 m² und befindet sich im 4. Liftstock. Hohe Räume und klassische Altbaudetails verleihen ihr den typischen Altbaucharakter und schaffen ein angenehmes Wohnambiente.
Die Raumaufteilung umfasst einen Vorraum mit maßgefertigten Einbauschränken und viel Stauraum, ein Badezimmer mit Dusche, WC und Waschmaschinenanschluss, eine voll ausgestattete moderne Küche sowie einen Wohn- und Schlafraum.
Im Zuge einer umfassenden Generalsanierung im Jahr 2018 wurden sämtliche Leitungen (Strom und Wasser), die Heizungsanlage sowie Böden und Fliesen erneuert. Darüber hinaus wurden das Badezimmer und die moderne Einbauküche neu installiert.
Die Wohnung wird inklusive Küche, Einbauschränken und weiterer Möblierung übergeben und kann bei Bedarf vollständig möbliert übernommen werden. Dadurch sind keine zusätzlichen Investitionen erforderlich und ein sofortiger Bezug ist möglich.
Das Gebäude selbst wurde vor einigen Jahren umfassend saniert. In diesem Zusammenhang erfolgte auch der Ausbau des Dachgeschosses sowie der Einbau eines Personenaufzuges.
Die Lage überzeugt durch eine ausgezeichnete Infrastruktur. Supermärkte, Banken, Ärzte, Apotheken sowie zahlreiche Restaurants befinden sich in unmittelbarer Umgebung.Auch die öffentliche Verkehrsanbindung ist sehr gut. Die Buslinien 12A, 14A und 59A sind in wenigen Gehminuten erreichbar. Zusätzlich bestehen Anbindungen über die Straßenbahnlinie 62 sowie über den Verkehrsknotenpunkt Matzleinsdorfer Platz mit S-Bahn, Badner Bahn und weiteren Straßenbahnlinien.
Zusätzlich profitiert die Lage künftig vom Ausbau der U-Bahnlinie U2. Die neue Station Reinprechtsdorfer Straße sowie die Verlängerung der U2 bis Matzleinsdorfer Platz sind derzeit für etwa 2030 geplant.
Überzeugen Sie sich selbst von diesem charmanten Objekt.
Für Besichtigungen und weitere Informationen stehen wir Ihnen gerne zur Verfügung.
Wir weisen darauf hin, dass zwischen dem Vermittler und dem zu vermittelnden Dritten ein familiäres oder wirtschaftliches Naheverhältnis besteht.
Der Vermittler ist als Doppelmakler tätig.
Infrastruktur / Entfernungen
Gesundheit
Arzt <500m
Apotheke <500m
Klinik <1.000m
Krankenhaus <1.000m
Kinder & Schulen
Schule <500m
Kindergarten <500m
Universität <1.000m
Höhere Schule <1.500m
Nahversorgung
Supermarkt <500m
Bäckerei <500m
Einkaufszentrum <1.000m
Sonstige
Geldautomat <500m
Bank <500m
Post <500m
Polizei <1.000m
Verkehr
Bus <500m
U-Bahn <500m
Straßenbahn <500m
Bahnhof <500m
Autobahnanschluss <3.000m
Angaben Entfernung Luftlinie / Quelle: OpenStreetMap
Objektdaten
Ausstattung
- Bad mit Dusche
- Einbauküche
- Steinboden
- Parkettboden
- Etage Heizung
- Personen Fahrstuhl
Zustand
- Zustand
- NEUWERTIG
- Baujahr
- 1900
- Alter
- ALTBAU
- HWB
- 149.03 kWh/m² pro Jahr
- Klasse HWB
- E
- fGEE
- 3.22
- Klasse fGEE
- E
Flächen
- Anzahl der Zimmer
- 1
- Anzahl der Badezimmer
- 1
- Anzahl der sep. WCs
- 1
- Wohnfläche
- 34m²
Kosten
- Kaufpreis Brutto
- € 229.000,00
- Betriebskosten
- € 77,52
- Sonstige Kosten
- € 62,70
Verwaltung
- Verfügbar ab
- ab sofort
Wohnungen zum Kaufen in Österreich
- Bezirk Gemeindebezirk Margareten
- Bezirk Gemeindebezirk Margareten
- Bezirk Gemeindebezirk Margareten
- Bezirk Gemeindebezirk Mariahilf
- Bezirk Gemeindebezirk Mariahilf
- Bezirk Gemeindebezirk Mariahilf
- Bezirk Gemeindebezirk Wieden
- Bezirk Gemeindebezirk Wieden
- Bezirk Gemeindebezirk Wieden
- Bezirk Gemeindebezirk Neubau
Wohnungen zum Kaufen in Österreich
Andere Besucher suchen nach...
- Immobilien kaufen in 2601 Sollenau
- Immobilien in 4951 Polling im Innkreis, Oberösterreich
- Immobilien in 4742 Pram, Oberösterreich kaufen oder mieten
- Häuser kaufen in 2340 Mödling, Niederösterreich
- Häuser kaufen in 9421 Gemmersdorf, Kärnten
- Wohnungen / Eigentumswohnungen kaufen in 9431 St. Stefan, Kärnten
- Häuser kaufen in Bruck an der Leitha, Niederösterreich
- Immobilien mieten in Krems an der Donau, Niederösterreich
- Häuser zum Kaufen im Bezirk St. Pölten Land, Niederösterreich
- Büro / Praxen mieten in Rohrbach, Oberösterreich