Einsiedlerpark: Herrliche Eckwohnung + Grünblick + Nachmittagssonne + 650m zur U4 + Altwien-Elemente
-
sofort
Beschreibung
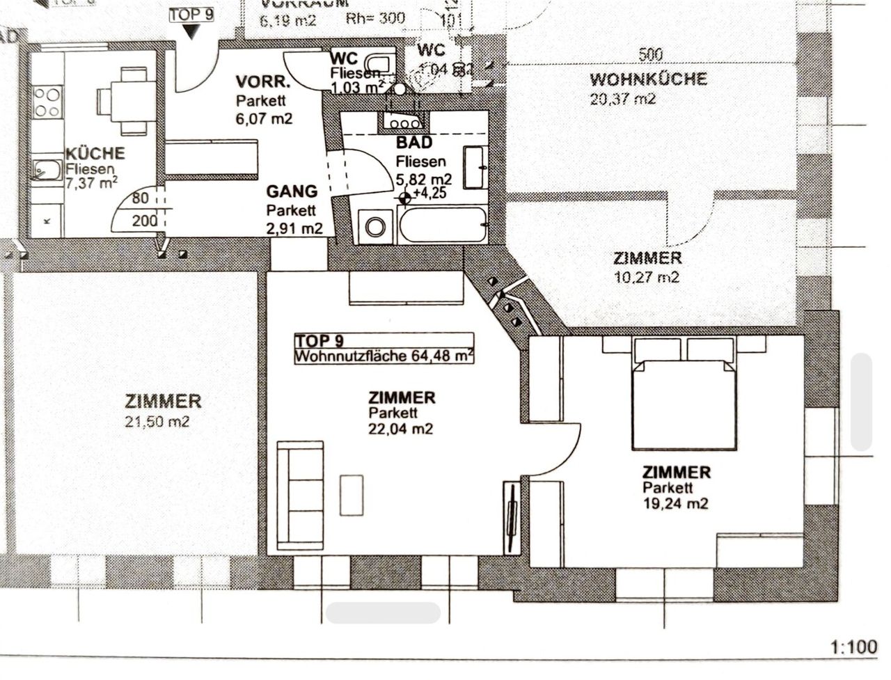
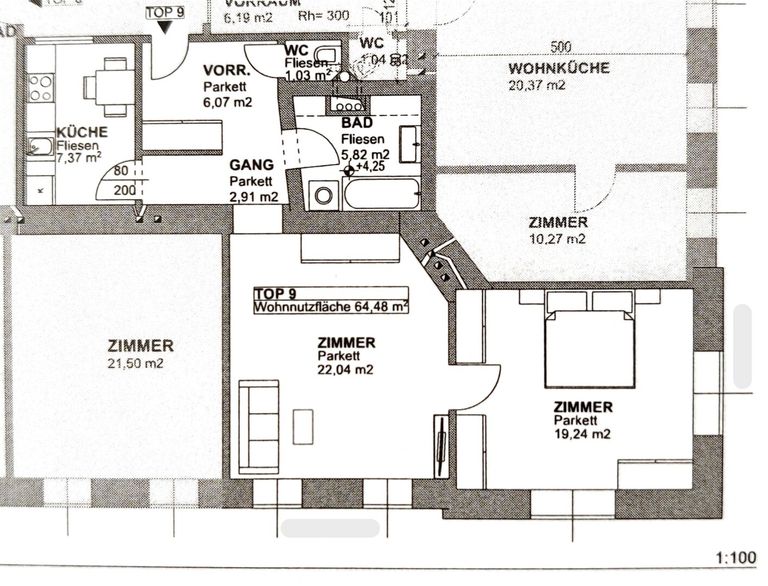
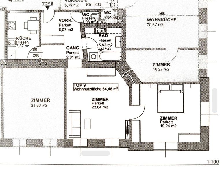
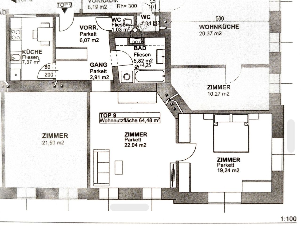
Gerne dürfen wir Ihnen diese herrliche 2-Zimmer Eckwohnung im 1. Liftstock eines Altbaus direkt beim Einsiedlerpark anbieten. Die beiden Zimmer bieten einen schönen Grünblick auf den angrenzenden Park. Die Wohnung ist überwiegend Richtung Westen ausgerichtet. Die Ausstattung mit Fischgrätparkett in den beiden Zimmern, die Alt-Wien-Zimmertüren und die hohen Räume und Fenster sorgen für eine angenehme Wohnatmosphäre. Die Küche befindet sich in einem separaten Raum und ist vom Vorraum erschlossen. Das Bad und die Küche entsprechen einem modernen Standard. Die Wohnung wurde zuletzt etwa 2018 saniert. Überzeugen Sie sich selbst von dieser Gelegenheit.
Grundriss/Ausstattung:
+ Großzügiges Wohnzimmer mit...
Gerne dürfen wir Ihnen diese herrliche 2-Zimmer Eckwohnung im 1. Liftstock eines Altbaus direkt beim Einsiedlerpark anbieten. Die beiden Zimmer bieten einen schönen Grünblick auf den angrenzenden Park. Die Wohnung ist überwiegend Richtung Westen ausgerichtet. Die Ausstattung mit Fischgrätparkett in den beiden Zimmern, die Alt-Wien-Zimmertüren und die hohen Räume und Fenster sorgen für eine angenehme Wohnatmosphäre. Die Küche befindet sich in einem separaten Raum und ist vom Vorraum erschlossen. Das Bad und die Küche entsprechen einem modernen Standard. Die Wohnung wurde zuletzt etwa 2018 saniert. Überzeugen Sie sich selbst von dieser Gelegenheit.
Grundriss/Ausstattung:
+ Großzügiges Wohnzimmer mit Fenster zum Park
+ Großes Schlafzimmer (Eckzimmer) mit Fenster nach Südwest und Nordwest
+ Küche voll ausgestattet, mit Oberlichte zum Stiegenhausgang und mit Platz für einen kleinen Esstisch
+ Badezimmer mit Dusche, Waschmaschinenanschluss, Waschtisch und Spiegel
+ Vorraum (erschließt Wohnzimmer, Bad, Toilette und Küche)
+ Toilette mit eigenem Handwaschbecken
+ Kellerabteile
Hinweis gemäß Energieausweisvorlagegesetz: Ein Energieausweis wurde vom Eigentümer bzw. Verkäufer, nach unserer Aufklärung über die generell geltende Vorlagepflicht, sowie Aufforderung zu seiner Erstellung noch nicht vorgelegt. Daher gilt zumindest eine dem Alter und der Art des Gebäudes entsprechende Gesamtenergieeffizienz als vereinbart. Wir übernehmen keinerlei Gewähr oder Haftung für die tatsächliche Energieeffizienz der angebotenen Immobilie.
Wir weisen darauf hin, dass zwischen dem Vermittler und dem zu vermittelnden Dritten ein familiäres oder wirtschaftliches Naheverhältnis besteht.
Der Vermittler ist als Doppelmakler tätig.
Objektdaten
Ausstattung
- Kabel/SAT-TV
- Fahrradraum
- Bad mit Dusche
- Einbauküche
- Parkettboden
- Fertigparkettboden
- Etage Heizung
- Befeuerung mit Gas
- Personen Fahrstuhl
- Massiv Bauweise
- Schlüsselfertig mit Keller
Zustand
- Zustand
- GEPFLEGT
- Baujahr
- 1890
- Alter
- ALTBAU
Flächen
- Anzahl der Zimmer
- 2
- Anzahl der Badezimmer
- 1
- Anzahl der sep. WCs
- 1
- Wohnfläche
- 64m²
- Kellerfläche
- 2m²
Kosten
- Kaufpreis Brutto
- € 298.000,00
- Betriebskosten
- € 159,36
- Sonstige Kosten
- € 79,97
Verwaltung
- Verfügbar ab
- sofort
- Ferienimmobilie
- Ja
Wohnungen zum Kaufen in Österreich
- Bezirk Gemeindebezirk Margareten
- Bezirk Gemeindebezirk Margareten
- Bezirk Gemeindebezirk Margareten
- Bezirk Gemeindebezirk Mariahilf
- Bezirk Gemeindebezirk Mariahilf
- Bezirk Gemeindebezirk Mariahilf
- Bezirk Gemeindebezirk Wieden
- Bezirk Gemeindebezirk Wieden
- Bezirk Gemeindebezirk Wieden
- Bezirk Gemeindebezirk Neubau
Wohnungen zum Kaufen in Österreich
Wohnungen zum Kaufen in Österreich
Andere Besucher suchen nach...
- Grundstücke kaufen in 3400 Weidlingbach
- Wohnungen kaufen in 4663 Laakirchen
- Häuser in 7471 Rechnitz
- Wohnungen in 2410 Hainburg an der Donau
- Häuser kaufen in 2432 Schwadorf
- Wohnungen kaufen in 3002 Purkersdorf
- Häuser in 3150 Wilhelmsburg
- Wohnungen kaufen in 3470 Engelmannsbrunn
- Grundstücke kaufen im Bezirk Mattersburg
- Grundstücke kaufen im Bezirk Gmunden