IN DEN STARTLÖCHERN - Neues Lebensgefühl - Edle Terrassenmaisonette in sehr begehrter Lage
€ 1.325.000
€ 11.726 / m²
1070 Wien
-
Erstbezug
-
ca. 2025
-
auf Anfrage
Beschreibung
IN DEN STARTLÖCHERN - Neues Lebensgefühl - Edle Terrassenmaisonette in sehr begehrter Lage. Zum Verkauf gelangen vier traumhafte Terrassenwohnungen mit sehr hochwertiger Ausstattung, alle mit Terrassen und/oder Dachterrassen, in einem neu errichteten, sehr modernen und architektonisch gut durchdachten Dachgeschossausbau. Diese moderne, sehr stilvolle Terrassenmaisonette befindet sich im neu ausgebauten Dachgeschoss einer sehr ansprechenden Stil-Altbauliegenschaft und besticht durch ihre äußerst luxuriöse Ausstattung und die hervorragende, sehr beliebte Lage. Die Wohnung teilt sich auf zwei Ebenen auf: Wohnebene: In dieser Ebene befindet sich ein sehr stilvoller Wohnsalon mit offener Küche, Wohnküche, mit toller Glasfront und Ausgang auf die untere Terrasse mit phantastischem...
IN DEN STARTLÖCHERN - Neues Lebensgefühl - Edle Terrassenmaisonette in sehr begehrter Lage.
Zum Verkauf gelangen vier traumhafte Terrassenwohnungen mit sehr hochwertiger Ausstattung, alle mit Terrassen und/oder Dachterrassen, in einem neu errichteten, sehr modernen und architektonisch gut durchdachten Dachgeschossausbau.
Diese moderne, sehr stilvolle Terrassenmaisonette befindet sich im neu ausgebauten Dachgeschoss einer sehr ansprechenden Stil-Altbauliegenschaft und besticht durch ihre äußerst luxuriöse Ausstattung und die hervorragende, sehr beliebte Lage.
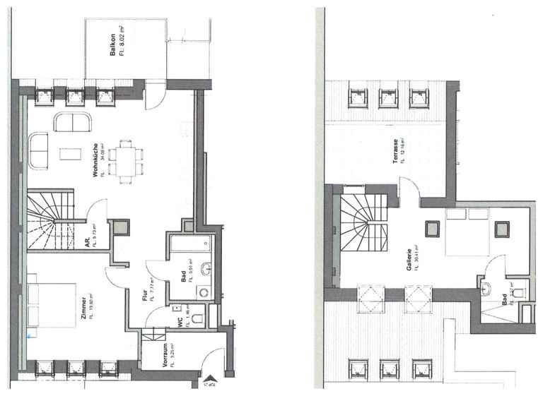
Die Wohnung teilt sich auf zwei Ebenen auf:
Wohnebene: In dieser Ebene befindet sich ein sehr stilvoller Wohnsalon mit offener Küche, Wohnküche, mit toller
Glasfront und Ausgang auf die untere Terrasse mit phantastischem Ausblick. Ebenfalls auf dieser Ebene verfügbar ist ein
kompletter privater Bereich mit Schlafzimmer, herrlichem Badezimmer mit Wanne und Abstellraum, einer Gästetoilette und
einem zentralen Vorraum.
Schlafebene: Erreichbar über eine angefertigte Holztreppe gelangt man in die Galerie/Schlafebene. Auf dieser Ebene sind verfügbar ein
herrliches Galeriezimmer mit Terrassenzugang und mit traumhaftem Ausblick sowie ein zentrales Badezimmer
mit Dusche und Toilette.
Die Räumlichkeiten sind auf Grund edler Materialien sehr exklusiv und luxuriös ausgestattet mit wunderschönen Parkettböden, geschmackvolle Steinfliesen, Deckenspots. Elektrische Außenjalousien, Gegensprechanlage, Klimaanlage sowie Waschmaschinenanschluss sind ebenfalls vorhanden. Eine innovative und energieefficiente Haustechnik überzeugen mit Wärmepumpe, Fussbodenheizung sowie einer Klimaanlage. Sehr gerne können bei Bedarf Garagenstellplätze in der näheren Umgebung angemietet werden.
Sehr gute Infrastruktur und öffentliche Verkehrsanbindung (U3) durch die Nähe zur Begegnungszone MaHi sind gegeben. In unmittelbarer Umgebung befinden sich sehr viele Einkaufsmöglichkeiten, Banken, Schulen und Kinderbetreuungseinrichtungen. Die nahegelegenen Grünanlagen, trendige Cafes und tolle Geschäfte bieten zahlreiche Erholungs- und Freizeitmöglichkeiten und laden zum Verweilen ein.
Sehr gerne steht Ihnen Herr Martin Wicho für weitere Informationen und einer Besichtigung unter 0660/160 60 00 oder unter wicho@dimagimmobilien.at zu Verfügung.
Fotos und Pläne übermitteln wir Ihnen gerne auf Anfrage.
Vielen Dank.
Dieses Projekt befindet sich bereits in der Bewilligungsphase. Baubeginn ist mit Frühjahr 2025 geplant, Fertigstellung ist mit Frühjahr 2026 geplant. Von großem Vorteil ist ein gewisses Maß an Mitspracherecht, was die Raumaufteilung und die Ausstattung betrifft!
Zum Verkauf gelangen vier traumhafte Terrassenwohnungen mit sehr hochwertiger Ausstattung, alle mit Terrassen und/oder Dachterrassen, in einem neu errichteten, sehr modernen und architektonisch gut durchdachten Dachgeschossausbau.
Diese moderne, sehr stilvolle Terrassenmaisonette befindet sich im neu ausgebauten Dachgeschoss einer sehr ansprechenden Stil-Altbauliegenschaft und besticht durch ihre äußerst luxuriöse Ausstattung und die hervorragende, sehr beliebte Lage.
Die Wohnung teilt sich auf zwei Ebenen auf:
Wohnebene: In dieser Ebene befindet sich ein sehr stilvoller Wohnsalon mit offener Küche, Wohnküche, mit toller
Glasfront und Ausgang auf die untere Terrasse mit phantastischem Ausblick. Ebenfalls auf dieser Ebene verfügbar ist ein
kompletter privater Bereich mit Schlafzimmer, herrlichem Badezimmer mit Wanne und Abstellraum, einer Gästetoilette und
einem zentralen Vorraum.
Schlafebene: Erreichbar über eine angefertigte Holztreppe gelangt man in die Galerie/Schlafebene. Auf dieser Ebene sind verfügbar ein
herrliches Galeriezimmer mit Terrassenzugang und mit traumhaftem Ausblick sowie ein zentrales Badezimmer
mit Dusche und Toilette.
Die Räumlichkeiten sind auf Grund edler Materialien sehr exklusiv und luxuriös ausgestattet mit wunderschönen Parkettböden, geschmackvolle Steinfliesen, Deckenspots. Elektrische Außenjalousien, Gegensprechanlage, Klimaanlage sowie Waschmaschinenanschluss sind ebenfalls vorhanden. Eine innovative und energieefficiente Haustechnik überzeugen mit Wärmepumpe, Fussbodenheizung sowie einer Klimaanlage. Sehr gerne können bei Bedarf Garagenstellplätze in der näheren Umgebung angemietet werden.
Sehr gute Infrastruktur und öffentliche Verkehrsanbindung (U3) durch die Nähe zur Begegnungszone MaHi sind gegeben. In unmittelbarer Umgebung befinden sich sehr viele Einkaufsmöglichkeiten, Banken, Schulen und Kinderbetreuungseinrichtungen. Die nahegelegenen Grünanlagen, trendige Cafes und tolle Geschäfte bieten zahlreiche Erholungs- und Freizeitmöglichkeiten und laden zum Verweilen ein.
Sehr gerne steht Ihnen Herr Martin Wicho für weitere Informationen und einer Besichtigung unter 0660/160 60 00 oder unter wicho@dimagimmobilien.at zu Verfügung.
Fotos und Pläne übermitteln wir Ihnen gerne auf Anfrage.
Vielen Dank.
Dieses Projekt befindet sich bereits in der Bewilligungsphase. Baubeginn ist mit Frühjahr 2025 geplant, Fertigstellung ist mit Frühjahr 2026 geplant. Von großem Vorteil ist ein gewisses Maß an Mitspracherecht, was die Raumaufteilung und die Ausstattung betrifft!
| Angaben gemäß gesetzlichem Erfordernis: | |||
| Heizwärmebedarf: | 19.0 kWh/(m²a) | ||
| Klasse Heizwärmebedarf: | A+ | ||
Objektdaten
Ausstattung
- WG geeignet
- Räume veränderbar
- Kamin
- Klimatisiert
- Rollstuhlgerecht
- Kabel/SAT-TV
- Barrierefrei
- Unterkellert
- Zentralheizung
- Erdwärme
- Personen Fahrstuhl
- Kamera
- Massiv Bauweise
- Neubaustandard
- Aussichtslage
- Aussichtslage Unverbaubar
- Barrierefrei
- Zeigelmassiv
- Bus
- Eisenbahn
- Gegensprechanlage
- Kabel/SAT-TV
- Kamin
- Sonstiges
- Rollstuhlgerecht
- Ruhe Lage
- Räume veränderbar
- Kabel/SAT-TV
- Sicherheitsdienst
- Sonnenschutz
- Sonnige Lage
- Stadtzentrum
- Straßenbahn
- U-Bahn
- Zentralheizung mit Wärmepumpe
- Barrierefrei
- Kabel/SAT-TV
- Kamin
- Rollstuhlgerecht
- Räume veränderbar
- Kabel/SAT-TV
Zustand
- Zustand
- ERSTBEZUG
- Baujahr
- ca. 2025
- Altlasten
- Keine Lasten, lastenfreie Übergabe
- Alter
- NEUBAU
Flächen
- Anzahl der Zimmer
- 3
- Anzahl der Schlafzimmer
- 2
- Anzahl der Badezimmer
- 2
- Anzahl der sep. WCs
- 2
- Anzahl der Balkone
- 1
- Anzahl der Terrassen
- 1
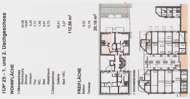
- Wohnfläche
- 113m²
- Kellerfläche
- 3m²
- Terrassenfläche
- 1m²
Kosten
- Kaufpreis
- € 1.325.000,00
- Nebenkosten
- € 300,00
- Betriebskosten Brutto
- € 300,00
Verwaltung
- Verfügbar ab
- auf Anfrage
Wohnungen zum Kaufen in Österreich
- Bezirk Gemeindebezirk Neubau
- Bezirk Gemeindebezirk Neubau
- Bezirk Gemeindebezirk Neubau
- Bezirk Gemeindebezirk Mariahilf
- Bezirk Gemeindebezirk Mariahilf
- Bezirk Gemeindebezirk Mariahilf
- Bezirk Gemeindebezirk Josefstadt
- Bezirk Gemeindebezirk Josefstadt
- Bezirk Gemeindebezirk Josefstadt
- Bezirk Gemeindebezirk Rudolfsheim-Fünfhaus
Wohnungen zum Kaufen in Österreich
Wohnungen zum Kaufen in Österreich
Andere Besucher suchen nach...
- Grundstücke kaufen in 3400 Weidlingbach
- Wohnungen kaufen in 4663 Laakirchen
- Häuser in 7471 Rechnitz
- Wohnungen in 2410 Hainburg an der Donau
- Häuser kaufen in 2432 Schwadorf
- Wohnungen kaufen in 3002 Purkersdorf
- Häuser in 3150 Wilhelmsburg
- Wohnungen kaufen in 3470 Engelmannsbrunn
- Grundstücke kaufen im Bezirk Mattersburg
- Grundstücke kaufen im Bezirk Gmunden