IN DEN STARTLÖCHERN - Neues Lebensgefühl - Einzigartiges Townhouse in der Stadt
€ 925.000
€ 9.635 / m²
1070 Wien
-
Erstbezug
-
ca. 2025
-
auf Anfrage
Beschreibung
IN DEN STARTLÖCHERN - Neues Lebensgefühl - Einzigartiges Townhouse in der Stadt. Zum Verkauf gelangen zwei einzigartige Townhouses mit sehr hochwertiger Ausstattung. Beide Häuser mit Eigengärten und Terrassen in einem neu errichteten, sehr modernen und architektonisch gut durchdachten Hofgebäude. Dieses moderne, sehr stilvolle Reihenhaus befindet sich im Hofbereich einer sehr ansprechenden Stil-Altbauliegenschaft in hervorragender Lage und besticht durch ihre äußerst luxuriöse Ausstattung und die hervorragende, sehr beliebte Lage. Das Gebäude teilt sich auf vier Ebenen auf, welche jeweils durch das Treppenhaus mit einer wunderschönen Holztreppe verbunden sind: Erdgeschoss: Auf dieser Ebene befindet sich die Wohnküche, mit toller Glasfront und Ausgang...
IN DEN STARTLÖCHERN - Neues Lebensgefühl - Einzigartiges Townhouse in der Stadt.
Zum Verkauf gelangen zwei einzigartige Townhouses mit sehr hochwertiger Ausstattung. Beide Häuser mit Eigengärten und Terrassen in einem neu errichteten, sehr modernen und architektonisch gut durchdachten Hofgebäude.
Dieses moderne, sehr stilvolle Reihenhaus befindet sich im Hofbereich einer sehr ansprechenden Stil-Altbauliegenschaft in hervorragender Lage und besticht durch ihre äußerst luxuriöse Ausstattung und die hervorragende, sehr beliebte Lage.
Das Gebäude teilt sich auf vier Ebenen auf, welche jeweils durch das Treppenhaus mit einer wunderschönen Holztreppe verbunden sind:
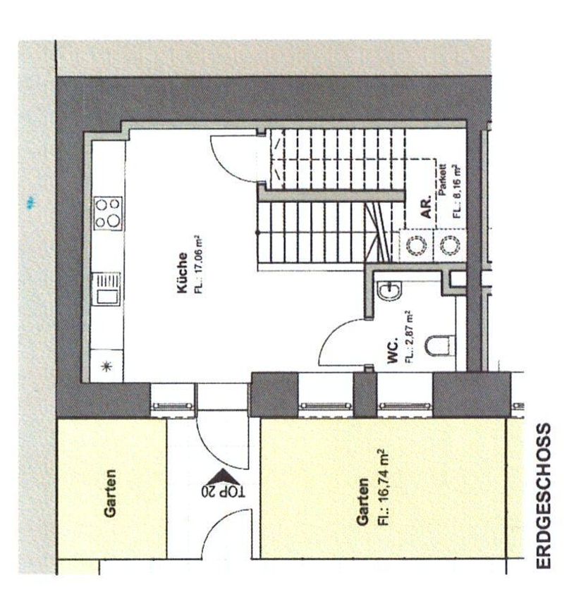
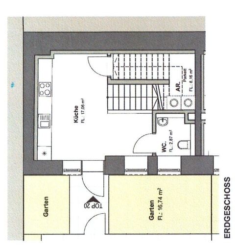
Erdgeschoss: Auf dieser Ebene befindet sich die Wohnküche, mit toller Glasfront und Ausgang in den Eigengarten. Ebenfalls auf dieser Ebene
verfügbar sind ein großer Abstellraum, eine Gästetoilette und der Eingangsbereich.
Wohnzimmer: Auf dieser Ebene sind verfügbar ein großzügiges Wohnzimmer, ebenfalls mit Glasfront, sowie eine zweite Toilette mit
Waschbecken.
Schlafbereich: Auf dieser Ebene befindet sich ein herrlicher, privater Schlafbereich mit angeschlossenem Badezimmer mit großer Dusche,
Doppelwaschbecken und Toilette.
Galeriebereich: Dieser Bereich kann sehr vielseitig, je nach Bedarf, verwendet werden. Auf dieser Ebene befindet sich auch eine südseitige
Terrasse.
Die Räumlichkeiten sind auf Grund edler Materialien sehr exklusiv und luxuriös ausgestattet mit wunderschönen Parkettböden, geschmackvolle Steinfliesen, Deckenspots. Elektrische Außenjalousien, Gegensprechanlage, Klimaanlage sowie Waschmaschinenanschluss sind ebenfalls vorhanden. Eine innovative und energieefficiente Haustechnik überzeugen mit Wärmepumpe, Fussbodenheizung sowie einer Klimaanlage. Sehr gerne können bei Bedarf Garagenstellplätze in der näheren Umgebung angemietet werden.
Sehr gute Infrastruktur und öffentliche Verkehrsanbindung (U3) durch die Nähe zur Begegnungszone MaHi sind gegeben. In unmittelbarer Umgebung befinden sich sehr viele Einkaufsmöglichkeiten, Banken, Schulen und Kinderbetreuungseinrichtungen. Die nahegelegenen Grünanlagen, trendige Cafes und tolle Geschäfte bieten zahlreiche Erholungs- und Freizeitmöglichkeiten und laden zum Verweilen ein.
Sehr gerne steht Ihnen Herr Martin Wicho für weitere Informationen und einer Besichtigung unter 0660/160 60 00 oder unter wicho@dimagimmobilien.at zu Verfügung.
Fotos und Pläne übermitteln wir Ihnen gerne auf Anfrage.
Vielen Dank.
Dieses Projekt befindet sich bereits in der Bewilligungsphase. Baubeginn ist mit Frühjahr 2025 geplant, Fertigstellung ist mit Frühjahr 2026 geplant. Von großem Vorteil ist ein gewisses Maß an Mitspracherecht, was die Raumaufteilung und die Ausstattung betrifft!
Zum Verkauf gelangen zwei einzigartige Townhouses mit sehr hochwertiger Ausstattung. Beide Häuser mit Eigengärten und Terrassen in einem neu errichteten, sehr modernen und architektonisch gut durchdachten Hofgebäude.
Dieses moderne, sehr stilvolle Reihenhaus befindet sich im Hofbereich einer sehr ansprechenden Stil-Altbauliegenschaft in hervorragender Lage und besticht durch ihre äußerst luxuriöse Ausstattung und die hervorragende, sehr beliebte Lage.
Das Gebäude teilt sich auf vier Ebenen auf, welche jeweils durch das Treppenhaus mit einer wunderschönen Holztreppe verbunden sind:
Erdgeschoss: Auf dieser Ebene befindet sich die Wohnküche, mit toller Glasfront und Ausgang in den Eigengarten. Ebenfalls auf dieser Ebene
verfügbar sind ein großer Abstellraum, eine Gästetoilette und der Eingangsbereich.
Wohnzimmer: Auf dieser Ebene sind verfügbar ein großzügiges Wohnzimmer, ebenfalls mit Glasfront, sowie eine zweite Toilette mit
Waschbecken.
Schlafbereich: Auf dieser Ebene befindet sich ein herrlicher, privater Schlafbereich mit angeschlossenem Badezimmer mit großer Dusche,
Doppelwaschbecken und Toilette.
Galeriebereich: Dieser Bereich kann sehr vielseitig, je nach Bedarf, verwendet werden. Auf dieser Ebene befindet sich auch eine südseitige
Terrasse.
Die Räumlichkeiten sind auf Grund edler Materialien sehr exklusiv und luxuriös ausgestattet mit wunderschönen Parkettböden, geschmackvolle Steinfliesen, Deckenspots. Elektrische Außenjalousien, Gegensprechanlage, Klimaanlage sowie Waschmaschinenanschluss sind ebenfalls vorhanden. Eine innovative und energieefficiente Haustechnik überzeugen mit Wärmepumpe, Fussbodenheizung sowie einer Klimaanlage. Sehr gerne können bei Bedarf Garagenstellplätze in der näheren Umgebung angemietet werden.
Sehr gute Infrastruktur und öffentliche Verkehrsanbindung (U3) durch die Nähe zur Begegnungszone MaHi sind gegeben. In unmittelbarer Umgebung befinden sich sehr viele Einkaufsmöglichkeiten, Banken, Schulen und Kinderbetreuungseinrichtungen. Die nahegelegenen Grünanlagen, trendige Cafes und tolle Geschäfte bieten zahlreiche Erholungs- und Freizeitmöglichkeiten und laden zum Verweilen ein.
Sehr gerne steht Ihnen Herr Martin Wicho für weitere Informationen und einer Besichtigung unter 0660/160 60 00 oder unter wicho@dimagimmobilien.at zu Verfügung.
Fotos und Pläne übermitteln wir Ihnen gerne auf Anfrage.
Vielen Dank.
Dieses Projekt befindet sich bereits in der Bewilligungsphase. Baubeginn ist mit Frühjahr 2025 geplant, Fertigstellung ist mit Frühjahr 2026 geplant. Von großem Vorteil ist ein gewisses Maß an Mitspracherecht, was die Raumaufteilung und die Ausstattung betrifft!
| Angaben gemäß gesetzlichem Erfordernis: | |||
| Heizwärmebedarf: | 19.0 kWh/(m²a) | ||
| Klasse Heizwärmebedarf: | A+ | ||
Objektdaten
Ausstattung
- WG geeignet
- Räume veränderbar
- Kamin
- Klimatisiert
- Gartennutzung
- Kabel/SAT-TV
- Barrierefrei
- Unterkellert
- Zentralheizung
- Erdwärme
- Kamera
- Massiv Bauweise
- Neubaustandard
- Barrierefrei
- Zeigelmassiv
- Bus
- Eisenbahn
- Gegensprechanlage
- Kabel/SAT-TV
- Kamin
- Sonstiges
- Ruhe Lage
- Räume veränderbar
- Kabel/SAT-TV
- Sicherheitsdienst
- Sonnenschutz
- Sonnige Lage
- Stadtzentrum
- Straßenbahn
- U-Bahn
- Zentralheizung mit Wärmepumpe
- Barrierefrei
- Kabel/SAT-TV
- Kamin
- Räume veränderbar
- Kabel/SAT-TV
Zustand
- Zustand
- ERSTBEZUG
- Baujahr
- ca. 2025
- Altlasten
- Keine Lasten, lastenfreie Übergabe
- Alter
- NEUBAU
Flächen
- Anzahl der Zimmer
- 3.5
- Anzahl der Schlafzimmer
- 2
- Anzahl der Badezimmer
- 1
- Anzahl der sep. WCs
- 3
- Anzahl der Terrassen
- 1
- Wohnfläche
- 96m²
- Gartenfläche
- 25m²
- Kellerfläche
- 3m²
- Terrassenfläche
- 1m²
Kosten
- Kaufpreis
- € 925.000,00
- Nebenkosten
- € 225,00
- Betriebskosten Brutto
- € 225,00
Verwaltung
- Verfügbar ab
- auf Anfrage
Wohnungen zum Kaufen in Österreich
- Bezirk Gemeindebezirk Neubau
- Bezirk Gemeindebezirk Neubau
- Bezirk Gemeindebezirk Neubau
- Bezirk Gemeindebezirk Mariahilf
- Bezirk Gemeindebezirk Mariahilf
- Bezirk Gemeindebezirk Mariahilf
- Bezirk Gemeindebezirk Josefstadt
- Bezirk Gemeindebezirk Josefstadt
- Bezirk Gemeindebezirk Josefstadt
- Bezirk Gemeindebezirk Rudolfsheim-Fünfhaus
Wohnungen zum Kaufen in Österreich
Wohnungen zum Kaufen in Österreich
Andere Besucher suchen nach...
- Grundstücke kaufen in 3400 Weidlingbach
- Wohnungen kaufen in 4663 Laakirchen
- Häuser in 7471 Rechnitz
- Wohnungen in 2410 Hainburg an der Donau
- Häuser kaufen in 2432 Schwadorf
- Wohnungen kaufen in 3002 Purkersdorf
- Häuser in 3150 Wilhelmsburg
- Wohnungen kaufen in 3470 Engelmannsbrunn
- Grundstücke kaufen im Bezirk Mattersburg
- Grundstücke kaufen im Bezirk Gmunden