Lib.at Logo
Startseite Makler Liste Gespeicherte Immobilien
Einloggen oder Registrieren Für Makler

++NEU++ Exklusive 3-Zimmer Altbauwohnung mit bewilligtem Balkon und High-End Ausstattung in TOP-Location im 9. Bezirk!

€ 439.000
€ 7.197 / m²
1090 Wien
  • Erstbezug
  • sofort

Beschreibung

++ TOP 3-Zimmer-Altbau-Erstbezug mit bewilligtem Balkon in begehrter Lage des 9. Bezirks!

Zwei getrennte Schlafzimmer | bewilligter Balkon | hochwertige Ausstattung | Gemeinschaftsgarten | Ost-West-Ausrichtung | perfekte Infrastruktur


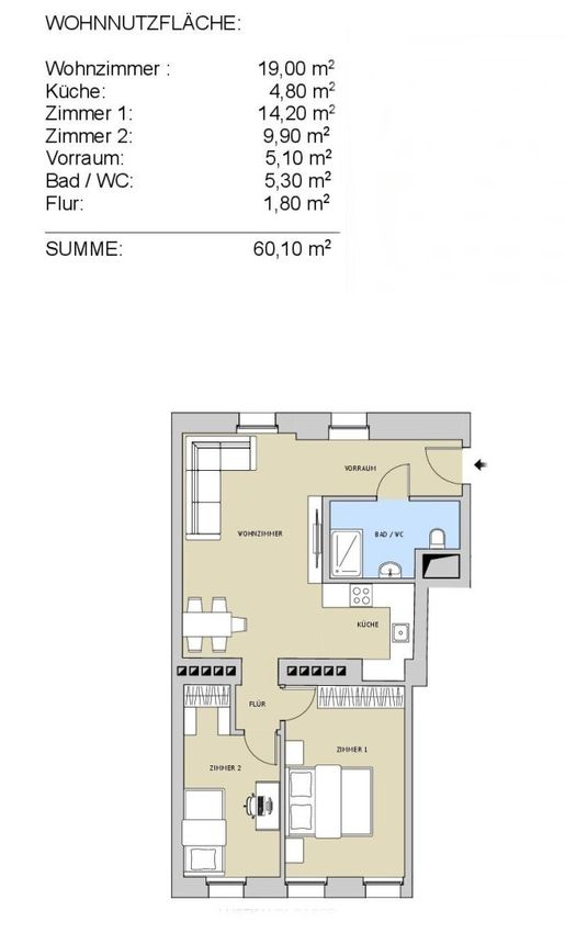
Zum Verkauf gelangt eine exzellent aufgeteilte, lichtdurchflutete Premium-Altbauwohnung mit ca. 60,10 m² Wohnfläche, im 3. Liftstock eines gepflegten Stilaltbaus – in einem der charmantesten Grätzel Wiens, nahe Sobieskiplatz.

>> BEZUGSFERTIG ab sofort!

>> Balkon (ca. 7,80 m²) bereits baubehördlich bewilligt!


Raumaufteilung:

  • einladender Vorraum

  • geräumiges helles Wohnzimmer mit Möglichkeit zum Balkonausgang

  • optisch getrennte Küche (alle Anschlüsse vorhanden)

  • 2 separat begehbare Schlafzimmer

    ...

++ TOP 3-Zimmer-Altbau-Erstbezug mit bewilligtem Balkon in begehrter Lage des 9. Bezirks!


Zwei getrennte Schlafzimmer | bewilligter Balkon | hochwertige Ausstattung | Gemeinschaftsgarten | Ost-West-Ausrichtung | perfekte Infrastruktur




Zum Verkauf gelangt eine exzellent aufgeteilte, lichtdurchflutete Premium-Altbauwohnung mit ca. 60,10 m² Wohnfläche, im 3. Liftstock eines gepflegten Stilaltbaus – in einem der charmantesten Grätzel Wiens, nahe Sobieskiplatz.


>> BEZUGSFERTIG ab sofort!


>> Balkon (ca. 7,80 m²) bereits baubehördlich bewilligt!




Raumaufteilung:




  • einladender Vorraum




  • geräumiges helles Wohnzimmer mit Möglichkeit zum Balkonausgang




  • optisch getrennte Küche (alle Anschlüsse vorhanden)




  • 2 separat begehbare Schlafzimmer




  • exklusives Bad mit Walk-in-Dusche, Waschtisch & WC




  • Gemeinschaftsgarten im Innenhof




  • Balkon ca. 7,80 m² (bewilligt)






Ausstattung im Überblick:


++ hochwertiger Vollholzparkettboden


++ elegante, moderne Fliesen


++ Fußbodenheizung


++ 3-fach verglaste Qualitätsfenster


++ modernes Lichtkonzept


++ Netzwerkverkabelung (TV/Internet)


++ stilvoll ausgestattetes Badezimmer


++ Technik auf dem neuesten Stand


 


Das Gebäude:


Stilvoller Altbau mit historischer Substanz, gepflegt und mit Lift. Die Wohnung liegt im 3. Obergeschoss.


 


Lage & Infrastruktur – alles vor der Tür:


Der 9. Bezirk zählt zu den beliebtesten Wohnlagen Wiens – urban, belebt und doch grün.


+ Nahversorgung: Supermärkte, Banken, Apotheken, Ärzte, Lokale und Gastronomie (Sobieskiplatz fußläufig)


+ Bildung & Gesundheit: Kindergärten, Schulen, Gymnasien sowie medizinische Einrichtungen in unmittelbarer Umgebung


+ Parks & Freizeit: Gemeinschaftsgarten im Haus + zahlreiche Grünflächen in Gehweite


 


Top-Verkehrsanbindung:


- U6 Währinger Straße / Volksoper (ca. 5 Gehminuten)


- Straßenbahnlinien: 37, 38, 40, 41, 42


- Buslinie 40A


- Franz-Josefs-Bahnhof in ca. 10 Gehminuten erreichbar


 


Kaufpreis:


EUR 439.000.-
Erstbezug nach Sanierung!


 


Vereinbaren Sie noch heute Ihre Besichtigung und überzeugen Sie sich selbst von diesem besonderen Angebot!



Ihr Ansprechperson: Herr Sadia ALPEROVITS
Telefonnummer: +43 660 380 7232
Email: sa@direktfinanzimmo.at
gerne zur Verfügung!
Firmenname: gb-direkt Finanzberatung & Immobilienhandel GmbH
A-1120 Wien, Aßmayergasse 60/1
Bitte haben Sie Verständnis, dass wir aufgrund der Nachweispflicht gegenüber dem Eigentümer nur Anfragen
mit VOLLSTÄNDIGEN Kontaktdaten (Name, Telefon, Email) beantworten können.
*******************************************


Kaufnebenkosten:
3,5 % Grunderwerbsteuer
1,1 % Grundbucheintragungsgebühr (= entfällt bei Eigennutzung!)
1,5 % Vertragserrichtungskosten + 20 % MwSt.
3 % Provision + 20 % MwSt.
Energieausweis wird nachgereicht.
Die Informationen beruhen teilweise auf Angaben des Eigentümers und sind ohne Gewähr! Wir haften daher nicht für deren Richtigkeit.
Irrtümer und Änderungen sowie Zwischenverkauf vorbehalten.
Wir möchten darauf hinweisen, dass zwischen GB-Direkt Finanzberatung GmbH und dem Auftraggeber ein wirtschaftliches Naheverhältnis besteht.
Direkt Finanz Immo GmbH ist als Doppelmakler tätig.


Wir weisen darauf hin, dass zwischen dem Vermittler und dem zu vermittelnden Dritten ein familiäres oder wirtschaftliches Naheverhältnis besteht.


Infrastruktur / Entfernungen

Gesundheit
Arzt <250m
Apotheke <250m
Klinik <250m
Krankenhaus <500m
Kinder & Schulen
Schule <250m
Kindergarten <250m
Universität <250m
Höhere Schule <250m
Nahversorgung
Supermarkt <250m
Bäckerei <250m
Einkaufszentrum <1.750m
Sonstige
Geldautomat <250m
Bank <500m
Post <250m
Polizei <750m
Verkehr
Bus <250m
U-Bahn <250m
Straßenbahn <250m
Bahnhof <250m
Autobahnanschluss <1.750m
Angaben Entfernung Luftlinie / Quelle: OpenStreetMap

Objektdaten

Ausstattung

  • Gartennutzung
  • DV Verkabelung
  • Bad mit Dusche
  • Fliesenboden
  • Parkettboden
  • Fußbodenheizung
  • Befeuerung mit Gas
  • Personen Fahrstuhl
  • Ausrichtung Balkon/Terrasse - West

Zustand

Zustand
ERSTBEZUG
Baujahr
1900
Alter
ALTBAU
HWB
82.8 kWh/m² pro Jahr
Klasse HWB
C

Flächen

Anzahl der Zimmer
3
Anzahl der Badezimmer
1
Anzahl der sep. WCs
1
Anzahl der Balkone
1
Wohnfläche
61m²

Kosten

Kaufpreis Brutto
€ 439.000,00
Betriebskosten
€ 125,87
Sonstige Kosten
€ 85,66

Verwaltung

Verfügbar ab
sofort