++NEU++ Exklusive 3-Zimmer Altbauwohnung mit bewilligtem Balkon und High-End Ausstattung in TOP-Location im 9. Bezirk!
-
Erstbezug
-
sofort
Beschreibung
++ TOP 3-Zimmer-Altbau-Erstbezug mit bewilligtem Balkon in begehrter Lage des 9. Bezirks!
Zwei getrennte Schlafzimmer | bewilligter Balkon | hochwertige Ausstattung | Gemeinschaftsgarten | Ost-West-Ausrichtung | perfekte Infrastruktur
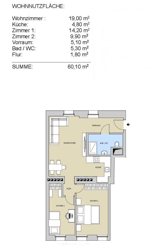
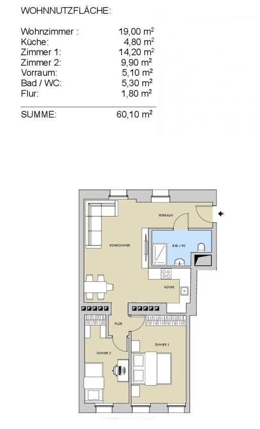
Zum Verkauf gelangt eine exzellent aufgeteilte, lichtdurchflutete Premium-Altbauwohnung mit ca. 60,10 m² Wohnfläche, im 3. Liftstock eines gepflegten Stilaltbaus – in einem der charmantesten Grätzel Wiens, nahe Sobieskiplatz.
>> BEZUGSFERTIG ab sofort!
>> Balkon (ca. 7,80 m²) bereits baubehördlich bewilligt!
Raumaufteilung:
-
einladender Vorraum
-
geräumiges helles Wohnzimmer mit Möglichkeit zum Balkonausgang
-
optisch getrennte Küche (alle Anschlüsse vorhanden)
-
2 separat begehbare Schlafzimmer
...
++ TOP 3-Zimmer-Altbau-Erstbezug mit bewilligtem Balkon in begehrter Lage des 9. Bezirks!
Zwei getrennte Schlafzimmer | bewilligter Balkon | hochwertige Ausstattung | Gemeinschaftsgarten | Ost-West-Ausrichtung | perfekte Infrastruktur
Zum Verkauf gelangt eine exzellent aufgeteilte, lichtdurchflutete Premium-Altbauwohnung mit ca. 60,10 m² Wohnfläche, im 3. Liftstock eines gepflegten Stilaltbaus – in einem der charmantesten Grätzel Wiens, nahe Sobieskiplatz.
>> BEZUGSFERTIG ab sofort!
>> Balkon (ca. 7,80 m²) bereits baubehördlich bewilligt!
Raumaufteilung:
einladender Vorraum
geräumiges helles Wohnzimmer mit Möglichkeit zum Balkonausgang
optisch getrennte Küche (alle Anschlüsse vorhanden)
2 separat begehbare Schlafzimmer
exklusives Bad mit Walk-in-Dusche, Waschtisch & WC
Gemeinschaftsgarten im Innenhof
Balkon ca. 7,80 m² (bewilligt)
Ausstattung im Überblick:
++ hochwertiger Vollholzparkettboden
++ elegante, moderne Fliesen
++ Fußbodenheizung
++ 3-fach verglaste Qualitätsfenster
++ modernes Lichtkonzept
++ Netzwerkverkabelung (TV/Internet)
++ stilvoll ausgestattetes Badezimmer
++ Technik auf dem neuesten Stand
Das Gebäude:
Stilvoller Altbau mit historischer Substanz, gepflegt und mit Lift. Die Wohnung liegt im 3. Obergeschoss.
Lage & Infrastruktur – alles vor der Tür:
Der 9. Bezirk zählt zu den beliebtesten Wohnlagen Wiens – urban, belebt und doch grün.
+ Nahversorgung: Supermärkte, Banken, Apotheken, Ärzte, Lokale und Gastronomie (Sobieskiplatz fußläufig)
+ Bildung & Gesundheit: Kindergärten, Schulen, Gymnasien sowie medizinische Einrichtungen in unmittelbarer Umgebung
+ Parks & Freizeit: Gemeinschaftsgarten im Haus + zahlreiche Grünflächen in Gehweite
Top-Verkehrsanbindung:
- U6 Währinger Straße / Volksoper (ca. 5 Gehminuten)
- Straßenbahnlinien: 37, 38, 40, 41, 42
- Buslinie 40A
- Franz-Josefs-Bahnhof in ca. 10 Gehminuten erreichbar
Kaufpreis:
EUR 439.000.-
Erstbezug nach Sanierung!
Vereinbaren Sie noch heute Ihre Besichtigung und überzeugen Sie sich selbst von diesem besonderen Angebot!
Ihr Ansprechperson: Herr Sadia ALPEROVITS
Telefonnummer: +43 660 380 7232
Email: sa@direktfinanzimmo.at
gerne zur Verfügung!
Firmenname: gb-direkt Finanzberatung & Immobilienhandel GmbH
A-1120 Wien, Aßmayergasse 60/1
Bitte haben Sie Verständnis, dass wir aufgrund der Nachweispflicht gegenüber dem Eigentümer nur Anfragen
mit VOLLSTÄNDIGEN Kontaktdaten (Name, Telefon, Email) beantworten können.
*******************************************
Kaufnebenkosten:
3,5 % Grunderwerbsteuer
1,1 % Grundbucheintragungsgebühr (= entfällt bei Eigennutzung!)
1,5 % Vertragserrichtungskosten + 20 % MwSt.
3 % Provision + 20 % MwSt.
Energieausweis wird nachgereicht.
Die Informationen beruhen teilweise auf Angaben des Eigentümers und sind ohne Gewähr! Wir haften daher nicht für deren Richtigkeit.
Irrtümer und Änderungen sowie Zwischenverkauf vorbehalten.
Wir möchten darauf hinweisen, dass zwischen GB-Direkt Finanzberatung GmbH und dem Auftraggeber ein wirtschaftliches Naheverhältnis besteht.
Direkt Finanz Immo GmbH ist als Doppelmakler tätig.
Wir weisen darauf hin, dass zwischen dem Vermittler und dem zu vermittelnden Dritten ein familiäres oder wirtschaftliches Naheverhältnis besteht.
Infrastruktur / Entfernungen
Gesundheit
Arzt <250m
Apotheke <250m
Klinik <250m
Krankenhaus <500m
Kinder & Schulen
Schule <250m
Kindergarten <250m
Universität <250m
Höhere Schule <250m
Nahversorgung
Supermarkt <250m
Bäckerei <250m
Einkaufszentrum <1.750m
Sonstige
Geldautomat <250m
Bank <500m
Post <250m
Polizei <750m
Verkehr
Bus <250m
U-Bahn <250m
Straßenbahn <250m
Bahnhof <250m
Autobahnanschluss <1.750m
Angaben Entfernung Luftlinie / Quelle: OpenStreetMap
Objektdaten
Ausstattung
- Gartennutzung
- DV Verkabelung
- Bad mit Dusche
- Fliesenboden
- Parkettboden
- Fußbodenheizung
- Befeuerung mit Gas
- Personen Fahrstuhl
- Ausrichtung Balkon/Terrasse - West
Zustand
- Zustand
- ERSTBEZUG
- Baujahr
- 1900
- Alter
- ALTBAU
- HWB
- 82.8 kWh/m² pro Jahr
- Klasse HWB
- C
Flächen
- Anzahl der Zimmer
- 3
- Anzahl der Badezimmer
- 1
- Anzahl der sep. WCs
- 1
- Anzahl der Balkone
- 1
- Wohnfläche
- 61m²
Kosten
- Kaufpreis Brutto
- € 439.000,00
- Betriebskosten
- € 125,87
- Sonstige Kosten
- € 85,66
Verwaltung
- Verfügbar ab
- sofort
Wohnungen zum Kaufen in Österreich
- Bezirk Gemeindebezirk Alsergrund
- Bezirk Gemeindebezirk Alsergrund
- Bezirk Gemeindebezirk Alsergrund
- Bezirk Gemeindebezirk Josefstadt
- Bezirk Gemeindebezirk Josefstadt
- Bezirk Gemeindebezirk Josefstadt
- Bezirk Gemeindebezirk Brigittenau
- Bezirk Gemeindebezirk Brigittenau
- Bezirk Gemeindebezirk Brigittenau
- Bezirk Gemeindebezirk Innere Stadt
Wohnungen zum Kaufen in Österreich
Wohnungen zum Kaufen in Österreich
Andere Besucher suchen nach...
- Grundstücke kaufen in 3400 Weidlingbach
- Wohnungen kaufen in 4663 Laakirchen
- Häuser in 7471 Rechnitz
- Wohnungen in 2410 Hainburg an der Donau
- Häuser kaufen in 2432 Schwadorf
- Wohnungen kaufen in 3002 Purkersdorf
- Häuser in 3150 Wilhelmsburg
- Wohnungen kaufen in 3470 Engelmannsbrunn
- Grundstücke kaufen im Bezirk Mattersburg
- Grundstücke kaufen im Bezirk Gmunden