FERNBLICK - SANIERUNGSBEDÜRFTIGE 2,5 ZIMMER NAHE U4 FRIEDENSBRÜCKE
Beschreibung
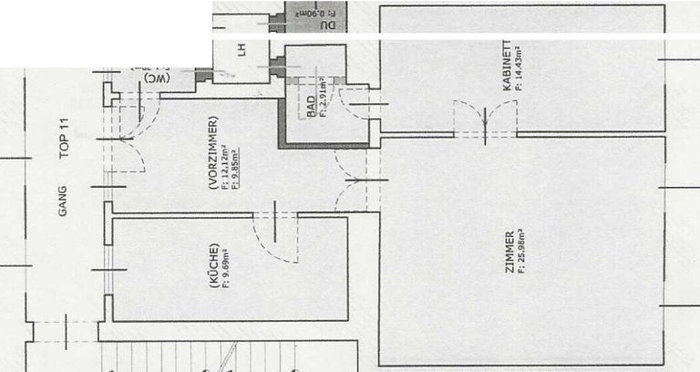
Diese sanierungsbedürftige 2,5 Zimmer Wohnung befindet sich im 3. Stock (Lift geplant) eines schön verzierten Gründerzeithauses aus der Jahrhundertwende. Die Wohnung besticht durch die ausgezeichneten Raumaufteilung, die erhaltenen Stilaltbau-Elemente sowie die hervorragende Infrastruktur (Franz-Josefs-Bahnhof). Zusätzlich bietet der Standort eine ausgezeichnete Verkehrs-Infrastruktur (Nahe U4, Franz-Josefs-Bahnhof).
Diese 2,5 Zimmer-Wohnung erstreckt sich auf ca. 64m² und gliedert sich wie folgt:
- Vorzimmer/Gang
- separates WC
- separates Küchenzimmer
- 1x Schlafzimmer mi Bad en suite
- 1x großes Wohn-/Esszimmer
Mögliche Raumaufteilung nach Sanierung (siehe Pläne):
- Vorzimmer/Gang
- separates WC
- Abstellraum
- separates Küchenzimmer
- 1x großes Wohn-/Esszimmer
- 1x Schlafzimmer mit Schrankraum
Dieses Sanierungskonzept...
Diese sanierungsbedürftige 2,5 Zimmer Wohnung befindet sich im 3. Stock (Lift geplant) eines schön verzierten Gründerzeithauses aus der Jahrhundertwende. Die Wohnung besticht durch die ausgezeichneten Raumaufteilung, die erhaltenen Stilaltbau-Elemente sowie die hervorragende Infrastruktur (Franz-Josefs-Bahnhof). Zusätzlich bietet der Standort eine ausgezeichnete Verkehrs-Infrastruktur (Nahe U4, Franz-Josefs-Bahnhof).
Diese 2,5 Zimmer-Wohnung erstreckt sich auf ca. 64m² und gliedert sich wie folgt:
- Vorzimmer/Gang
- separates WC
- separates Küchenzimmer
- 1x Schlafzimmer mi Bad en suite
- 1x großes Wohn-/Esszimmer
Mögliche Raumaufteilung nach Sanierung (siehe Pläne):
- Vorzimmer/Gang
- separates WC
- Abstellraum
- separates Küchenzimmer
- 1x großes Wohn-/Esszimmer
- 1x Schlafzimmer mit Schrankraum
Dieses Sanierungskonzept kann auf Wunsch und unter Berücksichtigung von Kundenwünschen gegen Aufpreis umgesetzt werden.
Weitere Informationen:
Das Haus verfügt über:
- einen Fahrradabstellplatz
- Innenhof
- Kinderwagen Abstellraum
- eigenes Kellerabteil
- derzeit kein Aufzug - Einbau ist 2026 geplant und kann aus Rücklagen finanziert werden.
Kosten:
- KP: EUR 310.000,-
- monatliche BK inkl. USt.: EUR 165,74
- monatlicher Anteil Reparaturrücklage: EUR 76,25
- GESAMT: EUR 241,99
- Provision: 3% vom KP zzgl. gesetzl. USt.
Kontakt:
Bei Fragen und Besichtigungen kontaktieren Sie bitte Herrn Gamlich unter 0664 54 361 53 oder unter clemens.gamlich@iconia.at.
Weitere Objekte auf: www.iconia.at
Haftungsausschluss:
Alle Angaben sind ohne Gewähr und basieren ausschließlich auf Informationen, die uns von unserem Auftraggeber übermittelt wurden. Eine Weitergabe der übermittelten Daten an Dritte ist nicht gestattet. Wir übernehmen keine Gewähr für die Vollständigkeit, Richtigkeit und Aktualität dieser Angaben. Irrtum und Zwischenverkauf vorbehalten.
Wir weisen darauf hin, dass zwischen dem Vermittler und dem zu vermittelnden Dritten ein familiäres oder wirtschaftliches Naheverhältnis besteht.
Der Vermittler ist als Doppelmakler tätig.
Infrastruktur / Entfernungen
Gesundheit
Arzt <500m
Apotheke <500m
Klinik <500m
Krankenhaus <1.500m
Kinder & Schulen
Schule <500m
Kindergarten <500m
Universität <500m
Höhere Schule <1.000m
Nahversorgung
Supermarkt <500m
Bäckerei <500m
Einkaufszentrum <2.000m
Sonstige
Geldautomat <500m
Bank <500m
Post <500m
Polizei <500m
Verkehr
Bus <500m
U-Bahn <500m
Straßenbahn <500m
Bahnhof <500m
Autobahnanschluss <2.000m
Angaben Entfernung Luftlinie / Quelle: OpenStreetMap
Objektdaten
Ausstattung
- Fahrradraum
- Einbauküche
- Fliesenboden
- Parkettboden
- Etage Heizung
- Befeuerung mit Gas
Zustand
- Zustand
- SANIERUNGSBEDUERFTIG
- Baujahr
- 1892
- Alter
- ALTBAU
- HWB
- 127.1 kWh/m² pro Jahr
- Klasse HWB
- D
- fGEE
- 2.35
- Klasse fGEE
- D
Flächen
- Anzahl der Zimmer
- 2.5
- Anzahl der Badezimmer
- 1
- Anzahl der sep. WCs
- 1
- Wohnfläche
- 64m²
- Nutzfläche
- 64m²
Kosten
- Kaufpreis Brutto
- € 310.000,00
- Betriebskosten
- € 150,67
- Sonstige Kosten
- € 76,25
Verwaltung
- Verfügbar ab
- nach Vereinbarung
Wohnungen zum Kaufen in Österreich
- Bezirk Gemeindebezirk Alsergrund
- Bezirk Gemeindebezirk Alsergrund
- Bezirk Gemeindebezirk Alsergrund
- Bezirk Gemeindebezirk Brigittenau
- Bezirk Gemeindebezirk Brigittenau
- Bezirk Gemeindebezirk Brigittenau
- Bezirk Gemeindebezirk Josefstadt
- Bezirk Gemeindebezirk Josefstadt
- Bezirk Gemeindebezirk Josefstadt
- Bezirk Gemeindebezirk Innere Stadt
Wohnungen zum Kaufen in Österreich
Andere Besucher suchen nach...
- Immobilien kaufen in 2601 Sollenau
- Immobilien in 4951 Polling im Innkreis, Oberösterreich
- Immobilien in 4742 Pram, Oberösterreich kaufen oder mieten
- Häuser kaufen in 2340 Mödling, Niederösterreich
- Häuser kaufen in 9421 Gemmersdorf, Kärnten
- Wohnungen / Eigentumswohnungen kaufen in 9431 St. Stefan, Kärnten
- Häuser kaufen in Bruck an der Leitha, Niederösterreich
- Immobilien mieten in Krems an der Donau, Niederösterreich
- Häuser zum Kaufen im Bezirk St. Pölten Land, Niederösterreich
- Büro / Praxen mieten in Rohrbach, Oberösterreich