SANIERUNGSBEDÜRFTIG I ALTBAU I U-BAHN NÄHE I 1090 I 3,28m RAUMHÖHE
Beschreibung
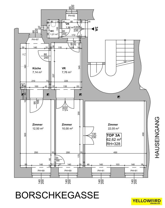
Sanierungsbedürftige Altbauwohnung im Erdgeschoss eines gepflegten Altbauhauses in begehrter Lage im 9. Bezirk.
HIGHLIGHTS • Orientierung: Südlich • Heizung: Gasetage • Öffentliche Anbindung: U-Bahn (U6), Straßenbahn • Lebensmittelgeschäfte (Lebensmitteleinkauf) wenige hundert Meter entfernt • Leben in der LEBENSWERTESTEN Stadt der Welt INFOS ZUR WOHNUNG • STOCKWERK: EG • BAUJAHR: ca. 1880 • WOHNFLÄCHE: 62,62qm • ZIMMER: 3 • TOILETTE: Vorhanden • RAUMHÖHE: ca. 3,28m • KÜCHE: sanierungsbedürftig • VERKEHRSANBINDUNG: U6 und Straßenbahnen • HWB: 67,70 kWh/m^2a • KLASSE: C
KOSTEN: • KAUFPREIS: 220.000€ • BETRIEBSKOSTEN INKL. MWST.: 117,73€ NEBENKOSTEN WELCHE VOM KÄUFER ZU TRAGEN SIND: • Provision: 3%...
Sanierungsbedürftige Altbauwohnung im Erdgeschoss eines gepflegten Altbauhauses in begehrter Lage im 9. Bezirk.
HIGHLIGHTS
• Orientierung: Südlich
• Heizung: Gasetage
• Öffentliche Anbindung: U-Bahn (U6), Straßenbahn
• Lebensmittelgeschäfte (Lebensmitteleinkauf) wenige hundert Meter entfernt
• Leben in der LEBENSWERTESTEN Stadt der Welt
INFOS ZUR WOHNUNG
• STOCKWERK: EG
• BAUJAHR: ca. 1880
• WOHNFLÄCHE: 62,62qm
• ZIMMER: 3
• TOILETTE: Vorhanden
• RAUMHÖHE: ca. 3,28m
• KÜCHE: sanierungsbedürftig
• VERKEHRSANBINDUNG: U6 und Straßenbahnen
• HWB: 67,70 kWh/m^2a
• KLASSE: C
KOSTEN:
• KAUFPREIS: 220.000€
• BETRIEBSKOSTEN INKL. MWST.: 117,73€
NEBENKOSTEN WELCHE VOM KÄUFER ZU TRAGEN SIND:
• Provision: 3% d. Kaufpreises zzgl. 20% USt.
• Vertragserrichtung: 1-2 % zzgl. USt. und Barauslagen
• Grundbucheintragung: 1,1 % des Kaufpreises
• Grunderwerbsteuer: 3,5 % des Kaufpreises
Haben Sie weitere Fragen oder wünschen eine Besichtigung? - Gleich Kontakt aufnehmen!
In Entsprechung des FAGG (Fern- und Auswärtsgeschäfte-Gesetz) und des VRUG
(Verbraucherrechte-Richtlinie-Umsetzungsgesetz) ist es uns leider nur mehr möglich Termine nach
Erhalt einer schriftlichen Anfrage mit vollständigen Kontaktangaben (Kontaktformular) zu
vereinbaren, dies gilt ebenso für die Herausgabe relevanter Informationen wie z.B. der Lage. Sehr
gerne sind wir auf diesem Wege bereit, uns um sämtliche Anliegen rasch und kompetent zu
kümmern.
Wir weisen darauf hin, dass zwischen dem Vermittler und dem Auftraggeber ein wirtschaftliches
Naheverhältnis besteht. Der Vermittler ist als Doppelmakler tätig
Wir weisen darauf hin, dass zwischen dem Vermittler und dem zu vermittelnden Dritten ein familiäres oder wirtschaftliches Naheverhältnis besteht.
Der Vermittler ist als Doppelmakler tätig.
Infrastruktur / Entfernungen
Gesundheit
Arzt <500m
Apotheke <500m
Klinik <500m
Krankenhaus <500m
Kinder & Schulen
Schule <500m
Kindergarten <500m
Universität <500m
Höhere Schule <500m
Nahversorgung
Supermarkt <500m
Bäckerei <500m
Einkaufszentrum <1.500m
Sonstige
Geldautomat <500m
Bank <500m
Post <500m
Polizei <1.000m
Verkehr
Bus <500m
U-Bahn <500m
Straßenbahn <500m
Bahnhof <500m
Autobahnanschluss <3.000m
Angaben Entfernung Luftlinie / Quelle: OpenStreetMap
Objektdaten
Ausstattung
- Etage Heizung
- Befeuerung mit Gas
Zustand
- Zustand
- SANIERUNGSBEDUERFTIG
- Baujahr
- 1880
- Alter
- ALTBAU
- HWB
- 67.7 kWh/m² pro Jahr
- Klasse HWB
- C
- fGEE
- 2.15
- Klasse fGEE
- D
Flächen
- Anzahl der Zimmer
- 3
- Anzahl der sep. WCs
- 1
- Wohnfläche
- 63m²
- Nutzfläche
- 63m²
Kosten
- Kaufpreis Brutto
- € 220.000,00
- Betriebskosten
- € 107,03
- Sonstige Kosten
- € 66,66
Wohnungen zum Kaufen in Österreich
- Bezirk Gemeindebezirk Alsergrund
- Bezirk Gemeindebezirk Alsergrund
- Bezirk Gemeindebezirk Alsergrund
- Bezirk Gemeindebezirk Brigittenau
- Bezirk Gemeindebezirk Brigittenau
- Bezirk Gemeindebezirk Brigittenau
- Bezirk Gemeindebezirk Josefstadt
- Bezirk Gemeindebezirk Josefstadt
- Bezirk Gemeindebezirk Josefstadt
- Bezirk Gemeindebezirk Innere Stadt
Wohnungen zum Kaufen in Österreich
Wohnungen zum Kaufen in Österreich
Andere Besucher suchen nach...
- Grundstücke kaufen in 3400 Weidlingbach
- Wohnungen kaufen in 4663 Laakirchen
- Häuser in 7471 Rechnitz
- Wohnungen in 2410 Hainburg an der Donau
- Häuser kaufen in 2432 Schwadorf
- Wohnungen kaufen in 3002 Purkersdorf
- Häuser in 3150 Wilhelmsburg
- Wohnungen kaufen in 3470 Engelmannsbrunn
- Grundstücke kaufen im Bezirk Mattersburg
- Grundstücke kaufen im Bezirk Gmunden