3-Zimmer-Wohnung mit Potenzial | Nähe U1 & Favoritenstraße
-
sofort
Beschreibung
Nur wenige Gehminuten von der U1 entfernt gelangt diese 3-Zimmer-Wohnung mit Gestaltungspotenzial zum Verkauf. Die Wohnung befindet sich im Erdgeschoss eines klassischen Wiener Wohnhauses.
Die Wohnung wurde 2004 umfassend saniert und mehrere Jahre vom Eigentümer selbst genutzt. In den letzten Jahren war sie vermietet und befindet sich aktuell in einem gebrauchsbedingten, etwas abgewohnten Zustand, bietet jedoch eine solide Grundlage für eine Modernisierung nach eigenen Vorstellungen.
Dank des gut nutzbaren Grundrisses eignet sich die Wohnung ideal für Käufer, die ihr zukünftiges Zuhause individuell gestalten möchten.
Highlights auf einen Blick
- ca. 65,86 m² Wohnfläche
- 3 Zimmer
- Wohnküche als zentraler Wohnbereich
- zwei...
Nur wenige Gehminuten von der U1 entfernt gelangt diese 3-Zimmer-Wohnung mit Gestaltungspotenzial zum Verkauf. Die Wohnung befindet sich im Erdgeschoss eines klassischen Wiener Wohnhauses.
Die Wohnung wurde 2004 umfassend saniert und mehrere Jahre vom Eigentümer selbst genutzt. In den letzten Jahren war sie vermietet und befindet sich aktuell in einem gebrauchsbedingten, etwas abgewohnten Zustand, bietet jedoch eine solide Grundlage für eine Modernisierung nach eigenen Vorstellungen.
Dank des gut nutzbaren Grundrisses eignet sich die Wohnung ideal für Käufer, die ihr zukünftiges Zuhause individuell gestalten möchten.
Highlights auf einen Blick
- ca. 65,86 m² Wohnfläche
- 3 Zimmer
- Wohnküche als zentraler Wohnbereich
- zwei große Zimmer
- Badezimmer mit Fenster und Badewanne
- separates WC mit Fenster
- Altbau mit angenehmer Raumhöhe
- Wohnung wurde 2004 umfassend saniert
- zuletzt vermietet – aktuell gebrauchsbedingt abgewohnt
- Gestaltungs- und Modernisierungspotenzial
- nur wenige Gehminuten zur U1
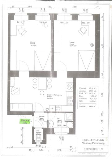
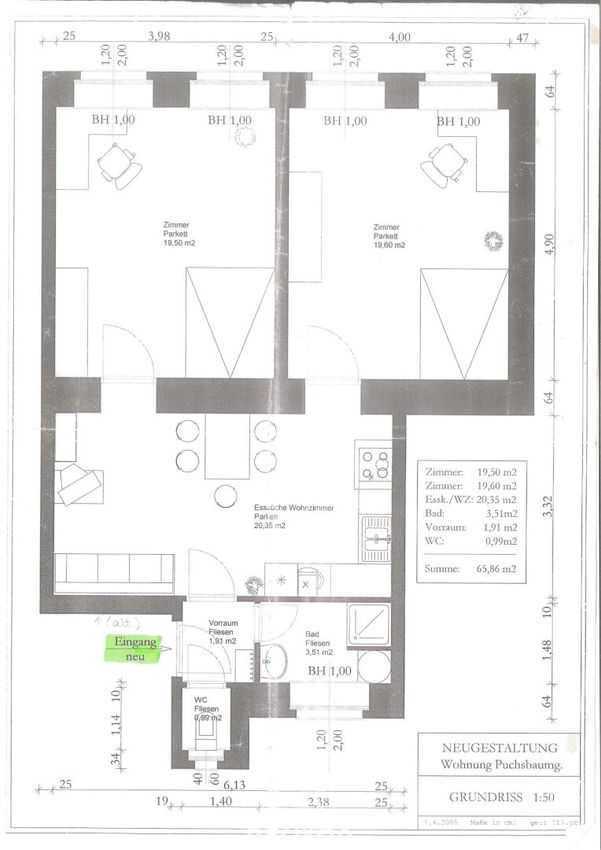
Raumaufteilung
- Vorraum
- Wohnküche
- Zimmer
- Zimmer
- Badezimmer
- separates WC
Der zentrale Wohnbereich ist als Wohnküche gestaltet und bietet ausreichend Platz für einen Wohn- und Essbereich.
Zusätzlich stehen zwei gut geschnittene Zimmer zur Verfügung, die sich flexibel als Schlafzimmer, Kinderzimmer oder Arbeitszimmer nutzen lassen.
Das Badezimmer verfügt über ein Fenster und ist mit einer Badewanne ausgestattet. Ergänzt wird das Raumangebot durch ein separates WC.
Die Beheizung erfolgt über eine Gasetagenheizung.
Gebäude & Allgemeinflächen
Für zukünftige Erhaltungsarbeiten steht zudem eine Rücklage von rund € 60.000 zur Verfügung. Ein Teil der monatlichen Vorschreibung entfällt auf die Darlehensrückzahlung für die bereits erfolgte Dachsanierung. Diese läuft voraussichtlich bis 2028; danach reduziert sich die monatliche Vorschreibung um derzeit rund € 65.
Lagebeschreibung
Die Wohnung befindet sich in einem urbanen Wohngebiet mit sehr guter Infrastruktur.
In der näheren Umgebung befinden sich zahlreiche Einkaufsmöglichkeiten, Supermärkte, Bäckereien, Restaurants sowie diverse Dienstleistungsbetriebe, die den täglichen Bedarf bequem abdecken. Auch die Favoritenstraße, eine der wichtigsten Einkaufsstraßen des Bezirks, ist gut erreichbar und bietet ein vielfältiges Angebot an Geschäften und Gastronomie.
Die U-Bahn-Station Reumannplatz (U1) ist in etwa 3–4 Gehminuten erreichbar und ermöglicht eine rasche Verbindung in die Wiener Innenstadt sowie zu weiteren wichtigen Knotenpunkten der Stadt.
Ein beliebter Treffpunkt in der Umgebung ist der bekannte Eissalon Tichy, der seit Jahrzehnten zu den traditionsreichen Institutionen des Bezirks zählt. Ebenfalls nur wenige Minuten entfernt befindet sich das Amalienbad, eines der bekanntesten Wiener Hallenbäder.
Für Erholung im Grünen sorgt zudem der Puchsbaumpark, der ebenfalls in wenigen Gehminuten erreichbar ist.
Die Lage verbindet somit eine sehr gute Infrastruktur, öffentliche Verkehrsanbindung und eine lebendige Grätzl-Atmosphäre.
Besichtigung
Für weitere Informationen, Unterlagen oder zur Vereinbarung eines Besichtigungstermins stehe ich Ihnen gerne zur Verfügung.
Noch nichts gefunden? Wir informieren Sie über geeignete Immobilienangebote noch vor allen anderen.
Legen Sie jetzt Ihren individuellen Suchagenten unter folgendem Link an. Wir schicken Ihnen passende Immobilien exklusiv vorab zu.
Suchagent anlegen - https://remax-4you.service.immo/registrieren/de
Der Vermittler ist als Doppelmakler tätig.
Infrastruktur / Entfernungen
Gesundheit
Arzt <500m
Apotheke <500m
Klinik <1.000m
Krankenhaus <2.500m
Kinder & Schulen
Schule <500m
Kindergarten <500m
Universität <500m
Höhere Schule <2.500m
Nahversorgung
Supermarkt <500m
Bäckerei <500m
Einkaufszentrum <1.500m
Sonstige
Geldautomat <500m
Bank <500m
Post <500m
Polizei <1.000m
Verkehr
Bus <500m
U-Bahn <500m
Straßenbahn <500m
Bahnhof <500m
Autobahnanschluss <1.000m
Angaben Entfernung Luftlinie / Quelle: OpenStreetMap
Objektdaten
Ausstattung
- Bad mit Badewanne
- Bad mit Fenster
- Offene Küche
- Fliesenboden
- Laminatboden
- Etage Heizung
- Befeuerung mit Gas
Zustand
- Baujahr
- 1900
- Alter
- ALTBAU
- HWB
- 114.8 kWh/m² pro Jahr
- Klasse HWB
- D
- Klasse fGEE
- D
Flächen
- Anzahl der Zimmer
- 3
- Anzahl der Badezimmer
- 1
- Anzahl der sep. WCs
- 1
- Wohnfläche
- 65m²
Kosten
- Kaufpreis Brutto
- € 150.000,00
- Betriebskosten
- € 223,67
- Sonstige Kosten
- € 151,31
Verwaltung
- Verfügbar ab
- sofort
Wohnungen zum Kaufen in Österreich
- Bezirk Gemeindebezirk Favoriten
- Bezirk Gemeindebezirk Favoriten
- Bezirk Gemeindebezirk Favoriten
- Bezirk Gemeindebezirk Simmering
- Bezirk Gemeindebezirk Simmering
- Bezirk Gemeindebezirk Simmering
- Bezirk Gemeindebezirk Margareten
- Bezirk Gemeindebezirk Margareten
- Bezirk Gemeindebezirk Margareten
- Bezirk Gemeindebezirk Wieden
Wohnungen zum Kaufen in Österreich
Wohnungen zum Kaufen in Österreich
Andere Besucher suchen nach...
- Grundstücke kaufen in 3400 Weidlingbach
- Wohnungen kaufen in 4663 Laakirchen
- Häuser in 7471 Rechnitz
- Wohnungen in 2410 Hainburg an der Donau
- Häuser kaufen in 2432 Schwadorf
- Wohnungen kaufen in 3002 Purkersdorf
- Häuser in 3150 Wilhelmsburg
- Wohnungen kaufen in 3470 Engelmannsbrunn
- Grundstücke kaufen im Bezirk Mattersburg
- Grundstücke kaufen im Bezirk Gmunden