550m zur U1 - Sanierungsbedürftige 2-Zimmer-Wohnung im Gründerzeithaus – ideal für Anleger oder Eigennutzer
Beschreibung
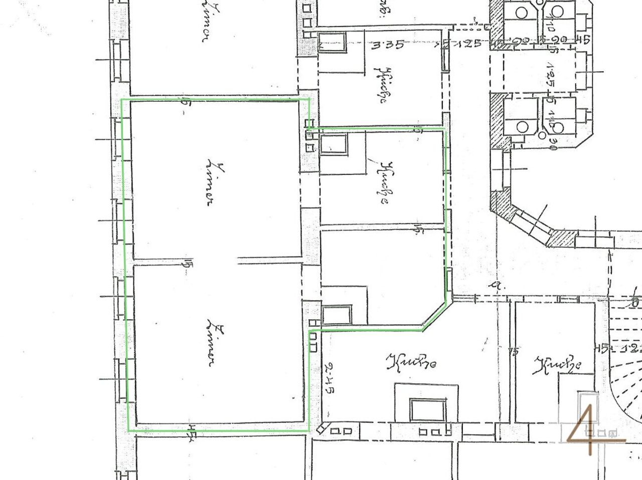
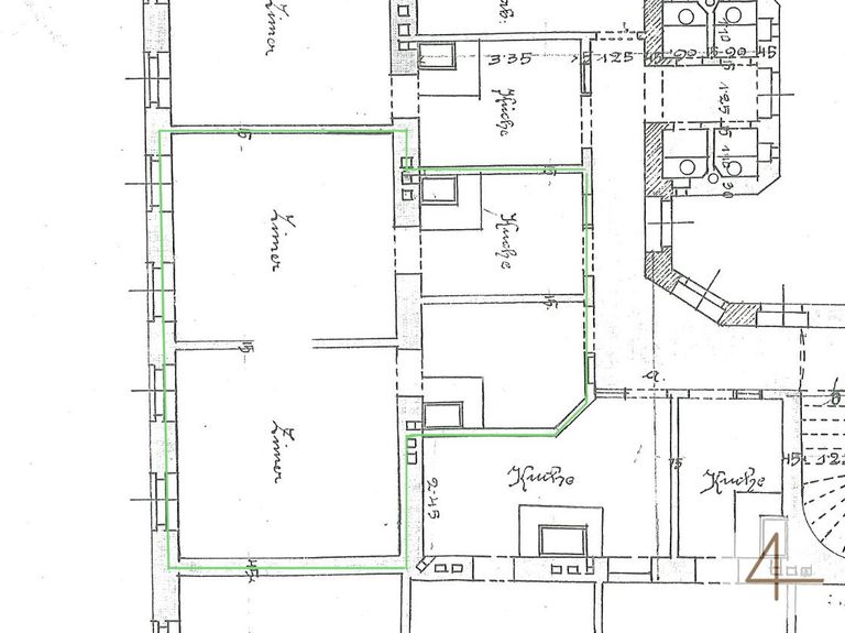
Diese geräumige Wohnung im 3. Stock (ohne Lift) bietet viel Potenzial für alle, die eine Immobilie nach ihren eigenen Vorstellungen gestalten möchten. Die Wohnung befindet sich in einem klassischen Gründerzeithaus und überzeugt durch eine sehr gute Grundstruktur.
Zusätzliches Highlight:
Im selben Haus stehen weitere Wohneinheiten zum Verkauf – ideal für Investoren, die ein ganzes Paket erwerben möchten.
Lage
Die Wohnung befindet sich in einer gut angebundenen und dennoch angenehm ruhigen Wohngegend im 10. Bezirk. Zahlreiche Einkaufsmöglichkeiten, Schulen, Ärzte sowie Restaurants und Cafés liegen in unmittelbarer Umgebung und sind bequem zu Fuß erreichbar. Die Nähe zu mehreren Bus-...
Diese geräumige Wohnung im 3. Stock (ohne Lift) bietet viel Potenzial für alle, die eine Immobilie nach ihren eigenen Vorstellungen gestalten möchten.
Die Wohnung befindet sich in einem klassischen Gründerzeithaus und überzeugt durch eine sehr gute Grundstruktur.
Zusätzliches Highlight:
Im selben Haus stehen weitere Wohneinheiten zum Verkauf – ideal für Investoren, die ein ganzes Paket erwerben möchten.
Lage
Die Wohnung befindet sich in einer gut angebundenen und dennoch angenehm ruhigen Wohngegend im 10. Bezirk. Zahlreiche Einkaufsmöglichkeiten, Schulen, Ärzte sowie Restaurants und Cafés liegen in unmittelbarer Umgebung und sind bequem zu Fuß erreichbar. Die Nähe zu mehreren Bus- und Straßenbahnlinien sowie zur U-Bahn ermöglicht eine schnelle Verbindung in die Innenstadt und zu wichtigen Verkehrsknotenpunkten. Grün- und Erholungsflächen in der Nachbarschaft bieten zusätzlichen Freizeitwert und machen diese Lage besonders attraktiv für urbanes Wohnen mit hohem Komfort.
Öffentliche Verkehrsanbindungen
180 m zur Straßenbahnlinie 6,11 - „Gellertplatz"
350 m zur Autobuslinie 68A, 68B - „Waldgasse“
500 m zur Autobuslinie 14A - „Reumannplatz“
550 m zur U1-Station - „Reumannplatz“
600 m zur Autobuslinie 65A - „Reumannplatz“
Gerne steht Ihnen Herr Michael Hellebrand für weitere Fragen bzw. flexibel gestaltbare Besichtigungstermine unter 0664 75346995 zur Verfügung.
www.4immobilien.at
Wir weisen ausdrücklich auf unser wirtschaftliches Naheverhältnis mit dem Abgeber/der Abgeberin und auf unsere Vermittlungstätigkeit als Doppelmakler hin.
Irrtum und Änderungen vorbehalten!
Wir weisen darauf hin, dass zwischen dem Vermittler und dem zu vermittelnden Dritten ein familiäres oder wirtschaftliches Naheverhältnis besteht.
Der Vermittler ist als Doppelmakler tätig.
Objektdaten
Zustand
- HWB
- 119.2 kWh/m² pro Jahr
- Klasse HWB
- D
- fGEE
- 2.34
- Klasse fGEE
- D
Flächen
- Wohnfläche
- 58m²
Kosten
- Kaufpreis Brutto
- € 209.309,00
Wohnungen zum Kaufen in Österreich
- Bezirk Gemeindebezirk Favoriten
- Bezirk Gemeindebezirk Favoriten
- Bezirk Gemeindebezirk Favoriten
- Bezirk Gemeindebezirk Simmering
- Bezirk Gemeindebezirk Simmering
- Bezirk Gemeindebezirk Simmering
- Bezirk Gemeindebezirk Margareten
- Bezirk Gemeindebezirk Margareten
- Bezirk Gemeindebezirk Margareten
- Bezirk Gemeindebezirk Wieden
Wohnungen zum Kaufen in Österreich
Wohnungen zum Kaufen in Österreich
Andere Besucher suchen nach...
- Grundstücke kaufen in 3400 Weidlingbach
- Wohnungen kaufen in 4663 Laakirchen
- Häuser in 7471 Rechnitz
- Wohnungen in 2410 Hainburg an der Donau
- Häuser kaufen in 2432 Schwadorf
- Wohnungen kaufen in 3002 Purkersdorf
- Häuser in 3150 Wilhelmsburg
- Wohnungen kaufen in 3470 Engelmannsbrunn
- Grundstücke kaufen im Bezirk Mattersburg
- Grundstücke kaufen im Bezirk Gmunden