++NEU++ LEGALE KURZZEITVERMIETUNG 4 OBJEKTE ZUM SELBSTVERWIRKLICHEN
Beschreibung
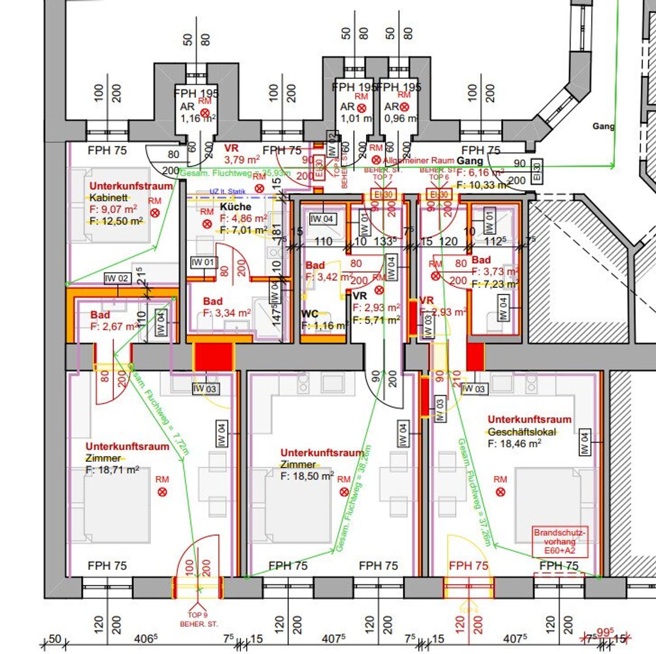
Zum Verkauf steht eine ehemalige 102m² große sanierungsbedürftige Altbauwohnung im Erdgeschoss eines soeben ausgebauten Gebäudes. Die Wohnung wurde aufwändig in 4 Unterkunftsräume baupolizeilich umgewidmet. Die Kurzzeitvermietung ist somit Stand 1.1.2026 legal. Zusätzlich ist die Kurzzeitvermietung laut WEV zugelassen.
Besichtigung
Zur Vereinbarung eines Besichtigungstermins bitten wir Sie, uns unbedingt eine schriftliche Anfrage zukommen zu lassen. Wir antworten verlässlich am selben Tag!
Objektdetails
- Lage: Erdgeschoss
- Räumlichkeiten:
- Top 6 ca. 26m²
- Top 7 ca. 26m²
- Top 8 ca. 22m²
- Top 9 ca 21m²
Somit gesamt ca 95m² ohne Abstellräume (siehe Plan)
(Details entnehmen...
Zum Verkauf steht eine ehemalige 102m² große sanierungsbedürftige Altbauwohnung im Erdgeschoss eines soeben ausgebauten Gebäudes. Die Wohnung wurde aufwändig in 4 Unterkunftsräume baupolizeilich umgewidmet. Die Kurzzeitvermietung ist somit Stand 1.1.2026 legal. Zusätzlich ist die Kurzzeitvermietung laut WEV zugelassen.
Besichtigung
Zur Vereinbarung eines Besichtigungstermins bitten wir Sie, uns unbedingt eine schriftliche Anfrage zukommen zu lassen. Wir antworten verlässlich am selben Tag!
Objektdetails
- Lage: Erdgeschoss
- Räumlichkeiten:
- Top 6 ca. 26m²
- Top 7 ca. 26m²
- Top 8 ca. 22m²
- Top 9 ca 21m²
Somit gesamt ca 95m² ohne Abstellräume (siehe Plan)
(Details entnehmen Sie bitte den Fotos und dem Grundriss.)
- Zustand:
Das Objekt befindet sich in einem sanierungsbedürftigen Zustand und wird wie sie liegt und steht verkauft.
Das Gebäude
Das Objekt befindet sich im Erdgeschoss eines gepflegten Altbaus. Ein Dachgeschossausbau wurde soeben fertiggestellt und ein Aufzug eingebaut.
- Der einmalige Lifterrichtungsbeitrag beträgt:
- Mezzanin: 4.000 €
- 1. Stock: 6.000 €
- 2. und 3. Stock: 8.000 €
Lage
Die Wohnung liegt in der Quellenstraße, einer ruhigen Wohngegend mit hervorragender Infrastruktur:
- Einkaufsmöglichkeiten: Alle Geschäfte des täglichen Bedarfs befinden sich in unmittelbarer Nähe.
- Ärztliche Versorgung: Allgemein- und Fachärzte sind fußläufig erreichbar.
Verkehrsanbindung
- Straßenbahnlinien:
- 6: Burggasse/Stadthalle – Reumannplatz
- 11: Otto-Probst-Platz – Kaiserebersdorf
- D: Nußdorf – Alfred-Adler-Straße
Die Haltestellen sind nur 2 Gehminuten entfernt und bieten eine exzellente Anbindung.
Preis
Kaufpreis: 299.000 €
monatliche Kosten: 331,20 €
- Vertragserrichtung und Abwicklung:
ENGINDENIZ Rechtsanwälte für Immobilienrecht GmbH
Adresse: Marc-Aurel-Straße 6/5, 1010 Wien
Mindestvertragserrichtungskosten: 3.000 € + Barauslagen + 20 % USt
Alternativ: 1,5 % des Kaufpreises + Barauslagen + 20 % USt
Sollten Sie Fragen haben oder einen Besichtigungstermin wünschen, zögern Sie bitte nicht mich zu kontaktieren. (am besten via E-Mail Anfrage)
Zur Vereinbarung eines Besichtigungstermins lassen Sie uns bitte jedenfalls eine E-Mailanfrage zukommen!
Der IMMY ist die renommierteste Auszeichnung für Wiener Makler- und Verwalterbetriebe im Bereich Wohnimmobilien. Wir sind stolz den goldenen IMMY für das Jahr 2019 gewonnen zu haben!
Vielen Dank vor allem an unsere Kunden! Unser Unternehmen wurde auch zum Besten Start Up und in den Jahren 2015, 2018, 2019 und 2020 als Qualitätsmakler ausgezeichnet!
Bitte achten Sie darauf, dass Sie diese Immobilie, nach Ihrer Anfrage bei Adonia Immobilien, nicht auch bei einem anderen Immobilienmaklerbüro anfragen! Vielen Dank!
Nicht alle unsere Immobilien finden Sie auf den gängigen Plattformen. Wir freuen uns auf Ihren Besuch auf unserer Homepage unter adonia.at
Wir weisen ausdrücklich auf unser wirtschaftliches Naheverhältnis mit dem Abgeber/ der Abgeberin hin! Unsere gesetzlichen Pflichten als Doppelmakler werden dadurch jedoch nicht beeinträchtigt. Irrtum und Änderungen vorbehalten.
Alle hier veröffentlichen Informationen basieren auf den uns von dem Abgeber/ der Abgeberin zur Verfügung gestellten Informationen und wurden nicht selbst erhoben.
Unsere Allgemeinen Geschäftsbedingungen können Sie sowohl in dem Ihnen zugesandten Expose einsehen als auch auf unserer Homepage. Wir weisen ausdrücklich darauf hin, dass diese AGBs Vertragsinhalt werden.
Der Schutz von personenbezogenen Daten ist uns wichtig und auch gesetzlich gefordert. Die Verarbeitung Ihrer personenbezogenen Daten erfolgt nach den datenschutzrechtlichen Bestimmungen. Auf unserer Homepage (unter Datenschutzinformation) finden Sie eine Übersicht die Sie über die wichtigsten Aspekte der Verarbeitung personenbezogener Daten informieren soll.
Wir weisen darauf hin, dass zwischen dem Vermittler und dem zu vermittelnden Dritten ein familiäres oder wirtschaftliches Naheverhältnis besteht.
Der Vermittler ist als Doppelmakler tätig.
Infrastruktur / Entfernungen
Gesundheit
Arzt <750m
Apotheke <250m
Klinik <1.000m
Krankenhaus <2.500m
Kinder & Schulen
Schule <250m
Kindergarten <250m
Universität <250m
Höhere Schule <2.000m
Nahversorgung
Supermarkt <250m
Bäckerei <250m
Einkaufszentrum <1.500m
Sonstige
Geldautomat <250m
Bank <500m
Post <250m
Polizei <1.250m
Verkehr
Bus <250m
U-Bahn <1.000m
Straßenbahn <250m
Bahnhof <500m
Autobahnanschluss <500m
Angaben Entfernung Luftlinie / Quelle: OpenStreetMap
Objektdaten
Ausstattung
- Befeuerung mit Gas
- Personen Fahrstuhl
Zustand
- Zustand
- SANIERUNGSBEDUERFTIG
- Alter
- ALTBAU
- HWB
- 83.7 kWh/m² pro Jahr
- fGEE
- 1.68
Flächen
- Anzahl der Zimmer
- 5
- Anzahl der Badezimmer
- 1
- Anzahl der sep. WCs
- 1
- Wohnfläche
- 102m²
Kosten
- Kaufpreis Brutto
- € 298.900,00
Wohnungen zum Kaufen in Österreich
- Bezirk Gemeindebezirk Favoriten
- Bezirk Gemeindebezirk Favoriten
- Bezirk Gemeindebezirk Favoriten
- Bezirk Gemeindebezirk Wieden
- Bezirk Gemeindebezirk Wieden
- Bezirk Gemeindebezirk Wieden
- Bezirk Gemeindebezirk Margareten
- Bezirk Gemeindebezirk Margareten
- Bezirk Gemeindebezirk Margareten
- Bezirk Gemeindebezirk Landstrasse
Wohnungen zum Kaufen in Österreich
Wohnungen zum Kaufen in Österreich
Andere Besucher suchen nach...
- Grundstücke kaufen in 3400 Weidlingbach
- Wohnungen kaufen in 4663 Laakirchen
- Häuser in 7471 Rechnitz
- Wohnungen in 2410 Hainburg an der Donau
- Häuser kaufen in 2432 Schwadorf
- Wohnungen kaufen in 3002 Purkersdorf
- Häuser in 3150 Wilhelmsburg
- Wohnungen kaufen in 3470 Engelmannsbrunn
- Grundstücke kaufen im Bezirk Mattersburg
- Grundstücke kaufen im Bezirk Gmunden