Ruhige 3-Zimmer-Wohnung mit Terrasse & Grünfläche – Wohnanlage mit Dachpool & Sauna
-
Mai 2026
Beschreibung
3-Zimmer-Eigentumswohnung mit Terrasse und kleiner Grünfläche in Wien-Favoriten
Diese gepflegte Eigentumswohnung in der Raxstraße im 10. Wiener Gemeindebezirk verbindet eine sehr gute Infrastruktur mit angenehmer Wohnqualität. Öffentliche Verkehrsmittel befinden sich in unmittelbarer Nähe, die Südosttangente ist rasch erreichbar. Das Naherholungsgebiet Wienerberg sowie der Kurpark Oberlaa bieten zusätzliche Freizeitmöglichkeiten.
Besonders hervorzuheben ist die ausgesprochen ruhige Lage der Wohnung innerhalb der Wohnanlage.
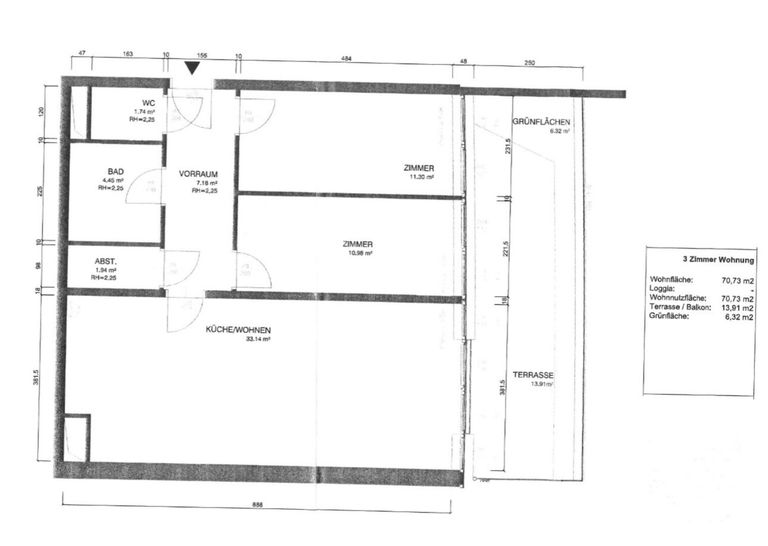
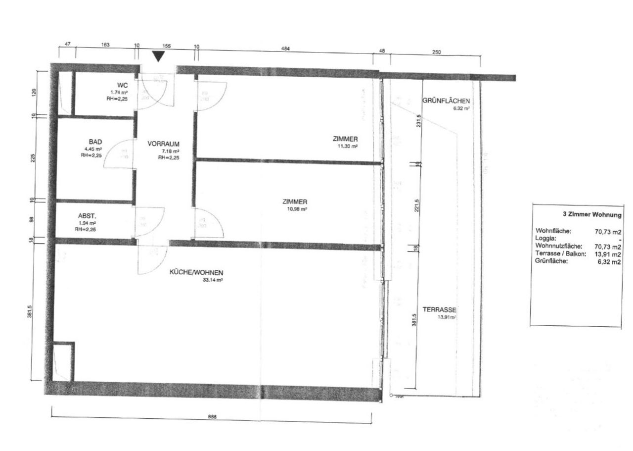
Die Wohnung verfügt über eine Wohnfläche von ca. 70,73 m² und wird durch eine Terrasse (ca. 13,91 m²) sowie eine Grünfläche (ca. 6,32 m²) ergänzt. Der Zugang zur Wohnung ist barrierefrei möglich.
Ein zusätzliches Highlight...
3-Zimmer-Eigentumswohnung mit Terrasse und kleiner Grünfläche in Wien-Favoriten
Diese gepflegte Eigentumswohnung in der Raxstraße im 10. Wiener Gemeindebezirk verbindet eine sehr gute Infrastruktur mit angenehmer Wohnqualität. Öffentliche Verkehrsmittel befinden sich in unmittelbarer Nähe, die Südosttangente ist rasch erreichbar. Das Naherholungsgebiet Wienerberg sowie der Kurpark Oberlaa bieten zusätzliche Freizeitmöglichkeiten.
Besonders hervorzuheben ist die ausgesprochen ruhige Lage der Wohnung innerhalb der Wohnanlage.
Die Wohnung verfügt über eine Wohnfläche von ca. 70,73 m² und wird durch eine Terrasse (ca. 13,91 m²) sowie eine Grünfläche (ca. 6,32 m²) ergänzt. Der Zugang zur Wohnung ist barrierefrei möglich.
Ein zusätzliches Highlight der Wohnanlage ist ein Gemeinschaftsbereich am Dach mit Pool und Sauna, der den Bewohnern zur Verfügung steht.
Raumaufteilung
Vorzimmer, Wohnküche mit Zugang zur Terrasse und Grünfläche, zwei Zimmer, Abstellraum, Badezimmer sowie separates WC.
Fazit
Eine gut geschnittene Stadtwohnung mit Freifläche, ruhiger Wohnlage und sehr solider Infrastruktur.
Der Vermittler ist als Doppelmakler tätig.
Infrastruktur / Entfernungen
Gesundheit
Arzt <500m
Apotheke <250m
Klinik <1.000m
Krankenhaus <1.000m
Kinder & Schulen
Schule <250m
Kindergarten <500m
Universität <1.250m
Höhere Schule <2.000m
Nahversorgung
Supermarkt <250m
Bäckerei <500m
Einkaufszentrum <2.250m
Sonstige
Geldautomat <750m
Bank <750m
Post <1.000m
Polizei <500m
Verkehr
Bus <250m
U-Bahn <1.500m
Straßenbahn <500m
Bahnhof <1.500m
Autobahnanschluss <1.750m
Angaben Entfernung Luftlinie / Quelle: OpenStreetMap
Objektdaten
Ausstattung
- WG geeignet
- Räume veränderbar
- Gartennutzung
- Rollstuhlgerecht
- Kabel/SAT-TV
- DVBT
- Barrierefrei
- Sauna
- Swimmingpool
- Rampe
- Sporteinrichtungen
- Fahrradraum
- Rolladen
- Bibliothek
- Seniorengerecht
- Bad mit Badewanne
- Offene Küche
- Fliesenboden
- Teppichboden
- Parkettboden
- Linoleumboden
- Fernwärme Heizung
- Fern Befeuerung
- Personen Fahrstuhl
- Ausrichtung Balkon/Terrasse - Südost
- Massiv Bauweise
Dokumente / Links
Zustand
- Zustand
- GEPFLEGT
- Baujahr
- 2013
- Alter
- NEUBAU
- HWB
- 41.6 kWh/m² pro Jahr
- Klasse HWB
- B
- fGEE
- 0.88
- Klasse fGEE
- B
Flächen
- Anzahl der Zimmer
- 3
- Anzahl der Badezimmer
- 1
- Anzahl der sep. WCs
- 1
- Anzahl der Terrassen
- 1
- Wohnfläche
- 71m²
- Nutzfläche
- 91m²
- Gartenfläche
- 6m²
- Terrassenfläche
- 1m²
Kosten
- Kaufpreis Brutto
- € 349.900,00
- Betriebskosten
- € 122,43
- Sonstige Kosten
- € 92,96
Verwaltung
- Verfügbar ab
- Mai 2026
Wohnungen zum Kaufen in Österreich
- Bezirk Gemeindebezirk Favoriten
- Bezirk Gemeindebezirk Favoriten
- Bezirk Gemeindebezirk Favoriten
- Bezirk Gemeindebezirk Margareten
- Bezirk Gemeindebezirk Margareten
- Bezirk Gemeindebezirk Margareten
- Bezirk Gemeindebezirk Meidling
- Bezirk Gemeindebezirk Meidling
- Bezirk Gemeindebezirk Meidling
- Bezirk Gemeindebezirk Wieden
Wohnungen zum Kaufen in Österreich
Wohnungen zum Kaufen in Österreich
Andere Besucher suchen nach...
- Grundstücke kaufen in 3400 Weidlingbach
- Wohnungen kaufen in 4663 Laakirchen
- Häuser in 7471 Rechnitz
- Wohnungen in 2410 Hainburg an der Donau
- Häuser kaufen in 2432 Schwadorf
- Wohnungen kaufen in 3002 Purkersdorf
- Häuser in 3150 Wilhelmsburg
- Wohnungen kaufen in 3470 Engelmannsbrunn
- Grundstücke kaufen im Bezirk Mattersburg
- Grundstücke kaufen im Bezirk Gmunden