Anlegerhit beim Arsenal
-
sofort
Beschreibung
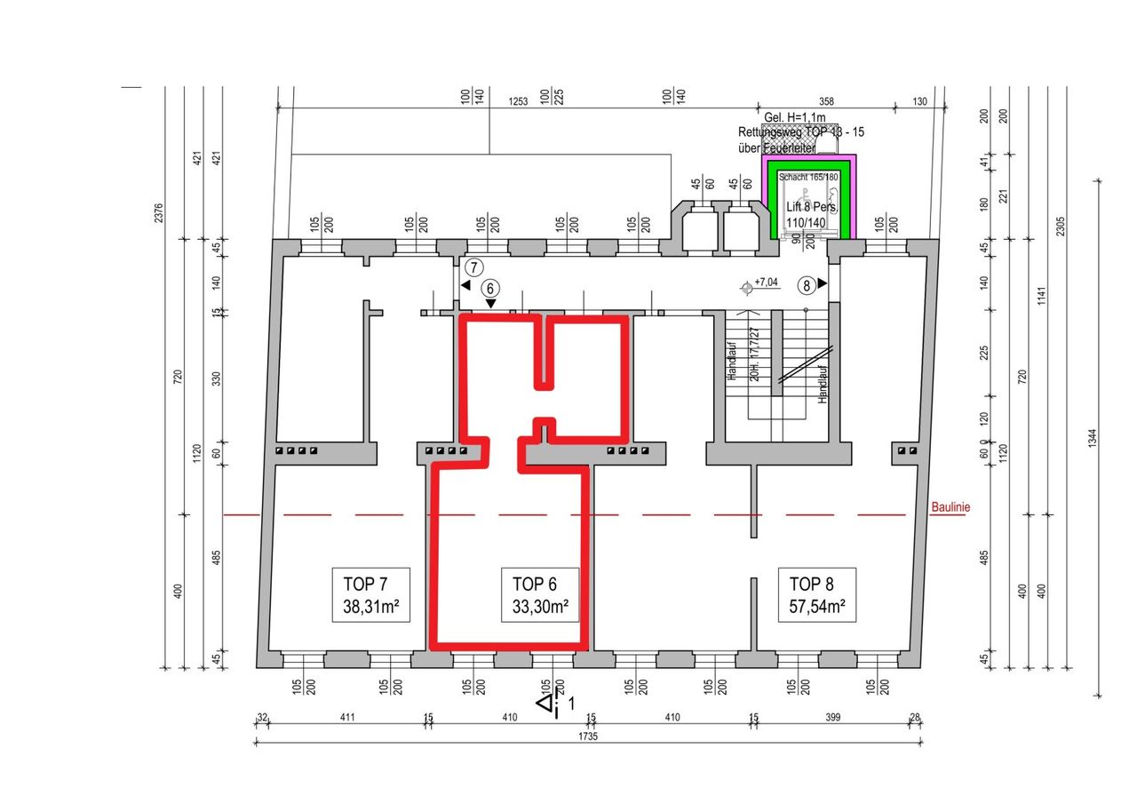
Die renovierungsbedürftige Wohnung verfügt über 33,30 m² Wohnfläche und besteht aus einem Zimmer, Kabinett und Vorraum.
Es werden in diesem Objekt mehrere Wohnungen zum Kauf angeboten.
Bei Interesse finden Sie alle Objekte auf www.myimmo.at.
In zentraler Lage werden insgesamt 10 renovierungsbedürftige Altbauwohnungen mit ein bis zwei Zimmern zwischen 26 m² und 57 m² zum Verkauf angeboten. Bei Erwerb von nebeneinanderliegenden Wohnungen ist eine Zusammenlegung möglich.
Das im Jahr 1903 errichtete Zinshaus wurde nach einem Bombenschaden im 2. Weltkrieg ohne Fördermittel Wiederhergestellt (Baubescheid vom 28.04.1949). Somit ist eine Vermietung zum angemessenen Mietzins (siehe §16 Abs. 1 Z 2 MRG) erlaubt....
Die renovierungsbedürftige Wohnung verfügt über 33,30 m² Wohnfläche und besteht aus einem Zimmer, Kabinett und Vorraum.
Es werden in diesem Objekt mehrere Wohnungen zum Kauf angeboten.
Bei Interesse finden Sie alle Objekte auf www.myimmo.at.
In zentraler Lage werden insgesamt 10 renovierungsbedürftige Altbauwohnungen mit ein bis zwei Zimmern zwischen 26 m² und 57 m² zum Verkauf angeboten.
Bei Erwerb von nebeneinanderliegenden Wohnungen ist eine Zusammenlegung möglich.
Das im Jahr 1903 errichtete Zinshaus wurde nach einem Bombenschaden im 2. Weltkrieg ohne Fördermittel Wiederhergestellt (Baubescheid vom 28.04.1949).
Somit ist eine Vermietung zum angemessenen Mietzins (siehe §16 Abs. 1 Z 2 MRG) erlaubt.
Aufgrund der Widmung ist auch eine kurzfristige Apartmentvermietung möglich.
Im Zuge des baubewilligten Dachgeschossausbaues wird ein Lift eingebaut und das Dach erneuert.
________________________________________
Wir erlauben uns Sie auf das wirtschaftliche Näheverhältnis zur Verkäuferin hinzuweisen.
Die Vermittlungsprovision beträgt 3 % vom Kaufpreis zzgl. 20 % USt.
Für weitere Frage steht Ihnen Herr GEYIK gerne unter +43 1 810 10 21 - 12 zur Verfügung.
Wir weisen darauf hin, dass zwischen dem Vermittler und dem zu vermittelnden Dritten ein familiäres oder wirtschaftliches Naheverhältnis besteht.
Der Vermittler ist als Doppelmakler tätig.
Infrastruktur / Entfernungen
Gesundheit
Arzt <500m
Apotheke <500m
Klinik <500m
Krankenhaus <2.500m
Kinder & Schulen
Schule <500m
Kindergarten <500m
Universität <1.000m
Höhere Schule <2.000m
Nahversorgung
Supermarkt <500m
Bäckerei <1.000m
Einkaufszentrum <1.500m
Sonstige
Geldautomat <1.000m
Bank <1.000m
Post <500m
Polizei <1.500m
Verkehr
Bus <500m
U-Bahn <1.500m
Straßenbahn <500m
Bahnhof <1.000m
Autobahnanschluss <500m
Angaben Entfernung Luftlinie / Quelle: OpenStreetMap
Objektdaten
Zustand
- Zustand
- TEIL_VOLLRENOVIERUNGSBED
- Baujahr
- 1903
- Alter
- ALTBAU
- HWB
- 243 kWh/m² pro Jahr
- Klasse HWB
- F
- fGEE
- 2.23
- Klasse fGEE
- D
Flächen
- Wohnfläche
- 33m²
- Nutzfläche
- 33m²
Kosten
- Kaufpreis Brutto
- € 98.000,00
- Betriebskosten
- € 123,82
Verwaltung
- Verfügbar ab
- sofort
Wohnungen zum Kaufen in Österreich
- Bezirk Gemeindebezirk Simmering
- Bezirk Gemeindebezirk Simmering
- Bezirk Gemeindebezirk Simmering
- Bezirk Gemeindebezirk Favoriten
- Bezirk Gemeindebezirk Favoriten
- Bezirk Gemeindebezirk Favoriten
- Bezirk Gemeindebezirk Landstrasse
- Bezirk Gemeindebezirk Landstrasse
- Bezirk Gemeindebezirk Landstrasse
- Bezirk Gemeindebezirk Wieden
Wohnungen zum Kaufen in Österreich
Wohnungen zum Kaufen in Österreich
Andere Besucher suchen nach...
- Grundstücke kaufen in 3400 Weidlingbach
- Wohnungen kaufen in 4663 Laakirchen
- Häuser in 7471 Rechnitz
- Wohnungen in 2410 Hainburg an der Donau
- Häuser kaufen in 2432 Schwadorf
- Wohnungen kaufen in 3002 Purkersdorf
- Häuser in 3150 Wilhelmsburg
- Wohnungen kaufen in 3470 Engelmannsbrunn
- Grundstücke kaufen im Bezirk Mattersburg
- Grundstücke kaufen im Bezirk Gmunden